Maison à construire à Lizy-sur-Ourcq (77440)
Images
Description
Contactez Guillaume Bordes de l'agence Maisons Evolution de Mareuil-lès-Meaux au (Numéro supprimé) pour avoir plus d'informations sur ce projet.
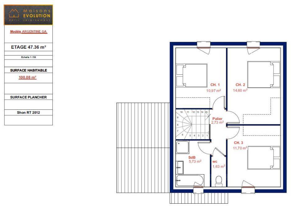
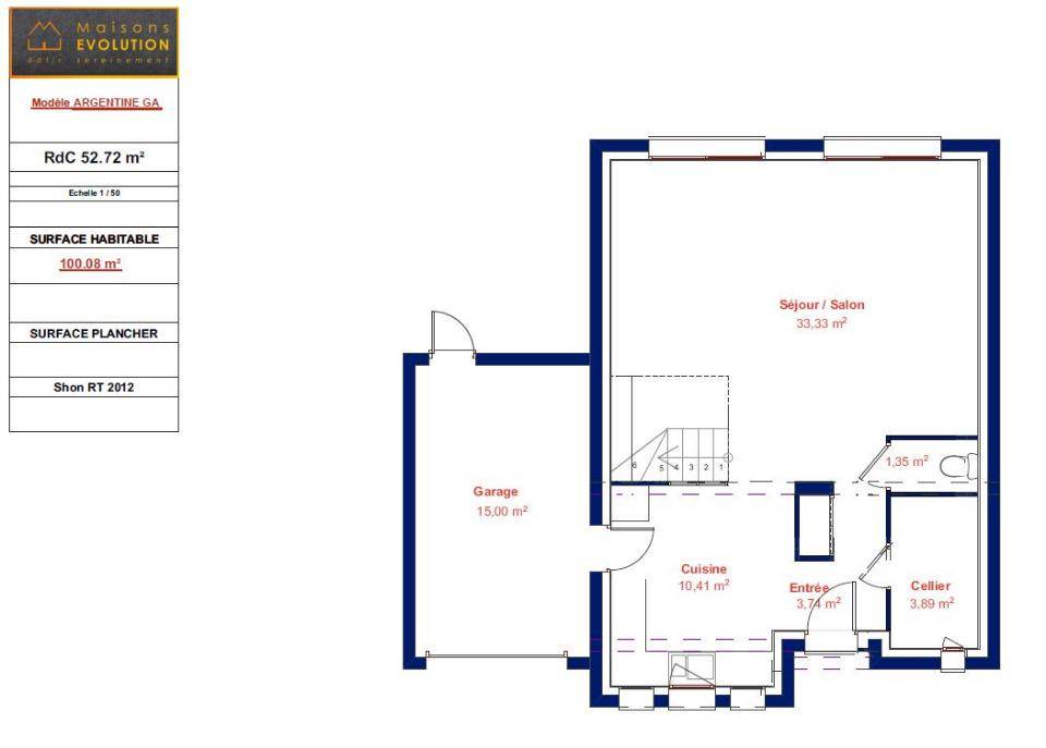
Belle maison à étage de 100 m² habitables avec garage accolé, idéalement située sur la commune de Lizy sur Ourcq.
Elle est composée de 3 chambres, d'une salle de bains, de deux WC séparés, et d'un grand salon-séjour lumineux avec cuisine ouverte, cellier et garage accolé.
Les plans sont modifiables selon vos souhaits, en agence ou visioconférence. Nous vous proposons un véritable accompagnement de qualité tout au long de votre projet.
Dessinons ensemble votre future maison !
Tel: (Numéro supprimé)
Annonce proposée par un Agent Commercial Partenaire.
Logement susceptibles de vous intéresser
Nous vous proposons de découvrir aussi cette sélection de logements situés à moins de 10km de Lizy-sur-Ourcq et qui seraient susceptibles de vous intéresser.
Trilport
TERRAIN ET MAISONVENTE d’une maison F6 (100 m²) à TrilportMAISON 6 PIÈCES NEUVE – PROCHE DE MEAUXProche du Transilien P (30 min de Paris), à vendre à Trilport (77470), nous vous proposons cette maison de 6 pièces de 100 m². Son intérieur compte quatre chambres, une cuisine et une salle de bains.Le terrain de la maison est de 356 m².Cette maison comporte 2 niveaux. Elle est neuve.L’École Élémentaire Jacques Prévert, l’École Maternelle Andrée Chedid, l’École Primaire la Charmoye et le Collège le Bois de l’Enclume se trouvent à moins de 10 minutes à pied. Côté transports en commun, il y a la gare Trilport dans les alentours. On trouve un tennis, deux boulangeries, quatre commerces, un supermarché, un bureau de poste et deux épiceries à quelques minutes à peine.Son prix de vente est de 332 000 €.Contactez notre agence (Alan RUBAL : (Numéro supprimé)) pour plus de renseignements sur la maison ou sur les modalités de vente.Annonce proposée par un Agent Commercial Partenaire.
Trilport
TERRAIN ET MAISONTrilport : maison F7 (120 m²) à vendreMAISON 7 PIÈCES NEUVE – PROCHE DE MEAUXÀ proximité du Transilien P (30 min de Paris), laissez vous charmer par cette maison de 7 pièces de 120 m² et de 356 m² de terrain en vente à Trilport (77470). Son intérieur se divise en quatre chambres, une cuisine et deux salles de bains.Cette maison comporte 2 niveaux. Elle est neuve.Il y a l’École Élémentaire Jacques Prévert, l’École Maternelle Andrée Chedid, l’École Primaire la Charmoye et le Collège le Bois de l’Enclume à moins de 10 minutes à pied. Niveau transports en commun, on trouve la gare Trilport à quelques pas du bien. On trouve un tennis, deux boulangeries, quatre commerces, un supermarché, deux épiceries et un bureau de poste dans les environs.Elle est proposée à l’achat pour 368 000 €.Contactez notre agence (Alan RUBAL : (Numéro supprimé)) pour tout renseignement sur cette maison ou sur les démarches à suivre.Annonce proposée par un Agent Commercial Partenaire.
Mary-sur-Marne
TERRAIN ET MAISONVENTE d’une maison F6 (100 m²) à Mary-sur-MarnePROCHE DE MEAUX – MAISON 6 PIÈCES NEUVEÀ vendre : à côté du Transilien P (gare de Lizy-sur-Ourcq, 45 min de Paris), à Mary-sur-Marne (77440), laissez vous charmer par cette maison de 6 pièces de 100 m² et de 446 m² de terrain.Cette maison compte 2 niveaux. Son intérieur dispose de quatre chambres, d’une cuisine et d’une salle de bains. Cette maison est neuve.L’École Primaire Joseph Kessel se trouve à moins de 10 minutes à pied. Niveau transports en commun, il y a six gares à moins de 10 minutes en voiture. On trouve un tennis et un supermarché à quelques minutes à peine.Elle est à vendre pour la somme de 280 000 €.Prenez contact avec Alan RUBAL ((Numéro supprimé)) pour obtenir de plus amples renseignements sur la maison ou sur les modalités de vente. Maisons France Confort Magny-le-Hongre est là pour vous accompagner dans toutes vos démarches.Annonce proposée par un Agent Commercial Partenaire.
Mary-sur-Marne
TERRAIN ET MAISONMary-sur-Marne : maison de 5 pièces (90 m²) à vendrePROCHE DE MEAUX – MAISON 5 PIÈCES NEUVEÀ deux pas du Transilien P (gare de Lizy-sur-Ourcq, 45 min de Paris), nous sommes heureux de vous présenter à vendre à Mary-sur-Marne (77440), cette maison de 5 pièces de plain-pied de 90 m² et de 446 m² de terrain.Elle propose trois chambres, une cuisine et deux salles de bains. La maison est neuve.L’École Primaire Joseph Kessel est implantée à moins de 10 minutes à pied. Niveau transports, il y a six gares à moins de 10 minutes en voiture. On trouve un tennis et un supermarché dans les environs.Son prix de vente est de 261 000 €.Contactez notre agence (RUBAL Alan : (Numéro supprimé)) pour tout renseignement sur cette maison, sur les démarches à suivre ou sur les modalités de vente.Annonce proposée par un Agent Commercial Partenaire.
Mary-sur-Marne
TERRAIN ET MAISONMary-sur-Marne : maison de 5 pièces (85 m²) à vendreMAISON 5 PIÈCES NEUVE – PROCHE DE MEAUXEn vente : proche de la gare de Lizy-sur-Ourcq (Paris à 45 min par le Transilien P), ayez le coup de coeur pour à Mary-sur-Marne (77440), cette maison de 5 pièces de 85 m² et de 446 m² de terrain.Cette maison comporte 2 niveaux. Son intérieur propose trois chambres, une cuisine et deux salles de bains. Cette maison est neuve.L’École Primaire Joseph Kessel est implantée à moins de 10 minutes à pied. Niveau transports en commun, il y a six gares à moins de 10 minutes en voiture. On trouve un tennis et un supermarché dans les environs.Elle est proposée à l’achat pour 252 000 €.Prenez contact avec notre agence (RUBAL Alan : (Numéro supprimé)) pour tout renseignement sur la maison. Maisons France Confort Magny-le-Hongre est là pour vous accompagner à toutes les étapes de l’achat.Annonce proposée par un Agent Commercial Partenaire.
Mary-sur-Marne
TERRAIN ET MAISONMary-sur-Marne : maison de 7 pièces (160 m²) en venteMAISON 7 PIÈCES NEUVE – PROCHE DE MEAUXÀ vendre : à 800 m de la gare de Lizy-sur-Ourcq (Paris à 45 min avec le Transilien P), nous sommes heureux de vous proposer à Mary-sur-Marne (77440), cette maison de 7 pièces de 160 m² et de 446 m² de terrain. Son intérieur inclut cinq chambres, une cuisine et deux salles de bains.C’est une maison de 2 niveaux. Elle est neuve.Il y a l’École Primaire Joseph Kessel à moins de 10 minutes à pied. Côté transports, on trouve six gares à moins de 10 minutes en voiture. Il y a un tennis et un supermarché à quelques minutes.Son prix de vente est de 387 000 €.Prenez contact avec notre agence (RUBAL Alan : (Numéro supprimé)) pour obtenir de plus amples renseignements sur la maison.Annonce proposée par un Agent Commercial Partenaire.
Le Plessis-Placy
TERRAIN ET MAISONContactez Stéphanie SEBAG de l’agence Maisons Evolution de Mareuil-lès-Meaux au (Numéro supprimé) pour avoir plus d’informations sur ce projet.Très belle maison d’une superficie de 98 m² habitables avec garage intégré idéalement située sur la commune de LE PLESSIS PLACYElle est composée de 4 chambres, d’une salle de bains, de deux WC, et d’un grand salon-séjour lumineux avec cuisine ouverte, cellier et garage.Les plans sont modifiables selon vos souhaits, en agence ou visioconférence. Nous vous proposons un véritable accompagnement de qualité tout au long de votre projet.Dessinons ensemble votre future maison !Tel: (Numéro supprimé)Annonce proposée par un Agent Commercial Partenaire.
Le Plessis-Placy
TERRAIN ET MAISONContactez Stéphanie SEBAG de l’agence Maisons Evolution de Mareuil-lès-Meaux au (Numéro supprimé) pour avoir plus d’informations sur ce projet.Très belle maison d’une superficie de 98 m² habitables avec garage intégré idéalement située sur la commune de LE PLESSIS PLACYElle est composée de 4 chambres, d’une salle de bains, de deux WC, et d’un grand salon-séjour lumineux avec cuisine ouverte, cellier et garage.Les plans sont modifiables selon vos souhaits, en agence ou visioconférence. Nous vous proposons un véritable accompagnement de qualité tout au long de votre projet.Dessinons ensemble votre future maison !Tel: (Numéro supprimé)Annonce proposée par un Agent Commercial Partenaire.
Le Plessis-Placy
TERRAIN ET MAISONContactez Stéphanie SEBAG de l’agence Maisons Evolution de Mareuil-lès-Meaux au (Numéro supprimé) pour avoir plus d’informations sur ce projet.Très belle maison d’une superficie de 98 m² habitables avec garage intégré idéalement située sur la commune de LE PLESSIS PLACYElle est composée de 4 chambres, d’une salle de bains, de deux WC, et d’un grand salon-séjour lumineux avec cuisine ouverte, cellier et garage.Les plans sont modifiables selon vos souhaits, en agence ou visioconférence. Nous vous proposons un véritable accompagnement de qualité tout au long de votre projet.Dessinons ensemble votre future maison !Tel: (Numéro supprimé)Annonce proposée par un Agent Commercial Partenaire.
L’actualité immobilière à Lizy-sur-Ourcq
27/11/2023
02/11/2023
30/10/2023
20/10/2023
16/10/2023
16/10/2023