Maison à construire à Longueville (77650)
Images
Description
Contactez Guillaume Bordes de l'agence Maisons Evolution de Mareuil-lès-Meaux au (Numéro supprimé) pour avoir plus d'informations sur ce projet.
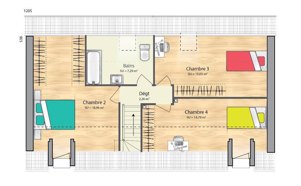
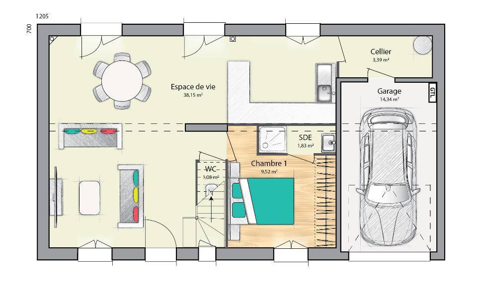
Jolie maison traditionnelle de 94 m² habitables avec garage intégré idéalement située sur la commune de Longueville.
Elle est composée de 4 chambres dont une au rez-de-chaussée, d'une grande salle de bains, de deux WC et d'un salon-séjour lumineux avec cuisine ouverte donnant sur un cellier puis sur le garage.
Les plans sont modifiables selon vos souhaits, en agence ou visioconférence. Nous vous proposons un véritable accompagnement de qualité tout au long de votre projet.
Dessinons ensemble votre future maison !
Tel: (Numéro supprimé)
Annonce proposée par un Agent Commercial Partenaire.
Logement susceptibles de vous intéresser
Nous vous proposons de découvrir aussi cette sélection de logements situés à moins de 10km de Longueville et qui seraient susceptibles de vous intéresser.
Provins
TERRAINPrix : 120000 €.Sur ce terrain, réalisez votre projet de construction de maison RE 2020 avec PAVILLONS D'ÎLE-DE-FRANCE (constructeur de maisons de gamme et sur-mesure depuis plus de 50 ans) :- Plan sur-mesure et personnalisé de 2 à 5 chambres- Mode de chauffage au choix- Grands choix d'équipements et de prestations- Matériaux de qualité selon les normes en vigueur- Accompagnement dans le choix et l’acquisition du terrainDemandez une étude gratuite et personnalisée de votre projet de construction sur ce terrain !Contactez Stéphane VERHAUVEN au (Numéro supprimé) ou au (Numéro supprimé) (Pavillons d'Île-de-France – Agence de Meaux).Prix hors frais de notaire. Terrain sélectionné et vu pour vous sous réserve de disponibilité et au prix indiqué par notre partenaire foncier. Visuels non contractuels.Cette annonce a été créée et diffusée avec le logiciel VITAHOME.
Provins
TERRAINPrix : 55000 €.Sur ce terrain, réalisez votre projet de construction de maison RE 2020 avec PAVILLONS D'ÎLE-DE-FRANCE (constructeur de maisons de gamme et sur-mesure depuis plus de 50 ans) :- Plan sur-mesure et personnalisé de 2 à 5 chambres- Mode de chauffage au choix- Grands choix d'équipements et de prestations- Matériaux de qualité selon les normes en vigueur- Accompagnement dans le choix et l’acquisition du terrainDemandez une étude gratuite et personnalisée de votre projet de construction sur ce terrain !Contactez Stéphane VERHAUVEN au (Numéro supprimé) ou au (Numéro supprimé) (Pavillons d'Île-de-France – Agence de Meaux).Prix hors frais de notaire. Terrain sélectionné et vu pour vous sous réserve de disponibilité et au prix indiqué par notre partenaire foncier. Visuels non contractuels.Cette annonce a été créée et diffusée avec le logiciel VITAHOME.
Provins
TERRAIN ET MAISONRéalisez votre projet de construction de maison RE 2020 avec PAVILLONS D'ÎLE-DE-FRANCE (constructeur de maisons de gamme et sur-mesure depuis plus de 50 ans) :- Plan sur-mesure et personnalisé de 2 à 5 chambres- Mode de chauffage au choix- Grands choix d'équipements et de prestations- Matériaux de qualité selon les normes en vigueur- Accompagnement dans le choix et l’acquisition du terrainDemandez une étude gratuite et personnalisée de votre projet de construction !Contactez Stéphane VERHAUVEN au (Numéro supprimé) ou au (Numéro supprimé) (Pavillons d'Île-de-France – Agence de Meaux).Prix avec assurance dommages-ouvrage comprise, hors VRD, terrain viabilisé, assainissement non compris, frais de notaire non compris, taxes non comprises, frais divers non compris. Terrain sélectionné et vu pour vous sous réserve de disponibilité et au prix indiqué par notre partenaire foncier. Visuels non contractuels.Cette annonce a été créée et diffusée avec le logiciel VITAHOME.
Provins
TERRAIN ET MAISONRéalisez votre projet de construction de maison RE 2020 avec PAVILLONS D'ÎLE-DE-FRANCE (constructeur de maisons de gamme et sur-mesure depuis plus de 50 ans) :- Plan sur-mesure et personnalisé de 2 à 5 chambres- Mode de chauffage au choix- Grands choix d'équipements et de prestations- Matériaux de qualité selon les normes en vigueur- Accompagnement dans le choix et l’acquisition du terrainDemandez une étude gratuite et personnalisée de votre projet de construction !Contactez Stéphane VERHAUVEN au (Numéro supprimé) ou au (Numéro supprimé) (Pavillons d'Île-de-France – Agence de Meaux).Prix avec assurance dommages-ouvrage comprise, hors VRD, terrain viabilisé, assainissement non compris, frais de notaire non compris, taxes non comprises, frais divers non compris. Terrain sélectionné et vu pour vous sous réserve de disponibilité et au prix indiqué par notre partenaire foncier. Visuels non contractuels.Cette annonce a été créée et diffusée avec le logiciel VITAHOME.
Provins
TERRAIN ET MAISONRéalisez votre projet de construction de maison RE 2020 avec PAVILLONS D'ÎLE-DE-FRANCE (constructeur de maisons de gamme et sur-mesure depuis plus de 50 ans) :- Plan sur-mesure et personnalisé de 2 à 5 chambres- Mode de chauffage au choix- Grands choix d'équipements et de prestations- Matériaux de qualité selon les normes en vigueur- Accompagnement dans le choix et l’acquisition du terrainDemandez une étude gratuite et personnalisée de votre projet de construction !Contactez Stéphane VERHAUVEN au (Numéro supprimé) ou au (Numéro supprimé) (Pavillons d'Île-de-France – Agence de Meaux).Prix avec assurance dommages-ouvrage comprise, hors VRD, terrain viabilisé, assainissement non compris, frais de notaire non compris, taxes non comprises, frais divers non compris. Terrain sélectionné et vu pour vous sous réserve de disponibilité et au prix indiqué par notre partenaire foncier. Visuels non contractuels.Cette annonce a été créée et diffusée avec le logiciel VITAHOME.
Hermé
TERRAINVENTE d’un terrain de 1 232 m² à HerméEMPLACEMENT PRIVILÉGIÉ – VUE DÉGAGÉEÀ Hermé (77114) proche du Transilien P (gare de Longueville, 1 h de Paris), imaginez la maison de vos rêves sur ce terrain de 1 232 m². Il profite d’une vue dégagée. Il est situé dans un quartier convoité. On y trouve une école primaire. Niveau transports, on trouve quatre gares à moins de 10 minutes en voiture.Ce terrain est à vendre pour la somme de 48 000 €. Contactez notre agence (Anne DELOHEN : (Numéro supprimé)) pour plus d’informations sur ce terrain. Maisons France Confort Nemours est là pour vous accompagner dans tous vos projets immobiliers.Annonce proposée par un Agent Commercial Partenaire.
Everly
TERRAINTerrain de 1 130 m² à vendre à EverlyIDÉALEMENT SITUÉ – PROCHE DE LONGUEVILLE À deux pas du Transilien P (gare de Longueville, 1 h de Paris) à Everly (77157), grand terrain. Il est prêt à accueillir votre projet de construction pour toute la famille. Une école élémentaire est implantée dans le quartier. Niveau transports, il y a trois gares (Longueville, Sainte-Colombe Septveilles et Champbenoist-Poigny) à moins de 10 minutes en voiture. On trouve un tennis et une boulangerie dans les environs.Il est proposé à l’achat pour 56 000 €. Prenez contact avec notre agence (DELOHEN Anne : (Numéro supprimé)) pour toute information sur ce terrain ou sur les démarches à suivre. Donnez vie à vos projets immobiliers avec Maisons France Confort Nemours.Annonce proposée par un Agent Commercial Partenaire.
Hermé
TERRAIN ET MAISONHermé : maison de 5 pièces (90 m²) à vendreEMPLACEMENT PRIVILÉGIÉ – MAISON 5 PIÈCES NEUVEÀ deux pas du Transilien P (gare de Longueville, 1 h de Paris), votre agence Maisons France Confort Nemours est ravie de vous proposer cette maison de 5 pièces de plain-pied de 90 m² et de 1 232 m² de terrain à vendre, bénéficiant d’un emplacement privilégié dans Hermé (77114). Conçue de plain-pied, elle se divise en trois chambres, une cuisine et une salle de bains.Cette maison est neuve.La propriété est située dans un quartier prisé. On y trouve une école primaire. Niveau transports en commun, on trouve quatre gares à moins de 10 minutes en voiture.Elle est à vendre pour la somme de 213 500 €.Prenez contact avec notre agence (Anne DELOHEN : (Numéro supprimé)) pour obtenir de plus amples renseignements sur la maison. Maisons France Confort Nemours vous accompagne à toutes les étapes de votre projet et dans toutes vos démarches.Annonce proposée par un Agent Commercial Partenaire.
Hermé
TERRAIN ET MAISONMaison T7 (110 m²) à vendre à HerméEMPLACEMENT PRIVILÉGIÉ – MAISON 7 PIÈCES NEUVEÀ vendre : proche de la gare de Longueville (Paris à 1 h par le Transilien P), votre agence Maisons France Confort Nemours est ravie de vous présenter cette maison de 7 pièces de 110 m² et de 1 232 m² de terrain bénéficiant d’un emplacement d’exception dans Hermé (77114).Cette maison compte 2 niveaux. Elle dispose de quatre chambres, d’une cuisine et de deux salles de bains. Cette maison est neuve.La propriété se situe dans un quartier recherché. On y trouve une école primaire. Côté transports en commun, il y a quatre gares à moins de 10 minutes en voiture.Elle est à vendre pour la somme de 309 700 €.Contactez notre agence (DELOHEN Anne : (Numéro supprimé)) pour plus d’informations sur la maison. Maisons France Confort Nemours vous accompagne à toutes les étapes de votre projet et dans toutes vos démarches.Annonce proposée par un Agent Commercial Partenaire.
L’actualité immobilière à Longueville
27/11/2023
02/11/2023
30/10/2023
20/10/2023
16/10/2023
16/10/2023