Maison à construire à Magny-le-Hongre (77700)
Images
Description
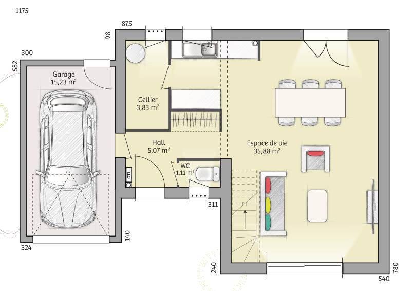
VENTE : maison de 5 pièces (90 m²) à Magny-le-Hongre
MAISON 5 PIÈCES NEUVE - PROCHE DE MONTREUIL
À vendre : à proximité de la station Val d'Europe du RER A (30 min de Paris), ayez le coup de coeur pour cette maison de 5 pièces de 90 m² à Magny-le-Hongre (77700). Son intérieur dispose de trois chambres, d'une cuisine et d'une salle de bains.
Le terrain de cette maison s'étend sur 350 m².
Cette maison possède 2 niveaux. Elle est neuve.
Plusieurs écoles (maternelle, élémentaire, primaire et collège) sont implantées à moins de 10 minutes à pied, tout comme deux structures d'accueil pour les tout-petits. Niveau transports en commun, il y a la ligne de RER A (Chessy-Marne-La-Vallée) ainsi que sept gares à moins de 10 minutes en voiture. On trouve un tennis, trois boulangeries, des commerces, un supermarché, un bureau de poste et trois épiceries à proximité de la maison.
Elle est à vendre pour la somme de 330 000 €.
Contactez notre agence (Teddy MELES : (Numéro supprimé)) pour obtenir de plus amples renseignements sur cette maison.
Annonce proposée par un Agent Commercial Partenaire.
Logement susceptibles de vous intéresser
Nous vous proposons de découvrir aussi cette sélection de logements situés à moins de 10km de Magny-le-Hongre et qui seraient susceptibles de vous intéresser.
Couilly-Pont-aux-Dames
TERRAINVenez découvrir ce terrain constructible en plein centre ville de Couilly, proche de son église et de la mairie, dans un secteur calme et à proximité des espaces verts en 2e position (drapeau).Entièrement cloturé, sur un surface totale de 1032m dont 807m de constructible avec une façade de 25m;une profondeur de 31m, piscinable, possibilité de construire une maison de plein pied de 250m au sol.Etude de sol G2/AVP déja réalisée, et possibilités d’implantations.Il vous reste à découvrir cet emplacement et voir votre faisabilité.Contactez moi aux (Numéro supprimé), Flora Lemaitre mandataire immobilier LFimmoAnnonce publiée par Christine Hamelin Alexandre (EI) votre agent commercial en immobilier LF immo à Coupvray, 77700 immatriculé au RSAC de Meaux sous le n(Numéro supprimé) 000 19. Consultez nos tarifs sur le site LF immo.Les informations sur les risques auxquels ce bien est exposé sont disponibles sur le site Géorisques : www.georisques.gouv.fr.
Voulangis
TERRAINVENTE d’un terrain de 400 m² à VoulangisPROCHE DE CHAMPIGNY-SUR-MARNETerrain de 400 m² à proximité du Transilien P (gare de Guérard-La Celle-sur-Morin, 45 min de Paris). Ce terrain se situe dans Voulangis (77580). L’École Élémentaire André Vallée et l’École Maternelle André Vallée sont implantées à moins de 10 minutes à pied. Niveau transports en commun, on trouve la ligne de RER A (Chessy-Marne-La-Vallée) ainsi que neuf gares à moins de 10 minutes en voiture.Son prix de vente est de 160 000 €. Contactez notre agence (MELES Teddy : (Numéro supprimé)) pour toute question sur ce terrain ou sur les modalités de vente. Maisons France Confort Magny-le-Hongre est là pour vous accompagner dans tous vos projets immobiliers.Annonce proposée par un Agent Commercial Partenaire.
Voulangis
TERRAIN ET MAISONVoulangis : maison de 5 pièces (90 m²) en venteMAISON 5 PIÈCES NEUVE – PROCHE DE CHAMPIGNY-SUR-MARNEÀ proximité de la gare de Guérard-La Celle-sur-Morin (Paris à 45 min avec le Transilien P), à vendre à Voulangis (77580), nous vous présentons cette maison de 5 pièces de 90 m². Elle offre trois chambres, une cuisine et une salle de bains.Le terrain du bien s’étend sur 400 m².Cette maison comporte 2 niveaux. Elle est neuve.Il y a l’École Élémentaire André Vallée et l’École Maternelle André Vallée à moins de 10 minutes à pied. Niveau transports, on trouve la ligne de RER A (Chessy-Marne-La-Vallée) ainsi que neuf gares à moins de 10 minutes en voiture.Elle est proposée à l’achat pour 360 000 €.N’hésitez pas à prendre contact avec Teddy MELES ((Numéro supprimé)) pour obtenir de plus amples informations sur la maison, sur les démarches à suivre ou sur les modalités de vente.Annonce proposée par un Agent Commercial Partenaire.
Voulangis
TERRAIN ET MAISONMaison F6 (100 m²) à vendre à VoulangisMAISON 6 PIÈCES NEUVE – PROCHE DE CHAMPIGNY-SUR-MARNEAu pied du Transilien P (gare de Guérard-La Celle-sur-Morin, 45 min de Paris), à vendre à Voulangis (77580), Maisons France Confort Magny-le-Hongre vous présente cette maison de 6 pièces de 100 m² et de 400 m² de terrain.Cette maison possède 2 niveaux. Son intérieur compte quatre chambres, une cuisine et une salle de bains. La maison est neuve.Il y a l’École Élémentaire André Vallée et l’École Maternelle André Vallée à moins de 10 minutes à pied. Côté transports en commun, on trouve la ligne de RER A (Chessy-Marne-La-Vallée) ainsi que neuf gares à moins de 10 minutes en voiture.Elle est proposée à l’achat pour 460 000 €.Prenez contact avec Teddy MELES ((Numéro supprimé)) pour plus de renseignements sur cette maison, sur les démarches à suivre ou sur les modalités de vente.Annonce proposée par un Agent Commercial Partenaire.
Voulangis
TERRAIN ET MAISONVENTE : maison de 7 pièces (120 m²) à VoulangisMAISON 7 PIÈCES NEUVE – PROCHE DE CHAMPIGNY-SUR-MARNEÀ deux pas de la gare de Guérard-La Celle-sur-Morin (Paris à 45 min par le Transilien P), notre agence Maisons France Confort Magny-le-Hongre est ravie de vous proposer cette maison de 7 pièces de 120 m² en vente à Voulangis (77580). Son intérieur inclut cinq chambres, une cuisine et deux salles de bains.Le terrain du bien s’étend sur 400 m².Il s’agit d’une maison de 2 niveaux. Elle est neuve.L’École Élémentaire André Vallée et l’École Maternelle André Vallée sont implantées à moins de 10 minutes à pied. Niveau transports, il y a la ligne de RER A (Chessy-Marne-La-Vallée) ainsi que neuf gares à moins de 10 minutes en voiture.Elle est proposée à l’achat pour 450 000 €.Contactez notre agence (MELES Teddy : (Numéro supprimé)) pour tout renseignement sur cette maison. Maisons France Confort Magny-le-Hongre est là pour vous accompagner dans toutes vos démarches.Annonce proposée par un Agent Commercial Partenaire.
Voulangis
TERRAIN ET MAISONVENTE d’une maison F7 (120 m²) à VoulangisPROCHE DE CHAMPIGNY-SUR-MARNE – MAISON 7 PIÈCES NEUVEProche du Transilien P (gare de Guérard-La Celle-sur-Morin, 45 min de Paris), à vendre à Voulangis (77580), nous sommes ravis de vous présenter cette maison de 7 pièces de 120 m². Elle offre quatre chambres, une cuisine et deux salles de bains.Le terrain de la propriété est de 400 m².Cette maison compte 2 niveaux. Elle est neuve.L’École Élémentaire André Vallée et l’École Maternelle André Vallée sont implantées à moins de 10 minutes à pied. Côté transports en commun, on trouve la ligne de RER A (Chessy-Marne-La-Vallée) ainsi que neuf gares à moins de 10 minutes en voiture.Elle est proposée à l’achat pour 460 000 €.Contactez Teddy MELES ((Numéro supprimé)) pour toute information sur la maison. Maisons France Confort Magny-le-Hongre vous accompagne dans tous vos projets immobiliers et à toutes les étapes de l’achat.Annonce proposée par un Agent Commercial Partenaire.
Voulangis
TERRAIN ET MAISONVENTE : maison de 5 pièces (105 m²) à VoulangisMAISON 5 PIÈCES NEUVE – PROCHE DE CHAMPIGNY-SUR-MARNEEn vente : au pied de la gare de Guérard-La Celle-sur-Morin (Paris à 45 min par le Transilien P), découvrez cette maison de 5 pièces de plain-pied de 105 m² à Voulangis (77580). Elle inclut quatre chambres, une cuisine et deux salles de bains.Le terrain du bien est de 400 m².La maison est neuve.L’École Élémentaire André Vallée et l’École Maternelle André Vallée se trouvent à moins de 10 minutes à pied. Côté transports en commun, il y a la ligne de RER A (Chessy-Marne-La-Vallée) ainsi que neuf gares à moins de 10 minutes en voiture.Son prix de vente est de 450 000 €.N’hésitez pas à prendre contact avec notre agence (Teddy MELES : (Numéro supprimé)) pour toute information sur cette maison, sur les démarches à suivre ou sur les modalités de vente. Maisons France Confort Magny-le-Hongre est là pour vous accompagner dans tous vos projets immobiliers.Annonce proposée par un Agent Commercial Partenaire.
Voulangis
TERRAIN ET MAISONVENTE : maison de 6 pièces (110 m²) à VoulangisMAISON 6 PIÈCES NEUVE – PROCHE DE CHAMPIGNY-SUR-MARNEEn vente : à quelques minutes du Transilien P (gare de Guérard-La Celle-sur-Morin, 45 min de Paris), nous sommes heureux de vous présenter à Voulangis (77580), cette maison de 6 pièces de 110 m² et de 400 m² de terrain.Il s’agit d’une maison de 2 niveaux. Son intérieur dispose de quatre chambres, d’une cuisine et d’une salle de bains. Cette maison est neuve.L’École Élémentaire André Vallée et l’École Maternelle André Vallée se trouvent à moins de 10 minutes à pied. Niveau transports en commun, il y a la ligne de RER A (Chessy-Marne-La-Vallée) ainsi que neuf gares à moins de 10 minutes en voiture.Elle est proposée à l’achat pour 450 000 €.Contactez notre agence (Teddy MELES : (Numéro supprimé)) pour tout renseignement sur cette maison, sur les modalités de vente ou sur les démarches à suivre. Faites de vos projets immobiliers une réalité avec Maisons France Confort Magny-le-Hongre.Annonce proposée par un Agent Commercial Partenaire.
Voulangis
TERRAIN ET MAISONVENTE : maison de 8 pièces (145 m²) à VoulangisPROCHE DE CHAMPIGNY-SUR-MARNE – MAISON 8 PIÈCES NEUVEEn vente : à quelques minutes de la gare de Guérard-La Celle-sur-Morin (Paris à 45 min avec le Transilien P), laissez vous charmer par cette maison de 8 pièces de 145 m² à Voulangis (77580). Elle comporte six chambres, une cuisine et deux salles de bains.Le terrain de la propriété s’étend sur 400 m².Cette maison compte 2 niveaux. Elle est neuve.Il y a l’École Élémentaire André Vallée et l’École Maternelle André Vallée à moins de 10 minutes à pied. Côté transports, on trouve la ligne de RER A (Chessy-Marne-La-Vallée) ainsi que neuf gares à moins de 10 minutes en voiture.Elle est à vendre pour la somme de 450 000 €.Contactez Teddy MELES (tél : (Numéro supprimé)) pour toute information sur cette maison ou sur les modalités de vente.Annonce proposée par un Agent Commercial Partenaire.
L’actualité immobilière à Magny-le-Hongre
27/11/2023
02/11/2023
30/10/2023
20/10/2023
16/10/2023
16/10/2023