Terrain à vendre

253335 €
79 m²
Maison-Rouge
Seine-et-Marne (77)
TERRAIN ET MAISON
Réf externe: 4497150
Annonce publiée le 5 novembre 2025

Images

Description

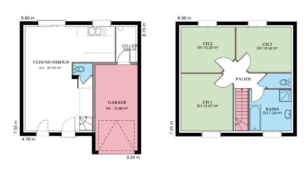
Sur ce terrain, nous vous proposons cette maison neuve baptisée Extenso, conçue par Babeau-Seguin, constructeur offrant le meilleur rapport qualité/prix du marché. Cette maison traditionnelle à étage, avec un fort cachet et un petit prix, dispose d'une surface de 79 m², de 3 chambres et de 4 pièces.

L'Extenso se distingue par son vaste séjour, une salle de bain, 2 WC, un cellier et un garage accolé. Conçue pour répondre aux normes RE2020, cette maison neuve est basse consommation, vous garantissant des économies d'énergie significatives.

Les options les plus demandées par nos clients sont disponibles pour cette maison : enduit bi-ton, domotique et volets roulants motorisés. Ces caractéristiques ajoutent une touche de modernité et de confort à votre futur chez-vous.

Cette belle maison familiale est surtout à ne pas rater pour son prix ! Disposant d'un plancher béton à l'étage, elle s'affiche au prix de nombreuses maisons de plain-pied. Vous n'avez pas encore craqué ?

Si on vous dit que cette Extenso est basse consommation pour encore plus d'économies et qu'en plus sa façade est personnalisable, vous comprendrez qu'il est inutile de chercher un produit équivalent dans l'ancien. Cette Extenso vous offre le confort, la modernité et la qualité... le tout à un prix cassé ! Une exclusivité Maisons Babeau-Seguin.

Ne manquez pas cette opportunité unique d'acquérir une maison neuve, moderne et économe en énergie, parfaitement adaptée à votre terrain. Contactez-nous dès maintenant pour plus d'informations et pour planifier une visite.

CONTACTER

Logement susceptibles de vous intéresser

75 000 € 99 €/m²
760 m²

La Croix-en-Brie

TERRAIN

Mohammed – Agence Pavillons d'Île-de-FranceVotre expert en maisons sur-mesure depuis plus de 50 ans à Mareuil-lès-MeauxTransformez votre rêve en réalité !Situé dans un écrin de verdure, ce terrain de 760 m² vous offre l'opportunité rare de construire la maison de vos rêves dans un cadre calme et agréable. À deux pas des commerces, écoles et transports, vous bénéficierez de la tranquillité de la campagne sans renoncer à la proximité de la vie urbaine.Imaginez votre futur chez-vous, parfaitement adapté à vos envies et à vos besoins. Ce terrain est prêt à accueillir votre projet et à vous offrir un cadre de vie exceptionnel.Prix : 75 000 €Ne laissez pas passer cette chance unique ! Contactez-nous dès maintenant au (Numéro supprimé) pour planifier une étude de faisabilité.Prix : 75000 €.Sur ce terrain, réalisez votre projet de construction de maison RE 2020 avec PAVILLONS D'ÎLE-DE-FRANCE (constructeur de maisons de gamme et sur-mesure depuis plus de 50 ans) :- Plan sur-mesure et personnalisé de 2 à 5 chambres- Mode de chauffage au choix- Grands choix d'équipements et de prestations- Matériaux de qualité selon les normes en vigueur- Accompagnement dans le choix et l’acquisition du terrainDemandez une étude gratuite et personnalisée de votre projet de construction sur ce terrain !Contactez Mohammed HAMDAOUI au (Numéro supprimé) ou au (Numéro supprimé) (Pavillons d'Île-de-France – Agence de Meaux).Prix hors frais de notaire. Terrain sélectionné et vu pour vous sous réserve de disponibilité et au prix indiqué par notre partenaire foncier. Visuels non contractuels.Cette annonce a été créée et diffusée avec le logiciel VITAHOME.

35 000 € 70 €/m²
500 m²

Chenoise-Cucharmoy

TERRAIN

Mohammed – Agence Pavillons d'Île-de-FranceVotre expert en maisons sur-mesure depuis plus de 50 ans à Mareuil-lès-MeauxTransformez votre rêve en réalité !Situé dans un écrin de verdure, ce terrain de 500 m² vous offre l'opportunité rare de construire la maison de vos rêves dans un cadre calme et agréable. À deux pas des commerces, écoles et transports, vous bénéficierez de la tranquillité de la campagne sans renoncer à la proximité de la vie urbaine.Imaginez votre futur chez-vous, parfaitement adapté à vos envies et à vos besoins. Ce terrain est prêt à accueillir votre projet et à vous offrir un cadre de vie exceptionnel.Prix : 35 000 €Ne laissez pas passer cette chance unique ! Contactez-nous dès maintenant au (Numéro supprimé) pour planifier une étude de faisabilité.Prix : 35000 €.Sur ce terrain, réalisez votre projet de construction de maison RE 2020 avec PAVILLONS D'ÎLE-DE-FRANCE (constructeur de maisons de gamme et sur-mesure depuis plus de 50 ans) :- Plan sur-mesure et personnalisé de 2 à 5 chambres- Mode de chauffage au choix- Grands choix d'équipements et de prestations- Matériaux de qualité selon les normes en vigueur- Accompagnement dans le choix et l’acquisition du terrainDemandez une étude gratuite et personnalisée de votre projet de construction sur ce terrain !Contactez Mohammed HAMDAOUI au (Numéro supprimé) ou au (Numéro supprimé) (Pavillons d'Île-de-France – Agence de Meaux).Prix hors frais de notaire. Terrain sélectionné et vu pour vous sous réserve de disponibilité et au prix indiqué par notre partenaire foncier. Visuels non contractuels.Cette annonce a été créée et diffusée avec le logiciel VITAHOME.

164 900 €
500 m²

Chenoise-Cucharmoy

TERRAIN ET MAISON

Réalisez votre projet de construction de maison RE 2020 avec PAVILLONS D'ÎLE-DE-FRANCE (constructeur de maisons de gamme et sur-mesure depuis plus de 50 ans) :- Plan sur-mesure et personnalisé de 2 à 5 chambres- Mode de chauffage au choix- Grands choix d'équipements et de prestations- Matériaux de qualité selon les normes en vigueur- Accompagnement dans le choix et l’acquisition du terrainInformations du terrain : Mohammed – Agence Pavillons d'Île-de-FranceVotre expert en maisons sur-mesure depuis plus de 50 ans à Mareuil-lès-MeauxTransformez votre rêve en réalité !Situé dans un écrin de verdure, ce terrain de 500 m² vous offre l'opportunité rare de construire la maison de vos rêves dans un cadre calme et agréable. À deux pas des commerces, écoles et transports, vous bénéficierez de la tranquillité de la campagne sans renoncer à la proximité de la vie urbaine.Imaginez votre futur chez-vous, parfaitement adapté à vos envies et à vos besoins. Ce terrain est prêt à accueillir votre projet et à vous offrir un cadre de vie exceptionnel.Prix : 35 000 €Ne laissez pas passer cette chance unique ! Contactez-nous dès maintenant au (Numéro supprimé) pour planifier une étude de faisabilité.Demandez une étude gratuite et personnalisée de votre projet de construction !Contactez Mohammed HAMDAOUI au (Numéro supprimé) ou au (Numéro supprimé) (Pavillons d'Île-de-France – Agence de Meaux).Prix avec assurance dommages-ouvrage comprise, hors VRD, terrain non viabilisé, assainissement non compris, frais de notaire non compris, taxes non comprises, frais divers non compris. Terrain sélectionné et vu pour vous sous réserve de disponibilité et au prix indiqué par notre partenaire foncier. Visuels non contractuels.Cette annonce a été créée et diffusée avec le logiciel VITAHOME.

204 900 €
760 m²

La Croix-en-Brie

TERRAIN ET MAISON

Réalisez votre projet de construction de maison RE 2020 avec PAVILLONS D'ÎLE-DE-FRANCE (constructeur de maisons de gamme et sur-mesure depuis plus de 50 ans) :- Plan sur-mesure et personnalisé de 2 à 5 chambres- Mode de chauffage au choix- Grands choix d'équipements et de prestations- Matériaux de qualité selon les normes en vigueur- Accompagnement dans le choix et l’acquisition du terrainInformations du terrain : Mohammed – Agence Pavillons d'Île-de-FranceVotre expert en maisons sur-mesure depuis plus de 50 ans à Mareuil-lès-MeauxTransformez votre rêve en réalité !Situé dans un écrin de verdure, ce terrain de 760 m² vous offre l'opportunité rare de construire la maison de vos rêves dans un cadre calme et agréable. À deux pas des commerces, écoles et transports, vous bénéficierez de la tranquillité de la campagne sans renoncer à la proximité de la vie urbaine.Imaginez votre futur chez-vous, parfaitement adapté à vos envies et à vos besoins. Ce terrain est prêt à accueillir votre projet et à vous offrir un cadre de vie exceptionnel.Prix : 75 000 €Ne laissez pas passer cette chance unique ! Contactez-nous dès maintenant au (Numéro supprimé) pour planifier une étude de faisabilité.Demandez une étude gratuite et personnalisée de votre projet de construction !Contactez Mohammed HAMDAOUI au (Numéro supprimé) ou au (Numéro supprimé) (Pavillons d'Île-de-France – Agence de Meaux).Prix avec assurance dommages-ouvrage comprise, hors VRD, terrain non viabilisé, assainissement non compris, frais de notaire non compris, taxes non comprises, frais divers non compris. Terrain sélectionné et vu pour vous sous réserve de disponibilité et au prix indiqué par notre partenaire foncier. Visuels non contractuels.Cette annonce a été créée et diffusée avec le logiciel VITAHOME.

190 000 €
760 m²

La Croix-en-Brie

TERRAIN ET MAISON

Réalisez votre projet de construction de maison RE 2020 avec PAVILLONS D'ÎLE-DE-FRANCE (constructeur de maisons de gamme et sur-mesure depuis plus de 50 ans) :- Plan sur-mesure et personnalisé de 2 à 5 chambres- Mode de chauffage au choix- Grands choix d'équipements et de prestations- Matériaux de qualité selon les normes en vigueur- Accompagnement dans le choix et l’acquisition du terrainInformations du terrain : Mohammed – Agence Pavillons d'Île-de-FranceVotre expert en maisons sur-mesure depuis plus de 50 ans à Mareuil-lès-MeauxTransformez votre rêve en réalité !Situé dans un écrin de verdure, ce terrain de 760 m² vous offre l'opportunité rare de construire la maison de vos rêves dans un cadre calme et agréable. À deux pas des commerces, écoles et transports, vous bénéficierez de la tranquillité de la campagne sans renoncer à la proximité de la vie urbaine.Imaginez votre futur chez-vous, parfaitement adapté à vos envies et à vos besoins. Ce terrain est prêt à accueillir votre projet et à vous offrir un cadre de vie exceptionnel.Prix : 75 000 €Ne laissez pas passer cette chance unique ! Contactez-nous dès maintenant au (Numéro supprimé) pour planifier une étude de faisabilité.Demandez une étude gratuite et personnalisée de votre projet de construction !Contactez Mohammed HAMDAOUI au (Numéro supprimé) ou au (Numéro supprimé) (Pavillons d'Île-de-France – Agence de Meaux).Prix avec assurance dommages-ouvrage comprise, hors VRD, terrain non viabilisé, assainissement non compris, frais de notaire non compris, taxes non comprises, frais divers non compris. Terrain sélectionné et vu pour vous sous réserve de disponibilité et au prix indiqué par notre partenaire foncier. Visuels non contractuels.Cette annonce a été créée et diffusée avec le logiciel VITAHOME.

150 000 €
500 m²

Chenoise-Cucharmoy

TERRAIN ET MAISON

Réalisez votre projet de construction de maison RE 2020 avec PAVILLONS D'ÎLE-DE-FRANCE (constructeur de maisons de gamme et sur-mesure depuis plus de 50 ans) :- Plan sur-mesure et personnalisé de 2 à 5 chambres- Mode de chauffage au choix- Grands choix d'équipements et de prestations- Matériaux de qualité selon les normes en vigueur- Accompagnement dans le choix et l’acquisition du terrainInformations du terrain : Mohammed – Agence Pavillons d'Île-de-FranceVotre expert en maisons sur-mesure depuis plus de 50 ans à Mareuil-lès-MeauxTransformez votre rêve en réalité !Situé dans un écrin de verdure, ce terrain de 500 m² vous offre l'opportunité rare de construire la maison de vos rêves dans un cadre calme et agréable. À deux pas des commerces, écoles et transports, vous bénéficierez de la tranquillité de la campagne sans renoncer à la proximité de la vie urbaine.Imaginez votre futur chez-vous, parfaitement adapté à vos envies et à vos besoins. Ce terrain est prêt à accueillir votre projet et à vous offrir un cadre de vie exceptionnel.Prix : 35 000 €Ne laissez pas passer cette chance unique ! Contactez-nous dès maintenant au (Numéro supprimé) pour planifier une étude de faisabilité.Demandez une étude gratuite et personnalisée de votre projet de construction !Contactez Mohammed HAMDAOUI au (Numéro supprimé) ou au (Numéro supprimé) (Pavillons d'Île-de-France – Agence de Meaux).Prix avec assurance dommages-ouvrage comprise, hors VRD, terrain non viabilisé, assainissement non compris, frais de notaire non compris, taxes non comprises, frais divers non compris. Terrain sélectionné et vu pour vous sous réserve de disponibilité et au prix indiqué par notre partenaire foncier. Visuels non contractuels.Cette annonce a été créée et diffusée avec le logiciel VITAHOME.

164 000 €
500 m²

Chenoise-Cucharmoy

TERRAIN ET MAISON

Réalisez votre projet de construction de maison RE 2020 avec PAVILLONS D'ÎLE-DE-FRANCE (constructeur de maisons de gamme et sur-mesure depuis plus de 50 ans) :- Plan sur-mesure et personnalisé de 2 à 5 chambres- Mode de chauffage au choix- Grands choix d'équipements et de prestations- Matériaux de qualité selon les normes en vigueur- Accompagnement dans le choix et l’acquisition du terrainInformations du terrain : Mohammed – Agence Pavillons d'Île-de-FranceVotre expert en maisons sur-mesure depuis plus de 50 ans à Mareuil-lès-MeauxTransformez votre rêve en réalité !Situé dans un écrin de verdure, ce terrain de 500 m² vous offre l'opportunité rare de construire la maison de vos rêves dans un cadre calme et agréable. À deux pas des commerces, écoles et transports, vous bénéficierez de la tranquillité de la campagne sans renoncer à la proximité de la vie urbaine.Imaginez votre futur chez-vous, parfaitement adapté à vos envies et à vos besoins. Ce terrain est prêt à accueillir votre projet et à vous offrir un cadre de vie exceptionnel.Prix : 35 000 €Ne laissez pas passer cette chance unique ! Contactez-nous dès maintenant au (Numéro supprimé) pour planifier une étude de faisabilité.Demandez une étude gratuite et personnalisée de votre projet de construction !Contactez Mohammed HAMDAOUI au (Numéro supprimé) ou au (Numéro supprimé) (Pavillons d'Île-de-France – Agence de Meaux).Prix avec assurance dommages-ouvrage comprise, hors VRD, terrain non viabilisé, assainissement non compris, frais de notaire non compris, taxes non comprises, frais divers non compris. Terrain sélectionné et vu pour vous sous réserve de disponibilité et au prix indiqué par notre partenaire foncier. Visuels non contractuels.Cette annonce a été créée et diffusée avec le logiciel VITAHOME.

204 000 €
760 m²

La Croix-en-Brie

TERRAIN ET MAISON

Réalisez votre projet de construction de maison RE 2020 avec PAVILLONS D'ÎLE-DE-FRANCE (constructeur de maisons de gamme et sur-mesure depuis plus de 50 ans) :- Plan sur-mesure et personnalisé de 2 à 5 chambres- Mode de chauffage au choix- Grands choix d'équipements et de prestations- Matériaux de qualité selon les normes en vigueur- Accompagnement dans le choix et l’acquisition du terrainInformations du terrain : Mohammed – Agence Pavillons d'Île-de-FranceVotre expert en maisons sur-mesure depuis plus de 50 ans à Mareuil-lès-MeauxTransformez votre rêve en réalité !Situé dans un écrin de verdure, ce terrain de 760 m² vous offre l'opportunité rare de construire la maison de vos rêves dans un cadre calme et agréable. À deux pas des commerces, écoles et transports, vous bénéficierez de la tranquillité de la campagne sans renoncer à la proximité de la vie urbaine.Imaginez votre futur chez-vous, parfaitement adapté à vos envies et à vos besoins. Ce terrain est prêt à accueillir votre projet et à vous offrir un cadre de vie exceptionnel.Prix : 75 000 €Ne laissez pas passer cette chance unique ! Contactez-nous dès maintenant au (Numéro supprimé) pour planifier une étude de faisabilité.Demandez une étude gratuite et personnalisée de votre projet de construction !Contactez Mohammed HAMDAOUI au (Numéro supprimé) ou au (Numéro supprimé) (Pavillons d'Île-de-France – Agence de Meaux).Prix avec assurance dommages-ouvrage comprise, hors VRD, terrain non viabilisé, assainissement non compris, frais de notaire non compris, taxes non comprises, frais divers non compris. Terrain sélectionné et vu pour vous sous réserve de disponibilité et au prix indiqué par notre partenaire foncier. Visuels non contractuels.Cette annonce a été créée et diffusée avec le logiciel VITAHOME.

L’actualité immobilière à Maison-Rouge

Image du post Pourquoi acheter un terrain en lotissement ? 27/11/2023
Lire l’article
Pourquoi acheter un terrain en lotissement ?
Image du post Vendre son terrain à un promoteur : comment procéder ? 02/11/2023
Lire l’article
Vendre son terrain à un promoteur : comment procéder ?
Image du post Diviser le terrain de sa maison pour le vendre : pourquoi et comment ? 30/10/2023
Lire l’article
Diviser le terrain de sa maison pour le vendre : pourquoi et comment ?
Image du post Acheter un terrain viabilisé : quels avantages ? 20/10/2023
Lire l’article
Acheter un terrain viabilisé : quels avantages ?
Image du post Les 7 étapes incontournables pour bien vendre votre terrain constructible 16/10/2023
Lire l’article
Les 7 étapes incontournables pour bien vendre votre terrain constructible
Image du post 5 points clés à vérifier pour l’achat d’un terrain constructible  16/10/2023
Lire l’article
5 points clés à vérifier pour l’achat d’un terrain constructible