Maison à construire à Mary-sur-Marne (77440)
Images
Description
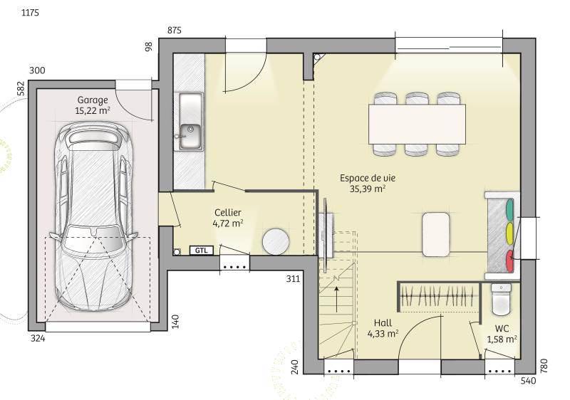
Mary-sur-Marne : maison F5 (90 m²) en vente
MAISON 5 PIÈCES NEUVE - PROCHE DE MEAUX
À vendre : proche de la gare de Lizy-sur-Ourcq (Paris à 45 min par le Transilien P), nous sommes ravis de vous présenter cette maison de 5 pièces de 90 m² à Mary-sur-Marne (77440). Elle compte trois chambres, une cuisine et une salle de bains.
Le terrain du bien est de 580 m².
Il s'agit d'une maison de 2 niveaux. Elle est neuve.
L'École Primaire Joseph Kessel est implantée à moins de 10 minutes à pied. Niveau transports en commun, il y a six gares à moins de 10 minutes en voiture. On trouve un tennis et un supermarché dans les environs.
Elle est à vendre pour la somme de 285 000 €.
Prenez contact avec Cedric YAHIAOUI ((Numéro supprimé)) pour obtenir de plus amples informations sur la maison, sur les démarches à suivre ou sur les modalités de vente. Maisons France Confort Magny-le-Hongre vous accompagne dans tous vos projets immobiliers et à toutes les étapes de l'achat.
Annonce proposée par un Agent Commercial Partenaire.
Logement susceptibles de vous intéresser
Nous vous proposons de découvrir aussi cette sélection de logements situés à moins de 10km de Mary-sur-Marne et qui seraient susceptibles de vous intéresser.
La Ferté-sous-Jouarre
TERRAIN ET MAISONSigny-Signets : maison F6 (100 m²) à vendreEMPLACEMENT PRIVILÉGIÉ – MAISON 6 PIÈCES NEUVEEn vente : à proximité de la gare de Changis-Saint-Jean (Paris à 35 min avec le Transilien P), bénéficiant d’un emplacement d’exception dans Signy-Signets (77640), nous sommes heureux de vous présenter cette maison de 6 pièces de 100 m² et de 487 m² de terrain. Son intérieur offre quatre chambres, une cuisine et une salle de bains.Cette maison comporte 2 niveaux. Elle est neuve.Cette maison se situe dans un secteur attractif. On y trouve une école élémentaire. Niveau transports, il y a quatre gares à moins de 10 minutes en voiture. Il y a un tennis dans les environs.Elle est proposée à l’achat pour 268 000 €.Contactez notre agence (Alan RUBAL : (Numéro supprimé)) pour toute information sur la maison ou sur les démarches à suivre.Annonce proposée par un Agent Commercial Partenaire.
La Ferté-sous-Jouarre
TERRAIN ET MAISONVENTE d’une maison F7 (160 m²) à Signy-SignetsEMPLACEMENT PRIVILÉGIÉ – MAISON 7 PIÈCES NEUVEProche de la gare de Changis-Saint-Jean (Paris à 35 min avec le Transilien P), nous sommes ravis de vous présenter à vendre, bénéficiant d’un emplacement privilégié dans Signy-Signets (77640), cette maison de 7 pièces de 160 m².C’est une maison de 2 niveaux. Son intérieur offre cinq chambres, une cuisine et deux salles de bains. La maison est neuve.Le terrain de la propriété s’étend sur 487 m².Cette maison se trouve dans un secteur prisé. Une école élémentaire y est implantée. Niveau transports, il y a quatre gares à moins de 10 minutes en voiture. On trouve un tennis dans les environs.Elle est proposée à l’achat pour 376 000 €.Contactez Alan RUBAL ((Numéro supprimé)) pour tout renseignement sur la maison ou sur les démarches à suivre. Maisons France Confort Magny-le-Hongre vous accompagne à toutes les étapes de l’achat et dans tous vos projets immobiliers.Annonce proposée par un Agent Commercial Partenaire.
La Ferté-sous-Jouarre
TERRAIN ET MAISONVENTE d’une maison de 7 pièces (120 m²) à Signy-SignetsEMPLACEMENT PRIVILÉGIÉ – MAISON 7 PIÈCES NEUVEÀ côté du Transilien P (gare de Changis-Saint-Jean, 35 min de Paris), nous vous proposons cette maison de 7 pièces de 120 m² en vente bénéficiant d’un emplacement privilégié dans Signy-Signets (77640).Cette maison possède 2 niveaux. Elle offre quatre chambres, une cuisine et deux salles de bains. Cette maison est neuve.Le terrain de la propriété s’étend sur 487 m².La propriété se situe dans un quartier convoité. On y trouve une école élémentaire. Niveau transports, on trouve quatre gares à moins de 10 minutes en voiture. Il y a un tennis dans les environs.Elle est proposée à l’achat pour 304 000 €.N’hésitez pas à prendre contact avec Alan RUBAL ((Numéro supprimé)) pour obtenir de plus amples renseignements sur la maison ou sur les démarches à suivre.Annonce proposée par un Agent Commercial Partenaire.
Trilport
TERRAIN ET MAISONVENTE d’une maison F6 (100 m²) à TrilportMAISON 6 PIÈCES NEUVE – PROCHE DE MEAUXProche du Transilien P (30 min de Paris), à vendre à Trilport (77470), nous vous proposons cette maison de 6 pièces de 100 m². Son intérieur compte quatre chambres, une cuisine et une salle de bains.Le terrain de la maison est de 356 m².Cette maison comporte 2 niveaux. Elle est neuve.L’École Élémentaire Jacques Prévert, l’École Maternelle Andrée Chedid, l’École Primaire la Charmoye et le Collège le Bois de l’Enclume se trouvent à moins de 10 minutes à pied. Côté transports en commun, il y a la gare Trilport dans les alentours. On trouve un tennis, deux boulangeries, quatre commerces, un supermarché, un bureau de poste et deux épiceries à quelques minutes à peine.Son prix de vente est de 332 000 €.Contactez notre agence (Alan RUBAL : (Numéro supprimé)) pour plus de renseignements sur la maison ou sur les modalités de vente.Annonce proposée par un Agent Commercial Partenaire.
Trilport
TERRAIN ET MAISONTrilport : maison F7 (120 m²) à vendreMAISON 7 PIÈCES NEUVE – PROCHE DE MEAUXÀ proximité du Transilien P (30 min de Paris), laissez vous charmer par cette maison de 7 pièces de 120 m² et de 356 m² de terrain en vente à Trilport (77470). Son intérieur se divise en quatre chambres, une cuisine et deux salles de bains.Cette maison comporte 2 niveaux. Elle est neuve.Il y a l’École Élémentaire Jacques Prévert, l’École Maternelle Andrée Chedid, l’École Primaire la Charmoye et le Collège le Bois de l’Enclume à moins de 10 minutes à pied. Niveau transports en commun, on trouve la gare Trilport à quelques pas du bien. On trouve un tennis, deux boulangeries, quatre commerces, un supermarché, deux épiceries et un bureau de poste dans les environs.Elle est proposée à l’achat pour 368 000 €.Contactez notre agence (Alan RUBAL : (Numéro supprimé)) pour tout renseignement sur cette maison ou sur les démarches à suivre.Annonce proposée par un Agent Commercial Partenaire.
Mary-sur-Marne
TERRAIN ET MAISONVENTE d’une maison F6 (100 m²) à Mary-sur-MarnePROCHE DE MEAUX – MAISON 6 PIÈCES NEUVEÀ vendre : à côté du Transilien P (gare de Lizy-sur-Ourcq, 45 min de Paris), à Mary-sur-Marne (77440), laissez vous charmer par cette maison de 6 pièces de 100 m² et de 446 m² de terrain.Cette maison compte 2 niveaux. Son intérieur dispose de quatre chambres, d’une cuisine et d’une salle de bains. Cette maison est neuve.L’École Primaire Joseph Kessel se trouve à moins de 10 minutes à pied. Niveau transports en commun, il y a six gares à moins de 10 minutes en voiture. On trouve un tennis et un supermarché à quelques minutes à peine.Elle est à vendre pour la somme de 280 000 €.Prenez contact avec Alan RUBAL ((Numéro supprimé)) pour obtenir de plus amples renseignements sur la maison ou sur les modalités de vente. Maisons France Confort Magny-le-Hongre est là pour vous accompagner dans toutes vos démarches.Annonce proposée par un Agent Commercial Partenaire.
Mary-sur-Marne
TERRAIN ET MAISONMary-sur-Marne : maison de 5 pièces (90 m²) à vendrePROCHE DE MEAUX – MAISON 5 PIÈCES NEUVEÀ deux pas du Transilien P (gare de Lizy-sur-Ourcq, 45 min de Paris), nous sommes heureux de vous présenter à vendre à Mary-sur-Marne (77440), cette maison de 5 pièces de plain-pied de 90 m² et de 446 m² de terrain.Elle propose trois chambres, une cuisine et deux salles de bains. La maison est neuve.L’École Primaire Joseph Kessel est implantée à moins de 10 minutes à pied. Niveau transports, il y a six gares à moins de 10 minutes en voiture. On trouve un tennis et un supermarché dans les environs.Son prix de vente est de 261 000 €.Contactez notre agence (RUBAL Alan : (Numéro supprimé)) pour tout renseignement sur cette maison, sur les démarches à suivre ou sur les modalités de vente.Annonce proposée par un Agent Commercial Partenaire.
Mary-sur-Marne
TERRAIN ET MAISONMary-sur-Marne : maison de 5 pièces (85 m²) à vendreMAISON 5 PIÈCES NEUVE – PROCHE DE MEAUXEn vente : proche de la gare de Lizy-sur-Ourcq (Paris à 45 min par le Transilien P), ayez le coup de coeur pour à Mary-sur-Marne (77440), cette maison de 5 pièces de 85 m² et de 446 m² de terrain.Cette maison comporte 2 niveaux. Son intérieur propose trois chambres, une cuisine et deux salles de bains. Cette maison est neuve.L’École Primaire Joseph Kessel est implantée à moins de 10 minutes à pied. Niveau transports en commun, il y a six gares à moins de 10 minutes en voiture. On trouve un tennis et un supermarché dans les environs.Elle est proposée à l’achat pour 252 000 €.Prenez contact avec notre agence (RUBAL Alan : (Numéro supprimé)) pour tout renseignement sur la maison. Maisons France Confort Magny-le-Hongre est là pour vous accompagner à toutes les étapes de l’achat.Annonce proposée par un Agent Commercial Partenaire.
Mary-sur-Marne
TERRAIN ET MAISONMary-sur-Marne : maison de 7 pièces (160 m²) en venteMAISON 7 PIÈCES NEUVE – PROCHE DE MEAUXÀ vendre : à 800 m de la gare de Lizy-sur-Ourcq (Paris à 45 min avec le Transilien P), nous sommes heureux de vous proposer à Mary-sur-Marne (77440), cette maison de 7 pièces de 160 m² et de 446 m² de terrain. Son intérieur inclut cinq chambres, une cuisine et deux salles de bains.C’est une maison de 2 niveaux. Elle est neuve.Il y a l’École Primaire Joseph Kessel à moins de 10 minutes à pied. Côté transports, on trouve six gares à moins de 10 minutes en voiture. Il y a un tennis et un supermarché à quelques minutes.Son prix de vente est de 387 000 €.Prenez contact avec notre agence (RUBAL Alan : (Numéro supprimé)) pour obtenir de plus amples renseignements sur la maison.Annonce proposée par un Agent Commercial Partenaire.
L’actualité immobilière à Mary-sur-Marne
27/11/2023
02/11/2023
30/10/2023
20/10/2023
16/10/2023
16/10/2023