Maison à construire à Meaux (77100)
Images
Description
Poincy : maison T7 (150 m²) à vendre
PROCHE DE MEAUX - MAISON 7 PIÈCES NEUVE
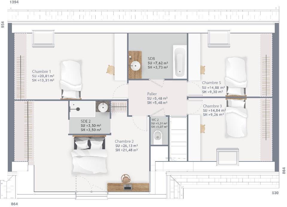
À quelques minutes du Transilien P (gare de Trilport, 30 min de Paris), en vente à Poincy (77470), nous sommes ravis de vous présenter cette maison de 7 pièces de 150 m². Son intérieur est composé de cinq chambres, d'une cuisine et de deux salles de bains.
Le terrain de la propriété est de 815 m².
Il s'agit d'une maison de 2 niveaux. Elle est neuve.
Une école primaire est implantée dans le quartier. Côté transports, il y a cinq gares à moins de 10 minutes en voiture. On trouve un bowling à quelques minutes à peine.
Elle est proposée à l'achat pour 498 700 €.
Contactez Ishane LASLEDJ (tél : (Numéro supprimé)) pour toute question sur cette maison.
Annonce proposée par un Agent Commercial Partenaire.
Logement susceptibles de vous intéresser
Nous vous proposons de découvrir aussi cette sélection de logements situés à moins de 10km de Meaux et qui seraient susceptibles de vous intéresser.
Iverny
TERRAINTerrain idéalement situé à Iverny à 12 minutes de Claye Souilly et 20 minutes aéroport Charles de GaullePrix : 112000 €.Sur ce terrain, réalisez votre projet de construction de maison RE 2020 avec PAVILLONS D'ÎLE-DE-FRANCE (constructeur de maisons de gamme et sur-mesure depuis plus de 50 ans) :- Plan sur-mesure et personnalisé de 2 à 5 chambres- Mode de chauffage au choix- Grands choix d'équipements et de prestations- Matériaux de qualité selon les normes en vigueur- Accompagnement dans le choix et l’acquisition du terrainDemandez une étude gratuite et personnalisée de votre projet de construction sur ce terrain !Contactez Olivier SAMSON au (Numéro supprimé) ou au (Numéro supprimé) (Pavillons d'Île-de-France – Agence de Meaux).Prix hors frais de notaire. Terrain sélectionné et vu pour vous sous réserve de disponibilité et au prix indiqué par notre partenaire foncier. Visuels non contractuels.Cette annonce a été créée et diffusée avec le logiciel VITAHOME.
Varreddes
TERRAINCommune de Varreddes située à 10 minutes de Meaux avec écoles et commerces sur place, transports pour la gare de Meaux.Prix : 120000 €.Sur ce terrain, réalisez votre projet de construction de maison RE 2020 avec PAVILLONS D'ÎLE-DE-FRANCE (constructeur de maisons de gamme et sur-mesure depuis plus de 50 ans) :- Plan sur-mesure et personnalisé de 2 à 5 chambres- Mode de chauffage au choix- Grands choix d'équipements et de prestations- Matériaux de qualité selon les normes en vigueur- Accompagnement dans le choix et l’acquisition du terrainDemandez une étude gratuite et personnalisée de votre projet de construction sur ce terrain !Contactez Olivier SAMSON au (Numéro supprimé) ou au (Numéro supprimé) (Pavillons d'Île-de-France – Agence de Meaux).Prix hors frais de notaire. Terrain sélectionné et vu pour vous sous réserve de disponibilité et au prix indiqué par notre partenaire foncier. Visuels non contractuels.Cette annonce a été créée et diffusée avec le logiciel VITAHOME.
Varreddes
TERRAIN ET MAISONRéalisez votre projet de construction de maison RE 2020 avec PAVILLONS D'ÎLE-DE-FRANCE (constructeur de maisons de gamme et sur-mesure depuis plus de 50 ans) :- Plan sur-mesure et personnalisé de 2 à 5 chambres- Mode de chauffage au choix- Grands choix d'équipements et de prestations- Matériaux de qualité selon les normes en vigueur- Accompagnement dans le choix et l’acquisition du terrainInformations du terrain : Commune de Varreddes située à 10 minutes de Meaux avec écoles et commerces sur place, transports pour la gare de Meaux.Demandez une étude gratuite et personnalisée de votre projet de construction !Contactez Olivier SAMSON au (Numéro supprimé) ou au (Numéro supprimé) (Pavillons d'Île-de-France – Agence de Meaux).Prix avec assurance dommages-ouvrage comprise, hors VRD, terrain non viabilisé, assainissement non compris, frais de notaire non compris, taxes non comprises, frais divers non compris. Terrain sélectionné et vu pour vous sous réserve de disponibilité et au prix indiqué par notre partenaire foncier. Visuels non contractuels.Cette annonce a été créée et diffusée avec le logiciel VITAHOME.
Varreddes
TERRAIN ET MAISONRéalisez votre projet de construction de maison RE 2020 avec PAVILLONS D'ÎLE-DE-FRANCE (constructeur de maisons de gamme et sur-mesure depuis plus de 50 ans) :- Plan sur-mesure et personnalisé de 2 à 5 chambres- Mode de chauffage au choix- Grands choix d'équipements et de prestations- Matériaux de qualité selon les normes en vigueur- Accompagnement dans le choix et l’acquisition du terrainInformations du terrain : Commune de Varreddes située à 10 minutes de Meaux avec écoles et commerces sur place, transports pour la gare de Meaux.Demandez une étude gratuite et personnalisée de votre projet de construction !Contactez Olivier SAMSON au (Numéro supprimé) ou au (Numéro supprimé) (Pavillons d'Île-de-France – Agence de Meaux).Prix avec assurance dommages-ouvrage comprise, hors VRD, terrain non viabilisé, assainissement non compris, frais de notaire non compris, taxes non comprises, frais divers non compris. Terrain sélectionné et vu pour vous sous réserve de disponibilité et au prix indiqué par notre partenaire foncier. Visuels non contractuels.Cette annonce a été créée et diffusée avec le logiciel VITAHOME.
Mareuil-lès-Meaux
TERRAINMareuil-lès-Meaux : terrain de 420 m² en venteIDÉALEMENT SITUÉ – VUE DÉGAGÉEÀ Mareuil-lès-Meaux (77100) à proximité de la gare de Meaux (Paris à 25 min par le Transilien P), donnez vie à la maison de vos rêves sur ce terrain de 420 m². Il profite d’une vue dégagée et bénéficie d’une exposition sud-ouest. Dans un quartier recherché, le terrain idéalement situé est proche des commerces et des écoles. L’École Élémentaire les Hirondelles et l’École Maternelle la Marelle sont implantées à moins de 10 minutes à pied. Côté transports en commun, il y a la station de RER Chessy-Marne-La-Vallée (ligne A) ainsi que huit gares à moins de 10 minutes en voiture. On trouve un tennis et un commerce à proximité.Son prix de vente est de 179 000 €. Prenez contact avec notre agence (NGUYEN Hugo : (Numéro supprimé)) pour tout renseignement sur le terrain. Donnez vie à vos projets immobiliers avec Maisons France Confort Magny-le-Hongre.Annonce proposée par un Agent Commercial Partenaire.
Meaux
TERRAINVENTE d’un terrain de 399 m² à MeauxIDÉALEMENT SITUÉ – VUE DÉGAGÉEÀ Meaux (77100) à côté du Transilien P (25 min de Paris), donnez vie à la maison de vos rêves sur ce terrain de 399 m². Ce terrain, orienté plein nord-est, profite d’une vue dégagée. Dans un quartier recherché, ce terrain idéalement situé est proche des écoles et des commerces. Des établissements scolaires de tous niveaux (de la maternelle au lycée) sont implantés à moins de 10 minutes à pied, tout comme une structure d’accueil pour les enfants en bas âge. Niveau transports en commun, on trouve sept gares à moins de 10 minutes en voiture. Il y a un bassin de natation, un tennis, une bibliothèque, des commerces, trois supermarchés, des boulangeries, un bureau de poste et des boucheries-charcuteries dans les environs. 2 marchés animent les environs.Son prix de vente est de 159 000 €. Contactez Hugo NGUYEN (tél : (Numéro supprimé)) pour toute information sur le terrain, sur les modalités de vente ou sur les démarches à suivre. Maisons France Confort Magny-le-Hongre vous accompagne à toutes les étapes de l’achat et dans tous vos projets immobiliers.Annonce proposée par un Agent Commercial Partenaire.
Vaucourtois
TERRAINVENTE d’un terrain de 494 m² à VaucourtoisPROCHE DE NOISY-LE-GRANDÀ proximité de la gare de Trilport (Paris à 30 min par le Transilien P) à Vaucourtois (77580), terrain de 494 m². Il bénéficie d’une exposition ouest. Une école primaire est implantée dans le quartier. Niveau transports, il y a huit gares à moins de 10 minutes en voiture.Son prix de vente est de 144 000 €. Prenez contact avec notre agence Thomas ROUSSEL TOUATI ((Numéro supprimé)) pour obtenir de plus amples renseignements sur ce terrain. Maisons France Confort Magny-le-Hongre est là pour vous accompagner dans toutes vos démarches.Annonce proposée par un Agent Commercial Partenaire.
Mareuil-lès-Meaux
TERRAIN ET MAISONVENTE d’une maison de 5 pièces (90 m²) à Mareuil-lès-MeauxIDÉALEMENT SITUÉE – MAISON 5 PIÈCES NEUVEProche de la gare de Meaux (Paris à 25 min avec le Transilien P), à vendre idéalement située dans Mareuil-lès-Meaux (77100), nous vous proposons cette maison de 5 pièces de 90 m² et de 420 m² de terrain.Cette maison compte 2 niveaux. Elle comporte trois chambres, une cuisine et une salle de bains. La maison est neuve.Cette maison se trouve dans un quartier convoité. L’École Élémentaire les Hirondelles et l’École Maternelle la Marelle sont implantées à moins de 10 minutes à pied. Niveau transports en commun, on trouve la station de RER Chessy-Marne-La-Vallée (ligne A) ainsi que huit gares à moins de 10 minutes en voiture. Il y a un tennis et un commerce à proximité de la maison.Son prix de vente est de 359 000 €.Contactez notre agence (Hugo NGUYEN : (Numéro supprimé)) pour toute information sur le bien.Annonce proposée par un Agent Commercial Partenaire.
Mareuil-lès-Meaux
TERRAIN ET MAISONMareuil-lès-Meaux : maison de 5 pièces (90 m²) en venteIDÉALEMENT SITUÉE – MAISON 5 PIÈCES NEUVEÀ proximité du Transilien P (gare de Meaux, 25 min de Paris), en vente idéalement située dans Mareuil-lès-Meaux (77100), Maisons France Confort Magny-le-Hongre vous présente cette maison de 5 pièces de 90 m². Elle offre trois chambres, une cuisine et une salle de bains.Le terrain de la propriété s’étend sur 420 m².Cette maison possède 2 niveaux. Elle est neuve.La maison se trouve dans un quartier attractif. L’École Élémentaire les Hirondelles et l’École Maternelle la Marelle sont implantées à moins de 10 minutes à pied. Niveau transports en commun, on trouve la station de RER Chessy-Marne-La-Vallée (ligne A) ainsi que huit gares à moins de 10 minutes en voiture. Il y a un tennis et un commerce dans les environs.Son prix de vente est de 400 000 €.N’hésitez pas à prendre contact avec Hugo NGUYEN ((Numéro supprimé)) pour toute information sur la maison ou sur les modalités de vente.Annonce proposée par un Agent Commercial Partenaire.
L’actualité immobilière à Meaux
27/11/2023
02/11/2023
30/10/2023
20/10/2023
16/10/2023
16/10/2023