Maison à construire à Meaux (77100)
Images
Description
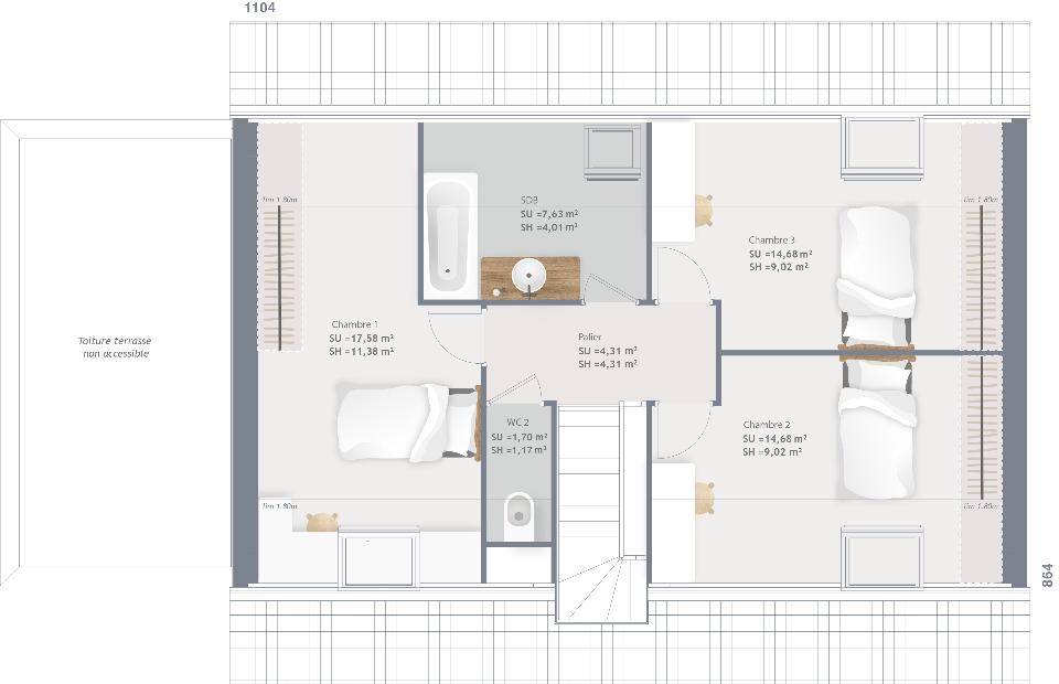
VENTE : maison F6 (115 m²) à Meaux
IDÉALEMENT SITUÉE - MAISON 6 PIÈCES NEUVE
À vendre : proche de la gare (Paris à 25 min par le Transilien P), nous sommes heureux de vous présenter cette maison de 6 pièces de 115 m² et de 565 m² de terrain idéalement située dans Meaux (77100).
C'est une maison de 2 niveaux. Elle inclut quatre chambres, une cuisine et deux salles de bains. La maison est neuve.
La maison se situe dans un quartier attractif. Des écoles (de la maternelle au lycée) se trouvent à moins de 10 minutes à pied, tout comme une crèche. Niveau transports, il y a sept gares à moins de 10 minutes en voiture. On trouve un bassin de natation, un tennis, une bibliothèque, des commerces, trois supermarchés, des boulangeries, un bureau de poste et quatre épiceries à quelques minutes à peine. Enfin, 2 marchés animent le quartier.
Elle est à vendre pour la somme de 400 000 €.
Prenez contact avec notre agence (YAHIAOUI Cedric : (Numéro supprimé)) pour toute question sur la maison ou sur les modalités de vente.
Annonce proposée par un Agent Commercial Partenaire.
Logement susceptibles de vous intéresser
Nous vous proposons de découvrir aussi cette sélection de logements situés à moins de 10km de Meaux et qui seraient susceptibles de vous intéresser.
 
  
 
 Couilly-Pont-aux-Dames
TERRAINVenez découvrir ce terrain constructible en plein centre ville de Couilly, proche de son église et de la mairie, dans un secteur calme et à proximité des espaces verts en 2e position (drapeau).Entièrement cloturé, sur un surface totale de 1032m dont 807m de constructible avec une façade de 25m;une profondeur de 31m, piscinable, possibilité de construire une maison de plein pied de 250m au sol.Etude de sol G2/AVP déja réalisée, et possibilités d’implantations.Il vous reste à découvrir cet emplacement et voir votre faisabilité.Contactez moi aux (Numéro supprimé), Flora Lemaitre mandataire immobilier LFimmoAnnonce publiée par Christine Hamelin Alexandre (EI) votre agent commercial en immobilier LF immo à Coupvray, 77700 immatriculé au RSAC de Meaux sous le n(Numéro supprimé) 000 19. Consultez nos tarifs sur le site LF immo.Les informations sur les risques auxquels ce bien est exposé sont disponibles sur le site Géorisques : www.georisques.gouv.fr.
 
  
 
 Meaux
TERRAINMeaux : terrain de 565 m² à vendreIDÉALEMENT SITUÉÀ Meaux (77100) proche du Transilien P (25 min de Paris), venez découvrir ce terrain de 565 m². Dans un secteur recherché, le terrain idéalement situé est proche des écoles et des commerces. Il y a tous les types d’établissements scolaires à moins de 10 minutes à pied, tout comme une structure d’accueil pour les enfants en bas âge. Côté transports, on trouve sept gares à moins de 10 minutes en voiture. Il y a un bassin de natation, un tennis, une bibliothèque, des commerces, trois supermarchés, des boulangeries, un bureau de poste et quatre épiceries à proximité. 2 marchés animent le quartier.Il est proposé à l’achat pour 180 000 €. Contactez Cedric YAHIAOUI (tél : (Numéro supprimé)) pour toute information sur ce terrain. Maisons France Confort Magny-le-Hongre vous accompagne à toutes les étapes de l’achat et dans toutes vos démarches.Annonce proposée par un Agent Commercial Partenaire.
 
  
 
 Meaux
TERRAIN ET MAISONVENTE d’une maison F5 (90 m²) à MeauxIDÉALEMENT SITUÉE – MAISON 5 PIÈCES NEUVEÀ vendre : proche du Transilien P (25 min de Paris), Maisons France Confort Magny-le-Hongre vous propose cette maison de 5 pièces de plain-pied de 90 m² et de 565 m² de terrain idéalement située dans Meaux (77100).Son intérieur propose trois chambres, une cuisine et une salle de bains. La maison est neuve.Cette propriété se trouve dans un secteur convoité. Il y a des écoles de tous types (de la maternelle au lycée) à moins de 10 minutes à pied, tout comme une crèche. Côté transports en commun, on trouve sept gares à moins de 10 minutes en voiture. Il y a un bassin de natation, un tennis, une bibliothèque, des commerces, trois supermarchés, des boulangeries, quatre épiceries et des boucheries-charcuteries à proximité. 2 marchés animent le quartier.Elle est à vendre pour la somme de 340 000 €.Prenez contact avec notre agence (Cedric YAHIAOUI : (Numéro supprimé)) pour obtenir de plus amples renseignements sur la maison ou sur les modalités de vente. Maisons France Confort Magny-le-Hongre est là pour vous accompagner dans toutes vos démarches.Annonce proposée par un Agent Commercial Partenaire.
 
  
 
 Meaux
TERRAIN ET MAISONMaison de 5 pièces (90 m²) en vente à MeauxIDÉALEMENT SITUÉE – MAISON 5 PIÈCES NEUVEÀ deux pas du Transilien P (25 min de Paris), Maisons France Confort Magny-le-Hongre vous propose cette maison de 5 pièces de 90 m² en vente idéalement située dans Meaux (77100). Elle compte trois chambres, une cuisine et une salle de bains.Le terrain de cette maison s’étend sur 565 m².Il s’agit d’une maison de 2 niveaux. Elle est neuve.La maison se trouve dans un quartier convoité. Il y a des établissements scolaires de tous types à moins de 10 minutes à pied, tout comme une crèche. Niveau transports en commun, on trouve sept gares à moins de 10 minutes en voiture. Il y a un bassin de natation, un tennis, une bibliothèque, des commerces, trois supermarchés, des boulangeries, quatre épiceries et un bureau de poste à proximité du bien. 2 marchés animent les environs.Elle est proposée à l’achat pour 355 000 €.Prenez contact avec Cedric YAHIAOUI ((Numéro supprimé)) pour toute information sur la maison. Maisons France Confort Magny-le-Hongre est là pour vous accompagner à toutes les étapes de votre projet.Annonce proposée par un Agent Commercial Partenaire.
 
  
 
 Meaux
TERRAIN ET MAISONMeaux : maison de 6 pièces (105 m²) en venteIDÉALEMENT SITUÉE – MAISON 6 PIÈCES NEUVEÀ vendre : à proximité du Transilien P (25 min de Paris), notre agence Maisons France Confort Magny-le-Hongre est heureuse de vous proposer cette maison de 6 pièces de plain-pied de 105 m² et de 565 m² de terrain idéalement située dans Meaux (77100). Son intérieur se divise en quatre chambres, une cuisine et deux salles de bains.Cette maison est neuve.La maison est située dans un quartier prisé. Il y a tous les types d’établissements scolaires (maternelle, élémentaire et secondaire) à moins de 10 minutes à pied, tout comme une structure d’accueil pour les enfants en bas âge. Niveau transports en commun, on trouve sept gares à moins de 10 minutes en voiture. Il y a un bassin de natation, un tennis, une bibliothèque, des commerces, trois supermarchés, des boulangeries, des boucheries-charcuteries et quatre épiceries dans les environs. 2 marchés animent les environs.Son prix de vente est de 385 000 €.Contactez notre constructeur (YAHIAOUI Cedric : (Numéro supprimé)) pour obtenir de plus amples renseignements sur la maison, sur les démarches à suivre ou sur les modalités de vente. Faites de vos projets immobiliers une réalité avec Maisons France Confort Magny-le-Hongre.Annonce proposée par un Agent Commercial Partenaire.
 
  
 
 Meaux
TERRAIN ET MAISONMeaux : maison de 8 pièces (145 m²) à vendreIDÉALEMENT SITUÉE – MAISON 8 PIÈCES NEUVEÀ deux pas de la gare (Paris à 25 min par le Transilien P), nous vous proposons en vente, idéalement située dans Meaux (77100), cette maison de 8 pièces de 145 m² et de 565 m² de terrain. Son intérieur dispose de six chambres, d’une cuisine et de deux salles de bains.Il s’agit d’une maison de 2 niveaux. Elle est neuve.La maison se trouve dans un quartier recherché. Il y a des établissements scolaires de tous niveaux (de la maternelle au lycée) à moins de 10 minutes à pied, tout comme une crèche. Niveau transports en commun, on trouve sept gares à moins de 10 minutes en voiture. Il y a un bassin de natation, un tennis, une bibliothèque, des commerces, trois supermarchés, des boulangeries, quatre épiceries et des boucheries-charcuteries à quelques minutes du logement. Enfin, 2 marchés animent le quartier.Son prix de vente est de 435 000 €.Contactez notre agence (YAHIAOUI Cedric : (Numéro supprimé)) pour plus d’informations sur la maison ou sur les démarches à suivre. Maisons France Confort Magny-le-Hongre est là pour vous accompagner à toutes les étapes de l’achat.Annonce proposée par un Agent Commercial Partenaire.
 
  
 
 Meaux
TERRAIN ET MAISONVENTE : maison F6 (115 m²) à MeauxIDÉALEMENT SITUÉE – MAISON 6 PIÈCES NEUVEÀ vendre : proche de la gare (Paris à 25 min par le Transilien P), nous sommes heureux de vous présenter cette maison de 6 pièces de 115 m² et de 565 m² de terrain idéalement située dans Meaux (77100).C’est une maison de 2 niveaux. Elle inclut quatre chambres, une cuisine et deux salles de bains. La maison est neuve.La maison se situe dans un quartier attractif. Des écoles (de la maternelle au lycée) se trouvent à moins de 10 minutes à pied, tout comme une crèche. Niveau transports, il y a sept gares à moins de 10 minutes en voiture. On trouve un bassin de natation, un tennis, une bibliothèque, des commerces, trois supermarchés, des boulangeries, un bureau de poste et quatre épiceries à quelques minutes à peine. Enfin, 2 marchés animent le quartier.Elle est à vendre pour la somme de 400 000 €.Prenez contact avec notre agence (YAHIAOUI Cedric : (Numéro supprimé)) pour toute question sur la maison ou sur les modalités de vente.Annonce proposée par un Agent Commercial Partenaire.
 
  
 
 Meaux
TERRAIN ET MAISONMeaux : maison T6 (100 m²) à vendreIDÉALEMENT SITUÉE – MAISON 6 PIÈCES NEUVEÀ proximité du Transilien P (25 min de Paris), notre agence Maisons France Confort Magny-le-Hongre est ravie de vous proposer cette maison de 6 pièces de 100 m² et de 565 m² de terrain en vente idéalement située dans Meaux (77100). Elle inclut quatre chambres, une cuisine et une salle de bains.Cette maison compte 2 niveaux. Elle est neuve.La maison se situe dans un quartier attractif. Il y a des établissements scolaires (de la maternelle au lycée) à moins de 10 minutes à pied, tout comme une crèche. Niveau transports, on trouve sept gares à moins de 10 minutes en voiture. Il y a un bassin de natation, un tennis, une bibliothèque, des commerces, trois supermarchés, des boulangeries, quatre épiceries et des boucheries-charcuteries dans les environs. Enfin, 2 marchés animent les environs.Elle est à vendre pour la somme de 385 000 €.Prenez contact avec Cedric YAHIAOUI (tél : (Numéro supprimé)) pour toute question sur la maison, sur les démarches à suivre ou sur les modalités de vente. Maisons France Confort Magny-le-Hongre est là pour vous accompagner dans tous vos projets immobiliers.Annonce proposée par un Agent Commercial Partenaire.
 
  
 
 Meaux
TERRAIN ET MAISONMeaux : maison F5 (80 m²) en venteIDÉALEMENT SITUÉE – MAISON 5 PIÈCES NEUVEAu pied de la gare (Paris à 25 min avec le Transilien P), votre agence Maisons France Confort Magny-le-Hongre est ravie de vous proposer cette maison de 5 pièces de 80 m² et de 565 m² de terrain idéalement située dans Meaux (77100).Cette maison comporte 2 niveaux. Son intérieur propose trois chambres, une cuisine et une salle de bains. Cette maison est neuve.Cette maison est située dans un quartier recherché. Des établissements scolaires de tous types se trouvent à moins de 10 minutes à pied, tout comme une crèche. Niveau transports en commun, il y a sept gares à moins de 10 minutes en voiture. On trouve un bassin de natation, un tennis, une bibliothèque, des commerces, trois supermarchés, des boulangeries, des boucheries-charcuteries et un bureau de poste à proximité du bien. Enfin, 2 marchés animent les environs.Elle est à vendre pour la somme de 369 000 €.Prenez contact avec notre agence (Cedric YAHIAOUI : (Numéro supprimé)) pour plus d’informations sur la maison ou sur les modalités de vente.Annonce proposée par un Agent Commercial Partenaire.
L’actualité immobilière à Meaux
 27/11/2023
 
 27/11/2023
 
  02/11/2023
 
 02/11/2023
 
  30/10/2023
 
 30/10/2023
 
  20/10/2023
 
 20/10/2023
 
  16/10/2023
 
 16/10/2023
 
  16/10/2023
 
 16/10/2023
 
  
 
 
 
 
 
  
  
  
  
 