Maison à construire à Montceaux-lès-Meaux (77470)
Images
Description
VENTE : maison F7 (150 m²) à Montceaux-lès-Meaux
PROCHE DE MEAUX - MAISON 7 PIÈCES NEUVE
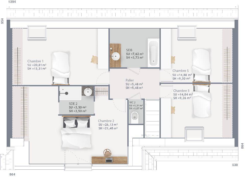
Proche de la gare de Trilport (Paris à 30 min par le Transilien P), en vente à Montceaux-lès-Meaux (77470), Maisons France Confort Magny-le-Hongre vous propose cette maison de 7 pièces de 150 m² et de 827 m² de terrain. Elle inclut cinq chambres, une cuisine et deux salles de bains.
Il s'agit d'une maison de 2 niveaux. Elle est neuve.
Il y a l'École Primaire le Chat Perché à moins de 10 minutes à pied. Niveau transports en commun, on trouve cinq gares à moins de 10 minutes en voiture.
Elle est à vendre pour la somme de 390 000 €.
Contactez notre agence (YAHIAOUI Cedric : (Numéro supprimé)) pour toute question sur cette maison, sur les démarches à suivre ou sur les modalités de vente. Faites de vos projets immobiliers une réalité avec Maisons France Confort Magny-le-Hongre.
Annonce proposée par un Agent Commercial Partenaire.
Logement susceptibles de vous intéresser
Nous vous proposons de découvrir aussi cette sélection de logements situés à moins de 10km de Montceaux-lès-Meaux et qui seraient susceptibles de vous intéresser.
Mary-sur-Marne
TERRAIN ET MAISONVENTE : maison de 4 pièces (78 m²) à Mary-sur-MarneParis à 45 min (Transilien P, Lizy-sur-Ourcq) – À découvrir bénéficiant d’un emplacement d’exception dans Mary-sur-Marne (77440) : maison neuve 4 pièces en vente. 2 niveaux, surface de 78 m² sur 446 m² de terrain. Son intérieur est composé de trois chambres, d’une cuisine et d’une salle de bains.À proximité : gares, École Primaire Joseph Kessel, tennis et supermarché. Meaux à 11 km.Le prix de vente de cette maison de 4 pièces est de 263 900 €.Prenez contact avec notre agence (KANOR Steeve : (Numéro supprimé)) pour toute information sur la maison. Maisons Evolution Tigery est là pour vous accompagner dans toutes vos démarches.Annonce proposée par un Agent Commercial Partenaire.
Mary-sur-Marne
TERRAIN ET MAISONMaison F4 (60 m²) en vente à Mary-sur-MarneParis à 45 min (Transilien P, Lizy-sur-Ourcq) – Bénéficiant d’un emplacement d’exception dans Mary-sur-Marne (77440), maison neuve en vente de 4 pièces, 60 m² de surface sur 446 m² de terrain. Son intérieur comporte deux chambres, une cuisine et une salle de bains.À proximité : gares, École Primaire Joseph Kessel, tennis et supermarché. Meaux à 11 km.Le prix de vente de cette maison de 4 pièces est de 234 900 €.Prenez contact avec notre agence (KANOR Steeve : (Numéro supprimé)) pour plus d’informations sur la maison ou sur les modalités de vente. Maisons Evolution Tigery est là pour vous accompagner dans tous vos projets immobiliers.Annonce proposée par un Agent Commercial Partenaire.
Mary-sur-Marne
TERRAIN ET MAISONVENTE d’une maison F6 (114 m²) à Mary-sur-MarneParis à 45 min (Transilien P, Lizy-sur-Ourcq) – Bénéficiant d’un emplacement privilégié dans Mary-sur-Marne (77440), maison neuve en vente de 6 pièces, 2 niveaux, 114 m² sur 446 m² de terrain. Elle comporte cinq chambres, une cuisine et deux salles de bains.Proche gares, École Primaire Joseph Kessel, tennis et supermarché. Meaux à 11 km.Le prix de vente de cette maison de 6 pièces est de 437 850 €.N’hésitez pas à prendre contact avec notre agence (Steeve KANOR : (Numéro supprimé)) pour toute information sur la maison ou sur les démarches à suivre. Maisons Evolution Tigery est là pour vous accompagner à toutes les étapes de votre projet.Annonce proposée par un Agent Commercial Partenaire.
Mary-sur-Marne
TERRAINTerrain de 446 m² à vendre à Mary-sur-MarneParis à 45 min (Transilien P, Lizy-sur-Ourcq) – Terrain de 446 m² en vente, bénéficiant d’un emplacement privilégié dans Mary-sur-Marne (77440).À dix minutes : gares, École Primaire Joseph Kessel, tennis et supermarché. Meaux à 11 km.Il est proposé à l’achat pour 99 000 €. Prenez contact avec Steeve KANOR (tél : (Numéro supprimé)) pour plus d’informations sur le terrain, sur les modalités de vente ou sur les démarches à suivre. Maisons Evolution Tigery est là pour vous accompagner à toutes les étapes de votre projet.Annonce proposée par un Agent Commercial Partenaire.
Mary-sur-Marne
TERRAIN ET MAISONMary-sur-Marne : maison de 4 pièces (104 m²) en venteParis à 45 min (Transilien P, Lizy-sur-Ourcq) – Bénéficiant d’un emplacement d’exception dans Mary-sur-Marne (77440), maison neuve en vente de 4 pièces, 2 niveaux, 104 m² sur 464 m² de terrain. Son intérieur est composé de trois chambres, d’une cuisine et d’une salle de bains.Proche gares, École Primaire Joseph Kessel, tennis et supermarché. Meaux à 11 km.Cette maison de 4 pièces est proposée à l’achat pour 341 900 €.Contactez Steeve KANOR ((Numéro supprimé)) pour tout renseignement sur la maison. Faites de vos projets immobiliers une réalité avec Maisons Evolution Tigery.Annonce proposée par un Agent Commercial Partenaire.
Vaucourtois
TERRAIN ET MAISONMaison F5 (90 m²) en vente à VaucourtoisMAISON 5 PIÈCES NEUVEÀ côté de la gare de Trilport (Paris à 30 min avec le Transilien P), en vente à Vaucourtois (77580), ayez le coup de coeur pour cette maison de 5 pièces de 90 m².Cette maison comporte 2 niveaux. Son intérieur est composé de trois chambres, d’une cuisine et d’une salle de bains. Cette maison est neuve.Le terrain de la propriété est de 777 m².On trouve une école primaire dans le quartier. Niveau transports, il y a huit gares à moins de 10 minutes en voiture.Son prix de vente est de 312 000 €.Prenez contact avec notre agence (Alan RUBAL : (Numéro supprimé)) pour obtenir de plus amples renseignements sur la maison, sur les démarches à suivre ou sur les modalités de vente. Donnez vie à vos projets immobiliers avec Maisons France Confort Magny-le-Hongre.Annonce proposée par un Agent Commercial Partenaire.
Vaucourtois
TERRAIN ET MAISONMaison de 5 pièces (90 m²) à vendre à VaucourtoisMAISON 5 PIÈCES NEUVE – PROCHE DE NOISY-LE-GRANDEn vente : à côté du Transilien P (gare de Trilport, 30 min de Paris), nous sommes heureux de vous présenter cette maison de 5 pièces de 90 m² et de 777 m² de terrain à Vaucourtois (77580).Cette maison compte 2 niveaux. Son intérieur propose trois chambres, une cuisine et une salle de bains. La maison est neuve.Il y a une école primaire dans le quartier. Niveau transports en commun, on trouve huit gares à moins de 10 minutes en voiture.Son prix de vente est de 312 000 €.N’hésitez pas à prendre contact avec notre agence (RUBAL Alan : (Numéro supprimé)) pour obtenir de plus amples informations sur cette maison ou sur les démarches à suivre.Annonce proposée par un Agent Commercial Partenaire.
Vaucourtois
TERRAIN ET MAISONVENTE : maison F5 (90 m²) à VaucourtoisMAISON 5 PIÈCES NEUVE – PROCHE DE NOISY-LE-GRANDEn vente : à côté du Transilien P (gare de Trilport, 30 min de Paris), à Vaucourtois (77580), nous sommes heureux de vous proposer cette maison de 5 pièces de plain-pied de 90 m² et de 777 m² de terrain. Conçue de plain-pied, elle propose trois chambres, une cuisine et deux salles de bains.La maison est neuve.Une école primaire est implantée dans le quartier. Niveau transports, il y a huit gares à moins de 10 minutes en voiture.Elle est proposée à l’achat pour 312 000 €.N’hésitez pas à prendre contact avec notre agence (Alan RUBAL : (Numéro supprimé)) pour obtenir de plus amples informations sur cette maison.Annonce proposée par un Agent Commercial Partenaire.
Vaucourtois
TERRAIN ET MAISONVaucourtois : maison F7 (120 m²) à vendreMAISON 7 PIÈCES NEUVEÀ vendre : au pied du Transilien P (gare de Trilport, 30 min de Paris), à Vaucourtois (77580), nous vous présentons cette maison de 7 pièces de 120 m².Cette maison possède 2 niveaux. Son intérieur comporte cinq chambres, une cuisine et deux salles de bains. Cette maison est neuve.Le terrain du bien est de 777 m².Une école primaire est implantée dans le quartier. Niveau transports, il y a huit gares à moins de 10 minutes en voiture.Elle est à vendre pour la somme de 371 000 €.Contactez Alan RUBAL ((Numéro supprimé)) pour tout renseignement sur la propriété. Maisons France Confort Magny-le-Hongre vous accompagne dans toutes vos démarches et à toutes les étapes de votre projet.Annonce proposée par un Agent Commercial Partenaire.
L’actualité immobilière à Montceaux-lès-Meaux
27/11/2023
02/11/2023
30/10/2023
20/10/2023
16/10/2023
16/10/2023