Maison à construire à Montgé-en-Goële (77230)
Images
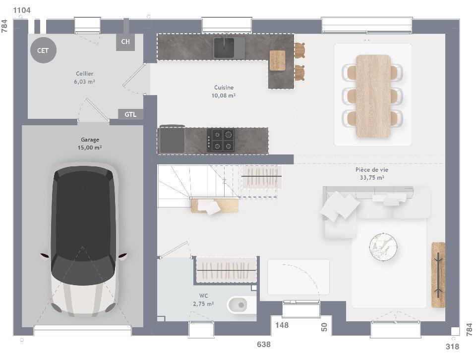
Description
VENTE d'une maison de 5 pièces (90 m²) à Montgé-en-Goële
PROCHE GARE - MAISON 5 PIÈCES NEUVE
En vente : à proximité du Transilien K (gare de Dammartin-Juilly-Saint-Mard, 30 min de Paris), venez découvrir cette maison de 5 pièces de 90 m² dans Montgé-en-Goële (77230), proche de la gare. Son intérieur se divise en trois chambres, une cuisine et une salle de bains.
Le terrain de la propriété s'étend sur 526 m².
Cette maison possède 2 niveaux. Elle est neuve.
Il y a une école maternelle dans le quartier. Côté transports, on trouve la station de RER Mitry-Claye (ligne B) ainsi que cinq gares à moins de 10 minutes en voiture. Il y a un tennis et une boucherie-charcuterie à quelques minutes du logement.
Son prix de vente est de 330 000 €.
Contactez Cedric YAHIAOUI ((Numéro supprimé)) pour toute information sur la maison ou sur les modalités de vente.
Annonce proposée par un Agent Commercial Partenaire.
Logement susceptibles de vous intéresser
Nous vous proposons de découvrir aussi cette sélection de logements situés à moins de 10km de Montgé-en-Goële et qui seraient susceptibles de vous intéresser.

Dammartin-en-Goële
TERRAINVotre conseillère MONTES Maite vous propose un terrain à bâtir à Dammartin-en-Goële, emplacement idéal entre ville et campagne !A la recherche du cadre parfait pour construire la maison de vos rêves . Découvrez ce terrain à bâtir situé à Dammartin-en-Goële, une commune prisée offrant le juste équilibre entre tranquillité rurale et proximité urbaine.Environnement calme et verdoyant, au coeur de la ville mais à l’esprit rural. A proximité des commodités : commerces, écoles, collège et lycée. Accès rapide à la N2 pour faciliter vos déplacements.A seulement quelques minutes de la gare de Saint-Mard, avec une liaison directe vers Paris Gare du Nord en 30 minutes.Le Terrain idéale pour un projet résidentiel, en zone constructible.Vendu au prix de 155 990 euros (honoraires à la charge du vendeur) Ne laissez pas passer cette opportunité rare ! Ce terrain réunit tous les atouts pour un cadre de vie agréable et pratique.Pour visiter et vous accompagner dans votre projet, contactez Maïté MONTES, au (Numéro supprimé) ou, par courriel à (Email supprimé).Selon l’article L.561.5 du Code Monétaire et Financier, pour l’organisation de la visite, la présentation d’une pièce d’identité vous sera demandée.Cette présente annonce a été rédigée sous la responsabilité éditoriale de Maïté MONTES agissant sous le statut d’agent commercial immatriculé au RSAC MEAUX 334 882 800 auprès de SAS PROPRIETES PRIVEES, au capital de 44 920 euros, ZAC LE CHÊNE FERRÉ – 44 ALLÉE DES CINQ CONTINENTS 44120 VERTOU; SIRET 487 624 777 00040, RCS Nantes. Carte Professionnelle Transactions sur immeubles et fonds de commerce (T) et Gestion immobilière (G) n°CPI 4401 2016 000 010 388 délivrée par la CCI Nantes – Saint Nazaire. Compte séquestre n(Numéro supprimé)67 BPA SAINT-SEBASTIEN-SUR-LOIRE (44230). Garantie GALIAN-SMABTP – 89 rue de la Boétie, 75008 Paris – n°28137 J pour 2 000 000 euros pour T et 120 000 euros pour G. Assurance responsabilité civile professionnelle par GALIAN-SMABTP n° de police 28137.JMandat réf : 401946 – Le professionnel conseille et sécurise votre projet immobilier.Les informations sur les risques auxquels ce bien est exposé sont disponibles sur le site Géorisques : www. georisques. gouv. fr Maïté MONTES (EI) Agent Commercial – Numéro RSAC : MEAUX 334 882 800 – .

Montgé-en-Goële
TERRAINVENTE : terrain de 526 m² à Montgé-en-GoëlePROCHE GARE – PROCHE DE SAINT-DENISGrand terrain à quelques minutes du Transilien K (gare de Dammartin-Juilly-Saint-Mard, 30 min de Paris). De 526 m², ce terrain se situe dans Montgé-en-Goële (77230), proche de la gare. Une école maternelle est implantée dans le quartier. Niveau transports, on trouve la station de RER Mitry-Claye (ligne B) ainsi que cinq gares à moins de 10 minutes en voiture. Il y a un tennis et une boucherie-charcuterie à quelques minutes.Il est à vendre pour la somme de 149 000 €. Contactez Cedric YAHIAOUI (tél : (Numéro supprimé)) pour tout renseignement sur ce terrain, sur les modalités de vente ou sur les démarches à suivre. Maisons France Confort Magny-le-Hongre est là pour vous accompagner dans tous vos projets immobiliers.Annonce proposée par un Agent Commercial Partenaire.

Montgé-en-Goële
TERRAIN ET MAISONVENTE : maison T5 (95 m²) à Montgé-en-GoëlePROCHE GARE – MAISON 5 PIÈCES NEUVEÀ côté de la gare de Dammartin-Juilly-Saint-Mard (Paris à 30 min avec le Transilien K), nous vous présentons cette maison de 5 pièces de plain-pied de 95 m² dans Montgé-en-Goële (77230), proche de la gare.Son intérieur se divise en trois chambres, une cuisine et deux salles de bains. Cette maison est neuve.Le terrain de la propriété est de 526 m².Une école maternelle est implantée dans le quartier. Niveau transports, il y a la station de RER Mitry-Claye (ligne B) ainsi que cinq gares à moins de 10 minutes en voiture. On trouve un tennis et une boucherie-charcuterie à quelques minutes du bien.Elle est à vendre pour la somme de 320 000 €.Prenez contact avec Cedric YAHIAOUI ((Numéro supprimé)) pour tout renseignement sur la maison, sur les modalités de vente ou sur les démarches à suivre. Maisons France Confort Magny-le-Hongre vous accompagne dans tous vos projets immobiliers et à toutes les étapes de l’achat.Annonce proposée par un Agent Commercial Partenaire.

Montgé-en-Goële
TERRAIN ET MAISONVENTE : maison de 6 pièces (106 m²) à Montgé-en-GoëlePROCHE GARE – MAISON 6 PIÈCES NEUVEEn vente : à quelques minutes du Transilien K (gare de Dammartin-Juilly-Saint-Mard, 30 min de Paris), dans Montgé-en-Goële (77230), proche de la gare, nous sommes ravis de vous présenter cette maison de 6 pièces de plain-pied de 106 m² et de 526 m² de terrain. Son intérieur compte quatre chambres, une cuisine et deux salles de bains.La maison est neuve.Il y a une école maternelle dans le quartier. Niveau transports, on trouve la station de RER Mitry-Claye (ligne B) ainsi que cinq gares à moins de 10 minutes en voiture. On trouve un tennis et une boucherie-charcuterie à proximité.Elle est proposée à l’achat pour 348 000 €.Contactez Cedric YAHIAOUI (tél : (Numéro supprimé)) pour toute information sur la maison, sur les démarches à suivre ou sur les modalités de vente. Maisons France Confort Magny-le-Hongre est là pour vous accompagner dans tous vos projets immobiliers.Annonce proposée par un Agent Commercial Partenaire.

Montgé-en-Goële
TERRAIN ET MAISONVENTE d’une maison de 5 pièces (90 m²) à Montgé-en-GoëlePROCHE GARE – MAISON 5 PIÈCES NEUVEÀ côté de la gare de Dammartin-Juilly-Saint-Mard (Paris à 30 min par le Transilien K), nous sommes heureux de vous présenter cette maison de 5 pièces de plain-pied de 90 m² et de 526 m² de terrain à vendre, dans Montgé-en-Goële (77230), proche de la gare.Conçue de plain-pied, elle comporte trois chambres, une cuisine et deux salles de bains. La maison est neuve.Une école maternelle est implantée dans le quartier. Niveau transports, il y a la station de RER Mitry-Claye (ligne B) ainsi que cinq gares à moins de 10 minutes en voiture. On trouve un tennis et une boucherie-charcuterie à quelques minutes.Son prix de vente est de 320 000 €.Contactez notre agence (YAHIAOUI Cedric : (Numéro supprimé)) pour toute information sur la propriété, sur les modalités de vente ou sur les démarches à suivre. Maisons France Confort Magny-le-Hongre est là pour vous accompagner à toutes les étapes de l’achat.Annonce proposée par un Agent Commercial Partenaire.

Montgé-en-Goële
TERRAIN ET MAISONMaison T8 (155 m²) à vendre à Montgé-en-GoëlePROCHE GARE – MAISON 8 PIÈCES NEUVEEn vente : au pied de la gare de Dammartin-Juilly-Saint-Mard (Paris à 30 min par le Transilien K), votre agence Maisons France Confort Magny-le-Hongre est ravie de vous proposer cette maison de 8 pièces de 155 m² dans Montgé-en-Goële (77230), proche de la gare.Cette maison possède 2 niveaux. Elle propose cinq chambres, une cuisine et deux salles de bains. La maison est neuve.Le terrain du bien est de 526 m².Il y a une école maternelle dans le quartier. Niveau transports en commun, on trouve la station de RER Mitry-Claye (ligne B) ainsi que cinq gares à moins de 10 minutes en voiture. Il y a un tennis et une boucherie-charcuterie dans les environs.Son prix de vente est de 385 000 €.Prenez contact avec Cedric YAHIAOUI (tél : (Numéro supprimé)) pour obtenir de plus amples renseignements sur la maison ou sur les modalités de vente. Maisons France Confort Magny-le-Hongre est là pour vous accompagner à toutes les étapes de l’achat.Annonce proposée par un Agent Commercial Partenaire.

Montgé-en-Goële
TERRAIN ET MAISONVENTE d’une maison de 5 pièces (90 m²) à Montgé-en-GoëlePROCHE GARE – MAISON 5 PIÈCES NEUVEEn vente : à proximité du Transilien K (gare de Dammartin-Juilly-Saint-Mard, 30 min de Paris), venez découvrir cette maison de 5 pièces de 90 m² dans Montgé-en-Goële (77230), proche de la gare. Son intérieur se divise en trois chambres, une cuisine et une salle de bains.Le terrain de la propriété s’étend sur 526 m².Cette maison possède 2 niveaux. Elle est neuve.Il y a une école maternelle dans le quartier. Côté transports, on trouve la station de RER Mitry-Claye (ligne B) ainsi que cinq gares à moins de 10 minutes en voiture. Il y a un tennis et une boucherie-charcuterie à quelques minutes du logement.Son prix de vente est de 330 000 €.Contactez Cedric YAHIAOUI ((Numéro supprimé)) pour toute information sur la maison ou sur les modalités de vente.Annonce proposée par un Agent Commercial Partenaire.

Montgé-en-Goële
TERRAIN ET MAISONMaison de 6 pièces (106 m²) en vente à Montgé-en-GoëlePROCHE GARE – MAISON 6 PIÈCES NEUVEÀ vendre : proche de la gare de Dammartin-Juilly-Saint-Mard (Paris à 30 min avec le Transilien K), ayez le coup de coeur pour cette maison de 6 pièces de plain-pied de 106 m² dans Montgé-en-Goële (77230), proche de la gare.Conçue de plain-pied, elle comporte quatre chambres, une cuisine et deux salles de bains. La maison est neuve.Le terrain du bien est de 526 m².On trouve une école maternelle dans le quartier. Niveau transports, il y a la station de RER Mitry-Claye (ligne B) ainsi que cinq gares à moins de 10 minutes en voiture. On trouve un tennis et une boucherie-charcuterie à quelques minutes du logement.Son prix de vente est de 348 000 €.Contactez Cedric YAHIAOUI ((Numéro supprimé)) pour toute information sur la maison, sur les démarches à suivre ou sur les modalités de vente.Annonce proposée par un Agent Commercial Partenaire.

Montgé-en-Goële
TERRAIN ET MAISONMontgé-en-Goële : maison F7 (150 m²) à vendrePROCHE GARE – MAISON 7 PIÈCES NEUVEÀ proximité du Transilien K (gare de Dammartin-Juilly-Saint-Mard, 30 min de Paris), Maisons France Confort Magny-le-Hongre vous présente cette maison de 7 pièces de 150 m² et de 526 m² de terrain proche de la gare de Montgé-en-Goële (77230).Cette maison compte 2 niveaux. Elle dispose de cinq chambres, d’une cuisine et de deux salles de bains. La maison est neuve.Il y a une école maternelle dans le quartier. Niveau transports en commun, on trouve la station de RER Mitry-Claye (ligne B) ainsi que cinq gares à moins de 10 minutes en voiture. Il y a un tennis et une boucherie-charcuterie dans les environs.Elle est à vendre pour la somme de 395 000 €.Prenez contact avec notre agence (YAHIAOUI Cedric : (Numéro supprimé)) pour tout renseignement sur la propriété, sur les modalités de vente ou sur les démarches à suivre. Maisons France Confort Magny-le-Hongre vous accompagne à toutes les étapes de l’achat et dans tous vos projets immobiliers.Annonce proposée par un Agent Commercial Partenaire.
L’actualité immobilière à Montgé-en-Goële





