Terrain à vendre

274438 €
100 m²
Moret-Loing-et-Orvanne
Seine-et-Marne (77)
TERRAIN ET MAISON
Réf externe: 4870922
Annonce publiée le 5 novembre 2025

Images

Description

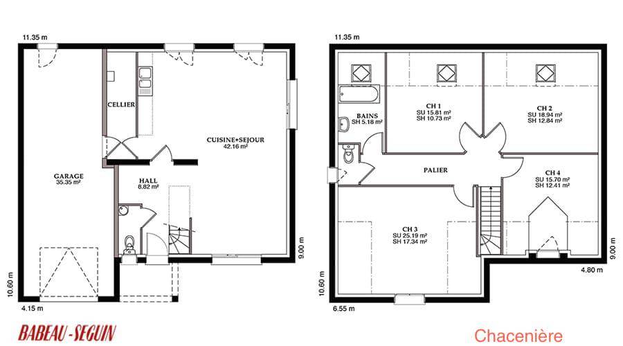
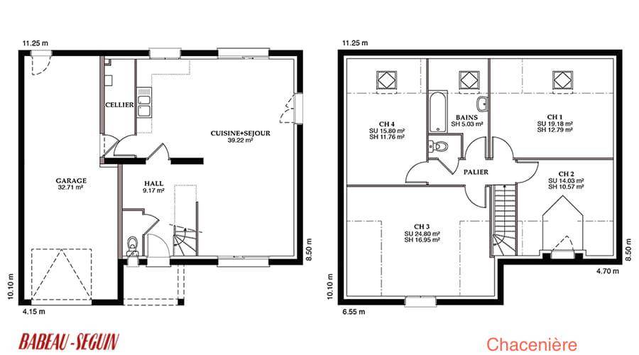
Sur ce terrain, nous vous proposons cette maison neuve : la Chacenière, un modèle de 100 m² conçu par Babeau-Seguin, constructeur reconnu pour offrir le meilleur rapport qualité/prix du marché.

Cette maison en L, à la fois originale et accueillante, dispose de 4 chambres et de 4 pièces, offrant ainsi tout l'espace nécessaire pour une vie familiale confortable. L'étage est composé d'un plancher avec une dalle étage en béton, garantissant robustesse et durabilité. Une charpente traditionnelle et une lucarne maçonnée viennent compléter l'ensemble, ajoutant du charme et du caractère à cette construction.

La Chacenière se distingue par sa cuisine totalement ouverte sur le séjour, créant un espace de vie convivial et lumineux. Le garage intégré est une option très demandée par nos clients, offrant un espace de rangement supplémentaire et une protection pour votre véhicule.

En choisissant cette maison, vous optez pour une construction basse consommation, conforme à la réglementation environnementale RE2020, vous assurant ainsi des économies d'énergie et un confort optimal tout au long de l'année.

Ne manquez pas cette opportunité de faire construire votre maison familiale avec Babeau-Seguin et de profiter d'un habitat moderne, économique et parfaitement adapté à vos besoins.

CONTACTER

Logement susceptibles de vous intéresser

L’actualité immobilière à Moret-Loing-et-Orvanne

Image du post Pourquoi acheter un terrain en lotissement ? 27/11/2023
Lire l’article
Pourquoi acheter un terrain en lotissement ?
Image du post Vendre son terrain à un promoteur : comment procéder ? 02/11/2023
Lire l’article
Vendre son terrain à un promoteur : comment procéder ?
Image du post Diviser le terrain de sa maison pour le vendre : pourquoi et comment ? 30/10/2023
Lire l’article
Diviser le terrain de sa maison pour le vendre : pourquoi et comment ?
Image du post Acheter un terrain viabilisé : quels avantages ? 20/10/2023
Lire l’article
Acheter un terrain viabilisé : quels avantages ?
Image du post Les 7 étapes incontournables pour bien vendre votre terrain constructible 16/10/2023
Lire l’article
Les 7 étapes incontournables pour bien vendre votre terrain constructible
Image du post 5 points clés à vérifier pour l’achat d’un terrain constructible  16/10/2023
Lire l’article
5 points clés à vérifier pour l’achat d’un terrain constructible