Maison à construire à Moret-Loing-et-Orvanne (77250)
Images
Description
Moret-Loing-et-Orvanne, en Île-de-France (77250), dès 380 900 € :
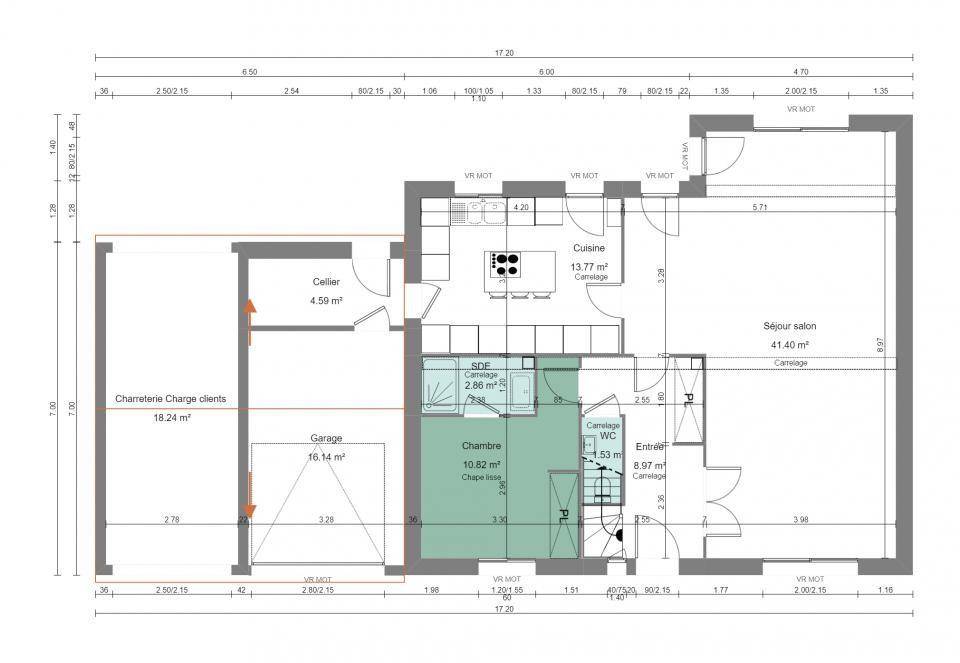
Maison Traditionnelle de 120 m² constructible sur un spacieux terrain viabilisé de 639 m² !
Faites confiance aux Maisons Balency d'Ormoy pour vous réaliser une charmante maison familiale de 4 chambres et de 3 salles-de-bains, sur une parcelle viabilisée offrant une façade constructible de 17,10 mètres, située à 15 minutes de FONTAINEBLEAU.
Celle-ci sera parfaite pour réaliser votre projet de construction grâce à sa proximité avec de nombreuses commodités.
Situation Géographique Idéale :
- Station RER R de Vernou-Sur-Seine située à quelques minutes à pied, offrant une connexion rapide et facile vers Paris.
- Gare TER de Champagne-sur-Seine localisée à moins de 15 minutes en voiture, parfaite pour les déplacements quotidiens.
- Écoles accessibles en seulement 5 minutes, garantissant un environnement familial et pratique pour vos enfants.
- Centre Commercial Carré Sénart (Lieusaint) joignable en 40 minutes, pour vos besoins de shopping, loisirs et divertissements.
Au sein de notre agence d'Ormoy des Maisons Balency, nous sommes heureux de proposer des réalisations totalement sur-mesure conformes aux dernières normes RE2020 ; nous pouvons également vous proposer des modèles à personnaliser, issus de nos catalogues.
Contactez-nous dès maintenant au (Numéro supprimé) pour initier une recherche foncière gratuite et débuter votre projet de construction dans des conditions optimales !
Annonce proposée par un Agent Commercial Partenaire.
Logement susceptibles de vous intéresser
Nous vous proposons de découvrir aussi cette sélection de logements situés à moins de 10km de Moret-Loing-et-Orvanne et qui seraient susceptibles de vous intéresser.
Montigny-sur-Loing
TERRAINÀ seulement 5 minutes à pied de la gare (ligne R vers Paris Gare de Lyon) et à proximité immédiate des écoles et du centre villePrix : 110000 €.Sur ce terrain de 649 m² à MONTIGNY-SUR-LOING, Maisons Clairval vous propose de réaliser votre projet de construction de maison individuelle.Maisons Clairval propose de construire votre maison neuve avec toutes les prestations suivantes :- Plan sur-mesure et personnalisé de 2 à 6 chambres- Mode de chauffage au choix- Grands choix d'équipements et de prestations- Matériaux de qualité selon les normes en vigueur- Accompagnement dans le choix et l’acquisition du terrain- Construction conforme à la nouvelle RE 2020Demandez une étude gratuite et personnalisée de votre projet de construction sur ce terrain !Contactez Nicolas REBOUL au (Numéro supprimé) ou au (Numéro supprimé) (Maisons Clairval – Agence de Villemoisson).Prix hors frais de notaire. Terrain sélectionné et vu pour vous sous réserve de disponibilité et au prix indiqué par notre partenaire foncier. Conditions et visuels non contractuels.Cette annonce a été créée et diffusée avec le logiciel VITAHOME.
Villecerf
TERRAINPrix : 69000 €.Sur ce terrain de 315 m² à VILLECERF, Maisons Clairval vous propose de réaliser votre projet de construction de maison individuelle.Maisons Clairval propose de construire votre maison neuve avec toutes les prestations suivantes :- Plan sur-mesure et personnalisé de 2 à 6 chambres- Mode de chauffage au choix- Grands choix d'équipements et de prestations- Matériaux de qualité selon les normes en vigueur- Accompagnement dans le choix et l’acquisition du terrain- Construction conforme à la nouvelle RE 2020Demandez une étude gratuite et personnalisée de votre projet de construction sur ce terrain !Contactez Nicolas REBOUL au (Numéro supprimé) ou au (Numéro supprimé) (Maisons Clairval – Agence de Villemoisson).Prix hors frais de notaire. Terrain sélectionné et vu pour vous sous réserve de disponibilité et au prix indiqué par notre partenaire foncier. Conditions et visuels non contractuels.Cette annonce a été créée et diffusée avec le logiciel VITAHOME.
Montigny-sur-Loing
TERRAINquartier résidentiel calme à proximité immédiate de toutes commodités à pied (commerces, gare, écoles…) et de la forêt.Prix : 115000 €.Sur ce terrain de 514 m² à MONTIGNY-SUR-LOING, Maisons Clairval vous propose de réaliser votre projet de construction de maison individuelle.Maisons Clairval propose de construire votre maison neuve avec toutes les prestations suivantes :- Plan sur-mesure et personnalisé de 2 à 6 chambres- Mode de chauffage au choix- Grands choix d'équipements et de prestations- Matériaux de qualité selon les normes en vigueur- Accompagnement dans le choix et l’acquisition du terrain- Construction conforme à la nouvelle RE 2020Demandez une étude gratuite et personnalisée de votre projet de construction sur ce terrain !Contactez Nicolas REBOUL au (Numéro supprimé) ou au (Numéro supprimé) (Maisons Clairval – Agence de Villemoisson).Prix hors frais de notaire. Terrain sélectionné et vu pour vous sous réserve de disponibilité et au prix indiqué par notre partenaire foncier. Conditions et visuels non contractuels.Cette annonce a été créée et diffusée avec le logiciel VITAHOME.
Villecerf
TERRAINPrix : 78000 €.Sur ce terrain de 459 m² à VILLECERF, Maisons Clairval vous propose de réaliser votre projet de construction de maison individuelle.Maisons Clairval propose de construire votre maison neuve avec toutes les prestations suivantes :- Plan sur-mesure et personnalisé de 2 à 6 chambres- Mode de chauffage au choix- Grands choix d'équipements et de prestations- Matériaux de qualité selon les normes en vigueur- Accompagnement dans le choix et l’acquisition du terrain- Construction conforme à la nouvelle RE 2020Demandez une étude gratuite et personnalisée de votre projet de construction sur ce terrain !Contactez Nicolas REBOUL au (Numéro supprimé) ou au (Numéro supprimé) (Maisons Clairval – Agence de Villemoisson).Prix hors frais de notaire. Terrain sélectionné et vu pour vous sous réserve de disponibilité et au prix indiqué par notre partenaire foncier. Conditions et visuels non contractuels.Cette annonce a été créée et diffusée avec le logiciel VITAHOME.
Villecerf
TERRAINPrix : 84000 €.Sur ce terrain de 510 m² à VILLECERF, Maisons Clairval vous propose de réaliser votre projet de construction de maison individuelle.Maisons Clairval propose de construire votre maison neuve avec toutes les prestations suivantes :- Plan sur-mesure et personnalisé de 2 à 6 chambres- Mode de chauffage au choix- Grands choix d'équipements et de prestations- Matériaux de qualité selon les normes en vigueur- Accompagnement dans le choix et l’acquisition du terrain- Construction conforme à la nouvelle RE 2020Demandez une étude gratuite et personnalisée de votre projet de construction sur ce terrain !Contactez Nicolas REBOUL au (Numéro supprimé) ou au (Numéro supprimé) (Maisons Clairval – Agence de Villemoisson).Prix hors frais de notaire. Terrain sélectionné et vu pour vous sous réserve de disponibilité et au prix indiqué par notre partenaire foncier. Conditions et visuels non contractuels.Cette annonce a été créée et diffusée avec le logiciel VITAHOME.
Vulaines-sur-Seine
TERRAINDécouvrez notre nouvelle offre de 10 terrains à bâtir, viabilisés et libres de constructeur, de 378m à 604m à moins de 10 Km de FONTAINEBLEAU Situé dans le département de la Seine et Marne, notre programme ‘ VILLA VELCINA ‘ se situe dans un environnement calme, chaleureux et urbain, à 1h30* de PARIS et seulement 10 minutes* du centre-ville de FONTAINEBLEAU.La commune de Vulaines-sur-Seine s’établit dans un cadre de vie privilégié où vous disposerez de tous les commerces et infrastructures nécessaires au quotidien.Vous pourrez également profiter de nombreux espaces de vie et d’activités proposés par la ville. Un patrimoine culturel d’exception !La ville est desservie par la Ligne 9 ( Bus ). La Gare de FONTAINEBLEAU / AVON ( TER ) permet de rejoindre PARIS via MELUN : RER D.Plus que 5 terrains disponibles!Plusieurs terrains disponibles, contactez nous pour plus d’informations.Pour toutes informations complémentaires, prenez contact avec nous !
Vulaines-sur-Seine
TERRAINDécouvrez notre nouvelle offre de 10 terrains à bâtir, viabilisés et libres de constructeur, de 378m à 604m à moins de 10 Km de FONTAINEBLEAU Situé dans le département de la Seine et Marne, notre programme ‘ VILLA VELCINA ‘ se situe dans un environnement calme, chaleureux et urbain, à 1h30* de PARIS et seulement 10 minutes* du centre-ville de FONTAINEBLEAU.La commune de Vulaines-sur-Seine s’établit dans un cadre de vie privilégié où vous disposerez de tous les commerces et infrastructures nécessaires au quotidien.Vous pourrez également profiter de nombreux espaces de vie et d’activités proposés par la ville. Un patrimoine culturel d’exception !La ville est desservie par la Ligne 9 ( Bus ). La Gare de FONTAINEBLEAU / AVON ( TER ) permet de rejoindre PARIS via MELUN : RER D.Plus que 5 terrains disponibles!Plusieurs terrains disponibles, contactez nous pour plus d’informations.Pour toutes informations complémentaires, prenez contact avec nous !
Vulaines-sur-Seine
TERRAINDécouvrez notre nouvelle offre de 10 terrains à bâtir, viabilisés et libres de constructeur, de 378m à 604m à moins de 10 Km de FONTAINEBLEAU Situé dans le département de la Seine et Marne, notre programme ‘ VILLA VELCINA ‘ se situe dans un environnement calme, chaleureux et urbain, à 1h30* de PARIS et seulement 10 minutes* du centre-ville de FONTAINEBLEAU.La commune de Vulaines-sur-Seine s’établit dans un cadre de vie privilégié où vous disposerez de tous les commerces et infrastructures nécessaires au quotidien.Vous pourrez également profiter de nombreux espaces de vie et d’activités proposés par la ville. Un patrimoine culturel d’exception !La ville est desservie par la Ligne 9 ( Bus ). La Gare de FONTAINEBLEAU / AVON ( TER ) permet de rejoindre PARIS via MELUN : RER D.Plus que 5 terrains disponibles!Plusieurs terrains disponibles, contactez nous pour plus d’informations.Pour toutes informations complémentaires, prenez contact avec nous !
Vulaines-sur-Seine
TERRAINDécouvrez notre nouvelle offre de 10 terrains à bâtir, viabilisés et libres de constructeur, de 378m à 604m à moins de 10 Km de FONTAINEBLEAU Situé dans le département de la Seine et Marne, notre programme ‘ VILLA VELCINA ‘ se situe dans un environnement calme, chaleureux et urbain, à 1h30* de PARIS et seulement 10 minutes* du centre-ville de FONTAINEBLEAU.La commune de Vulaines-sur-Seine s’établit dans un cadre de vie privilégié où vous disposerez de tous les commerces et infrastructures nécessaires au quotidien.Vous pourrez également profiter de nombreux espaces de vie et d’activités proposés par la ville. Un patrimoine culturel d’exception !La ville est desservie par la Ligne 9 ( Bus ). La Gare de FONTAINEBLEAU / AVON ( TER ) permet de rejoindre PARIS via MELUN : RER D.Plus que 5 terrains disponibles!Plusieurs terrains disponibles, contactez nous pour plus d’informations.Pour toutes informations complémentaires, prenez contact avec nous !
L’actualité immobilière à Moret-Loing-et-Orvanne
27/11/2023
02/11/2023
30/10/2023
20/10/2023
16/10/2023
16/10/2023