Images
Description
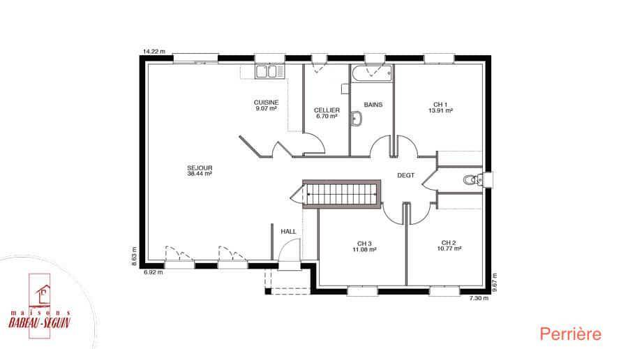
Sur ce terrain, nous vous proposons cette maison neuve Perrière de 97 m². Ce modèle design de plain-pied possède deux hauteurs de toits qui cassent la monotonie de la façade, offrant ainsi une esthétique moderne et attrayante. Avec ses 3 chambres et ses 4 pièces, cette maison familiale par excellence saura vous séduire.
La Perrière est une maison traditionnelle possédant une avancée de toit qui vient protéger les portes-fenêtres de la façade avant et la porte d’entrée. Ce modèle peut être agrémenté d’un garage ou d’un sous-sol disponible en option, selon vos besoins et préférences.
Construite par Babeau-Seguin, constructeur offrant le meilleur rapport qualité/prix du marché, cette maison neuve est basse consommation et conforme à la RE2020, garantissant ainsi des performances énergétiques optimales et un confort de vie inégalé.
Disposant d'un très bon rapport qualité/prix et de tout le savoir-faire Babeau-Seguin, la Perrière est un modèle de maison à prix réduit sans pour autant être une maison low-cost. Cerise sur le gâteau ? Le plan est personnalisable en fonction de votre mode de vie !
Ne manquez pas cette opportunité unique de construire la maison de vos rêves sur ce terrain. Contactez-nous dès maintenant pour plus d'informations et pour découvrir toutes les options disponibles pour personnaliser votre future maison Perrière.
Logement susceptibles de vous intéresser
Nous vous proposons de découvrir aussi cette sélection de logements situés à moins de 10km de Moret-Loing-et-Orvanne et qui seraient susceptibles de vous intéresser.
Vulaines-sur-Seine
TERRAIN ET MAISONVENTE : maison de 4 pièces (60 m²) à Vulaines-sur-SeineProche de Corbeil-Essonnes – À découvrir à Vulaines-sur-Seine (77870) : maison neuve 4 pièces en vente, 60 m² de surface sur 429 m² de terrain. Son intérieur offre deux chambres, une cuisine et une salle de bains.À proximité : gare (Vulaines-sur-Seine-Samoreau), école primaire École Élémentaire les Orangers, bibliothèque, boulangerie, commerces, boucherie-charcuterie et épiceries.Cette maison de 4 pièces est proposée à l’achat pour 272 900 €.Contactez Steeve KANOR ((Numéro supprimé)) pour plus d’informations sur la maison. Donnez vie à vos projets immobiliers avec Maisons Evolution Tigery.Annonce proposée par un Agent Commercial Partenaire.
Vulaines-sur-Seine
TERRAIN ET MAISONVENTE d’une maison de 7 pièces (104 m²) à Vulaines-sur-SeineProche de Corbeil-Essonnes – À vendre à Vulaines-sur-Seine (77870) : maison neuve 7 pièces de 104 m² sur un terrain de 429 m². Elle compte six chambres, une cuisine et deux salles de bains.À dix minutes : gare (Vulaines-sur-Seine-Samoreau), école primaire École Élémentaire les Orangers, bibliothèque, boulangerie, commerces, épiceries et boucherie-charcuterie.Le prix de vente de cette maison de 7 pièces est de 407 900 €.Contactez Steeve KANOR ((Numéro supprimé)) pour tout renseignement sur la maison, sur les démarches à suivre ou sur les modalités de vente.Annonce proposée par un Agent Commercial Partenaire.
Vulaines-sur-Seine
TERRAINVENTE : terrain de 429 m² à Vulaines-sur-SeineProche de Corbeil-Essonnes – En vente : terrain de 429 m² à Vulaines-sur-Seine (77870).Proche gare (Vulaines-sur-Seine-Samoreau), école primaire École Élémentaire les Orangers, bibliothèque, boulangerie, commerces, boucherie-charcuterie et épiceries.Il est proposé à l’achat pour 138 000 €. Contactez notre agence (Steeve KANOR : (Numéro supprimé)) pour plus de renseignements sur le terrain ou sur les démarches à suivre. Donnez vie à vos projets immobiliers avec Maisons Evolution Tigery.Annonce proposée par un Agent Commercial Partenaire.
Vulaines-sur-Seine
TERRAIN ET MAISONVENTE d’une maison de 6 pièces (122 m²) à Vulaines-sur-SeineProche de Corbeil-Essonnes – À découvrir à Vulaines-sur-Seine (77870) : maison neuve 6 pièces à vendre. 2 niveaux, surface de 122 m² sur 429 m² de terrain. Son intérieur compte quatre chambres, une cuisine et deux salles de bains.À dix minutes : gare (Vulaines-sur-Seine-Samoreau), école primaire École Élémentaire les Orangers, bibliothèque, boulangerie, commerces, boucherie-charcuterie et épiceries.Le prix de vente de cette maison de 6 pièces est de 382 900 €.N’hésitez pas à prendre contact avec notre agence (Steeve KANOR : (Numéro supprimé)) pour plus d’informations sur la maison ou sur les modalités de vente. Concrétisez vos projets immobiliers avec Maisons Evolution Tigery.Annonce proposée par un Agent Commercial Partenaire.
Moret-Loing-et-Orvanne
TERRAINParcelle à Bâtir en lot AVANT de 590 m² située à Moret-Loing-et-Orvanne (77250), en Île de France !Saisissez l’opportunité de construire votre chez-vous à Moret-Loing-et-Orvanne (77250) ! Maisons Balency, du Groupe Hexaôm, 1er constructeur de maisons individuelles en France, vous propose ce terrain constructible offrant 18 mètres de façade, au prix de 80 000 €.Ce projet est parfait pour un jeune couple, une famille nombreuse ou des personnes âgées souhaitant édifier une maison individuelle conforme à la norme RE2020, synonyme de performance énergétique et de confort optimal.Idéalement situé, vous profiterez de la proximité de diverses commodités, dont la présence de Nemours à quelques minutes :- Commerces de proximité (boulangerie, supermarché) : Moins de 5 minutes en voiture.- Écoles (maternelle, primaire et collège) : Accessibles en moins de 10 minutes à pied ou en voiture.- Centre médical : Environ 7 minutes en voiture.- Gare de Moret – Veneux-les-Sablons (Ligne R) : 5 minutes en voiture, offrant des liaisons vers Paris Gare de Lyon.- Accès rapide à l’A6 : Environ 10 minutes en voiture.Imaginez votre future demeure, pensée et construite avec l’expertise de Maisons Balency, pour un cadre de vie serein et durable.Pour plus d’informations, contactez vite les Maisons Balency d’Ormoy au (Numéro supprimé) !Annonce proposée par un Agent Commercial Partenaire.
Moret-Loing-et-Orvanne
TERRAIN ET MAISONSur ce terrain, nous vous proposons cette maison neuve Perrière de 97 m². Ce modèle design de plain-pied possède deux hauteurs de toits qui cassent la monotonie de la façade, offrant ainsi une esthétique moderne et attrayante. Avec ses 3 chambres et ses 4 pièces, cette maison familiale par excellence saura vous séduire.La Perrière est une maison traditionnelle possédant une avancée de toit qui vient protéger les portes-fenêtres de la façade avant et la porte d’entrée. Ce modèle peut être agrémenté d’un garage ou d’un sous-sol disponible en option, selon vos besoins et préférences.Construite par Babeau-Seguin, constructeur offrant le meilleur rapport qualité/prix du marché, cette maison neuve est basse consommation et conforme à la RE2020, garantissant ainsi des performances énergétiques optimales et un confort de vie inégalé.Disposant d’un très bon rapport qualité/prix et de tout le savoir-faire Babeau-Seguin, la Perrière est un modèle de maison à prix réduit sans pour autant être une maison low-cost. Cerise sur le gâteau ? Le plan est personnalisable en fonction de votre mode de vie !Ne manquez pas cette opportunité unique de construire la maison de vos rêves sur ce terrain. Contactez-nous dès maintenant pour plus d’informations et pour découvrir toutes les options disponibles pour personnaliser votre future maison Perrière.
Moret-Loing-et-Orvanne
TERRAINDécouvrez ce magnifique terrain viabilisé de 520 m² situé dans le charmant lotissement d’Écuelles, dans la Seine-et-Marne en Île-de-France. Ce terrain est l’opportunité parfaite pour concrétiser votre projet de construction de maison dans un cadre idyllique et ensoleillé, où la sérénité et la nature se rencontrent. Profitez d’un environnement privilégié qui saura séduire familles et investisseurs à la recherche d’un lieu de vie paisible. La commune d’Écuelles se distingue par son ambiance conviviale et ses commodités variées. Vous trouverez à proximité des écoles, des commerces, ainsi que des arrêts de bus et une gare, facilitant vos déplacements. Le terrain est idéalement situé près d’un axe routier important tout en offrant un cadre champêtre agréable, parfait pour profiter des joies de la nature tout en étant proche des activités urbaines. Ne manquez pas cette occasion exceptionnelle d’acquérir un terrain dans un quartier attractif, à un prix compétitif. Ce terrain est l’opportunité rêvée pour construire la maison de vos rêves. N’attendez plus pour envisager cette chance unique d’investir dans votre futur ! À noter qu’en tant que constructeur, nous ne sommes pas mandatés pour réaliser la vente de ce terrain.
Moret-Loing-et-Orvanne
TERRAIN ET MAISONSur ce terrain, nous vous proposons cette maison neuve, le modèle Buxière, d’une surface de 112 m². Conçue par Babeau-Seguin, constructeur offrant le meilleur rapport qualité/prix du marché, cette maison à étage est idéale pour ceux qui recherchent simplicité et convivialité sans rien céder à la qualité.La Buxière est une maison chic et moderne tout en conservant le charme d’une maison traditionnelle. Elle dispose de 4 chambres et de 4 pièces, offrant ainsi un espace de vie confortable pour toute la famille. La façade droite et la large galerie ajoutent une touche d’élégance et de caractère à cette demeure.Les caractéristiques principales de cette maison incluent une dalle étage en béton et une charpente traditionnelle, garantissant robustesse et durabilité. La cuisine, largement ouverte sur le séjour, crée un espace convivial et lumineux, parfait pour les moments en famille ou entre amis.Cette maison neuve est également basse consommation et conforme à la RE2020, ce qui vous assure des économies d’énergie et un confort optimal tout au long de l’année. Parmi les options les plus demandées par nos clients, vous trouverez les volets roulants motorisés, ajoutant une touche de modernité et de praticité à votre quotidien.En choisissant le modèle Buxière, vous optez pour une maison adaptée à vos besoins, que vous soyez une petite ou une grande famille. Vous avez également la possibilité de personnaliser ce modèle pour ajouter ou supprimer des chambres selon vos préférences.Ne manquez pas cette opportunité unique de construire la maison de vos rêves avec Babeau-Seguin, le constructeur qui allie qualité, modernité et tradition. Contactez-nous dès aujourd’hui pour plus d’informations et pour planifier une visite de ce terrain exceptionnel.
Moret-Loing-et-Orvanne
TERRAINDécouvrez ce superbe terrain à vendre, situé au sein d’un lotissement paisible de 560 m² à Moret-sur-Loing, dans le département de la Seine-et-Marne. Viabilisé et prêt à accueillir votre projet de construction, ce terrain bénéficie d’un ensoleillement généreux et d’un cadre champêtre qui saura séduire les amoureux de la nature. Idéal pour bâtir la maison de vos rêves, il représente une opportunité unique dans une commune appréciée pour son charme et son ambiance conviviale. Moret-sur-Loing, nichée en Île-de-France, offre un cadre de vie exceptionnel. À proximité immédiate, vous trouverez une multitude de commerces et de commodités, ainsi que des écoles qui assurent un environnement familial favorable. La localité est également desservie par les transports en commun, incluant une gare à proximité, facilitant les déplacements vers Paris et ses environs. Profitez également des attraits locaux tels que les promenades le long du Loing et les infrastructures qui enrichissent le quotidien des résidents. La combinaison d’un cadre de vie agréable et de services de qualité en fait un choix de premier ordre pour votre futur foyer. Ne manquez pas cette occasion rare d’acquérir un terrain idéalement situé, bénéficiant d’un environnement accueillant et de toutes les commodités nécessaires. Contactez-nous dès maintenant pour envisager cette opportunité d’achat unique. À noter qu’en tant que constructeur, nous ne sommes pas mandatés pour réaliser la vente de ce terrain.
L’actualité immobilière à Moret-Loing-et-Orvanne
27/11/2023
02/11/2023
30/10/2023
20/10/2023
16/10/2023
16/10/2023