Images
Description
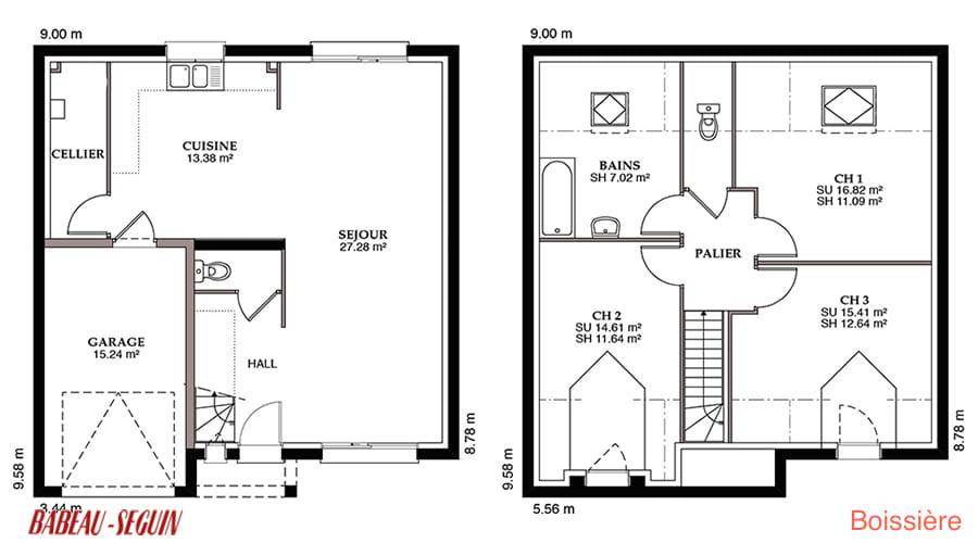
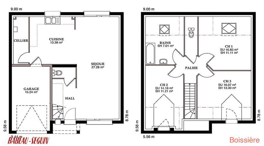
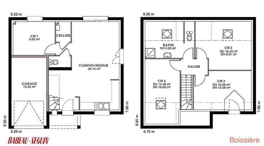
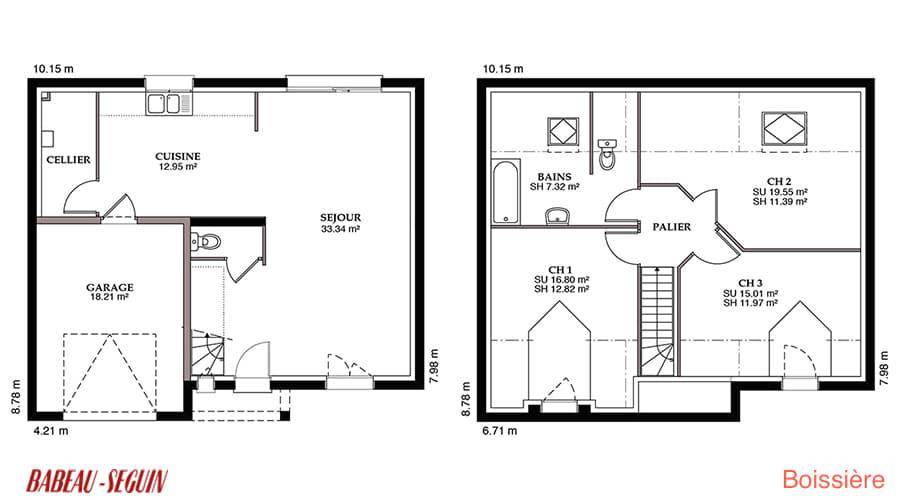
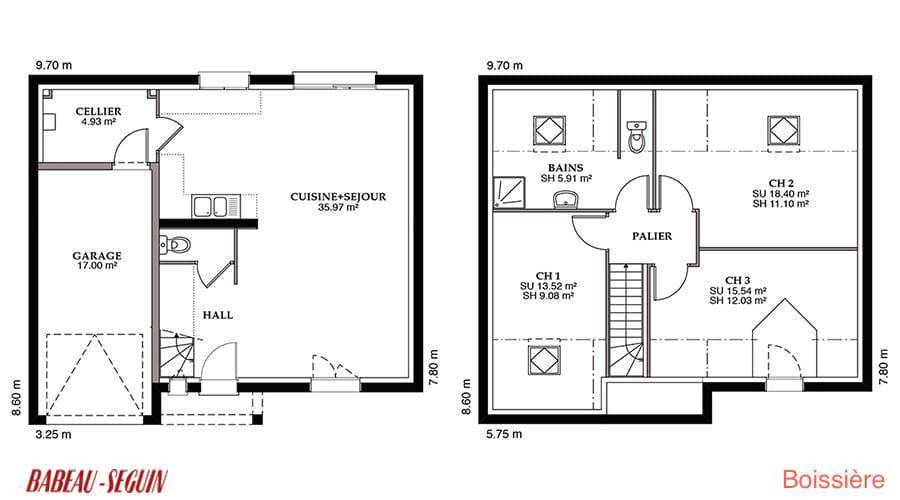
Sur ce terrain, nous vous proposons cette maison neuve, la Boissière, construite par Babeau-Seguin, le constructeur offrant le meilleur rapport qualité/prix du marché. Cette élégante maison à étage d’une surface de 95 m² est idéale pour toutes les familles en quête de confort.
La Boissière comprend 3 chambres spacieuses et 4 pièces bien agencées, offrant un espace de vie fonctionnel et agréable. Le plancher de l’étage est constitué d’une dalle étage en béton, assurant robustesse et durabilité, tandis que la charpente traditionnelle ajoute une touche de charme et d'authenticité à l'ensemble.
Cette maison neuve est basse consommation et conforme à la RE2020, garantissant des performances énergétiques optimales et des économies sur vos factures d'énergie. Vous pourrez ainsi profiter d'un confort thermique tout au long de l'année, tout en respectant l'environnement.
Disponible en 8 versions, avec ou sans garage intégré, la Boissière est le type même de construction qui sait s’adapter à tous les terrains et à toutes les familles. Comme l’ensemble de nos maisons, le plan peut être personnalisé en fonction de vos besoins et de vos envies, pour créer un espace de vie qui vous ressemble.
Ne manquez pas cette opportunité de faire construire une maison qui allie confort, qualité et économies d'énergie. Contactez-nous dès maintenant pour plus d'informations et pour découvrir toutes les options disponibles pour la Boissière.
Logement susceptibles de vous intéresser
Nous vous proposons de découvrir aussi cette sélection de logements situés à moins de 10km de Moret-Loing-et-Orvanne et qui seraient susceptibles de vous intéresser.
Montigny-sur-Loing
TERRAIN ET MAISONTrès beau terrain proche gare pour Paris a 10 minutes de Fontainebleu école et commerces sur place . Avec son agencement intelligent et ses volumes généreux, cette maison offre un cadre de vie idéal pour toute la famille. Dès l’entrée, vous êtes accueilli par une grande pièce de vie ouverte, baignée de lumière, où le salon et la salle à manger s’harmonisent avec une cuisine conviviale. À proximité, un cellier pratique facilite le rangement et l’organisation du quotidien. Le rez-de-chaussée abrite également une suite parentale élégante, un véritable cocon privé avec sa salle d’eau attenante, offrant confort et intimité aux parents. À l’étage, trois chambres spacieuses et lumineuses permettent à chacun de disposer de son propre espace. Une grande salle de bain familiale vient compléter cet étage, garantissant un confort optimal pour tous. Avec son design contemporain, ses espaces bien pensés et son ambiance chaleureuse, cette maison est parfaite pour s’adapter à votre mode de vie. Pour vous assurer un confort de vie optimal et en conformité avec la RE2025, nous avons opté pour un système de chauffage par pompe à chaleur (PAC) avec plancher chauffant au rez-de-chaussée et radiateurs à l’étage. Le logement est également équipé de volets roulants électriques. Prix hors fourniture et pose : des appareils sanitaires (sauf système de chauffage et d'eau chaude sanitaire), du carrelage et de la faïence, des revêtements de sol dans les chambres. Hors décoration et aménagement intérieur et peinture. Hors raccordements, frais de notaire et dommage ouvrage. // Réf. : 2465-213622-CHL. Prix terrain : 115 000 €, hors frais d'agence à la charge de l'acquéreur. Ce terrain vous est proposé, par nos partenaires fonciers, dans le cadre d'un projet de construction avec nous. Les informations sur les risques auxquels ce bien est exposé sont disponibles sur le site Géorisques (www.georisques.gouv.fr). Prix maison : 162 238 €.
Villecerf
TERRAIN ET MAISONTrès beau terrain dans quartier résidentiel . Familiale et fonctionnelle cette maison de 106 m² habitables vous séduira par ses volumes et son aménagement. Son très bel espace de vie de 47 m² environ avec sa cuisine ouverte avec accès direct au jardin grâce à sa baie vitrée. L’espace nuit est composé d’une suite parentale avec dressing et salle d’eau privative, à l’opposé trois chambres avec rangements, une salle de bains indépendante. Pour vous assurer un confort de vie et conformément à la RE2025, nous avons choisi un mode de chauffage par PAC + plancher chauffant, volets roulants électriques. Prix hors fourniture et pose : des appareils sanitaires (sauf système de chauffage et d'eau chaude sanitaire), du carrelage et de la faïence, des revêtements de sol dans les chambres. Hors décoration et aménagement intérieur et peinture. Hors raccordements, frais de notaire et dommage ouvrage. // Réf. : 2115-213612-CHL. Prix terrain : 68 000 €, hors frais d'agence à la charge de l'acquéreur. Ce terrain vous est proposé, par nos partenaires fonciers, dans le cadre d'un projet de construction avec nous. Les informations sur les risques auxquels ce bien est exposé sont disponibles sur le site Géorisques (www.georisques.gouv.fr). Prix maison : 156 976 €.
Villecerf
TERRAINTrès beau terrain dans quartier résidentiel . // Réf. : T213612. Prix terrain : 68 000 €, hors frais d'agence et de notaire à la charge de l'acquéreur. Ce terrain vous est proposé, par nos partenaires fonciers, dans le cadre d'un projet de construction avec nous. Les informations sur les risques auxquels ce bien est exposé sont disponibles sur le site Géorisques (www.georisques.gouv.fr).
Villecerf
TERRAINTrès beau terrain dans quartier résidentiel . // Réf. : T213612. Prix terrain : 68 000 €, hors frais d'agence et de notaire à la charge de l'acquéreur. Ce terrain vous est proposé, par nos partenaires fonciers, dans le cadre d'un projet de construction avec nous. Les informations sur les risques auxquels ce bien est exposé sont disponibles sur le site Géorisques (www.georisques.gouv.fr).
Moret-Loing-et-Orvanne
TERRAIN ET MAISONBeau terrain a voir école et commerces a proximité . Une conception en L pour cette maison de plain-pied permettant une distribution harmonieuse des espaces et une excellente circulation entre les pièces. Un séjour spacieux de 30 m² baigné de lumière naturelle, offrant une atmosphère chaleureuse et accueillante pour vos moments de détente et de convivialité, une cuisine ouverte avec cellier attenant. Trois chambres bien agencées offrant des espaces de repos confortables pour chaque membre de la famille, une salle de bains indépendante. Pour vous assurer un confort de vie et conformément à la RE2025, nous avons choisi un mode de chauffage par PAC + plancher chauffant, volets roulants électriques. Prix hors fourniture et pose : des appareils sanitaires (sauf système de chauffage et d'eau chaude sanitaire), du carrelage et de la faïence, des revêtements de sol dans les chambres. Hors décoration et aménagement intérieur et peinture. Hors raccordements, frais de notaire et dommage ouvrage. . // Réf. : 2516-213550-CHL. Prix terrain : 78 000 €, hors frais d'agence à la charge de l'acquéreur. Ce terrain vous est proposé, par nos partenaires fonciers, dans le cadre d'un projet de construction avec nous. Les informations sur les risques auxquels ce bien est exposé sont disponibles sur le site Géorisques (www.georisques.gouv.fr). Prix maison : 131 219 €.
Saint-Mammès
TERRAIN ET MAISONSur ce terrain, nous vous proposons cette maison neuve : la Focus EVO City, conçue par Babeau-Seguin, constructeur offrant le meilleur rapport qualité/prix du marché. Découvrez l’innovant concept de la Focus EVO City, une maison qui combine les atouts d’une maison neuve clé en main avec la flexibilité et l’avantage tarifaire du prêt à finir ! Cette maison de 100 m², conçue pour évoluer, vous offre à sa livraison, une vaste pièce de vie lumineuse, 4 chambres et une salle de bain, avec des performances énergétiques exceptionnelles et un coût de construction abordable. Surtout, cette maison est conçue dès le départ pour évoluer.Une maison prête à s’adapterQue votre famille s’agrandisse ou que vous ayez besoin d’une chambre d’amis, la Focus EVO City se distingue en tant que première maison Babeau-Seguin prête à évoluer. Elle intègre une trémie pour accueillir un futur escalier, ainsi que des chevêtres de toit prévus pour les fenêtres de vos futurs combles aménagés. Notre plan détaillé vous guide dans l’aménagement de vos combles, faisant passer votre maison de 100 m² à une surface encore plus généreuse avec des espaces supplémentaires, transformant la Focus EVO City en véritable maison familiale !Une maison qui évoluera avec vos besoinsQue vous soyez un jeune couple désirant savourer la vie à deux avant l’arrivée d’un heureux événement, ou bien un célibataire passionné de bricolage souhaitant sa salle de projection privée, la Focus EVO City est la maison qui saura évoluer au rythme de votre vie et de vos aspirations !Idéale pour ce terrain et pour les petits budgets, cette Focus EVO City est aussi bien équipée que l’ensemble de nos modèles. Cette dernière est une maison neuve écologique répondant aux standards stricts de la RE2020. Économie à la construction, économie à la consommation !Les caractéristiques principales de cette maison incluent des combles aménageables, un excellent rapport qualité/prix, une conception évolutive et un cellier. Les options les
Montigny-sur-Loing
TERRAIN ET MAISONTrès beau terrain proche gare pour Paris a 10 minutes de Fontainebleu école et commerces sur place . Charmante maison de plain-pied spacieuse et stylée. Son entrée est couverte par un porche, qui ouvre sur la pièce de vie de 40 m² environ. L’espace jour et l’espace nuit ont été optimisés par notre bureau d’études. Côté nuit, 3 chambres avec rangement, une salle de bains. Ses jeux d'enduits personnalisables sauront vous séduire. Pour vous assurer un confort de vie et conformément à la RE2025, nous avons choisi un mode de chauffage par PAC + plancher chauffant, volets roulants électriques. Prix hors fourniture et pose : des appareils sanitaires (sauf système de chauffage et d'eau chaude sanitaire), du carrelage et de la faïence, des revêtements de sol dans les chambres. Hors décoration et aménagement intérieur et peinture. Hors raccordements, frais de notaire et dommage ouvrage. Préau en option. // Réf. : 2027-213622-CHL. Prix terrain : 115 000 €, hors frais d'agence à la charge de l'acquéreur. Ce terrain vous est proposé, par nos partenaires fonciers, dans le cadre d'un projet de construction avec nous. Les informations sur les risques auxquels ce bien est exposé sont disponibles sur le site Géorisques (www.georisques.gouv.fr). Prix maison : 124 221 €.
Moret-Loing-et-Orvanne
TERRAIN ET MAISONBeau terrain a voir école et commerces a proximité . Idéal premier achat, cette maison de plain-pied fonctionnelle et lumineuse vous propose une vaste pièce de vie éclairée par sa grande baie vitrée avec cuisine ouverte, deux chambres avec rangement, salle de bains et cellier indépendant. Pour vous assurer un confort de vie et conformément à la RE2025, nous avons choisi un mode de chauffage par PAC + plancher chauffant, volets roulants électriques. Prix hors fourniture et pose : des appareils sanitaires (sauf système de chauffage et d'eau chaude sanitaire), du carrelage et de la faïence, des revêtements de sol dans les chambres. Hors décoration et aménagement intérieur et peinture. Hors raccordements, frais de notaire et dommage ouvrage. // Réf. : 1954-213550-CHL. Prix terrain : 78 000 €, hors frais d'agence à la charge de l'acquéreur. Ce terrain vous est proposé, par nos partenaires fonciers, dans le cadre d'un projet de construction avec nous. Les informations sur les risques auxquels ce bien est exposé sont disponibles sur le site Géorisques (www.georisques.gouv.fr). Prix maison : 106 019 €.
Villecerf
TERRAIN ET MAISONTrès beau terrain dans quartier résidentiel . Avec ses lignes épurées et son architecture lumineuse, cette maison contemporaine conjugue design et confort. Dès l’entrée, un vaste salon-séjour baigné de lumière s’ouvre sur une cuisine spacieuse, idéale pour les moments de partage. Au rez-de-chaussée, profitez du calme et de l’intimité d’une suite parentale avec dressing et salle d’eau privative. À l’étage, deux belles chambres, un bureau fonctionnel et une salle de bain élégante offrent à chacun son propre espace. Un garage attenant et un cellier bien pensé viennent compléter cet ensemble harmonieux, où chaque mètre carré est optimisé pour répondre à vos besoins. Pour un confort optimal et conforme à la RE2025, cette maison dispose d’une PAC avec plancher chauffant, radiateurs à l’étage et volets roulants électriques. À noter : Le prix indiqué exclut les revêtements de sol des chambres, la cuisine aménagée, la peinture, la décoration, les raccordements, les frais de notaire et l’assurance dommages-ouvrage. Laissez-vous séduire par cette maison moderne et personnalisable – imaginez-la, nous la construisons pour vous !. // Réf. : 1737-213612-CHL. Prix terrain : 68 000 €, hors frais d'agence à la charge de l'acquéreur. Ce terrain vous est proposé, par nos partenaires fonciers, dans le cadre d'un projet de construction avec nous. Les informations sur les risques auxquels ce bien est exposé sont disponibles sur le site Géorisques (www.georisques.gouv.fr). Prix maison : 324 552 €.
L’actualité immobilière à Moret-Loing-et-Orvanne
27/11/2023
02/11/2023
30/10/2023
20/10/2023
16/10/2023
16/10/2023