Maison à construire à Mormant (77720)
Images
Description
VENTE : maison F6 (115 m²) à Mormant
PROCHE GARE - MAISON 6 PIÈCES NEUVE
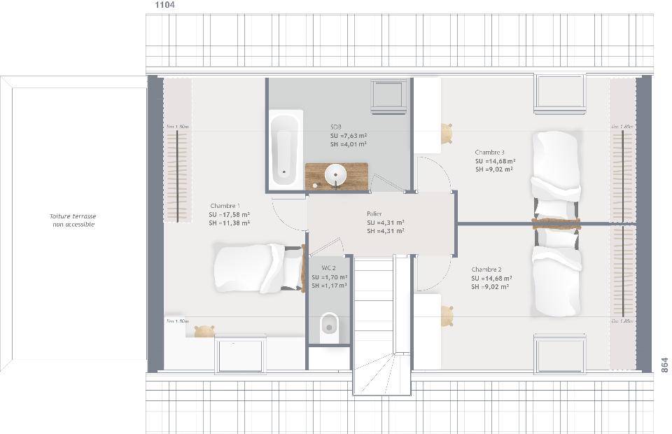
À deux pas du Transilien P (35 min de Paris), nous vous présentons en vente, dans Mormant (77720), proche de la gare, cette maison de 6 pièces de 115 m².
C'est une maison de 2 niveaux. Elle inclut quatre chambres, une cuisine et deux salles de bains. La maison est neuve.
Le terrain de la propriété est de 550 m².
Le Collège Nicolas Fouquet, l'École Maternelle Charles Perrault et l'École Élémentaire Jean de la Fontaine sont implantés à moins de 10 minutes à pied. Niveau transports, il y a la gare Mormant dans les environs. On trouve un tennis, deux boulangeries, deux supermarchés, des commerces, un bureau de poste et quatre épiceries à proximité. Ne manquez pas le marché Rue Leclerc tous les jeudis matin.
Son prix de vente est de 305 000 €.
Prenez contact avec Cedric YAHIAOUI (tél : (Numéro supprimé)) pour obtenir de plus amples informations sur la propriété, sur les modalités de vente ou sur les démarches à suivre. Maisons France Confort Magny-le-Hongre est là pour vous accompagner dans tous vos projets immobiliers.
Annonce proposée par un Agent Commercial Partenaire.
Logement susceptibles de vous intéresser
Nous vous proposons de découvrir aussi cette sélection de logements situés à moins de 10km de Mormant et qui seraient susceptibles de vous intéresser.

Mormant
TERRAINMormant , hameau de Lady, terrain plat de 500 m2, commerces, gare, écoles et collège.Prix : 85000 €.Sur ce terrain, réalisez votre projet de construction de maison RE 2020 avec PAVILLONS D'ÎLE-DE-FRANCE (constructeur de maisons de gamme et sur-mesure depuis plus de 50 ans) :- Plan sur-mesure et personnalisé de 2 à 5 chambres- Mode de chauffage au choix- Grands choix d'équipements et de prestations- Matériaux de qualité selon les normes en vigueur- Accompagnement dans le choix et l’acquisition du terrainDemandez une étude gratuite et personnalisée de votre projet de construction sur ce terrain !Contactez Olivier SAMSON au (Numéro supprimé) ou au (Numéro supprimé) (Pavillons d'Île-de-France – Agence de Meaux).Prix hors frais de notaire. Terrain sélectionné et vu pour vous sous réserve de disponibilité et au prix indiqué par notre partenaire foncier. Visuels non contractuels.Cette annonce a été créée et diffusée avec le logiciel VITAHOME.

Mormant
TERRAINMagnifique terrain de 600 m2, dans un cadre calme et verdoyant, à 5 minutes de Mormant ( gare, commerces, collège), commune d'AubepierreAccès rapide RN19Prix : 96000 €.Sur ce terrain, réalisez votre projet de construction de maison RE 2020 avec PAVILLONS D'ÎLE-DE-FRANCE (constructeur de maisons de gamme et sur-mesure depuis plus de 50 ans) :- Plan sur-mesure et personnalisé de 2 à 5 chambres- Mode de chauffage au choix- Grands choix d'équipements et de prestations- Matériaux de qualité selon les normes en vigueur- Accompagnement dans le choix et l’acquisition du terrainDemandez une étude gratuite et personnalisée de votre projet de construction sur ce terrain !Contactez Olivier SAMSON au (Numéro supprimé) ou au (Numéro supprimé) (Pavillons d'Île-de-France – Agence de Meaux).Prix hors frais de notaire. Terrain sélectionné et vu pour vous sous réserve de disponibilité et au prix indiqué par notre partenaire foncier. Visuels non contractuels.Cette annonce a été créée et diffusée avec le logiciel VITAHOME.

Mormant
TERRAINMohammed – Agence Pavillons d'Île-de-FranceVotre expert en maisons sur-mesure depuis plus de 50 ans à Mareuil-lès-MeauxTransformez votre rêve en réalité !Situé dans un écrin de verdure, ce terrain de 450 m² vous offre l'opportunité rare de construire la maison de vos rêves dans un cadre calme et agréable. À deux pas des commerces, écoles et transports, vous bénéficierez de la tranquillité de la campagne sans renoncer à la proximité de la vie urbaine.Imaginez votre futur chez-vous, parfaitement adapté à vos envies et à vos besoins. Ce terrain est prêt à accueillir votre projet et à vous offrir un cadre de vie exceptionnel.Prix : 95 000 €Ne laissez pas passer cette chance unique ! Contactez-nous dès maintenant au (Numéro supprimé) pour planifier une étude de faisabilité.Prix : 95000 €.Sur ce terrain, réalisez votre projet de construction de maison RE 2020 avec PAVILLONS D'ÎLE-DE-FRANCE (constructeur de maisons de gamme et sur-mesure depuis plus de 50 ans) :- Plan sur-mesure et personnalisé de 2 à 5 chambres- Mode de chauffage au choix- Grands choix d'équipements et de prestations- Matériaux de qualité selon les normes en vigueur- Accompagnement dans le choix et l’acquisition du terrainDemandez une étude gratuite et personnalisée de votre projet de construction sur ce terrain !Contactez Mohammed HAMDAOUI au (Numéro supprimé) ou au (Numéro supprimé) (Pavillons d'Île-de-France – Agence de Meaux).Prix hors frais de notaire. Terrain sélectionné et vu pour vous sous réserve de disponibilité et au prix indiqué par notre partenaire foncier. Visuels non contractuels.Cette annonce a été créée et diffusée avec le logiciel VITAHOME.

Mormant
TERRAIN ET MAISONRéalisez votre projet de construction de maison RE 2020 avec PAVILLONS D'ÎLE-DE-FRANCE (constructeur de maisons de gamme et sur-mesure depuis plus de 50 ans) :- Plan sur-mesure et personnalisé de 2 à 5 chambres- Mode de chauffage au choix- Grands choix d'équipements et de prestations- Matériaux de qualité selon les normes en vigueur- Accompagnement dans le choix et l’acquisition du terrainInformations du terrain : Mohammed – Agence Pavillons d'Île-de-FranceVotre expert en maisons sur-mesure depuis plus de 50 ans à Mareuil-lès-MeauxTransformez votre rêve en réalité !Situé dans un écrin de verdure, ce terrain de 450 m² vous offre l'opportunité rare de construire la maison de vos rêves dans un cadre calme et agréable. À deux pas des commerces, écoles et transports, vous bénéficierez de la tranquillité de la campagne sans renoncer à la proximité de la vie urbaine.Imaginez votre futur chez-vous, parfaitement adapté à vos envies et à vos besoins. Ce terrain est prêt à accueillir votre projet et à vous offrir un cadre de vie exceptionnel.Prix : 95 000 €Ne laissez pas passer cette chance unique ! Contactez-nous dès maintenant au (Numéro supprimé) pour planifier une étude de faisabilité.Demandez une étude gratuite et personnalisée de votre projet de construction !Contactez Mohammed HAMDAOUI au (Numéro supprimé) ou au (Numéro supprimé) (Pavillons d'Île-de-France – Agence de Meaux).Prix avec assurance dommages-ouvrage comprise, hors VRD, terrain non viabilisé, assainissement non compris, frais de notaire non compris, taxes non comprises, frais divers non compris. Terrain sélectionné et vu pour vous sous réserve de disponibilité et au prix indiqué par notre partenaire foncier. Visuels non contractuels.Cette annonce a été créée et diffusée avec le logiciel VITAHOME.

Mormant
TERRAINA 2 km de la gare de Mormant ( Paris en 42 minutes) écoles et commerces terrain situé au calme dans un cadre verdoyantPrix : 85000 €.Sur ce terrain, réalisez votre projet de construction de maison RE 2020 avec PAVILLONS D'ÎLE-DE-FRANCE (constructeur de maisons de gamme et sur-mesure depuis plus de 50 ans) :- Plan sur-mesure et personnalisé de 2 à 5 chambres- Mode de chauffage au choix- Grands choix d'équipements et de prestations- Matériaux de qualité selon les normes en vigueur- Accompagnement dans le choix et l’acquisition du terrainDemandez une étude gratuite et personnalisée de votre projet de construction sur ce terrain !Contactez Olivier SAMSON au (Numéro supprimé) ou au (Numéro supprimé) (Pavillons d'Île-de-France – Agence de Meaux).Prix hors frais de notaire. Terrain sélectionné et vu pour vous sous réserve de disponibilité et au prix indiqué par notre partenaire foncier. Visuels non contractuels.Cette annonce a été créée et diffusée avec le logiciel VITAHOME.

Mormant
TERRAIN ET MAISONRéalisez votre projet de construction de maison RE 2020 avec PAVILLONS D'ÎLE-DE-FRANCE (constructeur de maisons de gamme et sur-mesure depuis plus de 50 ans) :- Plan sur-mesure et personnalisé de 2 à 5 chambres- Mode de chauffage au choix- Grands choix d'équipements et de prestations- Matériaux de qualité selon les normes en vigueur- Accompagnement dans le choix et l’acquisition du terrainInformations du terrain : Mormant , hameau de Lady, terrain plat de 500 m2, commerces, gare, écoles et collège.Demandez une étude gratuite et personnalisée de votre projet de construction !Contactez Olivier SAMSON au (Numéro supprimé) ou au (Numéro supprimé) (Pavillons d'Île-de-France – Agence de Meaux).Prix avec assurance dommages-ouvrage comprise, hors VRD, terrain non viabilisé, assainissement non compris, frais de notaire non compris, taxes non comprises, frais divers non compris. Terrain sélectionné et vu pour vous sous réserve de disponibilité et au prix indiqué par notre partenaire foncier. Visuels non contractuels.Cette annonce a été créée et diffusée avec le logiciel VITAHOME.

Mormant
TERRAIN ET MAISONRéalisez votre projet de construction de maison RE 2020 avec PAVILLONS D'ÎLE-DE-FRANCE (constructeur de maisons de gamme et sur-mesure depuis plus de 50 ans) :- Plan sur-mesure et personnalisé de 2 à 5 chambres- Mode de chauffage au choix- Grands choix d'équipements et de prestations- Matériaux de qualité selon les normes en vigueur- Accompagnement dans le choix et l’acquisition du terrainInformations du terrain : Mormant , hameau de Lady, terrain plat de 500 m2, commerces, gare, écoles et collège.Demandez une étude gratuite et personnalisée de votre projet de construction !Contactez Olivier SAMSON au (Numéro supprimé) ou au (Numéro supprimé) (Pavillons d'Île-de-France – Agence de Meaux).Prix avec assurance dommages-ouvrage comprise, hors VRD, terrain non viabilisé, assainissement non compris, frais de notaire non compris, taxes non comprises, frais divers non compris. Terrain sélectionné et vu pour vous sous réserve de disponibilité et au prix indiqué par notre partenaire foncier. Visuels non contractuels.Cette annonce a été créée et diffusée avec le logiciel VITAHOME.

Mormant
TERRAIN ET MAISONRéalisez votre projet de construction de maison RE 2020 avec PAVILLONS D'ÎLE-DE-FRANCE (constructeur de maisons de gamme et sur-mesure depuis plus de 50 ans) :- Plan sur-mesure et personnalisé de 2 à 5 chambres- Mode de chauffage au choix- Grands choix d'équipements et de prestations- Matériaux de qualité selon les normes en vigueur- Accompagnement dans le choix et l’acquisition du terrainInformations du terrain : Mohammed – Agence Pavillons d'Île-de-FranceVotre expert en maisons sur-mesure depuis plus de 50 ans à Mareuil-lès-MeauxTransformez votre rêve en réalité !Situé dans un écrin de verdure, ce terrain de 450 m² vous offre l'opportunité rare de construire la maison de vos rêves dans un cadre calme et agréable. À deux pas des commerces, écoles et transports, vous bénéficierez de la tranquillité de la campagne sans renoncer à la proximité de la vie urbaine.Imaginez votre futur chez-vous, parfaitement adapté à vos envies et à vos besoins. Ce terrain est prêt à accueillir votre projet et à vous offrir un cadre de vie exceptionnel.Prix : 95 000 €Ne laissez pas passer cette chance unique ! Contactez-nous dès maintenant au (Numéro supprimé) pour planifier une étude de faisabilité.Demandez une étude gratuite et personnalisée de votre projet de construction !Contactez Mohammed HAMDAOUI au (Numéro supprimé) ou au (Numéro supprimé) (Pavillons d'Île-de-France – Agence de Meaux).Prix avec assurance dommages-ouvrage comprise, hors VRD, terrain non viabilisé, assainissement non compris, frais de notaire non compris, taxes non comprises, frais divers non compris. Terrain sélectionné et vu pour vous sous réserve de disponibilité et au prix indiqué par notre partenaire foncier. Visuels non contractuels.Cette annonce a été créée et diffusée avec le logiciel VITAHOME.

Mormant
TERRAIN ET MAISONRéalisez votre projet de construction de maison RE 2020 avec PAVILLONS D'ÎLE-DE-FRANCE (constructeur de maisons de gamme et sur-mesure depuis plus de 50 ans) :- Plan sur-mesure et personnalisé de 2 à 5 chambres- Mode de chauffage au choix- Grands choix d'équipements et de prestations- Matériaux de qualité selon les normes en vigueur- Accompagnement dans le choix et l’acquisition du terrainInformations du terrain : Mohammed – Agence Pavillons d'Île-de-FranceVotre expert en maisons sur-mesure depuis plus de 50 ans à Mareuil-lès-MeauxTransformez votre rêve en réalité !Situé dans un écrin de verdure, ce terrain de 450 m² vous offre l'opportunité rare de construire la maison de vos rêves dans un cadre calme et agréable. À deux pas des commerces, écoles et transports, vous bénéficierez de la tranquillité de la campagne sans renoncer à la proximité de la vie urbaine.Imaginez votre futur chez-vous, parfaitement adapté à vos envies et à vos besoins. Ce terrain est prêt à accueillir votre projet et à vous offrir un cadre de vie exceptionnel.Prix : 95 000 €Ne laissez pas passer cette chance unique ! Contactez-nous dès maintenant au (Numéro supprimé) pour planifier une étude de faisabilité.Demandez une étude gratuite et personnalisée de votre projet de construction !Contactez Mohammed HAMDAOUI au (Numéro supprimé) ou au (Numéro supprimé) (Pavillons d'Île-de-France – Agence de Meaux).Prix avec assurance dommages-ouvrage comprise, hors VRD, terrain non viabilisé, assainissement non compris, frais de notaire non compris, taxes non comprises, frais divers non compris. Terrain sélectionné et vu pour vous sous réserve de disponibilité et au prix indiqué par notre partenaire foncier. Visuels non contractuels.Cette annonce a été créée et diffusée avec le logiciel VITAHOME.
L’actualité immobilière à Mormant





