Maison à construire à Nanteau-sur-Lunain (77710)
Images
Description
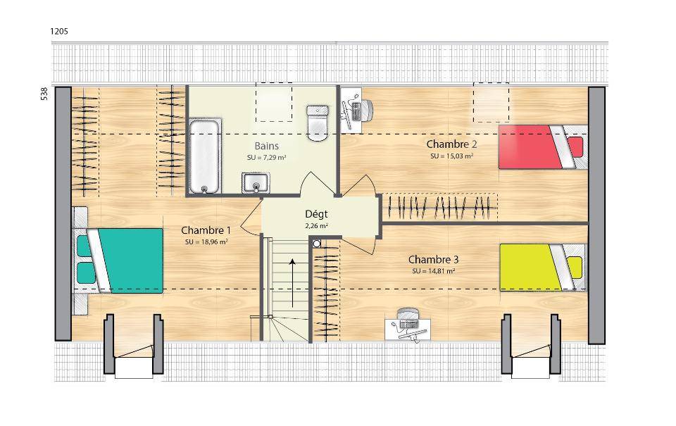
Maison F6 (105 m²) à vendre à Nanteau-sur-Lunain
MAISON 6 PIÈCES NEUVE
À deux pas de la gare de Bagneaux-sur-Loing (Paris à 1 h par le Transilien R), nous vous proposons cette maison de 6 pièces de 105 m² et de 1 100 m² de terrain en vente à Nanteau-sur-Lunain (77710). Elle est composée de quatre chambres, d'une cuisine et de deux salles de bains.
C'est une maison de 2 niveaux. Elle est neuve.
On trouve une école maternelle dans le quartier. Côté transports, il y a trois gares (Bagneaux-sur-Loing, Nemours-Saint-Pierre et Souppes-Château-Landon) à moins de 10 minutes en voiture. On trouve un bassin de natation, une boulangerie et un commerce à quelques minutes.
Son prix de vente est de 280 000 €.
Prenez contact avec Stéphan HOURMANT (tél : (Numéro supprimé)) pour toute question sur cette maison.
Annonce proposée par un Agent Commercial Partenaire.
Logement susceptibles de vous intéresser
Nous vous proposons de découvrir aussi cette sélection de logements situés à moins de 10km de Nanteau-sur-Lunain et qui seraient susceptibles de vous intéresser.
Lorrez-le-Bocage-Préaux
TERRAIN ET MAISONVENTE : maison T6 (89 m²) à Lorrez-le-Bocage-PréauxMAISON 6 PIÈCES NEUVE – PROCHE DE SENSÀ vendre à 31 km de Sens, Maisons France Confort Nemours vous propose cette maison de 6 pièces de 89 m² à Lorrez-le-Bocage-Préaux (77710).Il s’agit d’une maison de 2 niveaux. Son intérieur se divise en quatre chambres, une cuisine et une salle de bains. Cette maison est neuve.Le terrain de la propriété s’étend sur 300 m².Il y a l’École Élémentaire les Chenevières, l’École Maternelle les Chenevières et le Collège Jacques Prévert à moins de 10 minutes à pied. On trouve une bibliothèque, une boulangerie, un supermarché, un bureau de poste, une boucherie-charcuterie et deux épiceries à quelques minutes.Son prix de vente est de 218 000 €.Contactez Jerome RAOUX (tél : (Numéro supprimé)) pour tout renseignement sur la maison, sur les modalités de vente ou sur les démarches à suivre. Maisons France Confort Nemours est là pour vous accompagner dans tous vos projets immobiliers.Annonce proposée par un Agent Commercial Partenaire.
Villecerf
TERRAIN ET MAISONTrès beau terrain dans quartier résidentiel . Familiale et fonctionnelle cette maison de 106 m² habitables vous séduira par ses volumes et son aménagement. Son très bel espace de vie de 47 m² environ avec sa cuisine ouverte avec accès direct au jardin grâce à sa baie vitrée. L’espace nuit est composé d’une suite parentale avec dressing et salle d’eau privative, à l’opposé trois chambres avec rangements, une salle de bains indépendante. Pour vous assurer un confort de vie et conformément à la RE2025, nous avons choisi un mode de chauffage par PAC + plancher chauffant, volets roulants électriques. Prix hors fourniture et pose : des appareils sanitaires (sauf système de chauffage et d'eau chaude sanitaire), du carrelage et de la faïence, des revêtements de sol dans les chambres. Hors décoration et aménagement intérieur et peinture. Hors raccordements, frais de notaire et dommage ouvrage. // Réf. : 2115-213612-CHL. Prix terrain : 68 000 €, hors frais d'agence à la charge de l'acquéreur. Ce terrain vous est proposé, par nos partenaires fonciers, dans le cadre d'un projet de construction avec nous. Les informations sur les risques auxquels ce bien est exposé sont disponibles sur le site Géorisques (www.georisques.gouv.fr). Prix maison : 156 976 €.
Villecerf
TERRAINTrès beau terrain dans quartier résidentiel . // Réf. : T213612. Prix terrain : 68 000 €, hors frais d'agence et de notaire à la charge de l'acquéreur. Ce terrain vous est proposé, par nos partenaires fonciers, dans le cadre d'un projet de construction avec nous. Les informations sur les risques auxquels ce bien est exposé sont disponibles sur le site Géorisques (www.georisques.gouv.fr).
Villecerf
TERRAINTrès beau terrain dans quartier résidentiel . // Réf. : T213612. Prix terrain : 68 000 €, hors frais d'agence et de notaire à la charge de l'acquéreur. Ce terrain vous est proposé, par nos partenaires fonciers, dans le cadre d'un projet de construction avec nous. Les informations sur les risques auxquels ce bien est exposé sont disponibles sur le site Géorisques (www.georisques.gouv.fr).
Égreville
TERRAIN ET MAISONTrès beau terrain en centre ville écoles et commerces sur place . Cette maison de plain-pied en L, fonctionnelle et spacieuse vous propose un bel espace de vie lumineux et traversant. Sa cuisine est ouverte sur le séjour et a un accès direct au cellier. Son espace nuit est composé de trois belles chambres dont une suite parentale avec dressing et salle de bain privative, une deuxième salle de bains équipé ainsi que des wc séparés. Pour vous assurer un confort de vie et conformément à la RE2025, nous avons choisi un mode de chauffage par PAC + plancher chauffant, volets roulants électriques. Prix hors fourniture et pose : des appareils sanitaires (sauf système de chauffage et d'eau chaude sanitaire), du carrelage et de la faïence, des revêtements de sol dans les chambres. Hors décoration et aménagement intérieur et peinture. Hors raccordements, frais de notaire et dommage ouvrage. // Réf. : 1898-213603-CHL. Prix terrain : 50 000 €, hors frais d'agence à la charge de l'acquéreur. Ce terrain vous est proposé, par nos partenaires fonciers, dans le cadre d'un projet de construction avec nous. Les informations sur les risques auxquels ce bien est exposé sont disponibles sur le site Géorisques (www.georisques.gouv.fr). Prix maison : 151 705 €.
Nanteau-sur-Lunain
TERRAIN ET MAISONBeau terrain proche du bourg a 10 minutes de la gare de Nemours . Une façade optimisée, une maison qui s’intègre partout ! Avec sa façade pensée pour les terrains étroits, cette maison allie design compact et espaces généreux. Son architecture moderne maximise la lumière et l’ouverture, tout en offrant un intérieur spacieux et fonctionnel. Profitez d’un séjour convivial et lumineux, de 3 belles chambres, d’une salle de bain spacieuse, et d’un garage astucieusement intégré. Chaque détail est optimisé pour un confort absolu. Pour un confort optimal et conforme à la RE2025, cette maison dispose d’une PAC avec plancher chauffant, radiateurs à l’étage et volets roulants électriques. À noter : Le prix indiqué exclut les revêtements de sol des chambres, la cuisine aménagée, la peinture, la décoration, les raccordements, les frais de notaire et l’assurance dommages-ouvrage. Une maison élégante et adaptable – idéale pour donner vie à vos envies !. // Réf. : 25-213614-CHL. Prix terrain : 85 000 €, hors frais d'agence à la charge de l'acquéreur. Ce terrain vous est proposé, par nos partenaires fonciers, dans le cadre d'un projet de construction avec nous. Les informations sur les risques auxquels ce bien est exposé sont disponibles sur le site Géorisques (www.georisques.gouv.fr). Prix maison : 171 558 €.
Villemaréchal
TERRAIN ET MAISONVENTE : maison F4 (81 m²) à VillemaréchalMAISON 4 PIÈCES NEUVEEn vente : nous vous présentons cette maison de 4 pièces de plain-pied de 81 m² à Villemaréchal (77710).Conçue de plain-pied, elle propose trois chambres, une cuisine et une salle de bains. La maison est neuve.Le terrain du bien est de 764 m².Il y a une école élémentaire dans le quartier. On trouve un commerce et une épicerie à quelques minutes.Elle est à vendre pour la somme de 208 149 €.Contactez notre agence (Anne DELOHEN : (Numéro supprimé)) pour toute information sur la maison, sur les démarches à suivre ou sur les modalités de vente. Concrétisez vos projets immobiliers avec Maisons France Confort Nemours.Annonce proposée par un Agent Commercial Partenaire.
Égreville
TERRAIN ET MAISONTerrain très sympa centre ville école et commerces sur place . a 20 minutes de Nemours. Une maison bien pensée, où chaque espace a sa place . Avec ses 93 m² parfaitement optimisés, cette maison séduit par une configuration fonctionnelle et chaleureuse. Les trois chambres sont regroupées côté nuit, dont une avec dressing pour plus de confort, et deux pièces d’eau (salle de bain + salle d’eau) pour une vraie praticité au quotidien. L’espace de vie central, lumineux et ouvert sur l’extérieur, occupe une place généreuse au cœur de la maison. Un cellier malin, un WC indépendant et un garage complètent ce plan intelligent, pensé pour faciliter la vie de toute la famille. Un modèle compact, mais complet, à personnaliser selon vos envies. Pour un confort optimal et conforme à la RE2025, cette maison dispose d’une PAC avec plancher chauffant et volets roulants électriques. À noter : Le prix indiqué exclut les revêtements de sol des chambres, la cuisine aménagée, la peinture, la décoration, les raccordements, les frais de notaire et l’assurance dommages-ouvrage. Contactez-nous dès aujourd’hui pour concrétiser votre projet et façonner votre futur chez-vous !. // Réf. : 1721-213596-CHL. Prix terrain : 33 000 €, hors frais d'agence à la charge de l'acquéreur. Ce terrain vous est proposé, par nos partenaires fonciers, dans le cadre d'un projet de construction avec nous. Les informations sur les risques auxquels ce bien est exposé sont disponibles sur le site Géorisques (www.georisques.gouv.fr). Prix maison : 188 978 €.
Poligny
TERRAIN ET MAISONMaison T5 (90 m²) à vendre à PolignyMAISON 5 PIÈCES NEUVEÀ proximité de la gare de Bagneaux-sur-Loing (Paris à 1 h avec le Transilien R), nous sommes ravis de vous proposer cette maison de 5 pièces de plain-pied de 90 m² et de 890 m² de terrain à vendre à Poligny (77167).Conçue de plain-pied, elle inclut trois chambres, une cuisine et deux salles de bains. La maison est neuve.Une école primaire est implantée dans le quartier. Côté transports, il y a quatre gares à moins de 10 minutes en voiture.Elle est proposée à l’achat pour 248 332 €.Contactez Anne DELOHEN (tél : (Numéro supprimé)) pour obtenir de plus amples informations sur cette maison.Annonce proposée par un Agent Commercial Partenaire.
L’actualité immobilière à Nanteau-sur-Lunain
27/11/2023
02/11/2023
30/10/2023
20/10/2023
16/10/2023
16/10/2023