Maison à construire à Nemours (77140)
Images
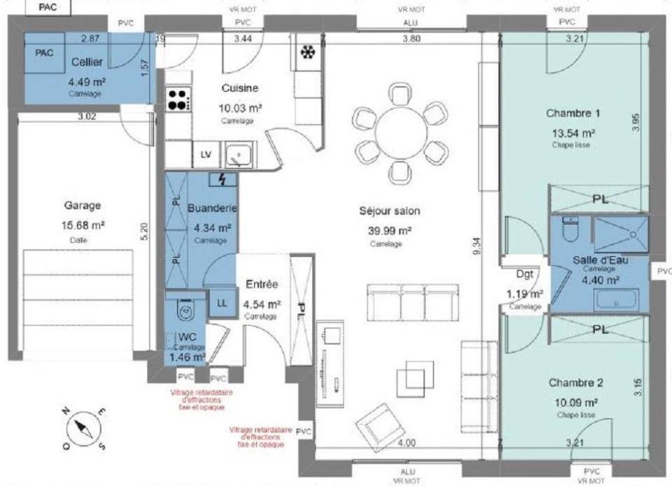
Description
Centre-ville de Nemours (77140), à 1h15 de PARIS, dès 268 000 €
Plain-pied en L de 90 m² avec garage à bâtir sur un beau terrain de 752 m²
Rêvez d'une belle habitation familiale réalisable avec son garage, sur un terrain bénéficiant d'une généreuse façade de 17 mètres. Cette opportunité rare est à saisir en plein centre-ville, au sein d'une commune recherchée de Seine et Marne.
Votre habitation respectera scrupuleusement les dernières normes RE2020 et sera DPE A ou B (selon son orientation).
Profitez d'un quotidien facilité :
- Faites vos courses en un clin d'oeil au Carrefour Market (à 5 minutes à pied) ou découvrez les produits frais du terroir sur le marché hebdomadaire de la place de la République (également à 5 minutes à pied).
- Assurez l'avenir de vos enfants grâce à la proximité de l'école maternelle et primaire du Centre (à 7 minutes à pied) et du Collège Arthur Rimbaud (à 10 minutes en vélo).
- Voyagez en toute simplicité grâce à la gare de Nemours - Saint-Pierre (à 12 minutes à pied), desservie par les lignes R du Transilien, vous connectant aisément à Paris et aux environs.
- Offrez-vous des pauses nature au charmant jardin du Luxembourg nemourien ou le long des paisibles rives du Loing, accessibles en quelques minutes de marche. Les cinéphiles apprécieront le cinéma Le Monte Carlo situé à 8 minutes à pied.
- Bénéficiez de la praticité de la pharmacie de la Place et d'une variété de commerces de proximité, tous situés à moins de 5 minutes de votre future adresse.
Ne laissez pas passer cette occasion unique de construire la demeure de vos rêves au coeur de Nemours ! Contactez-nous dès maintenant au (Numéro supprimé) afin que nous puissions vous aider dans cotre nouveau projet de vie, de la recherche foncière à la remise des clés.
23 chemin de Tournenfils
91540 ORMOY
Annonce proposée par un Agent Commercial Partenaire.
Logement susceptibles de vous intéresser
Nous vous proposons de découvrir aussi cette sélection de logements situés à moins de 10km de Nemours et qui seraient susceptibles de vous intéresser.
Grez-sur-Loing
TERRAINTerrain de 420 m² à vendre à Grez-sur-LoingEMPLACEMENT PRIVILÉGIÉ – PROCHE DE MELUNÀ proximité du Transilien R (gare de Bourron-Marlotte-Grez, 1 h de Paris) à Grez-sur-Loing (77880), terrain de 420 m². Dans un quartier recherché, le terrain bénéficiant d’un emplacement privilégié est proche des commerces et des écoles. L’École Primaire les Murgers est implantée dans la commune. Côté transports en commun, il y a quatre gares à moins de 10 minutes en voiture. On trouve un commerce dans les environs.Son prix de vente est de 88 000 €. Contactez notre agence (Anne DELOHEN : (Numéro supprimé)) pour tout renseignement sur ce terrain, sur les démarches à suivre ou sur les modalités de vente.Annonce proposée par un Agent Commercial Partenaire.
Nanteau-sur-Lunain
TERRAINVENTE d’un terrain de 1 100 m² à Nanteau-sur-LunainEMPLACEMENT PRIVILÉGIÉProche de la gare de Bagneaux-sur-Loing (Paris à 1 h avec le Transilien R) à Nanteau-sur-Lunain (77710), grand terrain. Il est situé dans un secteur convoité. On y trouve une école maternelle. Côté transports, il y a les gares Bagneaux-sur-Loing, Nemours-Saint-Pierre et Souppes-Château-Landon à moins de 10 minutes en voiture. On trouve un bassin de natation, une boulangerie et un commerce dans les environs.Il est proposé à l’achat pour 49 000 €. Contactez notre agence (DELOHEN Anne : (Numéro supprimé)) pour tout renseignement sur ce terrain, sur les démarches à suivre ou sur les modalités de vente. Faites de vos projets immobiliers une réalité avec Maisons France Confort Nemours.Annonce proposée par un Agent Commercial Partenaire.
Nemours
TERRAINTerrain de 752 m² à vendre à NemoursProche des commodités à Nemours (77140), grand terrain. Réalisez-y votre résidence principale ou secondaire. Ce terrain est proche des commerces et des écoles. Des établissements scolaires du primaire et du secondaire se trouvent à moins de 10 minutes à pied. Côté transports, il y a la gare Nemours-Saint-Pierre dans les alentours. On trouve des boulangeries, des commerces, un supermarché, une supérette et deux boucheries-charcuteries à quelques minutes de la propriété. Le marché Centre-Ville anime le quartier.Il est proposé à l’achat pour 87 000 €. Prenez contact avec Anne DELOHEN ((Numéro supprimé)) pour plus d’informations sur ce terrain. Maisons France Confort Nemours est là pour vous accompagner dans toutes vos démarches.Annonce proposée par un Agent Commercial Partenaire.
Montigny-sur-Loing
TERRAINMontigny-sur-Loing : terrain de 710 m² en ventePROCHE DE MELUNÀ Montigny-sur-Loing (77690) à côté du Transilien R (55 min de Paris), venez découvrir ce terrain de 710 m². Le terrain est proche des écoles et des commerces. L’École Primaire Maurice Martin est implantée à moins de 10 minutes à pied. Niveau transports, on trouve six gares à moins de 10 minutes en voiture. Il y a un tennis à proximité.Son prix de vente est de 115 000 €. Contactez Anne DELOHEN ((Numéro supprimé)) pour tout renseignement sur ce terrain, sur les démarches à suivre ou sur les modalités de vente.Annonce proposée par un Agent Commercial Partenaire.
Grez-sur-Loing
TERRAIN ET MAISONGrez-sur-Loing : maison de 5 pièces (89 m²) en venteEMPLACEMENT PRIVILÉGIÉ – MAISON 5 PIÈCES NEUVEProche de la gare de Bourron-Marlotte-Grez (Paris à 1 h par le Transilien R), en vente bénéficiant d’un emplacement privilégié dans Grez-sur-Loing (77880), nous sommes ravis de vous présenter cette maison de 5 pièces de 89 m² et de 420 m² de terrain. Elle se divise en trois chambres, une cuisine et deux salles de bains.Cette maison compte 2 niveaux. Elle est neuve.Cette maison se trouve dans un quartier attractif. On y trouve l’École Primaire les Murgers. Niveau transports, il y a quatre gares à moins de 10 minutes en voiture. On trouve un commerce à proximité.Son prix de vente est de 275 500 €.N’hésitez pas à prendre contact avec notre agence (Anne DELOHEN : (Numéro supprimé)) pour obtenir de plus amples renseignements sur la maison.Annonce proposée par un Agent Commercial Partenaire.
Nanteau-sur-Lunain
TERRAIN ET MAISONNanteau-sur-Lunain : maison F4 (81 m²) en venteEMPLACEMENT PRIVILÉGIÉ – MAISON 4 PIÈCES NEUVEÀ vendre : à proximité du Transilien R (gare de Bagneaux-sur-Loing, 1 h de Paris), notre agence Maisons France Confort Nemours est heureuse de vous présenter, bénéficiant d’un emplacement d’exception dans Nanteau-sur-Lunain (77710), cette maison de 4 pièces de plain-pied de 81 m².Son intérieur se divise en trois chambres, une cuisine et une salle de bains. Cette maison est neuve.Le terrain du bien s’étend sur 1 100 m².La maison se trouve dans un quartier prisé. Une école maternelle y est implantée. Niveau transports, il y a les gares Bagneaux-sur-Loing, Nemours-Saint-Pierre et Souppes-Château-Landon à moins de 10 minutes en voiture. On trouve un bassin de natation, une boulangerie et un commerce à proximité.Son prix de vente est de 207 550 €.Prenez contact avec notre constructeur (DELOHEN Anne : (Numéro supprimé)) pour obtenir de plus amples informations sur la maison ou sur les démarches à suivre. Maisons France Confort Nemours est là pour vous accompagner à toutes les étapes de l’achat.Annonce proposée par un Agent Commercial Partenaire.
Nemours
TERRAIN ET MAISONMaison F6 (105 m²) en vente à NemoursMAISON 6 PIÈCES NEUVEEn vente : nous sommes heureux de vous présenter cette maison de 6 pièces de 105 m² et de 752 m² de terrain à Nemours (77140).C’est une maison de 2 niveaux. Son intérieur offre quatre chambres, une cuisine et deux salles de bains. Cette maison est neuve.Il y a tous les types d’établissements scolaires à moins de 10 minutes à pied. Niveau transports en commun, on trouve la gare Nemours-Saint-Pierre juste à côté. Il y a des boulangeries, des commerces, un supermarché, des épiceries et un bureau de poste dans les environs. Enfin, le marché Centre-Ville anime le quartier.Elle est à vendre pour la somme de 313 200 €.Contactez notre agence (Anne DELOHEN : (Numéro supprimé)) pour tout renseignement sur la maison, sur les modalités de vente ou sur les démarches à suivre. Maisons France Confort Nemours vous accompagne à toutes les étapes de l’achat et dans tous vos projets immobiliers.Annonce proposée par un Agent Commercial Partenaire.
Montigny-sur-Loing
TERRAIN ET MAISONMaison de 5 pièces (100 m²) à vendre à Montigny-sur-LoingMAISON 5 PIÈCES NEUVE – PROCHE DE MELUNÀ vendre : à proximité de la gare (Paris à 55 min avec le Transilien R), à Montigny-sur-Loing (77690), ayez le coup de coeur pour cette maison de 5 pièces de 100 m² et de 710 m² de terrain. Elle inclut trois chambres, une cuisine et une salle de bains.C’est une maison de 2 niveaux. Elle est neuve.Il y a l’École Primaire Maurice Martin à moins de 10 minutes à pied. Niveau transports, on trouve six gares à moins de 10 minutes en voiture. Il y a un tennis à proximité du logement.Elle est à vendre pour la somme de 345 500 €.Prenez contact avec notre agence (DELOHEN Anne : (Numéro supprimé)) pour toute question sur cette maison.Annonce proposée par un Agent Commercial Partenaire.
Souppes-sur-Loing
TERRAINBau terrain a voir écoles et commerces sur place. // Réf. : T209971. Prix terrain : 73 000 €, hors frais d'agence et de notaire à la charge de l'acquéreur. Ce terrain vous est proposé, par nos partenaires fonciers, dans le cadre d'un projet de construction avec nous. Les informations sur les risques auxquels ce bien est exposé sont disponibles sur le site Géorisques (www.georisques.gouv.fr).
L’actualité immobilière à Nemours
27/11/2023
02/11/2023
30/10/2023
20/10/2023
16/10/2023
16/10/2023