Maison à construire à Neufmoutiers-en-Brie (77610)
Images
Description
VENTE : maison de 8 pièces (145 m²) à Neufmoutiers-en-Brie
PROCHE CENTRE-VILLE - MAISON 8 PIÈCES NEUVE
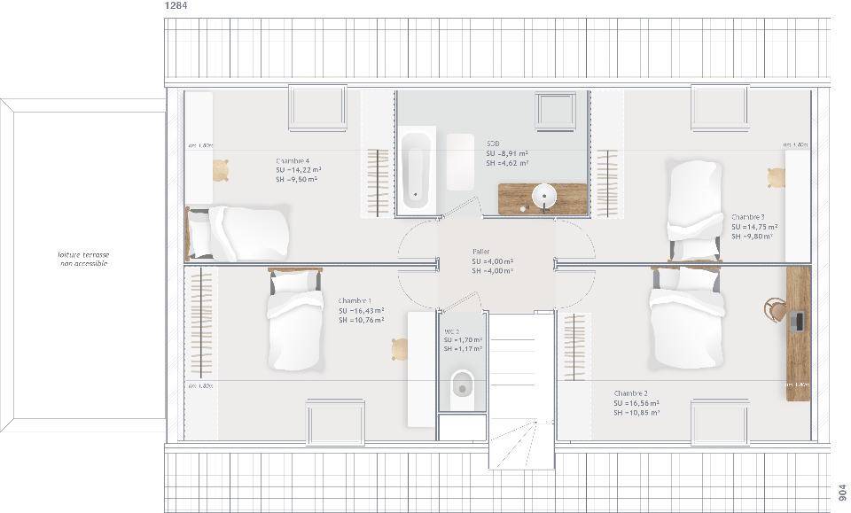
À proximité du Transilien P (gare de Marles-en-Brie, 35 min de Paris), venez découvrir cette maison de 8 pièces de 145 m² et de 700 m² de terrain proche du centre-ville de Neufmoutiers-en-Brie (77610). Son intérieur dispose de six chambres, d'une cuisine et de deux salles de bains.
Il s'agit d'une maison de 2 niveaux. Elle est neuve.
L'École Primaire Daniel Balavoine est implantée à moins de 10 minutes à pied. Niveau transports en commun, on trouve la ligne de RER E (Tournan) ainsi que quatre gares à moins de 10 minutes en voiture. Il y a un tennis, un commerce et une épicerie dans les environs.
Son prix de vente est de 430 894 €.
N'hésitez pas à prendre contact avec Cedric YAHIAOUI ((Numéro supprimé)) pour toute information sur la maison ou sur les modalités de vente. Maisons France Confort Mareuil-lès-Meaux vous accompagne dans tous vos projets immobiliers et dans toutes vos démarches.
Annonce proposée par un Agent Commercial Partenaire.
Logement susceptibles de vous intéresser
Nous vous proposons de découvrir aussi cette sélection de logements situés à moins de 10km de Neufmoutiers-en-Brie et qui seraient susceptibles de vous intéresser.
Châtres
TERRAIN ET MAISONContactez Stéphanie SEBAG de l’agence Maisons Evolution de Mareuil-lès-Meaux au (Numéro supprimé) pour avoir plus d’informations sur ce projet.Très jolie maison à étage de 124 m² habitables avec garage accolé idéalement située sur la commune de CHATRESElle est composée de 5 chambres au total dont une grande suite parentale avec salle d’eau, de 3 salles de bains au total, de deux WC séparés et d’un grand salon-séjour lumineux avec cuisine ouverte donnant sur un cellier puis sur le garage.Les plans sont entièrement modifiables selon vos souhaits, en agence ou visioconférence. Nous vous proposons un véritable accompagnement de qualité tout au long de votre projet.Dessinons ensemble votre future maison !Tel : (Numéro supprimé)Annonce proposée par un Agent Commercial Partenaire.
Tigeaux
TERRAIN ET MAISONVENTE : maison T4 (82 m²) à TigeauxMAISON 4 PIÈCES NEUVE En vente : à proximité de la gare de Guérard-La Celle-sur-Morin (Paris à 45 min avec le Transilien P), nous sommes ravis de vous présenter à Tigeaux (77163), cette maison de 4 pièces de 82 m². Elle se divise en trois chambres, une cuisine et une salle de bains.Le terrain du bien est de 1 004 m².Il s’agit d’une maison de 2 niveaux. Elle est neuve.Il y a une école élémentaire dans le quartier. Niveau transports, on trouve sept gares à moins de 10 minutes en voiture.Son prix de vente est de 299 451 €.Contactez Anne DELOHEN ((Numéro supprimé)) pour tout renseignement sur cette maison ou sur les démarches à suivre. Maisons France Confort Nemours est là pour vous accompagner à toutes les étapes de l’achat.Annonce proposée par un Agent Commercial Partenaire.
Voulangis
TERRAIN ET MAISONRéalisez votre projet de construction de maison RE 2020 avec PAVILLONS D'ÎLE-DE-FRANCE (constructeur de maisons de gamme et sur-mesure depuis plus de 50 ans) :- Plan sur-mesure et personnalisé de 2 à 5 chambres- Mode de chauffage au choix- Grands choix d'équipements et de prestations- Matériaux de qualité selon les normes en vigueur- Accompagnement dans le choix et l’acquisition du terrainInformations du terrain : Mohammed – Agence Pavillons d'Île-de-FranceVotre expert en maisons sur-mesure depuis plus de 50 ans à Mareuil-lès-MeauxTransformez votre rêve en réalité !Situé dans un écrin de verdure, ce terrain de 170 m² vous offre l'opportunité rare de construire la maison de vos rêves dans un cadre calme et agréable. À deux pas des commerces, écoles et transports, vous bénéficierez de la tranquillité de la campagne sans renoncer à la proximité de la vie urbaine.Imaginez votre futur chez-vous, parfaitement adapté à vos envies et à vos besoins. Ce terrain est prêt à accueillir votre projet et à vous offrir un cadre de vie exceptionnel.Prix : 99 000 €Ne laissez pas passer cette chance unique ! Contactez-nous dès maintenant au (Numéro supprimé) pour planifier une étude de faisabilité.Demandez une étude gratuite et personnalisée de votre projet de construction !Contactez Mohammed HAMDAOUI au (Numéro supprimé) ou au (Numéro supprimé) (Pavillons d'Île-de-France – Agence de Meaux).Prix avec assurance dommages-ouvrage comprise, hors VRD, terrain viabilisé, assainissement non compris, frais de notaire non compris, taxes non comprises, frais divers non compris. Terrain sélectionné et vu pour vous sous réserve de disponibilité et au prix indiqué par notre partenaire foncier. Visuels non contractuels.Cette annonce a été créée et diffusée avec le logiciel VITAHOME.
Tournan-en-Brie
TERRAIN ET MAISONVENTE d’une maison de 6 pièces (105 m²) à 7 min de Tournan-en-BrieIDÉALEMENT SITUÉE – MAISON 6 PIÈCES NEUVEÀ vendre : à côté de la station Tournan (Paris à 40 min par le RER E), idéalement située dans Les Chapelles Bourbon à 7 min de Tournan-en-Brie (77220), Maisons France Confort La Queue-en-Brie vous présente cette maison de 6 pièces de 105 m² sans vis-à-vis. Elle comporte trois chambres, une cuisine et deux salles de bains.Le terrain de la propriété est de 323 m².Cette maison compte 2 niveaux. Elle est neuve.Cette maison se situe dans un quartier recherché. Des écoles maternelles et élémentaires sont implantées à moins de 10 minutes à pied, tout comme trois structures d’accueil pour la petite enfance. Niveau transports en commun, il y a la station de RER Tournan (ligne E) ainsi que la gare Tournan-en-Brie à proximité. On trouve une bibliothèque, un tennis, des commerces, trois boulangeries, un supermarché, deux épiceries et un bureau de poste à quelques minutes. Le marché Place du marché anime les environs tous les samedis matin.Elle est à vendre pour la somme de 358 000 €.Contactez Dominique (tél : (Numéro supprimé)) pour obtenir de plus amples renseignements sur la maison ou sur les modalités de vente.
Voulangis
TERRAINPrix : 195000 €.Sur ce terrain, réalisez votre projet de construction de maison RE 2020 avec PAVILLONS D'ÎLE-DE-FRANCE (constructeur de maisons de gamme et sur-mesure depuis plus de 50 ans) :- Plan sur-mesure et personnalisé de 2 à 5 chambres- Mode de chauffage au choix- Grands choix d'équipements et de prestations- Matériaux de qualité selon les normes en vigueur- Accompagnement dans le choix et l’acquisition du terrainDemandez une étude gratuite et personnalisée de votre projet de construction sur ce terrain !Contactez Stéphane VERHAUVEN au (Numéro supprimé) ou au (Numéro supprimé) (Pavillons d'Île-de-France – Agence de Meaux).Prix hors frais de notaire. Terrain sélectionné et vu pour vous sous réserve de disponibilité et au prix indiqué par notre partenaire foncier. Visuels non contractuels.Cette annonce a été créée et diffusée avec le logiciel VITAHOME.
Châtres
TERRAIN ET MAISONVENTE : maison F4 (70 m²) à ChâtresPROCHE DE CRÉTEIL – MAISON 4 PIÈCES NEUVEÀ vendre : au pied de la station Tournan (Paris à 40 min par le RER E), nous vous présentons cette maison de 4 pièces de plain-pied de 70 m² et de 600 m² de terrain à Châtres (77610).Son intérieur dispose de deux chambres, d’une cuisine et d’une salle de bains. Cette maison est neuve.Il y a l’École Primaire Robert Fery à moins de 10 minutes à pied. Côté transports, on trouve la ligne de RER E (Tournan) ainsi que quatre gares à moins de 10 minutes en voiture.Elle est proposée à l’achat pour 360 000 €.Contactez Jerome RAOUX (tél : (Numéro supprimé)) pour toute information sur la maison ou sur les modalités de vente. Maisons France Confort Nemours vous accompagne dans toutes vos démarches et dans tous vos projets immobiliers.Annonce proposée par un Agent Commercial Partenaire.
Coutevroult
TERRAINTerrain de 1 014 m² en vente à CoutevroultPROCHE DE MONTREUILÀ Coutevroult (77580) à quelques minutes du Transilien P (gare d’Esbly, 30 min de Paris), projetez la maison de vos rêves sur ce terrain de 1 014 m². L’École Primaire Pierre Falke est implantée à moins de 10 minutes à pied. Niveau transports en commun, on trouve la ligne de RER A (Chessy-Marne-La-Vallée) ainsi que huit gares à moins de 10 minutes en voiture. Il y a deux commerces dans les environs.Il est proposé à l’achat pour 265 000 €. Contactez Thomas ROUSSEL TOUATI ((Numéro supprimé)) pour obtenir de plus amples renseignements sur le terrain ou sur les modalités de vente. Maisons France Confort Magny-le-Hongre est là pour vous accompagner dans toutes vos démarches.Annonce proposée par un Agent Commercial Partenaire.
Tournan-en-Brie
TERRAIN ET MAISONRéalisez votre projet de construction de maison RE 2020 avec PAVILLONS D'ÎLE-DE-FRANCE (constructeur de maisons de gamme et sur-mesure depuis plus de 50 ans) :- Plan sur-mesure et personnalisé de 2 à 5 chambres- Mode de chauffage au choix- Grands choix d'équipements et de prestations- Matériaux de qualité selon les normes en vigueur- Accompagnement dans le choix et l’acquisition du terrainInformations du terrain : Terrain situé à Favières , 5 minutes de la gare RER E de Tournan en Brie.Cadre verdoyant et calme.Contactez Olivier au (Numéro supprimé)Demandez une étude gratuite et personnalisée de votre projet de construction !Contactez Olivier SAMSON au (Numéro supprimé) ou au (Numéro supprimé) (Pavillons d'Île-de-France – Agence de Meaux).Prix avec assurance dommages-ouvrage comprise, hors VRD, terrain non viabilisé, assainissement non compris, frais de notaire non compris, taxes non comprises, frais divers non compris. Terrain sélectionné et vu pour vous sous réserve de disponibilité et au prix indiqué par notre partenaire foncier. Visuels non contractuels.Cette annonce a été créée et diffusée avec le logiciel VITAHOME.
Voulangis
TERRAIN ET MAISONRéalisez votre projet de construction de maison RE 2020 avec PAVILLONS D'ÎLE-DE-FRANCE (constructeur de maisons de gamme et sur-mesure depuis plus de 50 ans) :- Plan sur-mesure et personnalisé de 2 à 5 chambres- Mode de chauffage au choix- Grands choix d'équipements et de prestations- Matériaux de qualité selon les normes en vigueur- Accompagnement dans le choix et l’acquisition du terrainInformations du terrain : Mohammed – Agence Pavillons d'Île-de-FranceVotre expert en maisons sur-mesure depuis plus de 50 ans à Mareuil-lès-MeauxTransformez votre rêve en réalité !Situé dans un écrin de verdure, ce terrain de 170 m² vous offre l'opportunité rare de construire la maison de vos rêves dans un cadre calme et agréable. À deux pas des commerces, écoles et transports, vous bénéficierez de la tranquillité de la campagne sans renoncer à la proximité de la vie urbaine.Imaginez votre futur chez-vous, parfaitement adapté à vos envies et à vos besoins. Ce terrain est prêt à accueillir votre projet et à vous offrir un cadre de vie exceptionnel.Prix : 99 000 €Ne laissez pas passer cette chance unique ! Contactez-nous dès maintenant au (Numéro supprimé) pour planifier une étude de faisabilité.Demandez une étude gratuite et personnalisée de votre projet de construction !Contactez Mohammed HAMDAOUI au (Numéro supprimé) ou au (Numéro supprimé) (Pavillons d'Île-de-France – Agence de Meaux).Prix avec assurance dommages-ouvrage comprise, hors VRD, terrain viabilisé, assainissement non compris, frais de notaire non compris, taxes non comprises, frais divers non compris. Terrain sélectionné et vu pour vous sous réserve de disponibilité et au prix indiqué par notre partenaire foncier. Visuels non contractuels.Cette annonce a été créée et diffusée avec le logiciel VITAHOME.
L’actualité immobilière à Neufmoutiers-en-Brie
27/11/2023
02/11/2023
30/10/2023
20/10/2023
16/10/2023
16/10/2023