Maison à construire à Poligny (77167)
Images
Description
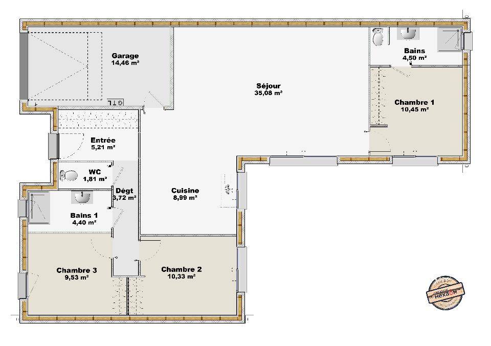
VENTE d'une maison T4 (94 m²) à Poligny
MAISON 4 PIÈCES NEUVE
Proche de la gare de Bagneaux-sur-Loing (Paris à 1 h par le Transilien R), Maisons France Confort Nemours vous propose cette maison de 4 pièces de plain-pied de 94 m² à vendre à Poligny (77167).
Elle inclut trois chambres, une cuisine et deux salles de bains. La maison est neuve.
Le terrain du bien s'étend sur 1 040 m².
Une école primaire est implantée dans le quartier. Côté transports en commun, il y a quatre gares à moins de 10 minutes en voiture.
Son prix de vente est de 300 840 €.
Contactez Anne DELOHEN (tél : (Numéro supprimé)) pour tout renseignement sur cette maison ou sur les modalités de vente. Maisons France Confort Nemours est là pour vous accompagner dans tous vos projets immobiliers.
Annonce proposée par un Agent Commercial Partenaire.
Logement susceptibles de vous intéresser
Nous vous proposons de découvrir aussi cette sélection de logements situés à moins de 10km de Poligny et qui seraient susceptibles de vous intéresser.
Nanteau-sur-Lunain
TERRAIN ET MAISONBeau terrain proche du bourg a 10 minutes de la gare de Nemours . Une façade optimisée, une maison qui s’intègre partout ! Avec sa façade pensée pour les terrains étroits, cette maison allie design compact et espaces généreux. Son architecture moderne maximise la lumière et l’ouverture, tout en offrant un intérieur spacieux et fonctionnel. Profitez d’un séjour convivial et lumineux, de 3 belles chambres, d’une salle de bain spacieuse, et d’un garage astucieusement intégré. Chaque détail est optimisé pour un confort absolu. Pour un confort optimal et conforme à la RE2025, cette maison dispose d’une PAC avec plancher chauffant, radiateurs à l’étage et volets roulants électriques. À noter : Le prix indiqué exclut les revêtements de sol des chambres, la cuisine aménagée, la peinture, la décoration, les raccordements, les frais de notaire et l’assurance dommages-ouvrage. Une maison élégante et adaptable – idéale pour donner vie à vos envies !. // Réf. : 25-213614-CHL. Prix terrain : 85 000 €, hors frais d'agence à la charge de l'acquéreur. Ce terrain vous est proposé, par nos partenaires fonciers, dans le cadre d'un projet de construction avec nous. Les informations sur les risques auxquels ce bien est exposé sont disponibles sur le site Géorisques (www.georisques.gouv.fr). Prix maison : 171 558 €.
Villemaréchal
TERRAIN ET MAISONVENTE : maison F4 (81 m²) à VillemaréchalMAISON 4 PIÈCES NEUVEEn vente : nous vous présentons cette maison de 4 pièces de plain-pied de 81 m² à Villemaréchal (77710).Conçue de plain-pied, elle propose trois chambres, une cuisine et une salle de bains. La maison est neuve.Le terrain du bien est de 764 m².Il y a une école élémentaire dans le quartier. On trouve un commerce et une épicerie à quelques minutes.Elle est à vendre pour la somme de 208 149 €.Contactez notre agence (Anne DELOHEN : (Numéro supprimé)) pour toute information sur la maison, sur les démarches à suivre ou sur les modalités de vente. Concrétisez vos projets immobiliers avec Maisons France Confort Nemours.Annonce proposée par un Agent Commercial Partenaire.
Poligny
TERRAIN ET MAISONMaison T5 (90 m²) à vendre à PolignyMAISON 5 PIÈCES NEUVEÀ proximité de la gare de Bagneaux-sur-Loing (Paris à 1 h avec le Transilien R), nous sommes ravis de vous proposer cette maison de 5 pièces de plain-pied de 90 m² et de 890 m² de terrain à vendre à Poligny (77167).Conçue de plain-pied, elle inclut trois chambres, une cuisine et deux salles de bains. La maison est neuve.Une école primaire est implantée dans le quartier. Côté transports, il y a quatre gares à moins de 10 minutes en voiture.Elle est proposée à l’achat pour 248 332 €.Contactez Anne DELOHEN (tél : (Numéro supprimé)) pour obtenir de plus amples informations sur cette maison.Annonce proposée par un Agent Commercial Partenaire.
Nanteau-sur-Lunain
TERRAIN ET MAISONBeau terrain proche du bourg a 10 minutes de la gare de Nemours . Un écrin de lumière à personnaliser ! Oubliez les compromis, ici chaque m² est pensé pour vous ! Un vaste espace de vie baigné de lumière, une circulation fluide et des volumes généreux à façonner selon vos envies. À l’étage, 2 grandes chambres et un dressing pour un confort absolu. Un garage et un cellier malin complètent cette maison à l’architecture élégante et contemporaine. Faites de ce projet le vôtre, imaginez-le à votre image !. Pour un confort optimal et conforme à la RE2025, cette maison dispose d’une PAC avec plancher chauffant, radiateurs à l’étage et volets roulants électriques. À noter : Le prix indiqué exclut les revêtements de sol des chambres, la cuisine aménagée, la peinture, la décoration, les raccordements, les frais de notaire et l’assurance dommages-ouvrage. (Piscine non contractuelle, non comprise dans le prix). // Réf. : 1801-213614-CHL. Prix terrain : 85 000 €, hors frais d'agence à la charge de l'acquéreur. Ce terrain vous est proposé, par nos partenaires fonciers, dans le cadre d'un projet de construction avec nous. Les informations sur les risques auxquels ce bien est exposé sont disponibles sur le site Géorisques (www.georisques.gouv.fr). Prix maison : 207 255 €.
Poligny
TERRAIN ET MAISONVENTE d’une maison de 5 pièces (113 m²) à PolignyMAISON 5 PIÈCES NEUVEEn vente : à deux pas du Transilien R (gare de Bagneaux-sur-Loing, 1 h de Paris), nous sommes heureux de vous proposer à Poligny (77167), cette maison de 5 pièces de plain-pied de 113 m² et de 890 m² de terrain.Son intérieur compte quatre chambres, une cuisine et deux salles de bains. La maison est neuve.Une école primaire est implantée dans le quartier. Niveau transports en commun, on trouve quatre gares à moins de 10 minutes en voiture.Elle est proposée à l’achat pour 319 020 €.N’hésitez pas à prendre contact avec Anne DELOHEN ((Numéro supprimé)) pour toute question sur cette maison.Annonce proposée par un Agent Commercial Partenaire.
Poligny
TERRAIN ET MAISONVENTE : maison de 5 pièces (101 m²) à PolignyMAISON 5 PIÈCES NEUVEÀ vendre : à quelques minutes de la gare de Bagneaux-sur-Loing (Paris à 1 h avec le Transilien R), votre agence Maisons France Confort Nemours est heureuse de vous présenter à Poligny (77167), cette maison de 5 pièces de plain-pied de 101 m².Conçue de plain-pied, elle est composée de quatre chambres, d’une cuisine et d’une salle de bains. La maison est neuve.Le terrain du bien s’étend sur 1 040 m².Il y a une école primaire dans le quartier. Niveau transports en commun, on trouve quatre gares à moins de 10 minutes en voiture.Son prix de vente est de 248 365 €.Contactez Anne DELOHEN ((Numéro supprimé)) pour obtenir de plus amples renseignements sur ce bien. Maisons France Confort Nemours est là pour vous accompagner dans tous vos projets immobiliers.Annonce proposée par un Agent Commercial Partenaire.
Nanteau-sur-Lunain
TERRAINBeau terrain proche du bourg a 10 minutes de la gare de Nemours . // Réf. : T213614. Prix terrain : 85 000 €, hors frais d'agence et de notaire à la charge de l'acquéreur. Ce terrain vous est proposé, par nos partenaires fonciers, dans le cadre d'un projet de construction avec nous. Les informations sur les risques auxquels ce bien est exposé sont disponibles sur le site Géorisques (www.georisques.gouv.fr).
Nanteau-sur-Lunain
TERRAINBeau terrain proche du bourg a 10 minutes de la gare de Nemours . // Réf. : T213614. Prix terrain : 85 000 €, hors frais d'agence et de notaire à la charge de l'acquéreur. Ce terrain vous est proposé, par nos partenaires fonciers, dans le cadre d'un projet de construction avec nous. Les informations sur les risques auxquels ce bien est exposé sont disponibles sur le site Géorisques (www.georisques.gouv.fr).
Poligny
TERRAIN ET MAISONVENTE d’une maison T5 (90 m²) à PolignyMAISON 5 PIÈCES NEUVEÀ vendre : à proximité du Transilien R (gare de Bagneaux-sur-Loing, 1 h de Paris), à Poligny (77167), votre agence Maisons France Confort Nemours est ravie de vous proposer cette maison de 5 pièces de 90 m² et de 751 m² de terrain.Il s’agit d’une maison de 2 niveaux. Son intérieur propose trois chambres, une cuisine et une salle de bains. Cette maison est neuve.Une école primaire est implantée dans le quartier. Niveau transports, il y a quatre gares à moins de 10 minutes en voiture.Elle est à vendre pour la somme de 248 946 €.Prenez contact avec Anne DELOHEN (tél : (Numéro supprimé)) pour toute information sur la maison ou sur les démarches à suivre. Concrétisez vos projets immobiliers avec Maisons France Confort Nemours.Annonce proposée par un Agent Commercial Partenaire.
L’actualité immobilière à Poligny
27/11/2023
02/11/2023
30/10/2023
20/10/2023
16/10/2023
16/10/2023