Maison à construire à Pontault-Combault (77340)
Images
Description
Contactez Stéphanie SEBAG de l'agence Maisons Evolution de Mareuil-lès-Meaux au (Numéro supprimé) pour avoir plus d'informations sur ce projet.
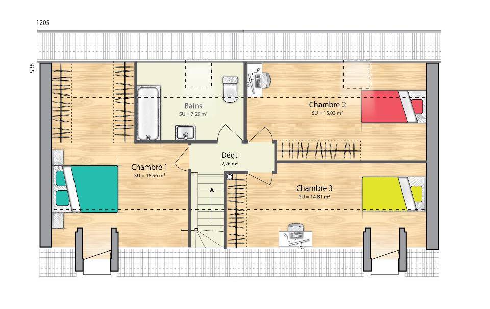
Découvrez cette jolie maison traditionnelle de 105 m² habitables idéalement située sur la commune de PONTAULT-COMMBAULT
Elle est composée de 4 chambres dont une suite parentale avec dressing et salle d'eau, d'une seconde salle de bains, de deux WC et d'un salon-séjour traversant lumineux avec une cuisine ouverte donnant sur un cellier.
Les plans sont modifiables selon vos souhaits, en agence ou visioconférence. Nous vous proposons un véritable accompagnement de qualité tout au long de votre projet.
Dessinons ensemble votre future maison !
Tel: (Numéro supprimé)
Annonce proposée par un Agent Commercial Partenaire.
Logement susceptibles de vous intéresser
Nous vous proposons de découvrir aussi cette sélection de logements situés à moins de 10km de Pontault-Combault et qui seraient susceptibles de vous intéresser.
Ormesson-sur-Marne
TERRAIN ET MAISONA ORMESSON-SUR-MARNE sur un terrain de 480 m², Maisons Clairval vous propose de réaliser cette maison neuve d'une surface de 120 m² habitables avec 4 chambres + garage, voir deux maisons de 120 m² chacune, idéal pour un projet familial ou investissement avec vu sur le domaine du château sans vis à vis. Situé au cœur d'un secteur résidentiel très prisé et recherché pour son calme absolu, ce terrain offre une opportunité de construction unique.Profitez d'un équilibre parfait entre tranquillité et vie pratique.Cadre de vie verdoyant : À proximité immédiate de la forêt et des espaces naturels, offrant un environnement privilégié.Secteur familial : Proximité directe avec les groupes scolaires, les commerces et les installations sportives/culturelles.Accessibilité : Excellente desserte des axes routiers (A4/N4) et des transports en commun (lignes de bus) permettant de rejoindre rapidement le RER A.Un emplacement idéal pour un projet de vie sur mesure, alliant la sérénité d'un quartier pavillonnaire à tous les avantages de la vie quotidienne.Demandez une étude gratuite et personnalisée de votre projet de construction au (Numéro supprimé)!Contactez Nous au (Numéro supprimé) (Maisons Clairval).Prix avec assurance dommages-ouvrage comprise, VRD non compris, terrain viabilisé, adaptation non comprise, assainissement non compris, frais de notaire non compris, taxes non comprises, frais divers non compris. Terrain sélectionné et vu pour vous sous réserve de disponibilité et au prix indiqué par notre partenaire foncier. Conditions et visuels non contractuels.Cette annonce a été créée et diffusée avec le logiciel VITAHOME.
Ormesson-sur-Marne
TERRAIN ET MAISONTerrain de 485 m², hors lotissement, avec une belle façade de plus de 21 m, viabilité sur rue, très belle exposition sans vis a vis, non mitoyen, toutes les commodités à pieds. dernier lot disponible dans quartier très recherché avec une vue sur la château.Maison neuve sur mesure Plain Pied de 120 m² habitables avec 4 chambres, dont une suite parentale, séjour traversant, isolation renforcé, PAC air/eau, volets roulants crépusculaires, avec garantie 10 ans et dommage ouvrage (DO) comprise dans le prix.prix ferme et définitive dès la signature du contrat, possibilité de bénéficier du prêt a taux zéro (PTZ),Etude de financement, Plans et visite possible sur simple demande.contact : (Numéro supprimé)Contactez nous au (Numéro supprimé)(Maisons Clairval).Prix avec assurance dommages-ouvrage comprise, VRD non compris, terrain viabilisé, adaptation non comprise, assainissement non compris, frais de notaire non compris, taxes non comprises, frais divers non compris. Terrain sélectionné et vu pour vous sous réserve de disponibilité et au prix indiqué par notre partenaire foncier. Conditions et visuels non contractuels.Cette annonce a été créée et diffusée avec le logiciel VITAHOME.
Ozoir-la-Ferrière
TERRAIN ET MAISONVENTE : maison T6 (100 m²) à Presles-en-BrieEMPLACEMENT PRIVILÉGIÉ – MAISON 6 PIÈCES NEUVEAu pied de la station Tournan (Paris à 40 min par le RER E), Maisons France Confort Magny-le-Hongre vous propose cette maison de 6 pièces de 100 m² à vendre bénéficiant d’un emplacement privilégié dans Presles-en-Brie (77220). Elle comporte quatre chambres, une cuisine et une salle de bains.Le terrain de la maison s’étend sur 584 m².Cette maison possède 2 niveaux. Elle est neuve.La maison se trouve dans un quartier recherché. Il y a l’École Maternelle Maurice André et l’École Élémentaire Maurice André à moins de 10 minutes à pied et une crèche. Niveau transports, on trouve la ligne de RER E (Tournan) ainsi que quatre gares à moins de 10 minutes en voiture. On trouve une bibliothèque, un tennis, une boulangerie, un commerce et une épicerie à quelques minutes du bien.Elle est proposée à l’achat pour 340 000 €.Prenez contact avec Alan RUBAL (tél : (Numéro supprimé)) pour toute question sur la maison, sur les modalités de vente ou sur les démarches à suivre. Faites de vos projets immobiliers une réalité avec Maisons France Confort Magny-le-Hongre.Annonce proposée par un Agent Commercial Partenaire.
Ozoir-la-Ferrière
TERRAIN ET MAISONPresles-en-Brie : maison de 5 pièces (90 m²) en venteEMPLACEMENT PRIVILÉGIÉ – MAISON 5 PIÈCES NEUVEÀ quelques minutes de la station Tournan (Paris à 40 min par le RER E), découvrez cette maison de 5 pièces de plain-pied de 90 m² et de 584 m² de terrain en vente, bénéficiant d’un emplacement d’exception dans Presles-en-Brie (77220). Conçue de plain-pied, elle dispose de trois chambres, d’une cuisine et de deux salles de bains.Cette maison est neuve.La maison se situe dans un secteur attractif. L’École Maternelle Maurice André et l’École Élémentaire Maurice André se trouvent à moins de 10 minutes à pied, tout comme une structure d’accueil pour les tout-petits. Côté transports, il y a la ligne de RER E (Tournan) ainsi que quatre gares à moins de 10 minutes en voiture. Il y a une bibliothèque, un tennis, une boulangerie, un commerce et une épicerie dans les environs.Elle est à vendre pour la somme de 320 000 €.Prenez contact avec notre agence (RUBAL Alan : (Numéro supprimé)) pour toute information sur la maison, sur les démarches à suivre ou sur les modalités de vente. Maisons France Confort Magny-le-Hongre est là pour vous accompagner à toutes les étapes de l’achat.Annonce proposée par un Agent Commercial Partenaire.
Ozoir-la-Ferrière
TERRAIN ET MAISONVENTE : maison de 7 pièces (160 m²) à Presles-en-BrieEMPLACEMENT PRIVILÉGIÉ – MAISON 7 PIÈCES NEUVEEn vente : à côté du RER E (station Tournan, 40 min de Paris), venez découvrir cette maison de 7 pièces de 160 m² bénéficiant d’un emplacement d’exception dans Presles-en-Brie (77220).Cette maison possède 2 niveaux. Elle est composée de cinq chambres, d’une cuisine et de deux salles de bains. Cette maison est neuve.Le terrain du bien est de 584 m².Cette maison se situe dans un secteur convoité. L’École Maternelle Maurice André et l’École Élémentaire Maurice André sont implantées à moins de 10 minutes à pied, tout comme une crèche. Niveau transports en commun, il y a la ligne de RER E (Tournan) ainsi que quatre gares à moins de 10 minutes en voiture. On trouve une bibliothèque, un tennis, une boulangerie, un commerce et une épicerie à proximité du logement.Son prix de vente est de 448 000 €.Contactez Alan RUBAL ((Numéro supprimé)) pour toute question sur la maison, sur les modalités de vente ou sur les démarches à suivre. Faites de vos projets immobiliers une réalité avec Maisons France Confort Magny-le-Hongre.Annonce proposée par un Agent Commercial Partenaire.
Servon
TERRAIN ET MAISONMaison T7 (120 m²) en vente à ServonMAISON 7 PIÈCES NEUVE – PROCHE DE PARISÀ vendre : à proximité de la station Boussy-Saint-Antoine du RER D (30 min de Paris), Maisons France Confort Magny-le-Hongre vous présente cette maison de 7 pièces de 120 m² et de 600 m² de terrain à Servon (77170).Cette maison possède 2 niveaux. Elle offre cinq chambres, une cuisine et deux salles de bains. Cette maison est neuve.Il y a l’École Primaire la Butte Aux Bergers à moins de 10 minutes à pied. Niveau transports en commun, on trouve trois lignes de RER (D, A et E) ainsi que sept gares à moins de 10 minutes en voiture. Il y a un tennis, une bibliothèque, des boulangeries, des commerces, un supermarché, un bureau de poste et une boucherie-charcuterie à proximité de la maison.Elle est à vendre pour la somme de 401 000 €.Prenez contact avec Alan RUBAL (tél : (Numéro supprimé)) pour plus d’informations sur la maison. Maisons France Confort Magny-le-Hongre vous accompagne dans tous vos projets immobiliers et dans toutes vos démarches.Annonce proposée par un Agent Commercial Partenaire.
Servon
TERRAIN ET MAISONMaison T8 (160 m²) en vente à ServonPROCHE DE PARIS – MAISON 8 PIÈCES NEUVEÀ vendre : à côté de la station Boussy-Saint-Antoine du RER D (30 min de Paris), à Servon (77170), nous sommes ravis de vous proposer cette maison de 8 pièces de 160 m² et de 600 m² de terrain. Son intérieur dispose de cinq chambres, d’une cuisine et de six salles de bains.C’est une maison de 2 niveaux. Elle est neuve.Il y a l’École Primaire la Butte Aux Bergers à moins de 10 minutes à pied. Niveau transports, on trouve les lignes de RER D, A et E ainsi que sept gares à moins de 10 minutes en voiture. On trouve un tennis, une bibliothèque, des boulangeries, des commerces, un supermarché, une boucherie-charcuterie et un bureau de poste à proximité.Elle est à vendre pour la somme de 473 000 €.N’hésitez pas à prendre contact avec notre agence (Alan RUBAL : (Numéro supprimé)) pour obtenir de plus amples renseignements sur ce bien, sur les démarches à suivre ou sur les modalités de vente. Donnez vie à vos projets immobiliers avec Maisons France Confort Magny-le-Hongre.Annonce proposée par un Agent Commercial Partenaire.
Servon
TERRAIN ET MAISONMaison de 5 pièces (100 m²) à vendre à ServonMAISON 5 PIÈCES NEUVE – PROCHE DE PARISÀ côté de la station Boussy-Saint-Antoine (Paris à 30 min par le RER D), Maisons France Confort Magny-le-Hongre vous propose cette maison de 5 pièces de 100 m² et de 600 m² de terrain à Servon (77170). Elle compte trois chambres, une cuisine et une salle de bains.Cette maison possède 2 niveaux. Elle est neuve.L’École Primaire la Butte Aux Bergers est implantée à moins de 10 minutes à pied. Niveau transports en commun, on trouve les lignes de RER D, A et E ainsi que sept gares à moins de 10 minutes en voiture. Il y a un tennis, une bibliothèque, des boulangeries, des commerces, un supermarché, un bureau de poste et une boucherie-charcuterie à proximité du logement.Elle est à vendre pour la somme de 365 000 €.N’hésitez pas à prendre contact avec Alan RUBAL ((Numéro supprimé)) pour plus d’informations sur la maison. Concrétisez vos projets immobiliers avec Maisons France Confort Magny-le-Hongre.Annonce proposée par un Agent Commercial Partenaire.
Gretz-Armainvilliers
TERRAIN ET MAISONPresles-en-Brie : maison T7 (120 m²) à vendreIDÉALEMENT SITUÉE – MAISON 7 PIÈCES NEUVEÀ deux pas de la station Tournan (Paris à 40 min avec le RER E), notre agence Maisons France Confort Magny-le-Hongre est ravie de vous proposer cette maison de 7 pièces de 120 m² idéalement située dans Presles-en-Brie (77220).C’est une maison de 2 niveaux. Son intérieur comporte cinq chambres, une cuisine et deux salles de bains. Cette maison est neuve.Le terrain de la propriété est de 440 m².La maison est située dans un secteur convoité. L’École Maternelle Maurice André et l’École Élémentaire Maurice André sont implantées à moins de 10 minutes à pied, tout comme une crèche. Niveau transports en commun, on trouve la ligne de RER E (Tournan) ainsi que quatre gares à moins de 10 minutes en voiture. Il y a une bibliothèque, un tennis, une boulangerie, un commerce et une épicerie dans les environs.Son prix de vente est de 389 000 €.Contactez notre constructeur (SOUMARMON Félix : (Numéro supprimé)) pour toute question sur la maison ou sur les démarches à suivre. Maisons France Confort Magny-le-Hongre est là pour vous accompagner à toutes les étapes de l’achat.Annonce proposée par un Agent Commercial Partenaire.
L’actualité immobilière à Pontault-Combault
27/11/2023
02/11/2023
30/10/2023
20/10/2023
16/10/2023
16/10/2023