Maison à construire à Presles-en-Brie (77220)
Images
Description
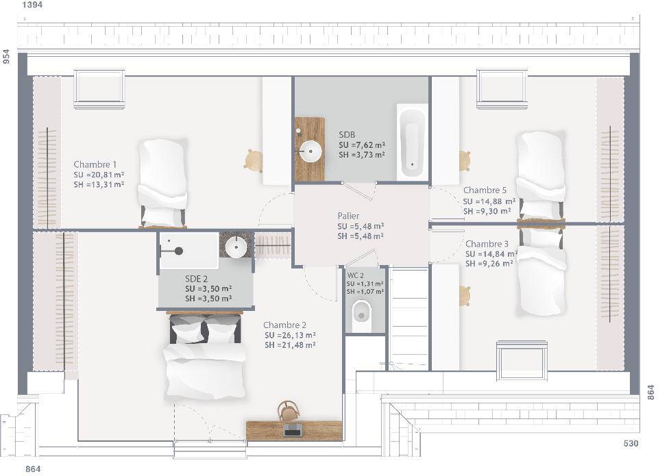
Presles-en-Brie : maison F7 (150 m²) en vente
PROCHE GARE - MAISON 7 PIÈCES NEUVE
À deux pas du RER E (station Tournan, 40 min de Paris), votre agence Maisons France Confort Magny-le-Hongre est heureuse de vous présenter cette maison de 7 pièces de 150 m² à vendre dans Presles-en-Brie (77220), proche de la gare.
Cette maison comporte 2 niveaux. Son intérieur compte cinq chambres, une cuisine et deux salles de bains. La maison est neuve.
Le terrain de la propriété s'étend sur 523 m².
L'École Maternelle Maurice André et l'École Élémentaire Maurice André sont implantées à moins de 10 minutes à pied, tout comme une crèche. Côté transports, il y a la ligne de RER E (Tournan) ainsi que quatre gares à moins de 10 minutes en voiture. On trouve une bibliothèque, un tennis, une boulangerie, un commerce et une épicerie à quelques minutes du bien.
Il est proposé à l'achat pour 365 000 €.
Prenez contact avec notre agence (YAHIAOUI Cedric : (Numéro supprimé)) pour plus de renseignements sur la maison.
Annonce proposée par un Agent Commercial Partenaire.
Logement susceptibles de vous intéresser
Nous vous proposons de découvrir aussi cette sélection de logements situés à moins de 10km de Presles-en-Brie et qui seraient susceptibles de vous intéresser.

Presles-en-Brie
TERRAINTerrain de 523 m² en vente à Presles-en-BriePROCHE GARE – PROCHE DE MONTREUILÀ Presles-en-Brie (77220) à deux pas de la station Tournan (Paris à 40 min par le RER E), imaginez la maison de vos rêves sur ce terrain de 523 m². Il se trouve non loin de la gare. L’École Maternelle Maurice André et l’École Élémentaire Maurice André sont implantées à moins de 10 minutes à pied, tout comme une crèche. Côté transports en commun, il y a la ligne de RER E (Tournan) ainsi que quatre gares à moins de 10 minutes en voiture. On trouve une bibliothèque, un tennis, une boulangerie, un commerce et une épicerie dans les environs.Il est à vendre pour la somme de 120 000 €. Prenez contact avec Cedric YAHIAOUI (tél : (Numéro supprimé)) pour toute question sur ce terrain. Maisons France Confort Magny-le-Hongre vous accompagne dans tous vos projets immobiliers et dans toutes vos démarches.Annonce proposée par un Agent Commercial Partenaire.

Presles-en-Brie
TERRAIN ET MAISONMaison de 5 pièces (80 m²) en vente à Presles-en-BriePROCHE GARE – MAISON 5 PIÈCES NEUVEProche de la station Tournan (Paris à 40 min par le RER E), notre agence Maisons France Confort Magny-le-Hongre est heureuse de vous proposer cette maison de 5 pièces de 80 m² en vente dans Presles-en-Brie (77220), proche de la gare. Son intérieur comporte trois chambres, une cuisine et une salle de bains.Le terrain du bien s’étend sur 523 m².Il s’agit d’une maison de 2 niveaux. Elle est neuve.On trouve l’École Maternelle Maurice André et l’École Élémentaire Maurice André à moins de 10 minutes à pied et une crèche. Niveau transports, il y a la ligne de RER E (Tournan) ainsi que quatre gares à moins de 10 minutes en voiture. Il y a une bibliothèque, un tennis, une boulangerie, un commerce et une épicerie dans les environs.Elle est à vendre pour la somme de 290 000 €.Contactez Cedric YAHIAOUI ((Numéro supprimé)) pour toute information sur la maison, sur les modalités de vente ou sur les démarches à suivre. Maisons France Confort Magny-le-Hongre vous accompagne dans tous vos projets immobiliers et à toutes les étapes de l’achat.Annonce proposée par un Agent Commercial Partenaire.

Presles-en-Brie
TERRAIN ET MAISONMaison de 5 pièces (85 m²) en vente à Presles-en-BriePROCHE GARE – MAISON 5 PIÈCES NEUVEEn vente : à proximité de la station Tournan du RER E (40 min de Paris), notre agence Maisons France Confort Magny-le-Hongre est heureuse de vous proposer cette maison de 5 pièces de 85 m² et de 523 m² de terrain proche de la gare de Presles-en-Brie (77220). Son intérieur propose trois chambres, une cuisine et deux salles de bains.C’est une maison de 2 niveaux. Elle est neuve.On trouve l’École Maternelle Maurice André et l’École Élémentaire Maurice André à moins de 10 minutes à pied et une crèche. Côté transports, il y a la ligne de RER E (Tournan) ainsi que quatre gares à moins de 10 minutes en voiture. Il y a une bibliothèque, un tennis, une boulangerie, un commerce et une épicerie à quelques minutes de la maison.Son prix de vente est de 295 000 €.Contactez Cedric YAHIAOUI (tél : (Numéro supprimé)) pour obtenir de plus amples informations sur la maison, sur les modalités de vente ou sur les démarches à suivre.Annonce proposée par un Agent Commercial Partenaire.

Presles-en-Brie
TERRAIN ET MAISONMaison de 8 pièces (145 m²) en vente à Presles-en-BriePROCHE GARE – MAISON 8 PIÈCES NEUVEEn vente : proche du RER E (station Tournan, 40 min de Paris), notre agence Maisons France Confort Magny-le-Hongre est ravie de vous présenter cette maison de 8 pièces de 145 m² et de 523 m² de terrain proche de la gare de Presles-en-Brie (77220).Cette maison possède 2 niveaux. Elle propose six chambres, une cuisine et deux salles de bains. Cette maison est neuve.Il y a l’École Maternelle Maurice André et l’École Élémentaire Maurice André à moins de 10 minutes à pied et une structure d’accueil pour les tout-petits. Niveau transports en commun, on trouve la ligne de RER E (Tournan) ainsi que quatre gares à moins de 10 minutes en voiture. Il y a une bibliothèque, un tennis, une boulangerie, un commerce et une épicerie à proximité du bien.Elle est à vendre pour la somme de 350 000 €.Contactez Cedric YAHIAOUI ((Numéro supprimé)) pour plus d’informations sur le bien ou sur les démarches à suivre.Annonce proposée par un Agent Commercial Partenaire.

Presles-en-Brie
TERRAIN ET MAISONMaison de 7 pièces (110 m²) à vendre à Presles-en-BriePROCHE GARE – MAISON 7 PIÈCES NEUVEÀ vendre : au pied du RER E (station Tournan, 40 min de Paris), votre agence Maisons France Confort Magny-le-Hongre est heureuse de vous présenter cette maison de 7 pièces de 110 m² dans Presles-en-Brie (77220), proche de la gare. Elle propose quatre chambres, une cuisine et deux salles de bains.Le terrain de la maison est de 523 m².Cette maison comporte 2 niveaux. Elle est neuve.Il y a l’École Maternelle Maurice André et l’École Élémentaire Maurice André à moins de 10 minutes à pied et une crèche. Côté transports, on trouve la ligne de RER E (Tournan) ainsi que quatre gares à moins de 10 minutes en voiture. On trouve une bibliothèque, un tennis, une boulangerie, un commerce et une épicerie à proximité de la maison.Elle est à vendre pour la somme de 352 000 €.Contactez notre agence (Cedric YAHIAOUI : (Numéro supprimé)) pour toute question sur la maison.Annonce proposée par un Agent Commercial Partenaire.

Presles-en-Brie
TERRAIN ET MAISONMaison T5 (89 m²) en vente à Presles-en-BriePROCHE GARE – MAISON 5 PIÈCES NEUVEÀ proximité de la station Tournan (Paris à 40 min avec le RER E), à vendre dans Presles-en-Brie (77220), proche de la gare, nous vous proposons cette maison de 5 pièces de plain-pied de 89 m². Son intérieur se divise en trois chambres, une cuisine et une salle de bains.Le terrain de la propriété est de 523 m².Cette maison est neuve.Il y a l’École Maternelle Maurice André et l’École Élémentaire Maurice André à moins de 10 minutes à pied et une structure d’accueil pour les tout-petits. Niveau transports en commun, on trouve la ligne de RER E (Tournan) ainsi que quatre gares à moins de 10 minutes en voiture. On trouve une bibliothèque, un tennis, une boulangerie, un commerce et une épicerie à proximité de la maison.Il est à vendre pour la somme de 298 000 €.Prenez contact avec notre agence (Cedric YAHIAOUI : (Numéro supprimé)) pour toute information sur la maison ou sur les démarches à suivre.Annonce proposée par un Agent Commercial Partenaire.

Presles-en-Brie
TERRAIN ET MAISONPresles-en-Brie : maison F7 (150 m²) en ventePROCHE GARE – MAISON 7 PIÈCES NEUVEÀ deux pas du RER E (station Tournan, 40 min de Paris), votre agence Maisons France Confort Magny-le-Hongre est heureuse de vous présenter cette maison de 7 pièces de 150 m² à vendre dans Presles-en-Brie (77220), proche de la gare.Cette maison comporte 2 niveaux. Son intérieur compte cinq chambres, une cuisine et deux salles de bains. La maison est neuve.Le terrain de la propriété s’étend sur 523 m².L’École Maternelle Maurice André et l’École Élémentaire Maurice André sont implantées à moins de 10 minutes à pied, tout comme une crèche. Côté transports, il y a la ligne de RER E (Tournan) ainsi que quatre gares à moins de 10 minutes en voiture. On trouve une bibliothèque, un tennis, une boulangerie, un commerce et une épicerie à quelques minutes du bien.Il est proposé à l’achat pour 365 000 €.Prenez contact avec notre agence (YAHIAOUI Cedric : (Numéro supprimé)) pour plus de renseignements sur la maison.Annonce proposée par un Agent Commercial Partenaire.

Presles-en-Brie
TERRAIN ET MAISONVENTE d’une maison F6 (100 m²) à Presles-en-BriePROCHE GARE – MAISON 6 PIÈCES NEUVEÀ vendre : à deux pas de la station Tournan (Paris à 40 min avec le RER E), découvrez cette maison de 6 pièces de 100 m² proche de la gare de Presles-en-Brie (77220).Cette maison possède 2 niveaux. Elle dispose de quatre chambres, d’une cuisine et d’une salle de bains. Cette maison est neuve.Le terrain de la propriété s’étend sur 523 m².L’École Maternelle Maurice André et l’École Élémentaire Maurice André sont implantées à moins de 10 minutes à pied, tout comme une crèche. Côté transports en commun, on trouve la ligne de RER E (Tournan) ainsi que quatre gares à moins de 10 minutes en voiture. Il y a une bibliothèque, un tennis, une boulangerie, un commerce et une épicerie à quelques minutes.Elle est proposée à l’achat pour 305 000 €.Contactez notre agence (YAHIAOUI Cedric : (Numéro supprimé)) pour obtenir de plus amples informations sur la maison, sur les modalités de vente ou sur les démarches à suivre. Maisons France Confort Magny-le-Hongre est là pour vous accompagner dans tous vos projets immobiliers.Annonce proposée par un Agent Commercial Partenaire.

Presles-en-Brie
TERRAIN ET MAISONMaison de 7 pièces (120 m²) en vente à Presles-en-BriePROCHE GARE – MAISON 7 PIÈCES NEUVEProche de la station Tournan du RER E (40 min de Paris), Maisons France Confort Magny-le-Hongre vous propose cette maison de 7 pièces de 120 m² et de 523 m² de terrain dans Presles-en-Brie (77220), proche de la gare. Elle compte cinq chambres, une cuisine et deux salles de bains.Cette maison possède 2 niveaux. Elle est neuve.L’École Maternelle Maurice André et l’École Élémentaire Maurice André sont implantées à moins de 10 minutes à pied, tout comme une crèche. Niveau transports en commun, on trouve la ligne de RER E (Tournan) ainsi que quatre gares à moins de 10 minutes en voiture. Il y a une bibliothèque, un tennis, une boulangerie, un commerce et une épicerie dans les environs.Son prix de vente est de 325 000 €.Contactez Cedric YAHIAOUI (tél : (Numéro supprimé)) pour obtenir de plus amples informations sur la maison ou sur les démarches à suivre. Maisons France Confort Magny-le-Hongre est là pour vous accompagner à toutes les étapes de l’achat.Annonce proposée par un Agent Commercial Partenaire.
L’actualité immobilière à Presles-en-Brie





