Maison à construire à Réau (77550)
Images
Description
Contactez Stéphanie SEBAG de l'agence Maisons Evolution de Mareuil-lès-Meaux au (Numéro supprimé) pour avoir plus d'informations sur ce projet
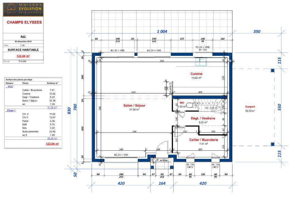
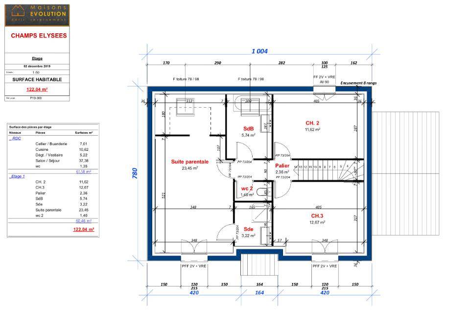
Découvrez cette très jolie maison moderne de 122 m² habitables, aux dernières normes énergétiques, idéalement située sur la commune de REAU
Elle est composée de 3 grandes chambres dont une grande suite parentale avec salle d'eau, d'une seconde salle de bains, de deux WC séparés et d'un grand salon-séjour lumineux avec cuisine ouverte donnant sur un vaste cellier/buanderie. Il est possible d'y ajouter un garage ou un carport.
Les plans sont entièrement modifiables selon vos souhaits, en agence ou visioconférence. Nous vous proposons un véritable accompagnement de qualité tout au long de votre projet.
Dessinons ensemble votre future maison !
Tel : (Numéro supprimé)
Annonce proposée par un Agent Commercial Partenaire.
Logement susceptibles de vous intéresser
Nous vous proposons de découvrir aussi cette sélection de logements situés à moins de 10km de Réau et qui seraient susceptibles de vous intéresser.

Réau
TERRAIN ET MAISONContactez Stéphanie SEBAG de l’agence Maisons Evolution de Mareuil-lès-Meaux au (Numéro supprimé) pour avoir plus d’informations sur ce projet.Très jolie maison à étage de 124 m² habitables avec garage accolé idéalement située sur la commune de CUISYElle est composée de 5 chambres au total dont une grande suite parentale avec salle d’eau, de 3 salles de bains au total, de deux WC séparés et d’un grand salon-séjour lumineux avec cuisine ouverte donnant sur un cellier puis sur le garage.Les plans sont entièrement modifiables selon vos souhaits, en agence ou visioconférence. Nous vous proposons un véritable accompagnement de qualité tout au long de votre projet.Dessinons ensemble votre future maison !Tel : (Numéro supprimé)Annonce proposée par un Agent Commercial Partenaire.

Réau
TERRAIN ET MAISONContactez Stéphanie SEBAG de l’agence Maisons Evolution de Mareuil-lès-Meaux au (Numéro supprimé) pour avoir plus d’informations sur ce projet Découvrez cette très jolie maison moderne de 122 m² habitables, aux dernières normes énergétiques, idéalement située sur la commune de REAUElle est composée de 3 grandes chambres dont une grande suite parentale avec salle d’eau, d’une seconde salle de bains, de deux WC séparés et d’un grand salon-séjour lumineux avec cuisine ouverte donnant sur un vaste cellier/buanderie. Il est possible d’y ajouter un garage ou un carport.Les plans sont entièrement modifiables selon vos souhaits, en agence ou visioconférence. Nous vous proposons un véritable accompagnement de qualité tout au long de votre projet.Dessinons ensemble votre future maison !Tel : (Numéro supprimé)Annonce proposée par un Agent Commercial Partenaire.

Réau
TERRAIN ET MAISONContactez Stéphanie SEBAG de l’agence Maisons Evolution de Mareuil-lès-Meaux au (Numéro supprimé) pour avoir plus d’informations sur ce projet.Très belle maison d’une superficie de 96 m² habitables avec garage intégré idéalement située sur la commune de REAU Elle est composée de 4 chambres, d’une salle de bains, de deux WC, et d’un grand salon-séjour lumineux avec cuisine ouverte, cellier et garage.Les plans sont modifiables selon vos souhaits, en agence ou visioconférence. Nous vous proposons un véritable accompagnement de qualité tout au long de votre projet.Dessinons ensemble votre future maison !Tel: (Numéro supprimé)Annonce proposée par un Agent Commercial Partenaire.

Réau
TERRAINVotre agence Maisons Evolution de Mareuil-lès-Meaux vous propose ce terrain constructible de 621 m² idéalement situé sur la commune de. Il vous offre une multitude de possibilités pour construire la maison de vos rêves. Ne manquez pas cette opportunité unique d’acquérir un terrain spacieux dans un emplacement prisé. Pour plus d’informations, contactez Stéphanie SEBAG au (Numéro supprimé). Nous vous proposons un véritable accompagnement de qualité tout au long de votre projet. Dessinons ensemble votre future maison.Tel: (Numéro supprimé)Annonce proposée par un Agent Commercial Partenaire.

Réau
TERRAIN ET MAISONContactez Stéphanie SEBAG de l’agence Maisons Evolution de Mareuil-lès-Meaux au (Numéro supprimé) pour avoir plus d’informations sur ce projet.Venez découvrir cette belle et grande maison d’une superficie de 109 m² habitables avec garage intégré idéalement située sur la commune de REAUElle est composée de 4 chambres (dont une suite parentale) de 2 salles de bains, de 2 WC, et d’un grand salon-séjour lumineux avec cuisine ouverte, cellier et garage.Les plans sont modifiables selon vos souhaits, en agence ou visioconférence. Nous vous proposons un véritable accompagnement de qualité tout au long de votre projet.Dessinons ensemble votre future maison !Tel: (Numéro supprimé)Annonce proposée par un Agent Commercial Partenaire.

Évry-Grégy-sur-Yerre
TERRAINRare sur le secteur.Muriel GARNIER vous présente en exclusivité, ce beau terrain plat de 351m2 situé dans le charmant village d’Evry Grégy Sur Yerre.Situé à 30km de Paris, et seulement 5min de l’entrée N104 et A5B,La commune bénéficie de commerces de proximité (Restauration, Boulangerie, épicerie, coiffeur, pharmacie), ainsi que les écoles primaires et maternelles.Cette commune charmera tous les amoureux de la nature à la recherche de calme.Le terrain est plat et borné.La façade mesure un peu plus de 21m et dispose d’une profondeur de 18m environ.Prévoir viabilité des réseaux eau, électricité et tout à l’égout sur ruePrix : 134.000 euros FAI Honoraires charge vendeur.Pour visiter et vous accompagner dans votre projet, contactez Muriel GARNIER, au (Numéro supprimé) ou, par courriel à (Email supprimé).Selon l’article L.561.5 du Code Monétaire et Financier, pour l’organisation de la visite, la présentation d’une pièce d’identité vous sera demandée.Cette présente annonce a été rédigée sous la responsabilité éditoriale de Muriel GARNIER agissant sous le statut d’agent commercial immatriculé au RSAC EVRY 981 209 620 auprès de SAS PROPRIETES PRIVEES, au capital de 44 920 euros, ZAC LE CHÊNE FERRÉ – 44 ALLÉE DES CINQ CONTINENTS 44120 VERTOU; SIRET 487 624 777 00040, RCS Nantes. Carte Professionnelle Transactions sur immeubles et fonds de commerce (T) et Gestion immobilière (G) n°CPI 4401 2016 000 010 388 délivrée par la CCI Nantes – Saint Nazaire. Compte séquestre n(Numéro supprimé)67 BPA SAINT-SEBASTIEN-SUR-LOIRE (44230). Garantie GALIAN-SMABTP – 89 rue de la Boétie, 75008 Paris – n°28137 J pour 2 000 000 euros pour T et 120 000 euros pour G. Assurance responsabilité civile professionnelle par GALIAN-SMABTP n° de police 28137.JMandat réf : 405840 – Le professionnel garantit et sécurise votre projet immobilier. Muriel GARNIER (EI) Agent Commercial – Numéro RSAC : EVRY 981 209 620 – .

Quincy-sous-Sénart
TERRAINMuriel GARNIER vous présente, ce beau terrain plat de 405m2 situé dans la charmante commune de Quincy sous Sénart.Situé à moins de 10min à pied de la gare, et de toutes les commodités (écoles et commerces)Les axes routiers N6, N104, A5 et A6 sont accessibles en moins de 10min.Le terrain est plat et borné.En proximité de voie ferrée.La façade mesure un peu plus de 18m et dispose d’une profondeur de 22m environ, permettant ainsi la construction d’une maison de plus de 100m².Prévoir viabilité des réseaux eau, électricité et tout à l’égout sur ruePrix : 158.000 euros FAI Honoraires charge vendeur.Pour visiter et vous accompagner dans votre projet, contactez Muriel GARNIER, au (Numéro supprimé) ou, par courriel à (Email supprimé).Selon l’article L.561.5 du Code Monétaire et Financier, pour l’organisation de la visite, la présentation d’une pièce d’identité vous sera demandée.Cette présente annonce a été rédigée sous la responsabilité éditoriale de Muriel GARNIER agissant sous le statut d’agent commercial immatriculé au RSAC EVRY 981 209 620 auprès de SAS PROPRIETES PRIVEES, au capital de 44 920 euros, ZAC LE CHÊNE FERRÉ – 44 ALLÉE DES CINQ CONTINENTS 44120 VERTOU; SIRET 487 624 777 00040, RCS Nantes. Carte Professionnelle Transactions sur immeubles et fonds de commerce (T) et Gestion immobilière (G) n°CPI 4401 2016 000 010 388 délivrée par la CCI Nantes – Saint Nazaire. Compte séquestre n(Numéro supprimé)67 BPA SAINT-SEBASTIEN-SUR-LOIRE (44230). Garantie GALIAN-SMABTP – 89 rue de la Boétie, 75008 Paris – n°28137 J pour 2 000 000 euros pour T et 120 000 euros pour G. Assurance responsabilité civile professionnelle par GALIAN-SMABTP n° de police 28137.JMandat réf : 422652 – Le professionnel garantit et sécurise votre projet immobilier. Muriel GARNIER (EI) Agent Commercial – Numéro RSAC : EVRY 981 209 620 – .Les informations sur les risques auxquels ce bien est exposé sont disponibles sur le site Géorisques : www. georisques. gouv. fr

Vert-Saint-Denis
TERRAINOpportunité RARE sur le secteur !Découvrez ce terrain de 531 m² situé en lot arrière, offrant un cadre de vie exceptionnel au sein d’une rue calme et recherchée de Vert-Saint-Denis.Clôturé sur l’ensemble de sa périphérie, il assure un espace préservé et intime, idéal pour un projet résidentiel. De plus, le terrain est partiellement viabilisé, facilitant ainsi les démarches pour votre future construction.Bénéficiant d’une orientation est-ouest pour la future construction de plain-pied + combles, ce terrain permet une luminosité optimale pour une future habitation. Une grande dépendance est déjà présente, libre à vous de la démolir ou de l’intégrer à votre projet selon vos besoins et envies.Etude G1 déjà réalisée.En photos jointes : Plan d’aménagement + photo aérienne + photos terrain avec dépendance actuelle à démolir ou conserver.d’autres photos sur demande.Atouts supplémentaires :Terrain entièrement clos, offrant intimité et sécuritéOrientation est-ouest pour une luminosité optimaleEnvironnement calme et privilégiéPermis d’aménager validé par la mairie et les ABF, et il sera purgé de tout recours des tiers au moment de la signature du compromis de venteCe terrain est prêt à accueillir votre futur projet de vie. Pour plus d’informations ou pour organiser une visite, n’hésitez pas à me contacter.Cette annonce référence 303115 vous est présentée par votre agent commercial BSK Immobilier DAMIEN FAUCHERE (EIRL) immatriculé au RSAC de MELUN (77000) sous le numéro 82955333800015.Prix du bien : 149 000,00 €Les honoraires d’agence sont à la charge du vendeur.Les informations sur les risques auxquels ce bien est exposé sont disponibles sur le site Géorisques : www.georisques.gouv.fr

Soignolles-en-Brie
TERRAINTERRAIN DE 776M2 Sur la commune de Soignolles en Brie, venez découvrir un beau terrain constructible d’une surface de 776m2 avec 20m de façade. Cadre champêtre, environnement calme avec vue dégagée sur le village et son cloché, proche du chemin des roses où vous pourrez faire de belles balades en famille. Commerces (Boulangerie, Supérette, Tabac) A deux pas l’école maternelle / élémentaire. Collège sur Coubert à 4 kms. A découvrir ABSOLUMENT…Cette annonce vous est proposée par IMMOBILIERE DE LA REPUBLIQUE – SARL – NoRSAC: , Enregistré à de Les informations sur les risques auxquels ce bien est exposé sont disponibles sur le site Géorisques : www.georisques.gouv.fr – Annonce rédigée et publiée par un Agent Mandataire –
L’actualité immobilière à Réau

