Maison à construire à Rebais (77510)
Images
Description
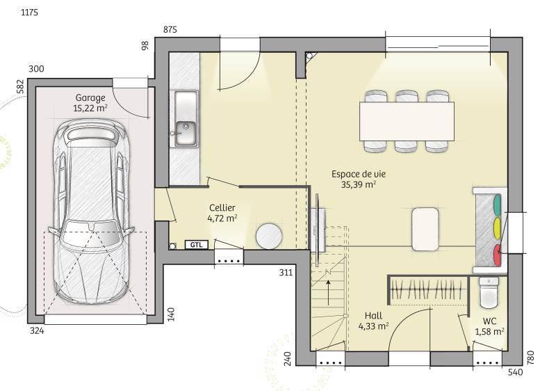
Maison T5 (90 m²) en vente à Rebais
MAISON 5 PIÈCES NEUVE - PROCHE DE MEAUX
À vendre : à deux pas de Meaux, nous sommes heureux de vous proposer cette maison de 5 pièces de 90 m² à Rebais (77510). Elle comporte trois chambres, une cuisine et une salle de bains.
Le terrain de cette maison s'étend sur 300 m².
Cette maison compte 2 niveaux. Elle est neuve.
Trois établissements scolaires sont implantés à moins de 10 minutes à pied, tout comme dont le Collège Jacques Prévert. On trouve un tennis, trois boulangeries, un commerce, un supermarché, un bureau de poste et une supérette à quelques minutes de la maison.
Elle est proposée à l'achat pour 270 000 €.
N'hésitez pas à prendre contact avec Teddy MELES (tél : (Numéro supprimé)) pour tout renseignement sur le bien et sur les démarches à suivre. Maisons France Confort Magny-le-Hongre est là pour vous accompagner dans tous vos projets immobiliers.
Annonce proposée par un Agent Commercial Partenaire.
Logement susceptibles de vous intéresser
Nous vous proposons de découvrir aussi cette sélection de logements situés à moins de 10km de Rebais et qui seraient susceptibles de vous intéresser.
Boissy-le-Châtel
TERRAINVENTE d’un terrain de 712 m² à Boissy-le-ChâtelIDÉALEMENT SITUÉ – VUE SANS VIS-À-VISÀ quelques minutes de la gare de Coulommiers (Paris à 1 h par le Transilien P) à Boissy-le-Châtel (77169), grand terrain. Réalisez-y votre projet de construction. Ce terrain, sans vis-à-vis, bénéficie d’une exposition sud. Dans un secteur prisé, ce terrain idéalement situé est proche des écoles et des commerces. Il y a l’École Maternelle Etienne Dumas et l’École Élémentaire la Mare Garenne dans la commune. Côté transports, on trouve les gares Coulommiers et Mouroux à moins de 10 minutes en voiture. On trouve un tennis et un supermarché à proximité du terrain.Son prix de vente est de 105 000 €. Contactez Mylann URBANSKY (tél : (Numéro supprimé)) pour plus de renseignements sur le terrain ou sur les modalités de vente. Maisons Balency Baillet-en-France vous accompagne dans toutes vos démarches et dans tous vos projets immobiliers.Annonce proposée par un Agent Commercial Partenaire.
Boissy-le-Châtel
TERRAIN ET MAISONMaison T4 (50 m²) à vendre à Boissy-le-ChâtelIDÉALEMENT SITUÉE – MAISON 4 PIÈCES NEUVEEn vente : au pied du Transilien P (gare de Coulommiers, 1 h de Paris), nous sommes ravis de vous proposer cette maison de 4 pièces de 50 m² sans vis-à-vis idéalement située dans Boissy-le-Châtel (77169).Cette maison est de plain-pied. Conçue de plain-pied, elle offre deux chambres, une cuisine et une salle de bains. Le bien est neuf.Le terrain de la propriété s’étend sur 712 m².La maison se situe dans un secteur convoité. On y trouve l’École Maternelle Etienne Dumas et l’École Élémentaire la Mare Garenne. Côté transports, on trouve deux gares (Coulommiers et Mouroux) à moins de 10 minutes en voiture. Il y a un tennis et un supermarché à proximité de la maison.Cette maison est à vendre pour la somme de 225 000 €.Prenez contact avec notre agence (URBANSKY Mylann : (Numéro supprimé)) pour toute question sur la maison, sur les démarches à suivre ou sur les modalités de vente.Annonce proposée par un Agent Commercial Partenaire.
Boissy-le-Châtel
TERRAIN ET MAISONBoissy-le-Châtel : maison F4 (60 m²) en venteIDÉALEMENT SITUÉE – MAISON 4 PIÈCES NEUVEAu pied du Transilien P (gare de Coulommiers, 1 h de Paris), en vente idéalement située dans Boissy-le-Châtel (77169), notre agence Maisons Balency Baillet-en-France est ravie de vous proposer cette maison de 4 pièces de plain-pied de 60 m². Son intérieur propose deux chambres, une cuisine et une salle de bains.Le terrain de la maison est de 712 m².Cette maison est neuve.Cette maison se trouve dans un quartier recherché. L’École Maternelle Etienne Dumas et l’École Élémentaire la Mare Garenne y sont implantées. Côté transports en commun, il y a deux gares (Coulommiers et Mouroux) à moins de 10 minutes en voiture. On trouve un tennis et un supermarché dans les environs.Son prix de vente est de 235 000 €.N’hésitez pas à prendre contact avec notre agence (URBANSKY Mylann : (Numéro supprimé)) pour plus d’informations sur la propriété ou sur les modalités de vente. Maisons Balency Baillet-en-France est là pour vous accompagner dans toutes vos démarches.Annonce proposée par un Agent Commercial Partenaire.
Boissy-le-Châtel
TERRAIN ET MAISONVENTE d’une maison de 3 pièces (71 m²) à Boissy-le-ChâtelIDÉALEMENT SITUÉE – MAISON 3 PIÈCES NEUVEEn vente : à côté du Transilien P (gare de Coulommiers, 1 h de Paris), découvrez, idéalement située dans Boissy-le-Châtel (77169), cette maison de 3 pièces de plain-pied de 71 m² et de 712 m² de terrain. Elle comporte deux chambres, une cuisine et une salle de bains.La maison est neuve.Cette maison se situe dans un secteur prisé. L’École Maternelle Etienne Dumas et l’École Élémentaire la Mare Garenne y sont implantées. Niveau transports en commun, on trouve les gares Coulommiers et Mouroux à moins de 10 minutes en voiture. Il y a un tennis et un supermarché à proximité du bien.Elle est proposée à l’achat pour 246 000 €.Contactez notre agence (URBANSKY Mylann : (Numéro supprimé)) pour toute information sur la maison. Maisons Balency Baillet-en-France vous accompagne à toutes les étapes de l’achat et dans tous vos projets immobiliers.Annonce proposée par un Agent Commercial Partenaire.
Boissy-le-Châtel
TERRAIN ET MAISONVENTE : maison de 6 pièces (80 m²) à Boissy-le-ChâtelIDÉALEMENT SITUÉE – MAISON 6 PIÈCES NEUVEÀ deux pas de la gare de Coulommiers (Paris à 1 h par le Transilien P), ayez le coup de coeur pour cette maison de 6 pièces de 80 m² en vente idéalement située dans Boissy-le-Châtel (77169).Cette maison possède 2 niveaux. Elle se divise en quatre chambres, une cuisine et deux salles de bains. La maison est neuve.Le terrain du bien est de 712 m².Cette maison se situe dans un quartier attractif. On y trouve l’École Maternelle Etienne Dumas et l’École Élémentaire la Mare Garenne. Côté transports en commun, on trouve les gares Coulommiers et Mouroux à moins de 10 minutes en voiture. Il y a un tennis et un supermarché dans les environs.Elle est à vendre pour la somme de 255 000 €.Contactez Mylann URBANSKY ((Numéro supprimé)) pour obtenir de plus amples informations sur la maison. Concrétisez vos projets immobiliers avec Maisons Balency Baillet-en-France.Annonce proposée par un Agent Commercial Partenaire.
Boissy-le-Châtel
TERRAIN ET MAISONMaison F5 (90 m²) en vente à Boissy-le-ChâtelIDÉALEMENT SITUÉE – MAISON 5 PIÈCES NEUVEProche de la gare de Coulommiers (Paris à 1 h par le Transilien P), laissez vous charmer par en vente, idéalement située dans Boissy-le-Châtel (77169), cette maison de 5 pièces de 90 m². Son intérieur comporte quatre chambres, une cuisine et deux salles de bains.Le terrain de la propriété est de 712 m².Cette maison possède 2 niveaux. Elle est neuve.La maison est située dans un quartier attractif. On y trouve l’École Maternelle Etienne Dumas et l’École Élémentaire la Mare Garenne. Niveau transports en commun, on trouve les gares Coulommiers et Mouroux à moins de 10 minutes en voiture. Il y a un tennis et un supermarché à quelques minutes du logement.Son prix de vente est de 265 000 €.N’hésitez pas à prendre contact avec notre agence (Mylann URBANSKY : (Numéro supprimé)) pour obtenir de plus amples renseignements sur la maison ou sur les démarches à suivre. Maisons Balency Baillet-en-France est là pour vous accompagner à toutes les étapes de l’achat.Annonce proposée par un Agent Commercial Partenaire.
Boissy-le-Châtel
TERRAIN ET MAISONBoissy-le-Châtel : maison F7 (102 m²) en venteIDÉALEMENT SITUÉE – MAISON 7 PIÈCES NEUVEÀ proximité de la gare de Coulommiers (Paris à 1 h par le Transilien P), votre agence Maisons Balency Baillet-en-France est ravie de vous proposer cette maison de 7 pièces de 102 m² à vendre idéalement située dans Boissy-le-Châtel (77169).Cette maison compte 2 niveaux. Son intérieur inclut cinq chambres, une cuisine et deux salles de bains. La maison est neuve.Le terrain de la propriété est de 712 m².La maison se situe dans un quartier attractif. L’École Maternelle Etienne Dumas et l’École Élémentaire la Mare Garenne y sont implantées. Côté transports en commun, il y a deux gares (Coulommiers et Mouroux) à moins de 10 minutes en voiture. On trouve un tennis et un supermarché à quelques minutes à peine.Elle est proposée à l’achat pour 267 000 €.N’hésitez pas à prendre contact avec Mylann URBANSKY ((Numéro supprimé)) pour tout renseignement sur la maison.Annonce proposée par un Agent Commercial Partenaire.
Boissy-le-Châtel
TERRAIN ET MAISONBoissy-le-Châtel : maison T7 (120 m²) en venteIDÉALEMENT SITUÉE – MAISON 7 PIÈCES NEUVEÀ côté du Transilien P (gare de Coulommiers, 1 h de Paris), notre agence Maisons Balency Baillet-en-France est ravie de vous présenter en vente, idéalement située dans Boissy-le-Châtel (77169), cette maison de 7 pièces de 120 m².Il s’agit d’une maison de 2 niveaux. Elle offre cinq chambres, une cuisine et deux salles de bains. Cette maison est neuve.Le terrain de la propriété est de 712 m².La maison se situe dans un secteur convoité. On y trouve l’École Maternelle Etienne Dumas et l’École Élémentaire la Mare Garenne. Niveau transports en commun, on trouve deux gares (Coulommiers et Mouroux) à moins de 10 minutes en voiture. Il y a un tennis et un supermarché à proximité.Elle est proposée à l’achat pour 285 000 €.Contactez notre constructeur (Mylann URBANSKY : (Numéro supprimé)) pour toute information sur la maison, sur les modalités de vente ou sur les démarches à suivre. Maisons Balency Baillet-en-France est là pour vous accompagner à toutes les étapes de votre projet.Annonce proposée par un Agent Commercial Partenaire.
Boissy-le-Châtel
TERRAIN ET MAISONVENTE : maison de 6 pièces (109 m²) à Boissy-le-ChâtelIDÉALEMENT SITUÉE – MAISON 6 PIÈCES NEUVEÀ vendre : à deux pas de la gare de Coulommiers (Paris à 1 h par le Transilien P), découvrez, idéalement située dans Boissy-le-Châtel (77169), cette maison de 6 pièces de 109 m² et de 712 m² de terrain.C’est une maison de 2 niveaux. Son intérieur est composé de quatre chambres, d’une cuisine et de deux salles de bains. Cette maison est neuve.Cette maison se trouve dans un quartier convoité. L’École Maternelle Etienne Dumas et l’École Élémentaire la Mare Garenne y sont implantées. Niveau transports en commun, il y a les gares Coulommiers et Mouroux à moins de 10 minutes en voiture. On trouve un tennis et un supermarché dans les environs.Son prix de vente est de 274 000 €.Prenez contact avec notre agence (URBANSKY Mylann : (Numéro supprimé)) pour toute information sur la maison, sur les modalités de vente ou sur les démarches à suivre.Annonce proposée par un Agent Commercial Partenaire.
L’actualité immobilière à Rebais
27/11/2023
02/11/2023
30/10/2023
20/10/2023
16/10/2023
16/10/2023