Maison à construire à Salins (77148)
Images
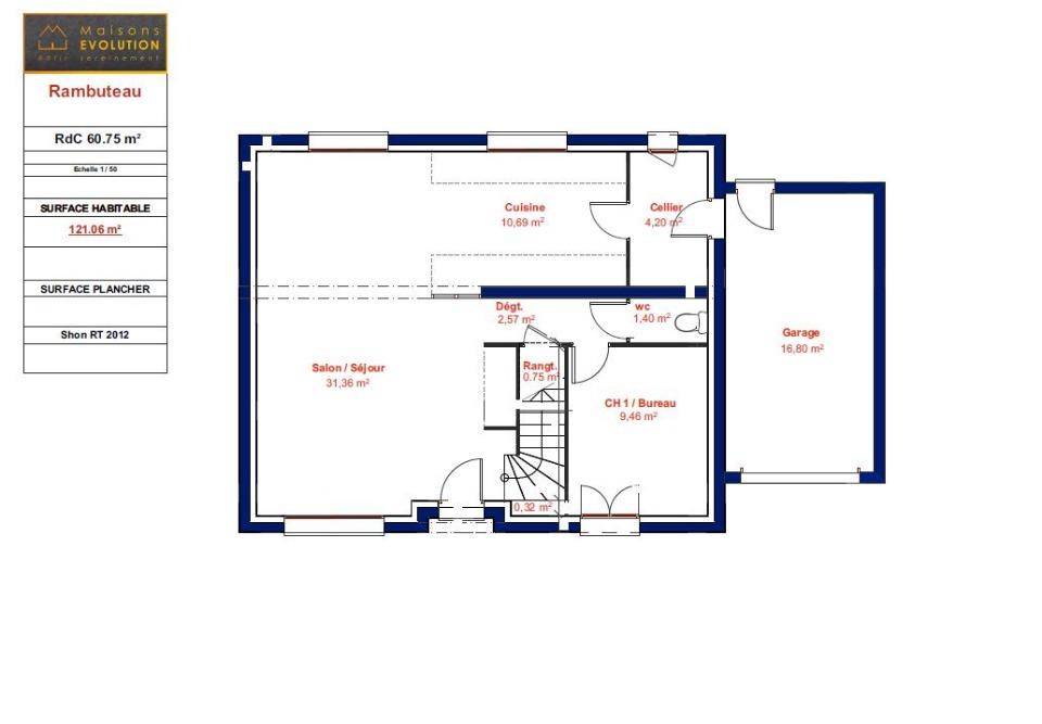
Description
Contactez Stéphanie SEBAG de l'agence Maisons Evolution de Mareuil-lès-Meaux au (Numéro supprimé) pour avoir plus d'informations sur ce projet.
Très jolie maison à étage de 124 m² habitables avec garage accolé idéalement située sur la commune de SALINS
Elle est composée de 5 chambres au total dont une grande suite parentale avec salle d'eau, de 3 salles de bains au total, de deux WC séparés et d'un grand salon-séjour lumineux avec cuisine ouverte donnant sur un cellier puis sur le garage.
Les plans sont entièrement modifiables selon vos souhaits, en agence ou visioconférence. Nous vous proposons un véritable accompagnement de qualité tout au long de votre projet.
Dessinons ensemble votre future maison !
Tel : (Numéro supprimé)
Annonce proposée par un Agent Commercial Partenaire.
Logement susceptibles de vous intéresser
Nous vous proposons de découvrir aussi cette sélection de logements situés à moins de 10km de Salins et qui seraient susceptibles de vous intéresser.
Varennes-sur-Seine
TERRAINTerrain à bâtir à vendre – Varennes sur SeineSitué sur la charmante commune de Varennes sur Seine, proche des commodités, terrain à bâtir non clos de 874 m².Idéal pour votre projet de construction.Vous souhaitez visiter et avoir plus d’informations, n’attendez plus, contactez-moi, Tony LALLEMENT au (Numéro supprimé) Honoraires à la charge du vendeur.Les informations sur les risques auxquels ce bien est exposé sont disponibles sur le site Géorisques : www.georisques.gouv.fr .
Barbey
TERRAINTerrain de 1 417 m² à vendre à BarbeyEMPLACEMENT PRIVILÉGIÉ – PROCHE DE SENSÀ Barbey (77130) à proximité de la gare de Montereau (Paris à 60 min avec le Transilien R), donnez vie à votre projet immobilier sur ce terrain de 1 417 m². Il se situe dans un quartier attractif. Il y a des établissements scolaires (de la maternelle au lycée) à moins de 10 minutes en voiture, tout comme quatre crèches à moins de 10 minutes à pied. Côté transports, on trouve trois gares (Villeneuve-la-Guyard, Champigny sur Yonne et Montereau) à moins de 10 minutes en voiture. On trouve des tennis, des bibliothèques, un bowling, un bassin de natation, des commerces, des boulangeries, des supermarchés, des boucheries-charcuteries et des bureaux de poste à quelques minutes du bien.Il est proposé à l’achat pour 88 000 €. Prenez contact avec Anne DELOHEN (tél : (Numéro supprimé)) pour plus d’informations sur ce terrain, sur les modalités de vente ou sur les démarches à suivre. Maisons France Confort Nemours est là pour vous accompagner dans tous vos projets immobiliers.Annonce proposée par un Agent Commercial Partenaire.
Barbey
TERRAIN ET MAISONBarbey : maison F5 (90 m²) en venteEMPLACEMENT PRIVILÉGIÉ – MAISON 5 PIÈCES NEUVEÀ proximité du Transilien R (gare de Montereau, 60 min de Paris), nous sommes heureux de vous présenter cette maison de 5 pièces de plain-pied de 90 m² en vente, bénéficiant d’un emplacement d’exception dans Barbey (77130).Elle compte trois chambres, une cuisine et une salle de bains. Cette maison est neuve.Le terrain du bien s’étend sur 1 417 m².La maison se trouve dans un secteur recherché. Il y a des établissements scolaires du primaire et du secondaire à moins de 10 minutes en voiture, tout comme quatre structures d’accueil pour les enfants en bas âge à moins de 10 minutes à pied. Niveau transports en commun, on trouve les gares Villeneuve-la-Guyard, Champigny sur Yonne et Montereau à moins de 10 minutes en voiture. Il y a des tennis, des bibliothèques, un bowling, un bassin de natation, des commerces, des boulangeries, des supermarchés, des bureaux de poste et une supérette à quelques minutes du logement.Son prix de vente est de 253 400 €.Contactez Anne DELOHEN (tél : (Numéro supprimé)) pour toute information sur la maison. Donnez vie à vos projets immobiliers avec Maisons France Confort Nemours.Annonce proposée par un Agent Commercial Partenaire.
Barbey
TERRAIN ET MAISONVENTE d’une maison T6 (125 m²) à BarbeyEMPLACEMENT PRIVILÉGIÉ – MAISON 6 PIÈCES NEUVEEn vente : proche de la gare de Montereau (Paris à 60 min par le Transilien R), venez découvrir cette maison de 6 pièces de 125 m² et de 1 417 m² de terrain bénéficiant d’un emplacement d’exception dans Barbey (77130). Elle inclut quatre chambres, une cuisine et deux salles de bains.C’est une maison de 2 niveaux. Elle est neuve.La maison se trouve dans un quartier attractif. Il y a tous les types d’établissements scolaires (de la maternelle au lycée) à moins de 10 minutes en voiture, tout comme quatre structures d’accueil pour les enfants en bas âge à moins de 10 minutes à pied. Niveau transports, on trouve les gares Villeneuve-la-Guyard, Champigny sur Yonne et Montereau à moins de 10 minutes en voiture. Il y a des tennis, des bibliothèques, un bowling, un bassin de natation, des commerces, des boulangeries, des supermarchés, des bureaux de poste et une poissonnerie à quelques minutes de la maison.Elle est proposée à l’achat pour 348 700 €.Contactez notre agence (DELOHEN Anne : (Numéro supprimé)) pour tout renseignement sur la maison ou sur les démarches à suivre. Concrétisez vos projets immobiliers avec Maisons France Confort Nemours.Annonce proposée par un Agent Commercial Partenaire.
Barbey
TERRAIN ET MAISONVENTE : maison de 5 pièces (90 m²) à BarbeyEMPLACEMENT PRIVILÉGIÉ – MAISON 5 PIÈCES NEUVEProche du Transilien R (gare de Montereau, 60 min de Paris), Maisons France Confort Nemours vous présente à vendre, bénéficiant d’un emplacement privilégié dans Barbey (77130), cette maison de 5 pièces de 90 m² et de 1 417 m² de terrain. Son intérieur offre quatre chambres, une cuisine et deux salles de bains.Il s’agit d’une maison de 2 niveaux. Elle est neuve.Cette maison se trouve dans un quartier recherché. Des établissements scolaires de tous niveaux sont implantés à moins de 10 minutes en voiture, tout comme quatre structures d’accueil pour les enfants en bas âge à moins de 10 minutes à pied. Niveau transports en commun, on trouve les gares Villeneuve-la-Guyard, Champigny sur Yonne et Montereau à moins de 10 minutes en voiture. Il y a des tennis, des bibliothèques, un bowling, un bassin de natation, des commerces, des boulangeries, des supermarchés, une poissonnerie et des épiceries à quelques minutes du bien.Elle est proposée à l’achat pour 275 800 €.N’hésitez pas à prendre contact avec notre agence (Anne DELOHEN : (Numéro supprimé)) pour obtenir de plus amples informations sur la maison, sur les modalités de vente ou sur les démarches à suivre. Maisons France Confort Nemours vous accompagne dans tous vos projets immobiliers et à toutes les étapes de votre projet.Annonce proposée par un Agent Commercial Partenaire.
Salins
TERRAINTerrain de 560 m² à vendre à SalinsIDÉALEMENT SITUÉ – PROCHE DE MELUNÀ côté du Transilien R (gare de Montereau, 60 min de Paris) à Salins (77148), grand terrain. Ce terrain, avec vue sur rue, bénéficie d’une exposition sud-ouest. Dans un quartier prisé, ce terrain idéalement situé est proche des commerces et des écoles. Une école primaire est implantée dans le quartier. Niveau transports, il y a deux gares (Montereau et Villeneuve-la-Guyard) à moins de 10 minutes en voiture. On trouve un tennis et une épicerie dans les environs.Il est à vendre pour la somme de 77 800 €. Contactez notre agence (RELAND Thomas : (Numéro supprimé)) pour obtenir de plus amples renseignements sur le terrain ou sur les modalités de vente. Maisons France Confort La Queue-en-Brie est là pour vous accompagner dans tous vos projets immobiliers.
Salins
TERRAIN ET MAISONVENTE : maison de 6 pièces (100 m²) à SalinsIDÉALEMENT SITUÉE – MAISON 6 PIÈCES NEUVEEn vente : à côté de la gare de Montereau (Paris à 60 min avec le Transilien R), nous sommes ravis de vous présenter cette maison de 6 pièces de 100 m² et de 560 m² de terrain avec vue sur rue idéalement située dans Salins (77148). Elle se divise en quatre chambres, une cuisine et une salle de bains.C’est une maison de 2 niveaux. Elle est neuve.Cette maison se trouve dans un quartier recherché. On y trouve une école primaire. Niveau transports, il y a deux gares (Montereau et Villeneuve-la-Guyard) à moins de 10 minutes en voiture. On trouve un tennis et une épicerie dans les environs.Elle est proposée à l’achat pour 290 000 €.Contactez notre agence (RELAND Thomas : (Numéro supprimé)) pour tout renseignement sur la maison. Maisons France Confort La Queue-en-Brie vous accompagne à toutes les étapes de votre projet et dans tous vos projets immobiliers.
Montigny-Lencoup
TERRAINMontigny-Lencoup : terrain de 610 m² à vendrePROCHE GARE – VUE DÉGAGÉEGrand terrain à quelques kilomètres de Melun. De 610 m², ce terrain se situe proche de la gare de Montigny-Lencoup (77520). Il profite d’une vue dégagée et bénéficie d’une exposition sud-ouest. Ce terrain est proche des commerces et des écoles. Il y a des établissements scolaires primaires dans le quartier. On trouve un tennis, une bibliothèque, une boulangerie et une épicerie dans les environs.Il est proposé à l’achat pour 60 000 €. Contactez Thomas RELAND ((Numéro supprimé)) pour toute information sur ce terrain ou sur les démarches à suivre.
Montigny-Lencoup
TERRAIN ET MAISONVENTE : maison de 6 pièces (100 m²) à Montigny-LencoupPROCHE GARE – MAISON 6 PIÈCES NEUVEÀ 31 km de Melun, laissez vous charmer par cette maison de 6 pièces de 100 m² et de 610 m² de terrain avec vue dégagée en vente dans Montigny-Lencoup (77520), proche de la gare.Cette maison compte 2 niveaux. Son intérieur dispose de quatre chambres, d’une cuisine et d’une salle de bains. La maison est neuve.Des écoles maternelles et élémentaires sont implantées dans le quartier. Il y a un tennis, une bibliothèque, une boulangerie et une épicerie à proximité de la maison.Elle est proposée à l’achat pour 280 000 €.Contactez notre agence (Thomas RELAND : (Numéro supprimé)) pour tout renseignement sur le bien. Maisons France Confort La Queue-en-Brie est là pour vous accompagner dans tous vos projets immobiliers.
L’actualité immobilière à Salins
27/11/2023
02/11/2023
30/10/2023
20/10/2023
16/10/2023
16/10/2023