Maison à construire à Sivry-Courtry (77115)
Images
Description
Maison de 6 pièces (105 m²) à vendre à Sivry-Courtry
EMPLACEMENT PRIVILÉGIÉ - MAISON 6 PIÈCES NEUVE
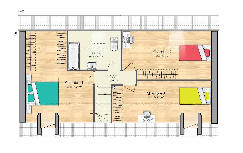
À quelques minutes de la gare de Melun (Paris à 30 min avec le Transilien R), Maisons France Confort Nemours vous présente cette maison de 6 pièces de 105 m² à vendre bénéficiant d'un emplacement privilégié dans Sivry-Courtry (77115). Elle dispose de quatre chambres, d'une cuisine et de deux salles de bains.
Le terrain de cette maison s'étend sur 629 m².
Cette maison possède 2 niveaux. Elle est neuve.
Cette maison est située dans un quartier prisé. Tous les types d'établissements scolaires (maternelle, élémentaire et secondaire) sont implantés à moins de 10 minutes en voiture, tout comme trois structures d'accueil pour les enfants en bas âge à moins de 10 minutes à pied. Niveau transports en commun, il y a la station de RER Melun (ligne D) ainsi que cinq gares à moins de 10 minutes en voiture. Il y a des bibliothèques, des tennis, quatre bassins de natation, des boulangeries, des commerces, des supermarchés, deux supérettes et des bureaux de poste à proximité du bien.
Elle est à vendre pour la somme de 303 400 €.
Prenez contact avec Anne DELOHEN ((Numéro supprimé)) pour toute information sur la maison ou sur les modalités de vente. Concrétisez vos projets immobiliers avec Maisons France Confort Nemours.
Annonce proposée par un Agent Commercial Partenaire.
Logement susceptibles de vous intéresser
Nous vous proposons de découvrir aussi cette sélection de logements situés à moins de 10km de Sivry-Courtry et qui seraient susceptibles de vous intéresser.
La Chapelle-Gauthier
TERRAINproximité du centre ville, commerces, transports et écoles.Prix : 110000 €.Sur ce terrain de 382 m² à LA CHAPELLE-GAUTHIER, Maisons Clairval vous propose de réaliser votre projet de construction de maison individuelle.Maisons Clairval propose de construire votre maison neuve avec toutes les prestations suivantes :- Plan sur-mesure et personnalisé de 2 à 6 chambres- Mode de chauffage au choix- Grands choix d'équipements et de prestations- Matériaux de qualité selon les normes en vigueur- Accompagnement dans le choix et l’acquisition du terrain- Construction conforme à la nouvelle RE 2020Demandez une étude gratuite et personnalisée de votre projet de construction sur ce terrain !Contactez Nicolas REBOUL au (Numéro supprimé) ou au (Numéro supprimé) (Maisons Clairval – Agence de Villemoisson).Prix hors frais de notaire. Terrain sélectionné et vu pour vous sous réserve de disponibilité et au prix indiqué par notre partenaire foncier. Conditions et visuels non contractuels.Cette annonce a été créée et diffusée avec le logiciel VITAHOME.
Dammarie-les-Lys
TERRAINPrix : 153000 €.Sur ce terrain de 553 m² à DAMMARIE-LES-LYS, Maisons Clairval vous propose de réaliser votre projet de construction de maison individuelle.Maisons Clairval propose de construire votre maison neuve avec toutes les prestations suivantes :- Plan sur-mesure et personnalisé de 2 à 6 chambres- Mode de chauffage au choix- Grands choix d'équipements et de prestations- Matériaux de qualité selon les normes en vigueur- Accompagnement dans le choix et l’acquisition du terrain- Construction conforme à la nouvelle RE 2020Demandez une étude gratuite et personnalisée de votre projet de construction sur ce terrain !Contactez Nicolas REBOUL au (Numéro supprimé) ou au (Numéro supprimé) (Maisons Clairval – Agence de Villemoisson).Prix hors frais de notaire. Terrain sélectionné et vu pour vous sous réserve de disponibilité et au prix indiqué par notre partenaire foncier. Conditions et visuels non contractuels.Cette annonce a été créée et diffusée avec le logiciel VITAHOME.
Le Mée-sur-Seine
TERRAINPrix : 162500 €.Sur ce terrain de 500 m² à LE MEE-SUR-SEINE, Maisons Clairval vous propose de réaliser votre projet de construction de maison individuelle.Maisons Clairval propose de construire votre maison neuve avec toutes les prestations suivantes :- Plan sur-mesure et personnalisé de 2 à 6 chambres- Mode de chauffage au choix- Grands choix d'équipements et de prestations- Matériaux de qualité selon les normes en vigueur- Accompagnement dans le choix et l’acquisition du terrain- Construction conforme à la nouvelle RE 2020Demandez une étude gratuite et personnalisée de votre projet de construction sur ce terrain !Contactez Nicolas REBOUL au (Numéro supprimé) ou au (Numéro supprimé) (Maisons Clairval – Agence de Villemoisson).Prix hors frais de notaire. Terrain sélectionné et vu pour vous sous réserve de disponibilité et au prix indiqué par notre partenaire foncier. Conditions et visuels non contractuels.Cette annonce a été créée et diffusée avec le logiciel VITAHOME.
La Chapelle-Gauthier
TERRAINproximité du centre ville, commerces, transports et écoles.Prix : 112000 €.Sur ce terrain de 383 m² à LA CHAPELLE-GAUTHIER, Maisons Clairval vous propose de réaliser votre projet de construction de maison individuelle.Maisons Clairval propose de construire votre maison neuve avec toutes les prestations suivantes :- Plan sur-mesure et personnalisé de 2 à 6 chambres- Mode de chauffage au choix- Grands choix d'équipements et de prestations- Matériaux de qualité selon les normes en vigueur- Accompagnement dans le choix et l’acquisition du terrain- Construction conforme à la nouvelle RE 2020Demandez une étude gratuite et personnalisée de votre projet de construction sur ce terrain !Contactez Nicolas REBOUL au (Numéro supprimé) ou au (Numéro supprimé) (Maisons Clairval – Agence de Villemoisson).Prix hors frais de notaire. Terrain sélectionné et vu pour vous sous réserve de disponibilité et au prix indiqué par notre partenaire foncier. Conditions et visuels non contractuels.Cette annonce a été créée et diffusée avec le logiciel VITAHOME.
Fouju
TERRAINMohammed – Agence Pavillons d'Île-de-FranceVotre expert en maisons sur-mesure depuis plus de 50 ans à Mareuil-lès-MeauxTransformez votre rêve en réalité !Situé dans un écrin de verdure, ce terrain de 650 m² vous offre l'opportunité rare de construire la maison de vos rêves dans un cadre calme et agréable. À deux pas des commerces, écoles et transports, vous bénéficierez de la tranquillité de la campagne sans renoncer à la proximité de la vie urbaine.Imaginez votre futur chez-vous, parfaitement adapté à vos envies et à vos besoins. Ce terrain est prêt à accueillir votre projet et à vous offrir un cadre de vie exceptionnel.Prix : 95 000 €Ne laissez pas passer cette chance unique ! Contactez-nous dès maintenant au (Numéro supprimé) pour planifier une étude de faisabilité.Prix : 95000 €.Sur ce terrain, réalisez votre projet de construction de maison RE 2020 avec PAVILLONS D'ÎLE-DE-FRANCE (constructeur de maisons de gamme et sur-mesure depuis plus de 50 ans) :- Plan sur-mesure et personnalisé de 2 à 5 chambres- Mode de chauffage au choix- Grands choix d'équipements et de prestations- Matériaux de qualité selon les normes en vigueur- Accompagnement dans le choix et l’acquisition du terrainDemandez une étude gratuite et personnalisée de votre projet de construction sur ce terrain !Contactez Mohammed HAMDAOUI au (Numéro supprimé) ou au (Numéro supprimé) (Pavillons d'Île-de-France – Agence de Meaux).Prix hors frais de notaire. Terrain sélectionné et vu pour vous sous réserve de disponibilité et au prix indiqué par notre partenaire foncier. Visuels non contractuels.Cette annonce a été créée et diffusée avec le logiciel VITAHOME.
La Chapelle-Gauthier
TERRAINTerrain viabilisé et plat, avec toutes commodités sur place, transports pour gare de Melun, écoles, commerces.Prix : 110000 €.Sur ce terrain, réalisez votre projet de construction de maison RE 2020 avec PAVILLONS D'ÎLE-DE-FRANCE (constructeur de maisons de gamme et sur-mesure depuis plus de 50 ans) :- Plan sur-mesure et personnalisé de 2 à 5 chambres- Mode de chauffage au choix- Grands choix d'équipements et de prestations- Matériaux de qualité selon les normes en vigueur- Accompagnement dans le choix et l’acquisition du terrainDemandez une étude gratuite et personnalisée de votre projet de construction sur ce terrain !Contactez Olivier SAMSON au (Numéro supprimé) ou au (Numéro supprimé) (Pavillons d'Île-de-France – Agence de Meaux).Prix hors frais de notaire. Terrain sélectionné et vu pour vous sous réserve de disponibilité et au prix indiqué par notre partenaire foncier. Visuels non contractuels.Cette annonce a été créée et diffusée avec le logiciel VITAHOME.
Andrezel
TERRAINMohammed – Agence Pavillons d'Île-de-FranceVotre expert en maisons sur-mesure depuis plus de 50 ans à Mareuil-lès-MeauxTransformez votre rêve en réalité !Situé dans un écrin de verdure, ce terrain de 213 m² vous offre l'opportunité rare de construire la maison de vos rêves dans un cadre calme et agréable. À deux pas des commerces, écoles et transports, vous bénéficierez de la tranquillité de la campagne sans renoncer à la proximité de la vie urbaine.Imaginez votre futur chez-vous, parfaitement adapté à vos envies et à vos besoins. Ce terrain est prêt à accueillir votre projet et à vous offrir un cadre de vie exceptionnel.Prix : 95 000 €Ne laissez pas passer cette chance unique ! Contactez-nous dès maintenant au (Numéro supprimé) pour planifier une étude de faisabilité.Prix : 95000 €.Sur ce terrain, réalisez votre projet de construction de maison RE 2020 avec PAVILLONS D'ÎLE-DE-FRANCE (constructeur de maisons de gamme et sur-mesure depuis plus de 50 ans) :- Plan sur-mesure et personnalisé de 2 à 5 chambres- Mode de chauffage au choix- Grands choix d'équipements et de prestations- Matériaux de qualité selon les normes en vigueur- Accompagnement dans le choix et l’acquisition du terrainDemandez une étude gratuite et personnalisée de votre projet de construction sur ce terrain !Contactez Mohammed HAMDAOUI au (Numéro supprimé) ou au (Numéro supprimé) (Pavillons d'Île-de-France – Agence de Meaux).Prix hors frais de notaire. Terrain sélectionné et vu pour vous sous réserve de disponibilité et au prix indiqué par notre partenaire foncier. Visuels non contractuels.Cette annonce a été créée et diffusée avec le logiciel VITAHOME.
La Chapelle-Gauthier
TERRAIN ET MAISONRéalisez votre projet de construction de maison RE 2020 avec PAVILLONS D'ÎLE-DE-FRANCE (constructeur de maisons de gamme et sur-mesure depuis plus de 50 ans) :- Plan sur-mesure et personnalisé de 2 à 5 chambres- Mode de chauffage au choix- Grands choix d'équipements et de prestations- Matériaux de qualité selon les normes en vigueur- Accompagnement dans le choix et l’acquisition du terrainInformations du terrain : Terrain viabilisé et plat, avec toutes commodités sur place, transports pour gare de Melun, écoles, commerces.Demandez une étude gratuite et personnalisée de votre projet de construction !Contactez Olivier SAMSON au (Numéro supprimé) ou au (Numéro supprimé) (Pavillons d'Île-de-France – Agence de Meaux).Prix avec assurance dommages-ouvrage comprise, hors VRD, terrain viabilisé, assainissement compris, frais de notaire non compris, taxes non comprises, frais divers non compris. Terrain sélectionné et vu pour vous sous réserve de disponibilité et au prix indiqué par notre partenaire foncier. Visuels non contractuels.Cette annonce a été créée et diffusée avec le logiciel VITAHOME.
Fouju
TERRAIN ET MAISONRéalisez votre projet de construction de maison RE 2020 avec PAVILLONS D'ÎLE-DE-FRANCE (constructeur de maisons de gamme et sur-mesure depuis plus de 50 ans) :- Plan sur-mesure et personnalisé de 2 à 5 chambres- Mode de chauffage au choix- Grands choix d'équipements et de prestations- Matériaux de qualité selon les normes en vigueur- Accompagnement dans le choix et l’acquisition du terrainInformations du terrain : Mohammed – Agence Pavillons d'Île-de-FranceVotre expert en maisons sur-mesure depuis plus de 50 ans à Mareuil-lès-MeauxTransformez votre rêve en réalité !Situé dans un écrin de verdure, ce terrain de 650 m² vous offre l'opportunité rare de construire la maison de vos rêves dans un cadre calme et agréable. À deux pas des commerces, écoles et transports, vous bénéficierez de la tranquillité de la campagne sans renoncer à la proximité de la vie urbaine.Imaginez votre futur chez-vous, parfaitement adapté à vos envies et à vos besoins. Ce terrain est prêt à accueillir votre projet et à vous offrir un cadre de vie exceptionnel.Prix : 95 000 €Ne laissez pas passer cette chance unique ! Contactez-nous dès maintenant au (Numéro supprimé) pour planifier une étude de faisabilité.Demandez une étude gratuite et personnalisée de votre projet de construction !Contactez Mohammed HAMDAOUI au (Numéro supprimé) ou au (Numéro supprimé) (Pavillons d'Île-de-France – Agence de Meaux).Prix avec assurance dommages-ouvrage comprise, hors VRD, terrain non viabilisé, assainissement non compris, frais de notaire non compris, taxes non comprises, frais divers non compris. Terrain sélectionné et vu pour vous sous réserve de disponibilité et au prix indiqué par notre partenaire foncier. Visuels non contractuels.Cette annonce a été créée et diffusée avec le logiciel VITAHOME.
L’actualité immobilière à Sivry-Courtry
27/11/2023
02/11/2023
30/10/2023
20/10/2023
16/10/2023
16/10/2023