Maison à construire à Soignolles-en-Brie (77111)
Images
Description
Contactez Guillaume Bordes de l'agence Maisons Evolution de Mareuil-lès-Meaux au (Numéro supprimé) pour avoir plus d'informations sur ce projet.
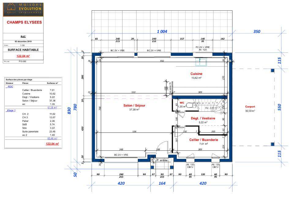
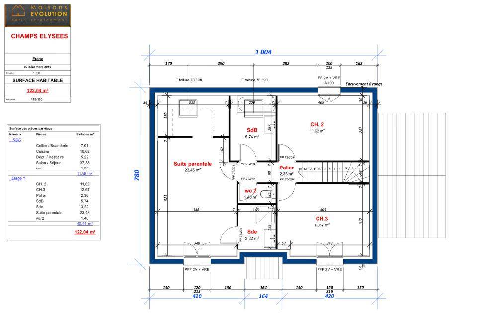
Découvrez cette très jolie maison moderne de 122 m² habitables, aux dernières normes énergétiques, idéalement située sur la commune de Soignolles en Brie.
Elle est composée de 3 grandes chambres dont une grande suite parentale avec salle d'eau, d'une seconde salle de bains, de deux WC séparés et d'un grand salon-séjour lumineux avec cuisine ouverte donnant sur un vaste cellier/buanderie. Il est possible d'y ajouter un garage ou un carport.
Les plans sont entièrement modifiables selon vos souhaits, en agence ou visioconférence. Nous vous proposons un véritable accompagnement de qualité tout au long de votre projet.
Dessinons ensemble votre future maison !
Tel : (Numéro supprimé)
Annonce proposée par un Agent Commercial Partenaire.
Logement susceptibles de vous intéresser
Nous vous proposons de découvrir aussi cette sélection de logements situés à moins de 10km de Soignolles-en-Brie et qui seraient susceptibles de vous intéresser.
Soignolles-en-Brie
TERRAINPrix : 115500 €.Sur ce terrain de 504 m² à SOIGNOLLES-EN-BRIE, Maisons Clairval vous propose de réaliser votre projet de construction de maison individuelle.Maisons Clairval propose de construire votre maison neuve avec toutes les prestations suivantes :- Plan sur-mesure et personnalisé de 2 à 6 chambres- Mode de chauffage au choix- Grands choix d'équipements et de prestations- Matériaux de qualité selon les normes en vigueur- Accompagnement dans le choix et l’acquisition du terrain- Construction conforme à la nouvelle RE 2020Demandez une étude gratuite et personnalisée de votre projet de construction sur ce terrain !Contactez Nicolas REBOUL au (Numéro supprimé) ou au (Numéro supprimé) (Maisons Clairval – Agence de Villemoisson).Prix hors frais de notaire. Terrain sélectionné et vu pour vous sous réserve de disponibilité et au prix indiqué par notre partenaire foncier. Conditions et visuels non contractuels.Cette annonce a été créée et diffusée avec le logiciel VITAHOME.
Soignolles-en-Brie
TERRAINEnvironnement résidentiel, proche des commodités et écoles. Accès rapide aux axes principaux et à 10 min de Brie-Comte-RobertPrix : 185000 €.Sur ce terrain de 1625 m² à SOIGNOLLES-EN-BRIE, Maisons Clairval vous propose de réaliser votre projet de construction de maison individuelle.Maisons Clairval propose de construire votre maison neuve avec toutes les prestations suivantes :- Plan sur-mesure et personnalisé de 2 à 6 chambres- Mode de chauffage au choix- Grands choix d'équipements et de prestations- Matériaux de qualité selon les normes en vigueur- Accompagnement dans le choix et l’acquisition du terrain- Construction conforme à la nouvelle RE 2020Demandez une étude gratuite et personnalisée de votre projet de construction sur ce terrain !Contactez Nicolas REBOUL au (Numéro supprimé) ou au (Numéro supprimé) (Maisons Clairval – Agence de Villemoisson).Prix hors frais de notaire. Terrain sélectionné et vu pour vous sous réserve de disponibilité et au prix indiqué par notre partenaire foncier. Conditions et visuels non contractuels.Cette annonce a été créée et diffusée avec le logiciel VITAHOME.
Soignolles-en-Brie
TERRAINVENTE : terrain de 667 m² à Soignolles-en-BrieEMPLACEMENT PRIVILÉGIÉ – PROCHE DE MONTREUILÀ Soignolles-en-Brie (77111) à deux pas de la gare de Verneuil-l’Étang (Paris à 30 min par le Transilien P), imaginez la maison de vos rêves sur ce terrain de 667 m². Dans un quartier recherché, ce terrain bénéficiant d’un emplacement privilégié est proche des commerces et des écoles. Il y a une école primaire dans la commune. Niveau transports, on trouve la gare Verneuil-l’Étang à moins de 10 minutes en voiture. Il y a une bibliothèque à proximité du bien.Il est proposé à l’achat pour 155 000 €. Contactez notre agence (DELOHEN Anne : (Numéro supprimé)) pour toute question sur ce terrain, sur les modalités de vente ou sur les démarches à suivre.Annonce proposée par un Agent Commercial Partenaire.
Soignolles-en-Brie
TERRAIN ET MAISONVENTE : maison T6 (106 m²) à Soignolles-en-BrieEMPLACEMENT PRIVILÉGIÉ – MAISON 6 PIÈCES NEUVEEn vente : proche de la gare de Verneuil-l’Étang (Paris à 30 min avec le Transilien P), nous vous proposons cette maison de 6 pièces de plain-pied de 106 m² et de 667 m² de terrain, bénéficiant d’un emplacement d’exception dans Soignolles-en-Brie (77111).Son intérieur se divise en quatre chambres, une cuisine et deux salles de bains. La maison est neuve.Cette maison est située dans un secteur attractif. On y trouve une école primaire. Niveau transports, on trouve la gare Verneuil-l’Étang à moins de 10 minutes en voiture. Il y a une bibliothèque dans les environs.Son prix de vente est de 344 300 €.Prenez contact avec Anne DELOHEN (tél : (Numéro supprimé)) pour tout renseignement sur la propriété, sur les modalités de vente ou sur les démarches à suivre. Maisons France Confort Nemours est là pour vous accompagner dans tous vos projets immobiliers.Annonce proposée par un Agent Commercial Partenaire.
Soignolles-en-Brie
TERRAIN ET MAISONVENTE d’une maison F8 (140 m²) à Soignolles-en-BrieEMPLACEMENT PRIVILÉGIÉ – MAISON 8 PIÈCES NEUVEAu pied de la gare de Verneuil-l’Étang (Paris à 30 min avec le Transilien P), en vente bénéficiant d’un emplacement privilégié dans Soignolles-en-Brie (77111), notre agence Maisons France Confort Nemours est ravie de vous proposer cette maison de 8 pièces de 140 m² et de 667 m² de terrain.C’est une maison de 2 niveaux. Son intérieur dispose de cinq chambres, d’une cuisine et de deux salles de bains. Cette maison est neuve.La maison se trouve dans un secteur prisé. On y trouve une école primaire. Côté transports, il y a la gare Verneuil-l’Étang à moins de 10 minutes en voiture. On trouve une bibliothèque à quelques minutes du logement.Elle est proposée à l’achat pour 451 700 €.Prenez contact avec notre constructeur (Anne DELOHEN : (Numéro supprimé)) pour toute information sur la maison. Maisons France Confort Nemours vous accompagne dans toutes vos démarches et à toutes les étapes de l’achat.Annonce proposée par un Agent Commercial Partenaire.
Évry-Grégy-sur-Yerre
TERRAINRare sur le secteur.Muriel GARNIER vous présente en exclusivité, ce beau terrain plat de 351m2 situé dans le charmant village d’Evry Grégy Sur Yerre.Situé à 30km de Paris, et seulement 5min de l’entrée N104 et A5B,La commune bénéficie de commerces de proximité (Restauration, Boulangerie, épicerie, coiffeur, pharmacie), ainsi que les écoles primaires et maternelles.Cette commune charmera tous les amoureux de la nature à la recherche de calme.Le terrain est plat et borné.La façade mesure un peu plus de 21m et dispose d’une profondeur de 18m environ.Prévoir viabilité des réseaux eau, électricité et tout à l’égout sur ruePrix : 134.000 euros FAI Honoraires charge vendeur.Pour visiter et vous accompagner dans votre projet, contactez Muriel GARNIER, au (Numéro supprimé) ou, par courriel à (Email supprimé).Selon l’article L.561.5 du Code Monétaire et Financier, pour l’organisation de la visite, la présentation d’une pièce d’identité vous sera demandée.Cette présente annonce a été rédigée sous la responsabilité éditoriale de Muriel GARNIER agissant sous le statut d’agent commercial immatriculé au RSAC EVRY 981 209 620 auprès de SAS PROPRIETES PRIVEES, au capital de 44 920 euros, ZAC LE CHÊNE FERRÉ – 44 ALLÉE DES CINQ CONTINENTS 44120 VERTOU; SIRET 487 624 777 00040, RCS Nantes. Carte Professionnelle Transactions sur immeubles et fonds de commerce (T) et Gestion immobilière (G) n°CPI 4401 2016 000 010 388 délivrée par la CCI Nantes – Saint Nazaire. Compte séquestre n(Numéro supprimé)67 BPA SAINT-SEBASTIEN-SUR-LOIRE (44230). Garantie GALIAN-SMABTP – 89 rue de la Boétie, 75008 Paris – n°28137 J pour 2 000 000 euros pour T et 120 000 euros pour G. Assurance responsabilité civile professionnelle par GALIAN-SMABTP n° de police 28137.JMandat réf : 405840 – Le professionnel garantit et sécurise votre projet immobilier. Muriel GARNIER (EI) Agent Commercial – Numéro RSAC : EVRY 981 209 620 – .
Verneuil-l'Étang
TERRAIN ET MAISONVENTE d’une maison de 5 pièces (90 m²) à Verneuil-l’ÉtangParis à 30 min (Transilien P) – À découvrir proche de la gare de Verneuil-l’Étang (77390) : maison neuve 5 pièces en vente, 90 m² de surface et 280 m² de terrain. Son intérieur comporte trois chambres, une cuisine et une salle de bains.Proche gare (Verneuil-l’Étang), établissements scolaires, tennis, bibliothèque, boulangeries, commerces, supermarché et bureau de poste. Champigny-sur-Marne à 30 km.Cette maison de 5 pièces est à vendre pour la somme de 238 000 €.Contactez Stephanie SEBAG ((Numéro supprimé)) pour toute information sur la maison. Maisons Evolution Mareuil-lès-Meaux est là pour vous accompagner dans toutes vos démarches.Annonce proposée par un Agent Commercial Partenaire.
Guignes
TERRAIN ET MAISONContactez Stéphanie SEBAG de l’agence Maisons Evolution de Mareuil-lès-Meaux au (Numéro supprimé) pour avoir plus d’informations sur ce projet.Jolie maison à combles aménagés d’une superficie de 90 m² habitables avec garage accolé en option idéalement située sur la commune de GUIGNESElle est composée de 4 chambres dont une au rez-de-chaussée (pouvant faire office de bureau), d’une salle de bains, de deux WC, et d’un grand salon-séjour lumineux avec cuisine ouverte, cellier et garage.Les plans sont modifiables selon vos souhaits, en agence ou visioconférence. Nous vous proposons un véritable accompagnement de qualité tout au long de votre projet.Dessinons ensemble votre future maison !Tel: (Numéro supprimé)Annonce proposée par un Agent Commercial Partenaire.
Verneuil-l'Étang
TERRAIN ET MAISONVENTE d’une maison de 4 pièces (78 m²) à Verneuil-l’ÉtangParis à 30 min (Transilien P) – À découvrir dans Verneuil-l’Étang (77390), proche de la gare : maison neuve 4 pièces en vente. 2 niveaux, surface de 78 m² sur 280 m² de terrain. Son intérieur propose trois chambres, une cuisine et une salle de bains.Proche gare (Verneuil-l’Étang), établissements scolaires, tennis, bibliothèque, boulangeries, commerces, supermarché et bureau de poste. Champigny-sur-Marne à 30 km.Cette maison de 4 pièces est à vendre pour la somme de 233 500 €.Prenez contact avec Stephanie SEBAG (tél : (Numéro supprimé)) pour tout renseignement sur la maison ou sur les modalités de vente. Maisons Evolution Mareuil-lès-Meaux vous accompagne dans tous vos projets immobiliers et à toutes les étapes de l’achat.Annonce proposée par un Agent Commercial Partenaire.
L’actualité immobilière à Soignolles-en-Brie
27/11/2023
02/11/2023
30/10/2023
20/10/2023
16/10/2023
16/10/2023