Maison à construire à Saint-Pathus (77178)
Images
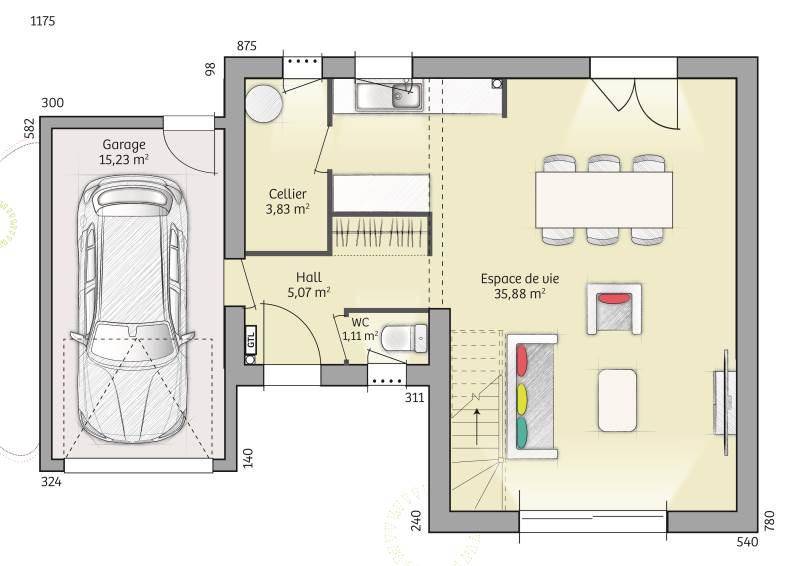
Description
VENTE : maison de 5 pièces (90 m²) à Saint-Pathus
IDÉALEMENT SITUÉE - MAISON 5 PIÈCES NEUVE
À quelques minutes du Transilien K (gare du Plessis-Belleville, 35 min de Paris), venez découvrir cette maison de 5 pièces de 90 m² en vente idéalement située dans Saint-Pathus (77178).
Il s'agit d'une maison de 2 niveaux. Son intérieur comporte trois chambres, une cuisine et une salle de bains. La maison est neuve.
Le terrain du bien est de 423 m².
La maison se situe dans un secteur attractif. On trouve le Collège Jean des Barres à moins de 10 minutes à pied. Niveau transports en commun, il y a les gares Le Plessis-Belleville, Nanteuil-le-Haudouin et Dammartin-Juilly-Saint-Mard à moins de 10 minutes en voiture. Il y a deux tennis, un commerce et une épicerie dans les environs.
Elle est à vendre pour la somme de 339 000 €.
N'hésitez pas à prendre contact avec Hugo NGUYEN (tél : (Numéro supprimé)) pour tout renseignement sur la maison, sur les modalités de vente ou sur les démarches à suivre. Maisons France Confort Magny-le-Hongre est là pour vous accompagner dans tous vos projets immobiliers.
Annonce proposée par un Agent Commercial Partenaire.
Logement susceptibles de vous intéresser
Nous vous proposons de découvrir aussi cette sélection de logements situés à moins de 10km de Saint-Pathus et qui seraient susceptibles de vous intéresser.
Dammartin-en-Goële
TERRAIN ET MAISONVENTE : maison de 5 pièces (114 m²) à CuisyEMPLACEMENT PRIVILÉGIÉ – MAISON 5 PIÈCES NEUVEEn vente : à quelques minutes de la gare de Dammartin-Juilly-Saint-Mard (Paris à 30 min par le Transilien K), Maisons France Confort Magny-le-Hongre vous propose cette maison de 5 pièces de 114 m² et de 430 m² de terrain bénéficiant d’un emplacement d’exception dans Cuisy (77165). Son intérieur propose quatre chambres, une cuisine et une salle de bains.Il s’agit d’une maison de 2 niveaux. Elle est neuve.Cette maison est située dans un secteur recherché. Une école élémentaire y est implantée. Côté transports, il y a quatre gares à moins de 10 minutes en voiture. Il y a un tennis dans les environs.Son prix de vente est de 352 200 €.N’hésitez pas à prendre contact avec Alan RUBAL ((Numéro supprimé)) pour toute information sur la maison. Maisons France Confort Magny-le-Hongre est là pour vous accompagner dans toutes vos démarches.Annonce proposée par un Agent Commercial Partenaire.
Dammartin-en-Goële
TERRAIN ET MAISONVENTE d’une maison de 5 pièces (97 m²) à CuisyEMPLACEMENT PRIVILÉGIÉ – MAISON 5 PIÈCES NEUVEÀ vendre : à proximité du Transilien K (gare de Dammartin-Juilly-Saint-Mard, 30 min de Paris), nous vous présentons cette maison de 5 pièces de 97 m² bénéficiant d’un emplacement privilégié dans Cuisy (77165).Cette maison compte 2 niveaux. Son intérieur dispose de quatre chambres, d’une cuisine et de deux salles de bains. La maison est neuve.Le terrain de la propriété est de 430 m².La propriété se situe dans un quartier convoité. Une école élémentaire y est implantée. Niveau transports en commun, on trouve quatre gares à moins de 10 minutes en voiture. Il y a un tennis à quelques minutes du logement.Elle est proposée à l’achat pour 321 600 €.Prenez contact avec Alan RUBAL (tél : (Numéro supprimé)) pour tout renseignement sur la maison ou sur les démarches à suivre.Annonce proposée par un Agent Commercial Partenaire.
Dammartin-en-Goële
TERRAIN ET MAISONVENTE d’une maison F5 (100 m²) à CuisyEMPLACEMENT PRIVILÉGIÉ – MAISON 5 PIÈCES NEUVEÀ vendre : à côté du Transilien K (gare de Dammartin-Juilly-Saint-Mard, 30 min de Paris), votre agence Maisons France Confort Magny-le-Hongre est heureuse de vous proposer, bénéficiant d’un emplacement d’exception dans Cuisy (77165), cette maison de 5 pièces de 100 m² et de 430 m² de terrain. Son intérieur offre trois chambres, une cuisine et une salle de bains.Cette maison compte 2 niveaux. Elle est neuve.La maison se trouve dans un secteur convoité. Une école élémentaire y est implantée. Niveau transports en commun, il y a quatre gares à moins de 10 minutes en voiture. On trouve un tennis dans les environs.Elle est proposée à l’achat pour 327 000 €.Contactez Alan RUBAL (tél : (Numéro supprimé)) pour toute question sur la maison, sur les modalités de vente ou sur les démarches à suivre. Donnez vie à vos projets immobiliers avec Maisons France Confort Magny-le-Hongre.Annonce proposée par un Agent Commercial Partenaire.
Dammartin-en-Goële
TERRAIN ET MAISONVENTE d’une maison F6 (105 m²) à CuisyEMPLACEMENT PRIVILÉGIÉ – MAISON 6 PIÈCES NEUVEÀ côté du Transilien K (gare de Dammartin-Juilly-Saint-Mard, 30 min de Paris), en vente bénéficiant d’un emplacement d’exception dans Cuisy (77165), Maisons France Confort Magny-le-Hongre vous présente cette maison de 6 pièces de 105 m². Son intérieur propose trois chambres, une cuisine et deux salles de bains.Le terrain de la propriété s’étend sur 430 m².C’est une maison de 2 niveaux. Elle est neuve.La maison se trouve dans un secteur prisé. Une école élémentaire y est implantée. Niveau transports, il y a quatre gares à moins de 10 minutes en voiture. On trouve un tennis à proximité.Son prix de vente est de 333 000 €.Contactez Alan RUBAL ((Numéro supprimé)) pour obtenir de plus amples renseignements sur la maison ou sur les modalités de vente. Maisons France Confort Magny-le-Hongre est là pour vous accompagner dans toutes vos démarches.Annonce proposée par un Agent Commercial Partenaire.
Saint-Mard
TERRAIN ET MAISONMaison F6 (100 m²) en vente à Saint-MardIDÉALEMENT SITUÉE – MAISON 6 PIÈCES NEUVEProche du Transilien K (gare de Dammartin-Juilly-Saint-Mard, 30 min de Paris), Maisons France Confort Magny-le-Hongre vous propose à vendre, idéalement située dans Saint-Mard (77230), cette maison de 6 pièces de 100 m².C’est une maison de 2 niveaux. Son intérieur comporte quatre chambres, une cuisine et une salle de bains. Cette maison est neuve.Le terrain du bien est de 460 m².Cette maison est située dans un secteur prisé. L’École Élémentaire Jacques Prévert, l’École Maternelle Emile Cacheux et le Collège Georges Brassens sont implantés à moins de 10 minutes à pied, tout comme une structure d’accueil pour les tout-petits. Côté transports en commun, on trouve la gare Dammartin-Juilly-Saint-Mard dans les environs. Il y a une bibliothèque, trois tennis, deux boulangeries, un supermarché, trois commerces, une supérette et un bureau de poste à proximité du logement.Son prix de vente est de 338 000 €.N’hésitez pas à prendre contact avec Alan RUBAL (tél : (Numéro supprimé)) pour obtenir de plus amples renseignements sur la maison, sur les modalités de vente ou sur les démarches à suivre. Maisons France Confort Magny-le-Hongre est là pour vous accompagner à toutes les étapes de l’achat.Annonce proposée par un Agent Commercial Partenaire.
Saint-Mard
TERRAIN ET MAISONSaint-Mard : maison de 8 pièces (160 m²) à vendreIDÉALEMENT SITUÉE – MAISON 8 PIÈCES NEUVEÀ deux pas de la gare de Dammartin-Juilly-Saint-Mard (Paris à 30 min par le Transilien K), votre agence Maisons France Confort Magny-le-Hongre est heureuse de vous proposer cette maison de 8 pièces de 160 m² et de 460 m² de terrain idéalement située dans Saint-Mard (77230). Elle propose cinq chambres, une cuisine et six salles de bains.Cette maison comporte 2 niveaux. Elle est neuve.Cette maison se situe dans un quartier recherché. Il y a l’École Élémentaire Jacques Prévert, l’École Maternelle Emile Cacheux et le Collège Georges Brassens à moins de 10 minutes à pied et une crèche. Niveau transports, on trouve la gare Dammartin-Juilly-Saint-Mard dans un rayon de 1 km. Il y a une bibliothèque, trois tennis, deux boulangeries, un supermarché, trois commerces, deux boucheries-charcuteries et une supérette dans les environs.Elle est proposée à l’achat pour 446 000 €.Contactez notre agence (Alan RUBAL : (Numéro supprimé)) pour toute information sur la maison, sur les démarches à suivre ou sur les modalités de vente. Maisons France Confort Magny-le-Hongre est là pour vous accompagner dans tous vos projets immobiliers.Annonce proposée par un Agent Commercial Partenaire.
Saint-Mard
TERRAIN ET MAISONSaint-Mard : maison F5 (120 m²) en venteIDÉALEMENT SITUÉE – MAISON 5 PIÈCES NEUVEÀ vendre : à quelques minutes de la gare de Dammartin-Juilly-Saint-Mard (Paris à 30 min avec le Transilien K), nous sommes heureux de vous proposer cette maison de 5 pièces de plain-pied de 120 m², idéalement située dans Saint-Mard (77230).Son intérieur comporte quatre chambres, une cuisine et deux salles de bains. Cette maison est neuve.Le terrain de la propriété est de 460 m².Ce bien se situe dans un quartier recherché. L’École Élémentaire Jacques Prévert, l’École Maternelle Emile Cacheux et le Collège Georges Brassens se trouvent à moins de 10 minutes à pied, tout comme une structure d’accueil pour les enfants en bas âge. Côté transports, il y a la gare Dammartin-Juilly-Saint-Mard à quelques pas de la maison. Il y a une bibliothèque, trois tennis, deux boulangeries, un supermarché, trois commerces, une supérette et un bureau de poste dans les environs.Son prix de vente est de 374 000 €.Contactez Alan RUBAL ((Numéro supprimé)) pour obtenir de plus amples renseignements sur la maison, sur les démarches à suivre ou sur les modalités de vente.Annonce proposée par un Agent Commercial Partenaire.
Saint-Mard
TERRAIN ET MAISONMaison F8 (145 m²) en vente à Saint-MardIDÉALEMENT SITUÉE – MAISON 8 PIÈCES NEUVEÀ quelques minutes du Transilien K (gare de Dammartin-Juilly-Saint-Mard, 30 min de Paris), ayez le coup de coeur pour cette maison de 8 pièces de 145 m² et de 460 m² de terrain idéalement située dans Saint-Mard (77230). Son intérieur offre six chambres, une cuisine et deux salles de bains.Cette maison compte 2 niveaux. Elle est neuve.Ce bien se trouve dans un secteur recherché. Il y a l’École Élémentaire Jacques Prévert, l’École Maternelle Emile Cacheux et le Collège Georges Brassens à moins de 10 minutes à pied et une crèche. Côté transports, on trouve la gare Dammartin-Juilly-Saint-Mard à quelques pas du bien. On trouve une bibliothèque, trois tennis, deux boulangeries, un supermarché, trois commerces, deux boucheries-charcuteries et une supérette à proximité du logement.Son prix de vente est de 419 000 €.N’hésitez pas à prendre contact avec Alan RUBAL ((Numéro supprimé)) pour plus de renseignements sur la maison ou sur les modalités de vente.Annonce proposée par un Agent Commercial Partenaire.
Cuisy
TERRAIN ET MAISONVENTE : maison T5 (90 m²) à CuisyPROCHE DE MONTREUIL – MAISON 5 PIÈCES NEUVEÀ deux pas de la gare de Dammartin-Juilly-Saint-Mard (Paris à 30 min par le Transilien K), découvrez cette maison de 5 pièces de 90 m² à vendre à Cuisy (77165).Il s’agit d’une maison de 2 niveaux. Elle compte trois chambres, une cuisine et une salle de bains. Cette maison est neuve.Le terrain de la propriété s’étend sur 524 m².Une école élémentaire est implantée dans le quartier. Niveau transports, il y a quatre gares à moins de 10 minutes en voiture. On trouve un tennis dans les environs.Elle est à vendre pour la somme de 307 000 €.Contactez notre agence (RUBAL Alan : (Numéro supprimé)) pour toute question sur la maison, sur les modalités de vente ou sur les démarches à suivre. Maisons France Confort Magny-le-Hongre vous accompagne dans tous vos projets immobiliers et à toutes les étapes de l’achat.Annonce proposée par un Agent Commercial Partenaire.
L’actualité immobilière à Saint-Pathus
27/11/2023
02/11/2023
30/10/2023
20/10/2023
16/10/2023
16/10/2023