Maison à construire à Tournan-en-Brie (77220)
Images
Description
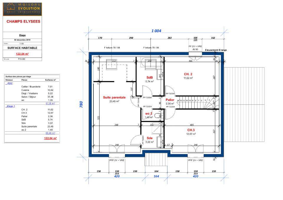
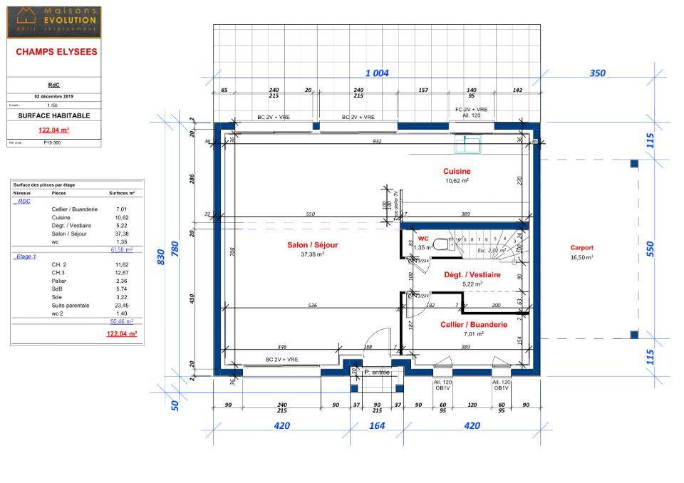
VENTE d'une maison F6 (122 m²) à Tournan-en-Brie
Paris à 40 min (RER E, Tournan) - À vendre, idéalement située dans Tournan-en-Brie (77220) : maison neuve 6 pièces de 122 m² et de 402 m² de terrain. Elle se divise en quatre chambres, une cuisine et deux salles de bains.
À dix minutes : RER E (Tournan), gare (Tournan-en-Brie), écoles, crèches, bibliothèque, tennis, commerces, boulangeries, supermarché, bureau de poste et boucherie-charcuterie. Marché Place du marché le samedi matin. Montreuil à 28 km.
Cette maison de 6 pièces est proposée à l'achat pour 408 500 €.
Contactez Stephanie SEBAG ((Numéro supprimé)) pour tout renseignement sur la maison ou sur les modalités de vente. Maisons Evolution Mareuil-lès-Meaux vous accompagne dans toutes vos démarches et dans tous vos projets immobiliers.
Annonce proposée par un Agent Commercial Partenaire.
Logement susceptibles de vous intéresser
Nous vous proposons de découvrir aussi cette sélection de logements situés à moins de 10km de Tournan-en-Brie et qui seraient susceptibles de vous intéresser.
Ozoir-la-Ferrière
TERRAIN ET MAISONVENTE : maison T6 (100 m²) à Presles-en-BrieEMPLACEMENT PRIVILÉGIÉ – MAISON 6 PIÈCES NEUVEAu pied de la station Tournan (Paris à 40 min par le RER E), Maisons France Confort Magny-le-Hongre vous propose cette maison de 6 pièces de 100 m² à vendre bénéficiant d’un emplacement privilégié dans Presles-en-Brie (77220). Elle comporte quatre chambres, une cuisine et une salle de bains.Le terrain de la maison s’étend sur 584 m².Cette maison possède 2 niveaux. Elle est neuve.La maison se trouve dans un quartier recherché. Il y a l’École Maternelle Maurice André et l’École Élémentaire Maurice André à moins de 10 minutes à pied et une crèche. Niveau transports, on trouve la ligne de RER E (Tournan) ainsi que quatre gares à moins de 10 minutes en voiture. On trouve une bibliothèque, un tennis, une boulangerie, un commerce et une épicerie à quelques minutes du bien.Elle est proposée à l’achat pour 340 000 €.Prenez contact avec Alan RUBAL (tél : (Numéro supprimé)) pour toute question sur la maison, sur les modalités de vente ou sur les démarches à suivre. Faites de vos projets immobiliers une réalité avec Maisons France Confort Magny-le-Hongre.Annonce proposée par un Agent Commercial Partenaire.
Ozoir-la-Ferrière
TERRAIN ET MAISONPresles-en-Brie : maison de 5 pièces (90 m²) en venteEMPLACEMENT PRIVILÉGIÉ – MAISON 5 PIÈCES NEUVEÀ quelques minutes de la station Tournan (Paris à 40 min par le RER E), découvrez cette maison de 5 pièces de plain-pied de 90 m² et de 584 m² de terrain en vente, bénéficiant d’un emplacement d’exception dans Presles-en-Brie (77220). Conçue de plain-pied, elle dispose de trois chambres, d’une cuisine et de deux salles de bains.Cette maison est neuve.La maison se situe dans un secteur attractif. L’École Maternelle Maurice André et l’École Élémentaire Maurice André se trouvent à moins de 10 minutes à pied, tout comme une structure d’accueil pour les tout-petits. Côté transports, il y a la ligne de RER E (Tournan) ainsi que quatre gares à moins de 10 minutes en voiture. Il y a une bibliothèque, un tennis, une boulangerie, un commerce et une épicerie dans les environs.Elle est à vendre pour la somme de 320 000 €.Prenez contact avec notre agence (RUBAL Alan : (Numéro supprimé)) pour toute information sur la maison, sur les démarches à suivre ou sur les modalités de vente. Maisons France Confort Magny-le-Hongre est là pour vous accompagner à toutes les étapes de l’achat.Annonce proposée par un Agent Commercial Partenaire.
Ozoir-la-Ferrière
TERRAIN ET MAISONVENTE : maison de 7 pièces (160 m²) à Presles-en-BrieEMPLACEMENT PRIVILÉGIÉ – MAISON 7 PIÈCES NEUVEEn vente : à côté du RER E (station Tournan, 40 min de Paris), venez découvrir cette maison de 7 pièces de 160 m² bénéficiant d’un emplacement d’exception dans Presles-en-Brie (77220).Cette maison possède 2 niveaux. Elle est composée de cinq chambres, d’une cuisine et de deux salles de bains. Cette maison est neuve.Le terrain du bien est de 584 m².Cette maison se situe dans un secteur convoité. L’École Maternelle Maurice André et l’École Élémentaire Maurice André sont implantées à moins de 10 minutes à pied, tout comme une crèche. Niveau transports en commun, il y a la ligne de RER E (Tournan) ainsi que quatre gares à moins de 10 minutes en voiture. On trouve une bibliothèque, un tennis, une boulangerie, un commerce et une épicerie à proximité du logement.Son prix de vente est de 448 000 €.Contactez Alan RUBAL ((Numéro supprimé)) pour toute question sur la maison, sur les modalités de vente ou sur les démarches à suivre. Faites de vos projets immobiliers une réalité avec Maisons France Confort Magny-le-Hongre.Annonce proposée par un Agent Commercial Partenaire.
Tournan-en-Brie
TERRAINVENTE : terrain de 503 m² à Tournan-en-BrieEMPLACEMENT PRIVILÉGIÉ – PROCHE DE MONTREUILÀ Tournan-en-Brie (77220) à proximité du RER E (station Tournan, 40 min de Paris), donnez vie à la maison de vos rêves sur ce terrain de 503 m². Il est orienté au sud-ouest. Dans un quartier convoité, le terrain bénéficiant d’un emplacement d’exception est proche des commerces et des écoles. Il y a des établissements scolaires maternelles et élémentaires à moins de 10 minutes à pied, tout comme trois crèches. Niveau transports, on trouve la station de RER Tournan (ligne E) ainsi que la gare Tournan-en-Brie juste à côté. On trouve une bibliothèque, un tennis, des commerces, trois boulangeries, un supermarché, un bureau de poste et une boucherie-charcuterie à quelques minutes. Le marché Place du marché a lieu chaque samedi matin.Son prix de vente est de 190 000 €. Contactez notre agence (RUBAL Alan : (Numéro supprimé)) pour obtenir de plus amples renseignements sur le terrain.Annonce proposée par un Agent Commercial Partenaire.
Tournan-en-Brie
TERRAIN ET MAISONVENTE : maison de 7 pièces (120 m²) à Tournan-en-BrieEMPLACEMENT PRIVILÉGIÉ – MAISON 7 PIÈCES NEUVEÀ quelques minutes de la station Tournan du RER E (40 min de Paris), ayez le coup de coeur pour cette maison de 7 pièces de 120 m² à vendre bénéficiant d’un emplacement d’exception dans Tournan-en-Brie (77220).Cette maison possède 2 niveaux. Elle comporte cinq chambres, une cuisine et deux salles de bains. La maison est neuve.Le terrain du bien s’étend sur 503 m².Cette maison se trouve dans un quartier recherché. Il y a des écoles maternelles et élémentaires à moins de 10 minutes à pied, tout comme trois crèches. Côté transports, on trouve la station de RER Tournan (ligne E) ainsi que la gare Tournan-en-Brie dans les environs. Il y a une bibliothèque, un tennis, des commerces, trois boulangeries, un supermarché, deux épiceries et une boucherie-charcuterie à quelques minutes du logement. Ne manquez pas le marché Place du marché chaque samedi matin.Son prix de vente est de 406 000 €.N’hésitez pas à prendre contact avec notre agence (Alan RUBAL : (Numéro supprimé)) pour obtenir de plus amples renseignements sur la maison, sur les démarches à suivre ou sur les modalités de vente. Maisons France Confort Magny-le-Hongre vous accompagne dans tous vos projets immobiliers et à toutes les étapes de l’achat.Annonce proposée par un Agent Commercial Partenaire.
Tournan-en-Brie
TERRAIN ET MAISONVENTE d’une maison T7 (120 m²) à Tournan-en-BrieEMPLACEMENT PRIVILÉGIÉ – MAISON 7 PIÈCES NEUVEÀ deux pas du RER E (station Tournan, 40 min de Paris), votre agence Maisons France Confort Magny-le-Hongre est ravie de vous proposer cette maison de 7 pièces de 120 m² et de 503 m² de terrain bénéficiant d’un emplacement d’exception dans Tournan-en-Brie (77220).Cette maison comporte 2 niveaux. Son intérieur compte quatre chambres, une cuisine et deux salles de bains. La maison est neuve.La maison se situe dans un quartier attractif. Il y a des écoles maternelles et élémentaires à moins de 10 minutes à pied, tout comme trois structures d’accueil pour les enfants en bas âge. Niveau transports, on trouve la station de RER Tournan (ligne E) ainsi que la gare Tournan-en-Brie à quelques pas du bien. Il y a une bibliothèque, un tennis, des commerces, trois boulangeries, un supermarché, une boucherie-charcuterie et un bureau de poste à proximité du logement. Enfin, le marché Place du marché anime le quartier chaque samedi matin.Elle est à vendre pour la somme de 406 000 €.N’hésitez pas à prendre contact avec Alan RUBAL ((Numéro supprimé)) pour obtenir de plus amples renseignements sur la maison, sur les démarches à suivre ou sur les modalités de vente. Maisons France Confort Magny-le-Hongre vous accompagne à toutes les étapes de l’achat et dans tous vos projets immobiliers.Annonce proposée par un Agent Commercial Partenaire.
Tournan-en-Brie
TERRAIN ET MAISONTournan-en-Brie : maison de 5 pièces (105 m²) en venteEMPLACEMENT PRIVILÉGIÉ – MAISON 5 PIÈCES NEUVEEn vente : à 515 m du RER E (station Tournan, 40 min de Paris), bénéficiant d’un emplacement privilégié dans Tournan-en-Brie (77220), votre agence Maisons France Confort Magny-le-Hongre est ravie de vous proposer cette maison de 5 pièces de plain-pied de 105 m². Elle comporte quatre chambres, une cuisine et deux salles de bains.Le terrain de cette maison s’étend sur 503 m².La maison est neuve.Le bien se trouve dans un quartier convoité. Il y a des écoles maternelles et élémentaires à moins de 10 minutes à pied, tout comme trois structures d’accueil pour les enfants en bas âge. Niveau transports, on trouve la station de RER Tournan (ligne E) ainsi que la gare Tournan-en-Brie juste à côté. Il y a une bibliothèque, un tennis, des commerces, trois boulangeries, un supermarché, une boucherie-charcuterie et un bureau de poste dans les environs. Le marché Place du marché a lieu tous les samedis matin.Son prix de vente est de 379 000 €.Contactez Alan RUBAL (tél : (Numéro supprimé)) pour toute information sur la maison, sur les démarches à suivre ou sur les modalités de vente.Annonce proposée par un Agent Commercial Partenaire.
Tournan-en-Brie
TERRAIN ET MAISONTournan-en-Brie : maison de 5 pièces (100 m²) à vendreEMPLACEMENT PRIVILÉGIÉ – MAISON 5 PIÈCES NEUVEÀ vendre : à quelques minutes de la station Tournan (Paris à 40 min avec le RER E), Maisons France Confort Magny-le-Hongre vous présente cette maison de 5 pièces de 100 m² bénéficiant d’un emplacement privilégié dans Tournan-en-Brie (77220). Elle est composée de trois chambres, d’une cuisine et d’une salle de bains.Le terrain de la propriété s’étend sur 503 m².C’est une maison de 2 niveaux. Elle est neuve.Cette maison se trouve dans un quartier attractif. Il y a des écoles primaires à moins de 10 minutes à pied, tout comme trois crèches. Niveau transports, on trouve la station de RER Tournan (ligne E) ainsi que la gare Tournan-en-Brie à quelques pas de la maison. On trouve une bibliothèque, un tennis, des commerces, trois boulangeries, un supermarché, deux épiceries et un bureau de poste à quelques minutes du logement. Le marché Place du marché anime les environs chaque samedi matin.Elle est à vendre pour la somme de 370 000 €.Prenez contact avec Alan RUBAL ((Numéro supprimé)) pour plus d’informations sur la maison ou sur les démarches à suivre. Concrétisez vos projets immobiliers avec Maisons France Confort Magny-le-Hongre.Annonce proposée par un Agent Commercial Partenaire.
Tournan-en-Brie
TERRAIN ET MAISONMaison F5 (89 m²) à vendre à Tournan-en-BrieEMPLACEMENT PRIVILÉGIÉ – MAISON 5 PIÈCES NEUVEÀ vendre : à 515 m de la station Tournan du RER E (40 min de Paris), nous vous proposons, bénéficiant d’un emplacement d’exception dans Tournan-en-Brie (77220), cette maison de 5 pièces de plain-pied de 89 m². Conçue de plain-pied, elle propose trois chambres, une cuisine et une salle de bains.Le terrain du bien s’étend sur 503 m².Cette maison est neuve.La maison est située dans un secteur recherché. Des établissements scolaires primaires se trouvent à moins de 10 minutes à pied, tout comme trois crèches. Niveau transports en commun, il y a la station de RER Tournan (ligne E) ainsi que la gare Tournan-en-Brie à proximité. Il y a une bibliothèque, un tennis, des commerces, trois boulangeries, un supermarché, une boucherie-charcuterie et un bureau de poste dans les environs. Le marché Place du marché anime le quartier chaque samedi matin.Elle est proposée à l’achat pour 350 200 €.Contactez notre agence (Alan RUBAL : (Numéro supprimé)) pour tout renseignement sur la maison ou sur les modalités de vente.Annonce proposée par un Agent Commercial Partenaire.
L’actualité immobilière à Tournan-en-Brie
27/11/2023
02/11/2023
30/10/2023
20/10/2023
16/10/2023
16/10/2023