Maison à construire à Vaucourtois (77580)
Images
Description
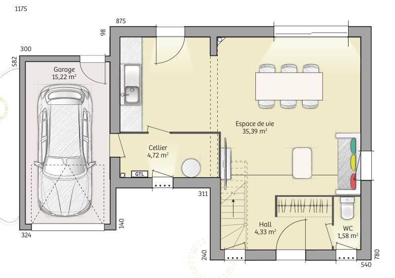
VENTE : maison de 5 pièces (90 m²) à Vaucourtois
PROCHE DE NOISY-LE-GRAND - MAISON 5 PIÈCES NEUVE
À vendre : à deux pas de la gare de Trilport (Paris à 30 min par le Transilien P), laissez vous charmer par cette maison de 5 pièces de 90 m² à Vaucourtois (77580).
Il s'agit d'une maison de 2 niveaux. Son intérieur comporte trois chambres, une cuisine et une salle de bains. Cette maison est neuve.
Le terrain du bien est de 494 m².
Une école primaire est implantée dans le quartier. Côté transports en commun, il y a huit gares à moins de 10 minutes en voiture.
Son prix de vente est de 306 000 €.
Contactez Thomas ROUSSEL TOUATI ((Numéro supprimé)) pour plus d'informations sur la maison, sur les modalités de vente ou sur les démarches à suivre. Maisons France Confort Magny-le-Hongre est là pour vous accompagner à toutes les étapes de votre projet.
Annonce proposée par un Agent Commercial Partenaire.
Logement susceptibles de vous intéresser
Nous vous proposons de découvrir aussi cette sélection de logements situés à moins de 10km de Vaucourtois et qui seraient susceptibles de vous intéresser.
Pommeuse
TERRAINÀ vendre : beau terrain constructible situé sur les hauteurs de Pommeuse, dans un secteur résidentiel, à proximité des commerces, écoles et transports.o Zone UBA du PLU de Pommeuse.o Viabilisé en eau et électricitéo Étude géotechnique G1 réalisée (rapport disponible sur demande)o Façade d’environ 16 mètresEnvironnement calme, à proximité immédiate des commerces, écoles, transports (gare SNCF – ligne P).Plan cadastral, étude de sol, règlement du PLU disponibles.Pour toute demande d’information ou organisation d’une visite, contactez-moi.Cette annonce référence 290493 vous est présentée par votre agent commercial BSK Immobilier DELPHINE COLON (EI) immatriculé au RSAC de MEAUX (77100) sous le numéro 8429(Numéro supprimé).Prix du bien : 148 000,00 €Les honoraires d’agence sont à la charge du vendeur.Les informations sur les risques auxquels ce bien est exposé sont disponibles sur le site Géorisques : www.georisques.gouv.fr
Crécy-la-Chapelle
TERRAINCrécy-la-Chapelle : terrain de 560 m² à vendreIDÉALEMENT SITUÉ – VUE DÉGAGÉEÀ quelques kilomètres de Champigny-sur-Marne à Crécy-la-Chapelle (77580), grand terrain. Il est prêt à accueillir votre résidence principale ou secondaire pour toute la famille. Il profite d’une vue dégagée et est exposé au sud-ouest. Dans un secteur attractif, le terrain idéalement situé est proche des écoles et des commerces. L’École Primaire Montessori le Verger d’Elisa, le Collège Mon Plaisir, l’École Élémentaire l’Eau Vive et l’École Maternelle les Promenades sont implantés à moins de 10 minutes à pied. Niveau transports, on trouve la gare Crécy-la-Chapelle à quelques pas du terrain. Il y a un tennis, un bassin de natation, des commerces, deux boulangeries, un supermarché, deux boucheries-charcuteries et un bureau de poste dans les environs. Enfin, le marché Centre-Ville a lieu chaque jeudi matin.Il est proposé à l’achat pour 169 000 €. Prenez contact avec Hugo NGUYEN (tél : (Numéro supprimé)) pour toute question sur ce terrain. Faites de vos projets immobiliers une réalité avec Maisons France Confort Magny-le-Hongre.Annonce proposée par un Agent Commercial Partenaire.
Mareuil-lès-Meaux
TERRAINMareuil-lès-Meaux : terrain de 420 m² en venteIDÉALEMENT SITUÉ – VUE DÉGAGÉEÀ Mareuil-lès-Meaux (77100) à proximité de la gare de Meaux (Paris à 25 min par le Transilien P), donnez vie à la maison de vos rêves sur ce terrain de 420 m². Il profite d’une vue dégagée et bénéficie d’une exposition sud-ouest. Dans un quartier recherché, le terrain idéalement situé est proche des commerces et des écoles. L’École Élémentaire les Hirondelles et l’École Maternelle la Marelle sont implantées à moins de 10 minutes à pied. Côté transports en commun, il y a la station de RER Chessy-Marne-La-Vallée (ligne A) ainsi que huit gares à moins de 10 minutes en voiture. On trouve un tennis et un commerce à proximité.Son prix de vente est de 179 000 €. Prenez contact avec notre agence (NGUYEN Hugo : (Numéro supprimé)) pour tout renseignement sur le terrain. Donnez vie à vos projets immobiliers avec Maisons France Confort Magny-le-Hongre.Annonce proposée par un Agent Commercial Partenaire.
Meaux
TERRAINVENTE d’un terrain de 399 m² à MeauxIDÉALEMENT SITUÉ – VUE DÉGAGÉEÀ Meaux (77100) à côté du Transilien P (25 min de Paris), donnez vie à la maison de vos rêves sur ce terrain de 399 m². Ce terrain, orienté plein nord-est, profite d’une vue dégagée. Dans un quartier recherché, ce terrain idéalement situé est proche des écoles et des commerces. Des établissements scolaires de tous niveaux (de la maternelle au lycée) sont implantés à moins de 10 minutes à pied, tout comme une structure d’accueil pour les enfants en bas âge. Niveau transports en commun, on trouve sept gares à moins de 10 minutes en voiture. Il y a un bassin de natation, un tennis, une bibliothèque, des commerces, trois supermarchés, des boulangeries, un bureau de poste et des boucheries-charcuteries dans les environs. 2 marchés animent les environs.Son prix de vente est de 159 000 €. Contactez Hugo NGUYEN (tél : (Numéro supprimé)) pour toute information sur le terrain, sur les modalités de vente ou sur les démarches à suivre. Maisons France Confort Magny-le-Hongre vous accompagne à toutes les étapes de l’achat et dans tous vos projets immobiliers.Annonce proposée par un Agent Commercial Partenaire.
Vaucourtois
TERRAINVENTE d’un terrain de 494 m² à VaucourtoisPROCHE DE NOISY-LE-GRANDÀ proximité de la gare de Trilport (Paris à 30 min par le Transilien P) à Vaucourtois (77580), terrain de 494 m². Il bénéficie d’une exposition ouest. Une école primaire est implantée dans le quartier. Niveau transports, il y a huit gares à moins de 10 minutes en voiture.Son prix de vente est de 144 000 €. Prenez contact avec notre agence Thomas ROUSSEL TOUATI ((Numéro supprimé)) pour obtenir de plus amples renseignements sur ce terrain. Maisons France Confort Magny-le-Hongre est là pour vous accompagner dans toutes vos démarches.Annonce proposée par un Agent Commercial Partenaire.
Crécy-la-Chapelle
TERRAIN ET MAISONVENTE : maison F5 (90 m²) à Crécy-la-ChapelleIDÉALEMENT SITUÉE – MAISON 5 PIÈCES NEUVEÀ 30 km de Champigny-sur-Marne, nous vous proposons cette maison de 5 pièces de 90 m² et de 560 m² de terrain en vente idéalement située dans Crécy-la-Chapelle (77580). Son intérieur inclut trois chambres, une cuisine et une salle de bains.Il s’agit d’une maison de 2 niveaux. Elle est neuve.La maison se situe dans un secteur attractif. L’École Primaire Montessori le Verger d’Elisa, le Collège Mon Plaisir, l’École Élémentaire l’Eau Vive et l’École Maternelle les Promenades se trouvent à moins de 10 minutes à pied. Côté transports, il y a la gare Crécy-la-Chapelle à quelques pas du bien. On trouve un tennis, un bassin de natation, des commerces, deux boulangeries, un supermarché, un bureau de poste et une poissonnerie à proximité. Enfin, le marché Centre-Ville a lieu tous les jeudis matin.Elle est proposée à l’achat pour 359 000 €.Contactez Hugo NGUYEN (tél : (Numéro supprimé)) pour tout renseignement sur la maison, sur les modalités de vente ou sur les démarches à suivre.Annonce proposée par un Agent Commercial Partenaire.
Crécy-la-Chapelle
TERRAIN ET MAISONCrécy-la-Chapelle : maison de 7 pièces (120 m²) à vendreIDÉALEMENT SITUÉE – MAISON 7 PIÈCES NEUVEÀ vendre à quelques kilomètres de Champigny-sur-Marne, nous sommes ravis de vous proposer, idéalement située dans Crécy-la-Chapelle (77580), cette maison de 7 pièces de 120 m².C’est une maison de 2 niveaux. Elle compte cinq chambres, une cuisine et deux salles de bains. Cette maison est neuve.Le terrain de la propriété est de 560 m².Le bien est situé dans un secteur recherché. On trouve l’École Primaire Montessori le Verger d’Elisa, le Collège Mon Plaisir, l’École Élémentaire l’Eau Vive et l’École Maternelle les Promenades à moins de 10 minutes à pied. Niveau transports, il y a la gare Crécy-la-Chapelle à quelques pas de la maison. On trouve un tennis, un bassin de natation, des commerces, deux boulangeries, un supermarché, un bureau de poste et une poissonnerie dans les environs. Le marché Centre-Ville anime le quartier tous les jeudis matin.Il est à vendre pour la somme de 379 000 €.Contactez notre agence (Hugo NGUYEN : (Numéro supprimé)) pour plus d’informations sur la maison, sur les démarches à suivre ou sur les modalités de vente. Concrétisez vos projets immobiliers avec Maisons France Confort Magny-le-Hongre.Annonce proposée par un Agent Commercial Partenaire.
Crécy-la-Chapelle
TERRAIN ET MAISONMaison F5 (90 m²) en vente à Crécy-la-ChapelleIDÉALEMENT SITUÉE – MAISON 5 PIÈCES NEUVEÀ vendre à 30 km de Champigny-sur-Marne, nous vous présentons cette maison de 5 pièces de 90 m² idéalement située dans Crécy-la-Chapelle (77580). Son intérieur offre trois chambres, une cuisine et une salle de bains.Le terrain du bien s’étend sur 560 m².Cette maison comporte 2 niveaux. Elle est neuve.La maison est située dans un quartier convoité. On trouve l’École Primaire Montessori le Verger d’Elisa, le Collège Mon Plaisir, l’École Élémentaire l’Eau Vive et l’École Maternelle les Promenades à moins de 10 minutes à pied. Niveau transports en commun, il y a la gare Crécy-la-Chapelle dans un rayon de 1 km. On trouve un tennis, un bassin de natation, des commerces, deux boulangeries, un supermarché, deux boucheries-charcuteries et une poissonnerie à quelques minutes du logement. Le marché Centre-Ville a lieu chaque jeudi matin.Elle est à vendre pour la somme de 379 000 €.Contactez Hugo NGUYEN (tél : (Numéro supprimé)) pour plus de renseignements sur la maison ou sur les démarches à suivre. Maisons France Confort Magny-le-Hongre vous accompagne dans tous vos projets immobiliers et à toutes les étapes de l’achat.Annonce proposée par un Agent Commercial Partenaire.
Crécy-la-Chapelle
TERRAIN ET MAISONCrécy-la-Chapelle : maison de 6 pièces (106 m²) en venteIDÉALEMENT SITUÉE – MAISON 6 PIÈCES NEUVEÀ quelques kilomètres de Champigny-sur-Marne, nous sommes ravis de vous présenter cette maison de 6 pièces de plain-pied de 106 m² en vente, idéalement située dans Crécy-la-Chapelle (77580). Elle compte quatre chambres, une cuisine et deux salles de bains.Le terrain de la maison est de 560 m².Cette maison est neuve.Cette maison se situe dans un secteur prisé. On trouve l’École Primaire Montessori le Verger d’Elisa, le Collège Mon Plaisir, l’École Élémentaire l’Eau Vive et l’École Maternelle les Promenades à moins de 10 minutes à pied. Niveau transports en commun, il y a la gare Crécy-la-Chapelle dans les environs. On trouve un tennis, un bassin de natation, des commerces, deux boulangeries, un supermarché, une poissonnerie et un bureau de poste à proximité du bien. Ne manquez pas le marché Centre-Ville tous les jeudis matin.Elle est proposée à l’achat pour 379 000 €.Prenez contact avec notre agence (Hugo NGUYEN : (Numéro supprimé)) pour toute question sur la propriété, sur les modalités de vente ou sur les démarches à suivre. Maisons France Confort Magny-le-Hongre vous accompagne dans tous vos projets immobiliers et à toutes les étapes de votre projet.Annonce proposée par un Agent Commercial Partenaire.
L’actualité immobilière à Vaucourtois
27/11/2023
02/11/2023
30/10/2023
20/10/2023
16/10/2023
16/10/2023