Images
Description
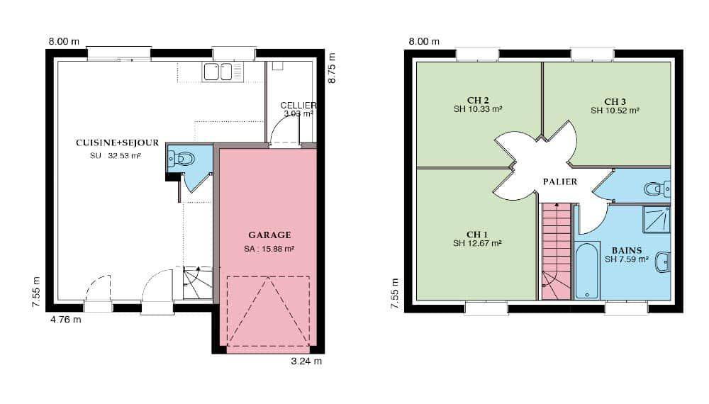
Sur ce terrain, nous vous proposons cette maison neuve baptisée Extenso, conçue par Babeau-Seguin, constructeur offrant le meilleur rapport qualité/prix du marché. Cette belle maison familiale à étage, d'une surface de 94 m², dispose de 3 chambres, d'un vaste séjour, d'une salle de bain, de 2 WC et d'un cellier, ainsi qu'un garage accolé.
Avec ses 4 pièces, cette maison traditionnelle à fort cachet est idéale pour les familles à la recherche de confort et de modernité. Conformément à la réglementation RE2020, cette maison est basse consommation, vous garantissant des économies d'énergie significatives.
Les options les plus demandées par nos clients sont disponibles pour cette maison : enduit bi-ton pour une façade personnalisable, domotique pour un confort de vie optimal, et volets roulants motorisés pour plus de praticité.
Ne manquez pas cette opportunité unique d'acquérir une maison neuve, moderne et économe en énergie, le tout à un prix attractif. L'Extenso vous offre le confort, la qualité et la modernité, le tout à un prix cassé ! Une exclusivité Maisons Babeau-Seguin.
Logement susceptibles de vous intéresser
Nous vous proposons de découvrir aussi cette sélection de logements situés à moins de 10km de Vaux-le-Pénil et qui seraient susceptibles de vous intéresser.
Dammarie-les-Lys
TERRAINPrix : 153000 €.Sur ce terrain de 553 m² à DAMMARIE-LES-LYS, Maisons Clairval vous propose de réaliser votre projet de construction de maison individuelle.Maisons Clairval propose de construire votre maison neuve avec toutes les prestations suivantes :- Plan sur-mesure et personnalisé de 2 à 6 chambres- Mode de chauffage au choix- Grands choix d'équipements et de prestations- Matériaux de qualité selon les normes en vigueur- Accompagnement dans le choix et l’acquisition du terrain- Construction conforme à la nouvelle RE 2020Demandez une étude gratuite et personnalisée de votre projet de construction sur ce terrain !Contactez Nicolas REBOUL au (Numéro supprimé) ou au (Numéro supprimé) (Maisons Clairval – Agence de Villemoisson).Prix hors frais de notaire. Terrain sélectionné et vu pour vous sous réserve de disponibilité et au prix indiqué par notre partenaire foncier. Conditions et visuels non contractuels.Cette annonce a été créée et diffusée avec le logiciel VITAHOME.
Le Mée-sur-Seine
TERRAINPrix : 162500 €.Sur ce terrain de 500 m² à LE MEE-SUR-SEINE, Maisons Clairval vous propose de réaliser votre projet de construction de maison individuelle.Maisons Clairval propose de construire votre maison neuve avec toutes les prestations suivantes :- Plan sur-mesure et personnalisé de 2 à 6 chambres- Mode de chauffage au choix- Grands choix d'équipements et de prestations- Matériaux de qualité selon les normes en vigueur- Accompagnement dans le choix et l’acquisition du terrain- Construction conforme à la nouvelle RE 2020Demandez une étude gratuite et personnalisée de votre projet de construction sur ce terrain !Contactez Nicolas REBOUL au (Numéro supprimé) ou au (Numéro supprimé) (Maisons Clairval – Agence de Villemoisson).Prix hors frais de notaire. Terrain sélectionné et vu pour vous sous réserve de disponibilité et au prix indiqué par notre partenaire foncier. Conditions et visuels non contractuels.Cette annonce a été créée et diffusée avec le logiciel VITAHOME.
Fouju
TERRAINMohammed – Agence Pavillons d'Île-de-FranceVotre expert en maisons sur-mesure depuis plus de 50 ans à Mareuil-lès-MeauxTransformez votre rêve en réalité !Situé dans un écrin de verdure, ce terrain de 650 m² vous offre l'opportunité rare de construire la maison de vos rêves dans un cadre calme et agréable. À deux pas des commerces, écoles et transports, vous bénéficierez de la tranquillité de la campagne sans renoncer à la proximité de la vie urbaine.Imaginez votre futur chez-vous, parfaitement adapté à vos envies et à vos besoins. Ce terrain est prêt à accueillir votre projet et à vous offrir un cadre de vie exceptionnel.Prix : 95 000 €Ne laissez pas passer cette chance unique ! Contactez-nous dès maintenant au (Numéro supprimé) pour planifier une étude de faisabilité.Prix : 95000 €.Sur ce terrain, réalisez votre projet de construction de maison RE 2020 avec PAVILLONS D'ÎLE-DE-FRANCE (constructeur de maisons de gamme et sur-mesure depuis plus de 50 ans) :- Plan sur-mesure et personnalisé de 2 à 5 chambres- Mode de chauffage au choix- Grands choix d'équipements et de prestations- Matériaux de qualité selon les normes en vigueur- Accompagnement dans le choix et l’acquisition du terrainDemandez une étude gratuite et personnalisée de votre projet de construction sur ce terrain !Contactez Mohammed HAMDAOUI au (Numéro supprimé) ou au (Numéro supprimé) (Pavillons d'Île-de-France – Agence de Meaux).Prix hors frais de notaire. Terrain sélectionné et vu pour vous sous réserve de disponibilité et au prix indiqué par notre partenaire foncier. Visuels non contractuels.Cette annonce a été créée et diffusée avec le logiciel VITAHOME.
Fouju
TERRAIN ET MAISONRéalisez votre projet de construction de maison RE 2020 avec PAVILLONS D'ÎLE-DE-FRANCE (constructeur de maisons de gamme et sur-mesure depuis plus de 50 ans) :- Plan sur-mesure et personnalisé de 2 à 5 chambres- Mode de chauffage au choix- Grands choix d'équipements et de prestations- Matériaux de qualité selon les normes en vigueur- Accompagnement dans le choix et l’acquisition du terrainInformations du terrain : Mohammed – Agence Pavillons d'Île-de-FranceVotre expert en maisons sur-mesure depuis plus de 50 ans à Mareuil-lès-MeauxTransformez votre rêve en réalité !Situé dans un écrin de verdure, ce terrain de 650 m² vous offre l'opportunité rare de construire la maison de vos rêves dans un cadre calme et agréable. À deux pas des commerces, écoles et transports, vous bénéficierez de la tranquillité de la campagne sans renoncer à la proximité de la vie urbaine.Imaginez votre futur chez-vous, parfaitement adapté à vos envies et à vos besoins. Ce terrain est prêt à accueillir votre projet et à vous offrir un cadre de vie exceptionnel.Prix : 95 000 €Ne laissez pas passer cette chance unique ! Contactez-nous dès maintenant au (Numéro supprimé) pour planifier une étude de faisabilité.Demandez une étude gratuite et personnalisée de votre projet de construction !Contactez Mohammed HAMDAOUI au (Numéro supprimé) ou au (Numéro supprimé) (Pavillons d'Île-de-France – Agence de Meaux).Prix avec assurance dommages-ouvrage comprise, hors VRD, terrain non viabilisé, assainissement non compris, frais de notaire non compris, taxes non comprises, frais divers non compris. Terrain sélectionné et vu pour vous sous réserve de disponibilité et au prix indiqué par notre partenaire foncier. Visuels non contractuels.Cette annonce a été créée et diffusée avec le logiciel VITAHOME.
Fouju
TERRAIN ET MAISONRéalisez votre projet de construction de maison RE 2020 avec PAVILLONS D'ÎLE-DE-FRANCE (constructeur de maisons de gamme et sur-mesure depuis plus de 50 ans) :- Plan sur-mesure et personnalisé de 2 à 5 chambres- Mode de chauffage au choix- Grands choix d'équipements et de prestations- Matériaux de qualité selon les normes en vigueur- Accompagnement dans le choix et l’acquisition du terrainInformations du terrain : Mohammed – Agence Pavillons d'Île-de-FranceVotre expert en maisons sur-mesure depuis plus de 50 ans à Mareuil-lès-MeauxTransformez votre rêve en réalité !Situé dans un écrin de verdure, ce terrain de 650 m² vous offre l'opportunité rare de construire la maison de vos rêves dans un cadre calme et agréable. À deux pas des commerces, écoles et transports, vous bénéficierez de la tranquillité de la campagne sans renoncer à la proximité de la vie urbaine.Imaginez votre futur chez-vous, parfaitement adapté à vos envies et à vos besoins. Ce terrain est prêt à accueillir votre projet et à vous offrir un cadre de vie exceptionnel.Prix : 95 000 €Ne laissez pas passer cette chance unique ! Contactez-nous dès maintenant au (Numéro supprimé) pour planifier une étude de faisabilité.Demandez une étude gratuite et personnalisée de votre projet de construction !Contactez Mohammed HAMDAOUI au (Numéro supprimé) ou au (Numéro supprimé) (Pavillons d'Île-de-France – Agence de Meaux).Prix avec assurance dommages-ouvrage comprise, hors VRD, terrain non viabilisé, assainissement non compris, frais de notaire non compris, taxes non comprises, frais divers non compris. Terrain sélectionné et vu pour vous sous réserve de disponibilité et au prix indiqué par notre partenaire foncier. Visuels non contractuels.Cette annonce a été créée et diffusée avec le logiciel VITAHOME.
Fouju
TERRAIN ET MAISONRéalisez votre projet de construction de maison RE 2020 avec PAVILLONS D'ÎLE-DE-FRANCE (constructeur de maisons de gamme et sur-mesure depuis plus de 50 ans) :- Plan sur-mesure et personnalisé de 2 à 5 chambres- Mode de chauffage au choix- Grands choix d'équipements et de prestations- Matériaux de qualité selon les normes en vigueur- Accompagnement dans le choix et l’acquisition du terrainInformations du terrain : Mohammed – Agence Pavillons d'Île-de-FranceVotre expert en maisons sur-mesure depuis plus de 50 ans à Mareuil-lès-MeauxTransformez votre rêve en réalité !Situé dans un écrin de verdure, ce terrain de 650 m² vous offre l'opportunité rare de construire la maison de vos rêves dans un cadre calme et agréable. À deux pas des commerces, écoles et transports, vous bénéficierez de la tranquillité de la campagne sans renoncer à la proximité de la vie urbaine.Imaginez votre futur chez-vous, parfaitement adapté à vos envies et à vos besoins. Ce terrain est prêt à accueillir votre projet et à vous offrir un cadre de vie exceptionnel.Prix : 95 000 €Ne laissez pas passer cette chance unique ! Contactez-nous dès maintenant au (Numéro supprimé) pour planifier une étude de faisabilité.Demandez une étude gratuite et personnalisée de votre projet de construction !Contactez Mohammed HAMDAOUI au (Numéro supprimé) ou au (Numéro supprimé) (Pavillons d'Île-de-France – Agence de Meaux).Prix avec assurance dommages-ouvrage comprise, hors VRD, terrain non viabilisé, assainissement non compris, frais de notaire non compris, taxes non comprises, frais divers non compris. Terrain sélectionné et vu pour vous sous réserve de disponibilité et au prix indiqué par notre partenaire foncier. Visuels non contractuels.Cette annonce a été créée et diffusée avec le logiciel VITAHOME.
Le Châtelet-en-Brie
TERRAINVENTE d’un terrain de 400 m² au Châtelet-en-BriePROCHE D’ÉVRY-COURCOURONNESAu Châtelet-en-Brie (77820) à côté de la gare de Bois-le-Roi (Paris à 35 min par le Transilien R), donnez vie à la maison de vos rêves sur ce terrain de 400 m². Le terrain est proche des écoles et des commerces. Il y a cinq établissements scolaires à moins de 10 minutes à pied, tout comme une crèche. Niveau transports, on trouve six gares à moins de 10 minutes en voiture. On trouve une bibliothèque, des commerces, une boulangerie, une boucherie-charcuterie et un bureau de poste à proximité.Il est proposé à l’achat pour 123 000 €. Contactez Jerome RAOUX ((Numéro supprimé)) pour tout renseignement sur ce terrain ou sur les modalités de vente. Concrétisez vos projets immobiliers avec Maisons France Confort Nemours.Annonce proposée par un Agent Commercial Partenaire.
Le Châtelet-en-Brie
TERRAIN ET MAISONVENTE : maison F5 (90 m²) au Châtelet-en-BriePROCHE D’ÉVRY-COURCOURONNES – MAISON 5 PIÈCES NEUVEÀ deux pas du Transilien R (gare de Bois-le-Roi, 35 min de Paris), Maisons France Confort Nemours vous présente cette maison de 5 pièces de 90 m² et de 400 m² de terrain au Châtelet-en-Brie (77820). Son intérieur offre trois chambres, une cuisine et une salle de bains.Cette maison compte 2 niveaux. Elle est neuve.Cinq établissements scolaires se trouvent à moins de 10 minutes à pied, tout comme une structure d’accueil pour la petite enfance. Niveau transports, il y a six gares à moins de 10 minutes en voiture. On trouve une bibliothèque, des commerces, une boulangerie, un bureau de poste et une boucherie-charcuterie à proximité.Elle est proposée à l’achat pour 330 000 €.Contactez Jerome RAOUX ((Numéro supprimé)) pour toute information sur cette maison. Donnez vie à vos projets immobiliers avec Maisons France Confort Nemours.Annonce proposée par un Agent Commercial Partenaire.
Le Châtelet-en-Brie
TERRAIN ET MAISONVENTE d’une maison T4 (70 m²) au Châtelet-en-BrieMAISON 4 PIÈCES NEUVE – PROCHE D’ÉVRY-COURCOURONNESÀ quelques minutes du Transilien R (gare de Bois-le-Roi, 35 min de Paris), en vente au Châtelet-en-Brie (77820), votre agence Maisons France Confort Nemours est heureuse de vous présenter cette maison de 4 pièces de plain-pied de 70 m² et de 400 m² de terrain. Son intérieur propose deux chambres, une cuisine et une salle de bains.Cette maison est neuve.Il y a cinq établissements scolaires à moins de 10 minutes à pied, tout comme une structure d’accueil pour les tout-petits. Niveau transports, on trouve six gares à moins de 10 minutes en voiture. On trouve une bibliothèque, des commerces, une boulangerie, un bureau de poste et une boucherie-charcuterie à quelques minutes.Elle est proposée à l’achat pour 299 000 €.Contactez notre constructeur (Jerome RAOUX : (Numéro supprimé)) pour obtenir de plus amples informations sur cette maison, sur les démarches à suivre ou sur les modalités de vente. Maisons France Confort Nemours est là pour vous accompagner dans tous vos projets immobiliers.Annonce proposée par un Agent Commercial Partenaire.
L’actualité immobilière à Vaux-le-Pénil
27/11/2023
02/11/2023
30/10/2023
20/10/2023
16/10/2023
16/10/2023