Maison à construire à Villecerf (77250)
Images
Description
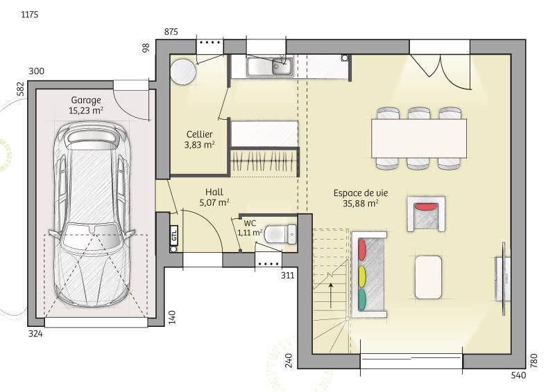
Villecerf, en Île de France (77250) : Belle Habitation de 90 m² avec étage, à bâtir à proximité d'une école ainsi que du RER R, sur un terrain VIABILISÉ de 510 m².
Devenez propriétaire à partir de 227 000 € (terrain + maison, hors frais annexes) sur un terrain idéalement situé à Villecerf, en Île-de-France. Cette propriété sera localisée à proximité de la Gare RER R de Vernou-sur-Seine et à seulement 7 minutes à pied de l'école, offrant un cadre de vie paisible et pratique.
La commune vous séduira par ses commodités accessibles sur le site officiel de la commune : commerces de proximité, espaces verts et activités culturelles variées. La vie en lotissement assure un environnement convivial et sécurisé, parfait pour les familles.
Notre agence d'Ormoy des Maisons Balency vous propose des réalisations entièrement sur-mesure, conformes aux dernières normes RE2020. Nos conceptions sont élaborées avec soin, et nous pouvons également adapter des modèles de notre catalogue selon vos envies et besoins spécifiques.
Appelez-nous dès à présent au (Numéro supprimé) pour lancer une recherche foncière gratuite et entamer votre projet de construction dans les meilleures conditions !
Annonce proposée par un Agent Commercial Partenaire.
Logement susceptibles de vous intéresser
Nous vous proposons de découvrir aussi cette sélection de logements situés à moins de 10km de Villecerf et qui seraient susceptibles de vous intéresser.
Montigny-sur-Loing
TERRAINÀ seulement 5 minutes à pied de la gare (ligne R vers Paris Gare de Lyon) et à proximité immédiate des écoles et du centre villePrix : 110000 €.Sur ce terrain de 649 m² à MONTIGNY-SUR-LOING, Maisons Clairval vous propose de réaliser votre projet de construction de maison individuelle.Maisons Clairval propose de construire votre maison neuve avec toutes les prestations suivantes :- Plan sur-mesure et personnalisé de 2 à 6 chambres- Mode de chauffage au choix- Grands choix d'équipements et de prestations- Matériaux de qualité selon les normes en vigueur- Accompagnement dans le choix et l’acquisition du terrain- Construction conforme à la nouvelle RE 2020Demandez une étude gratuite et personnalisée de votre projet de construction sur ce terrain !Contactez Nicolas REBOUL au (Numéro supprimé) ou au (Numéro supprimé) (Maisons Clairval – Agence de Villemoisson).Prix hors frais de notaire. Terrain sélectionné et vu pour vous sous réserve de disponibilité et au prix indiqué par notre partenaire foncier. Conditions et visuels non contractuels.Cette annonce a été créée et diffusée avec le logiciel VITAHOME.
Villecerf
TERRAINPrix : 69000 €.Sur ce terrain de 315 m² à VILLECERF, Maisons Clairval vous propose de réaliser votre projet de construction de maison individuelle.Maisons Clairval propose de construire votre maison neuve avec toutes les prestations suivantes :- Plan sur-mesure et personnalisé de 2 à 6 chambres- Mode de chauffage au choix- Grands choix d'équipements et de prestations- Matériaux de qualité selon les normes en vigueur- Accompagnement dans le choix et l’acquisition du terrain- Construction conforme à la nouvelle RE 2020Demandez une étude gratuite et personnalisée de votre projet de construction sur ce terrain !Contactez Nicolas REBOUL au (Numéro supprimé) ou au (Numéro supprimé) (Maisons Clairval – Agence de Villemoisson).Prix hors frais de notaire. Terrain sélectionné et vu pour vous sous réserve de disponibilité et au prix indiqué par notre partenaire foncier. Conditions et visuels non contractuels.Cette annonce a été créée et diffusée avec le logiciel VITAHOME.
Montigny-sur-Loing
TERRAINquartier résidentiel calme à proximité immédiate de toutes commodités à pied (commerces, gare, écoles…) et de la forêt.Prix : 115000 €.Sur ce terrain de 514 m² à MONTIGNY-SUR-LOING, Maisons Clairval vous propose de réaliser votre projet de construction de maison individuelle.Maisons Clairval propose de construire votre maison neuve avec toutes les prestations suivantes :- Plan sur-mesure et personnalisé de 2 à 6 chambres- Mode de chauffage au choix- Grands choix d'équipements et de prestations- Matériaux de qualité selon les normes en vigueur- Accompagnement dans le choix et l’acquisition du terrain- Construction conforme à la nouvelle RE 2020Demandez une étude gratuite et personnalisée de votre projet de construction sur ce terrain !Contactez Nicolas REBOUL au (Numéro supprimé) ou au (Numéro supprimé) (Maisons Clairval – Agence de Villemoisson).Prix hors frais de notaire. Terrain sélectionné et vu pour vous sous réserve de disponibilité et au prix indiqué par notre partenaire foncier. Conditions et visuels non contractuels.Cette annonce a été créée et diffusée avec le logiciel VITAHOME.
Villecerf
TERRAINPrix : 78000 €.Sur ce terrain de 459 m² à VILLECERF, Maisons Clairval vous propose de réaliser votre projet de construction de maison individuelle.Maisons Clairval propose de construire votre maison neuve avec toutes les prestations suivantes :- Plan sur-mesure et personnalisé de 2 à 6 chambres- Mode de chauffage au choix- Grands choix d'équipements et de prestations- Matériaux de qualité selon les normes en vigueur- Accompagnement dans le choix et l’acquisition du terrain- Construction conforme à la nouvelle RE 2020Demandez une étude gratuite et personnalisée de votre projet de construction sur ce terrain !Contactez Nicolas REBOUL au (Numéro supprimé) ou au (Numéro supprimé) (Maisons Clairval – Agence de Villemoisson).Prix hors frais de notaire. Terrain sélectionné et vu pour vous sous réserve de disponibilité et au prix indiqué par notre partenaire foncier. Conditions et visuels non contractuels.Cette annonce a été créée et diffusée avec le logiciel VITAHOME.
Villecerf
TERRAINPrix : 84000 €.Sur ce terrain de 510 m² à VILLECERF, Maisons Clairval vous propose de réaliser votre projet de construction de maison individuelle.Maisons Clairval propose de construire votre maison neuve avec toutes les prestations suivantes :- Plan sur-mesure et personnalisé de 2 à 6 chambres- Mode de chauffage au choix- Grands choix d'équipements et de prestations- Matériaux de qualité selon les normes en vigueur- Accompagnement dans le choix et l’acquisition du terrain- Construction conforme à la nouvelle RE 2020Demandez une étude gratuite et personnalisée de votre projet de construction sur ce terrain !Contactez Nicolas REBOUL au (Numéro supprimé) ou au (Numéro supprimé) (Maisons Clairval – Agence de Villemoisson).Prix hors frais de notaire. Terrain sélectionné et vu pour vous sous réserve de disponibilité et au prix indiqué par notre partenaire foncier. Conditions et visuels non contractuels.Cette annonce a été créée et diffusée avec le logiciel VITAHOME.
Moret-Loing-et-Orvanne
TERRAIN ET MAISONVENTE d’une maison F6 (89 m²) à Moret-Loing-et-OrvanneMAISON 6 PIÈCES NEUVE – PROCHE DE MELUNÀ deux pas du Transilien R (gare de Saint-Mammès, 50 min de Paris), en vente à Moret-Loing-et-Orvanne (77250), nous vous présentons cette maison de 6 pièces de 89 m². Son intérieur propose quatre chambres, une cuisine et une salle de bains.Le terrain du bien est de 400 m².C’est une maison de 2 niveaux. Elle est neuve.L’École Maternelle les Lilas est implantée à moins de 10 minutes à pied. Niveau transports, on trouve 10 gares à moins de 10 minutes en voiture. Il y a un tennis et une bibliothèque à quelques minutes du logement.Elle est proposée à l’achat pour 305 000 €.Contactez Jerome RAOUX (tél : (Numéro supprimé)) pour toute question sur cette maison.Annonce proposée par un Agent Commercial Partenaire.
Moret-Loing-et-Orvanne
TERRAIN ET MAISONMoret-Loing-et-Orvanne : maison F5 (95 m²) en venteMAISON 5 PIÈCES NEUVE – PROCHE DE MELUNEn vente : à quelques minutes de la gare de Saint-Mammès (Paris à 50 min par le Transilien R), à Moret-Loing-et-Orvanne (77250), nous sommes heureux de vous proposer cette maison de 5 pièces de plain-pied de 95 m².Elle se divise en trois chambres, une cuisine et deux salles de bains. Cette maison est neuve.Le terrain du bien est de 400 m².Il y a l’École Maternelle les Lilas à moins de 10 minutes à pied. Niveau transports en commun, on trouve 10 gares à moins de 10 minutes en voiture. On trouve un tennis et une bibliothèque dans les environs.Son prix de vente est de 320 000 €.N’hésitez pas à prendre contact avec Jerome RAOUX (tél : (Numéro supprimé)) pour obtenir de plus amples informations sur la maison, sur les démarches à suivre ou sur les modalités de vente.Annonce proposée par un Agent Commercial Partenaire.
Montigny-sur-Loing
TERRAIN ET MAISONTerrain proche gare a 57 minutes de Paris 15 minutes de Fontainebleu écoles et commerces sur place . Une maison spacieuse et fonctionnelle, idéale pour toute la famille ! Avec son grand espace de vie lumineux, cette maison allie confort et convivialité. Le rez-de-chaussée accueille un salon, une salle à manger et une cuisine ouverte, accompagnés d’un cellier pratique, d’une salle d’eau et d’un WC indépendant. Une chambre supplémentaire offre flexibilité et confort. À l’étage, trois chambres généreuses, une salle de bain moderne et un second WC garantissent bien-être et praticité au quotidien. Un design moderne et optimisé pour un cadre de vie agréable !. Pour vous assurer un confort de vie optimal et en conformité avec la RE2025, nous avons opté pour un système de chauffage par pompe à chaleur (PAC) avec plancher chauffant au rez-de-chaussée et radiateurs à l’étage. Le logement est également équipé de volets roulants électriques. Prix hors fourniture et pose : des appareils sanitaires (sauf système de chauffage et d'eau chaude sanitaire), du carrelage et de la faïence, des revêtements de sol dans les chambres. Hors décoration et aménagement intérieur et peinture. Hors raccordements, frais de notaire et dommage ouvrage. // Réf. : 2499-210515-CHL. Prix terrain : 115 000 €, hors frais d'agence à la charge de l'acquéreur. Ce terrain vous est proposé, par nos partenaires fonciers, dans le cadre d'un projet de construction avec nous. Les informations sur les risques auxquels ce bien est exposé sont disponibles sur le site Géorisques (www.georisques.gouv.fr). Prix maison : 166 786 €.
Montigny-sur-Loing
TERRAIN ET MAISONTerrain proche gare a 57 minutes de Paris 15 minutes de Fontainebleu écoles et commerces sur place . Une conception en L pour cette maison de plain-pied permettant une distribution harmonieuse des espaces et une excellente circulation entre les pièces. Un séjour spacieux de 30 m² baigné de lumière naturelle, offrant une atmosphère chaleureuse et accueillante pour vos moments de détente et de convivialité, une cuisine ouverte avec cellier attenant. Trois chambres bien agencées offrant des espaces de repos confortables pour chaque membre de la famille, une salle de bains indépendante. Pour vous assurer un confort de vie et conformément à la RE2025, nous avons choisi un mode de chauffage par PAC + plancher chauffant, volets roulants électriques. Prix hors fourniture et pose : des appareils sanitaires (sauf système de chauffage et d'eau chaude sanitaire), du carrelage et de la faïence, des revêtements de sol dans les chambres. Hors décoration et aménagement intérieur et peinture. Hors raccordements, frais de notaire et dommage ouvrage. . // Réf. : 2516-210515-CHL. Prix terrain : 115 000 €, hors frais d'agence à la charge de l'acquéreur. Ce terrain vous est proposé, par nos partenaires fonciers, dans le cadre d'un projet de construction avec nous. Les informations sur les risques auxquels ce bien est exposé sont disponibles sur le site Géorisques (www.georisques.gouv.fr). Prix maison : 131 219 €.
L’actualité immobilière à Villecerf
27/11/2023
02/11/2023
30/10/2023
20/10/2023
16/10/2023
16/10/2023