Maison à construire à Villevaudé (77410)
Images
Description
Contactez Guillaume Bordes de l'agence Maisons Evolution de Mareuil-lès-Meaux au (Numéro supprimé) pour avoir plus d'informations sur ce projet.
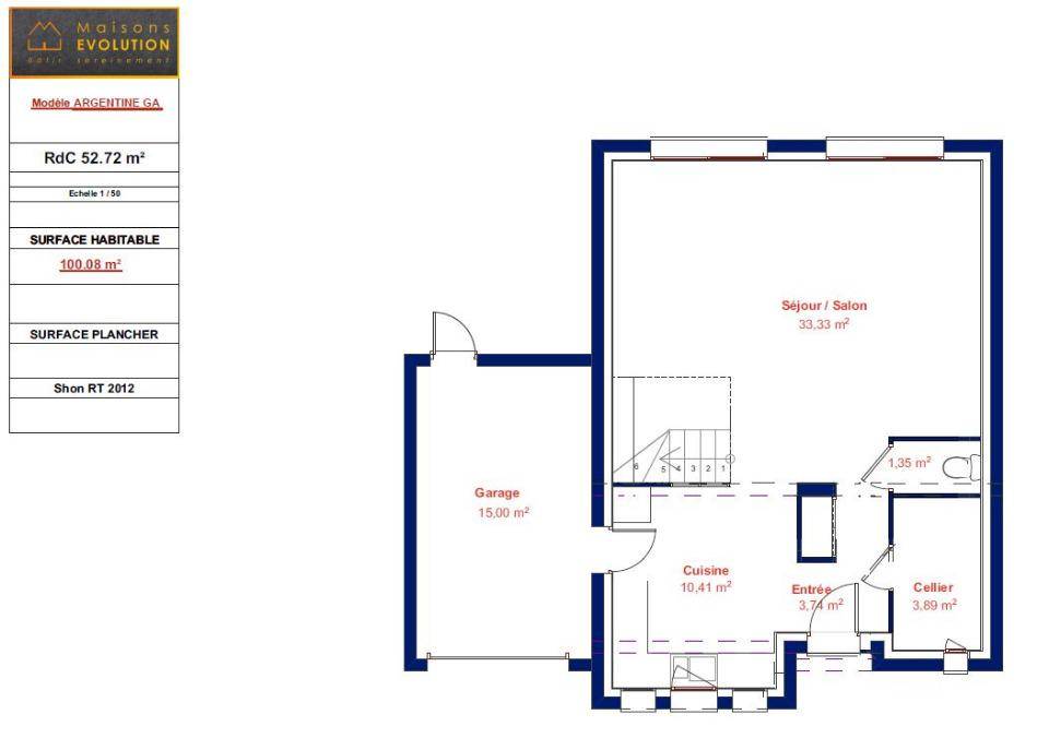
Belle maison à étage de 100 m² habitables avec garage accolé en option, idéalement située sur la commune de Villevaudé.
Elle est composée de 3 chambres, d'une salle de bains, de deux WC séparés, et d'un grand salon-séjour lumineux avec cuisine ouverte, cellier et garage accolé.
Les plans sont modifiables selon vos souhaits, en agence ou visioconférence. Nous vous proposons un véritable accompagnement de qualité tout au long de votre projet.
Dessinons ensemble votre future maison !
Tel: (Numéro supprimé)
Annonce proposée par un Agent Commercial Partenaire.
Logement susceptibles de vous intéresser
Nous vous proposons de découvrir aussi cette sélection de logements situés à moins de 10km de Villevaudé et qui seraient susceptibles de vous intéresser.
Lagny-sur-Marne
TERRAINConches sur Gondoire 77600 – En exclusivité – Terrain à bâtir d’une superficie de 4000 m² environ avec vue sur la vallée, dont 1000 m² constructibles (Façade de 23 mètres, possibilité de construction au sol jusqu’à 50% de la superficie du terrain , possibilité de faire une double maison et 11 mètre de haut).Prix de vente : 360 000 euros honoraires charge vendeur. Vous profitez d’un environnement privilégié.Pour visiter et vous accompagner dans votre projet, contactez Christophe PESENTI, au (Numéro supprimé) ou, par courriel à (Email supprimé).Selon l’article L.561.5 du Code Monétaire et Financier, pour l’organisation de la visite, la présentation d’une pièce d’identité vous sera demandée.Cette présente annonce a été rédigée sous la responsabilité éditoriale de Christophe PESENTI agissant en qualité de conseiller immobilier indépendant sous portage salarial auprès de SAS PROPRIETES PRIVEES, au capital de 44 920 euros, ZAC LE CHÊNE FERRÉ – 44 ALLÉE DES CINQ CONTINENTS 44120 VERTOU; SIRET 487 624 777 00040, RCS Nantes. Carte Professionnelle Transactions sur immeubles et fonds de commerce (T) et Gestion immobilière (G) n°CPI 4401 2016 000 010 388 délivrée par la CCI Nantes – Saint Nazaire. Compte séquestre n(Numéro supprimé)67 BPA SAINT-SEBASTIEN-SUR-LOIRE (44230). Garantie GALIAN-SMABTP – 89 rue de la Boétie, 75008 Paris – n°28137 J pour 2 000 000 euros pour T et 120 000 euros pour G. Assurance responsabilité civile professionnelle par GALIAN-SMABTP n° de police 28137.JMandat réf : 413165 – Le professionnel garantit et sécurise votre projet immobilier.
Jablines
TERRAIN ET MAISONMaison de 6 pièces (100 m²) en vente à JablinesMAISON 6 PIÈCES NEUVE – PROCHE DE PARISEn vente : à quelques minutes de la gare d’Esbly (Paris à 30 min avec le Transilien P), découvrez à Jablines (77450), cette maison de 6 pièces de 100 m² et de 334 m² de terrain. Son intérieur comporte quatre chambres, une cuisine et une salle de bains.Cette maison possède 2 niveaux. Elle est neuve.L’École Élémentaire Jacques-Yves Cousteau se trouve à moins de 10 minutes à pied. Niveau transports, il y a la ligne de RER A (Chessy-Marne-La-Vallée) ainsi que six gares à moins de 10 minutes en voiture. On trouve un commerce à quelques minutes.Son prix de vente est de 333 000 €.Contactez Alan RUBAL (tél : (Numéro supprimé)) pour obtenir de plus amples informations sur la maison, sur les modalités de vente ou sur les démarches à suivre. Faites de vos projets immobiliers une réalité avec Maisons France Confort Magny-le-Hongre.Annonce proposée par un Agent Commercial Partenaire.
Jablines
TERRAIN ET MAISONVENTE : maison de 8 pièces (155 m²) à JablinesMAISON 8 PIÈCES NEUVE – PROCHE DE PARISEn vente : à quelques minutes de la gare d’Esbly (Paris à 30 min avec le Transilien P), Maisons France Confort Magny-le-Hongre vous présente à Jablines (77450), cette maison de 8 pièces de 155 m².Cette maison compte 2 niveaux. Son intérieur est composé de cinq chambres, d’une cuisine et de deux salles de bains. La maison est neuve.Le terrain de la propriété s’étend sur 334 m².L’École Élémentaire Jacques-Yves Cousteau est implantée à moins de 10 minutes à pied. Niveau transports en commun, il y a la ligne de RER A (Chessy-Marne-La-Vallée) ainsi que six gares à moins de 10 minutes en voiture. On trouve un commerce à proximité.Elle est proposée à l’achat pour 432 000 €.Contactez notre agence (Alan RUBAL : (Numéro supprimé)) pour toute question sur cette maison, sur les modalités de vente ou sur les démarches à suivre.Annonce proposée par un Agent Commercial Partenaire.
Jablines
TERRAIN ET MAISONVENTE : maison de 7 pièces (120 m²) à JablinesPROCHE DE PARIS – MAISON 7 PIÈCES NEUVEEn vente : à côté du Transilien P (gare d’Esbly, 30 min de Paris), à Jablines (77450), nous vous présentons cette maison de 7 pièces de 120 m². Son intérieur propose quatre chambres, une cuisine et deux salles de bains.Le terrain de la propriété est de 334 m².Cette maison possède 2 niveaux. Elle est neuve.L’École Élémentaire Jacques-Yves Cousteau est implantée à moins de 10 minutes à pied. Niveau transports, on trouve la ligne de RER A (Chessy-Marne-La-Vallée) ainsi que six gares à moins de 10 minutes en voiture. Il y a un commerce à proximité.Son prix de vente est de 369 000 €.Contactez notre agence (RUBAL Alan : (Numéro supprimé)) pour toute information sur la maison ou sur les modalités de vente.Annonce proposée par un Agent Commercial Partenaire.
Jablines
TERRAIN ET MAISONJablines : maison de 6 pièces (95 m²) en ventePROCHE DE PARIS – MAISON 6 PIÈCES NEUVEÀ quelques minutes du Transilien P (gare d’Esbly, 30 min de Paris), à vendre à Jablines (77450), nous vous présentons cette maison de 6 pièces de plain-pied de 95 m².Conçue de plain-pied, elle inclut trois chambres, une cuisine et deux salles de bains. La maison est neuve.Le terrain du bien s’étend sur 334 m².On trouve l’École Élémentaire Jacques-Yves Cousteau à moins de 10 minutes à pied. Niveau transports, il y a la ligne de RER A (Chessy-Marne-La-Vallée) ainsi que six gares à moins de 10 minutes en voiture. On trouve un commerce à proximité de la maison.Son prix de vente est de 324 000 €.Contactez Alan RUBAL (tél : (Numéro supprimé)) pour tout renseignement sur cette maison ou sur les modalités de vente. Maisons France Confort Magny-le-Hongre vous accompagne dans toutes vos démarches et dans tous vos projets immobiliers.Annonce proposée par un Agent Commercial Partenaire.
Jablines
TERRAIN ET MAISONVENTE : maison de 6 pièces (106 m²) à JablinesMAISON 6 PIÈCES NEUVE – PROCHE DE PARISEn vente : à côté du Transilien P (gare d’Esbly, 30 min de Paris), nous vous présentons cette maison de 6 pièces de plain-pied de 106 m² et de 334 m² de terrain à Jablines (77450).Elle propose quatre chambres, une cuisine et deux salles de bains. La maison est neuve.On trouve l’École Élémentaire Jacques-Yves Cousteau à moins de 10 minutes à pied. Niveau transports, il y a la ligne de RER A (Chessy-Marne-La-Vallée) ainsi que six gares à moins de 10 minutes en voiture. Il y a un commerce à quelques minutes à peine.Elle est à vendre pour la somme de 343 800 €.Prenez contact avec Alan RUBAL ((Numéro supprimé)) pour toute information sur cette maison ou sur les modalités de vente. Maisons France Confort Magny-le-Hongre vous accompagne dans toutes vos démarches et dans tous vos projets immobiliers.Annonce proposée par un Agent Commercial Partenaire.
Mitry-Mory
TERRAIN ET MAISONMaison F6 (105 m²) à vendre à Mitry-MoryMAISON 6 PIÈCES NEUVEÀ quelques minutes du RER B (station Mitry-Claye, 30 min de Paris), nous sommes heureux de vous présenter à vendre à Mitry-Mory (77290), cette maison de 6 pièces de 105 m².Cette maison comporte 2 niveaux. Elle compte quatre chambres, une cuisine et deux salles de bains. Cette maison est neuve.Le terrain de la propriété est de 376 m².On trouve des écoles maternelles et élémentaires à moins de 10 minutes à pied. Niveau transports, il y a la ligne de RER B (Mitry-Claye) ainsi que 15 gares à moins de 10 minutes en voiture. On trouve un bassin de natation, une bibliothèque, un commerce, une boulangerie, un bureau de poste, deux boucheries-charcuteries et deux épiceries à proximité.Il est proposé à l’achat pour 367 000 €.Contactez notre agence (RUBAL Alan : (Numéro supprimé)) pour toute question sur la maison, sur les modalités de vente ou sur les démarches à suivre.Annonce proposée par un Agent Commercial Partenaire.
Mitry-Mory
TERRAIN ET MAISONVENTE : maison F7 (120 m²) à Mitry-MoryMAISON 7 PIÈCES NEUVEÀ côté de la station Mitry-Claye (Paris à 30 min avec le RER B), ayez le coup de coeur pour en vente à Mitry-Mory (77290), cette maison de 7 pièces de 120 m². Son intérieur se divise en quatre chambres, une cuisine et deux salles de bains.Le terrain du bien est de 376 m².C’est une maison de 2 niveaux. Elle est neuve.Des écoles primaires sont implantées à moins de 10 minutes à pied. Niveau transports, il y a la ligne de RER B (Mitry-Claye) ainsi que 15 gares à moins de 10 minutes en voiture. On trouve un bassin de natation, une bibliothèque, un commerce, une boulangerie, deux boucheries-charcuteries, un bureau de poste et deux épiceries dans les environs.Son prix de vente est de 394 000 €.Contactez Alan RUBAL ((Numéro supprimé)) pour tout renseignement sur cette maison, sur les modalités de vente et sur les démarches à suivre. Faites de vos projets immobiliers une réalité avec Maisons France Confort Magny-le-Hongre.Annonce proposée par un Agent Commercial Partenaire.
Mitry-Mory
TERRAIN ET MAISONMaison F5 (120 m²) en vente à Mitry-MoryMAISON 5 PIÈCES NEUVEÀ quelques minutes du RER B (station Mitry-Claye, 30 min de Paris), Maisons France Confort Magny-le-Hongre vous propose cette maison de 5 pièces de plain-pied de 120 m² et de 376 m² de terrain à Mitry-Mory (77290).Elle comporte quatre chambres, une cuisine et deux salles de bains. Cette maison est neuve.Il y a des établissements scolaires maternelles et élémentaires à moins de 10 minutes à pied. Côté transports, on trouve la ligne de RER B (Mitry-Claye) ainsi que 15 gares à moins de 10 minutes en voiture. Il y a un bassin de natation, une bibliothèque, un commerce, une boulangerie, deux boucheries-charcuteries, deux épiceries et un bureau de poste à proximité de la maison.Elle est à vendre pour la somme de 394 000 €.Prenez contact avec notre agence (Alan RUBAL : (Numéro supprimé)) pour toute question sur la maison ou sur les démarches à suivre. Maisons France Confort Magny-le-Hongre est là pour vous accompagner dans tous vos projets immobiliers.Annonce proposée par un Agent Commercial Partenaire.
L’actualité immobilière à Villevaudé
27/11/2023
02/11/2023
30/10/2023
20/10/2023
16/10/2023
16/10/2023