Maison à construire à Voulx (77940)
Images
Description
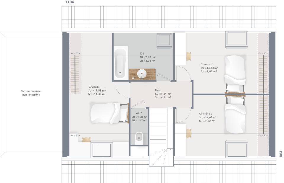
VENTE : maison T6 (115 m²) à Voulx
MAISON 6 PIÈCES NEUVE
À vendre : localisée à quelques kilomètres de Sens, à Voulx (77940), votre agence Maisons France Confort Nemours est ravie de vous proposer cette maison de 6 pièces de 115 m² et de 942 m² de terrain.
Il s'agit d'une maison de 2 niveaux. Elle inclut quatre chambres, une cuisine et deux salles de bains. Cette maison est neuve.
Il y a l'École Élémentaire Louis Gleizal et l'École Maternelle les Aulnes à moins de 10 minutes à pied. On trouve une bibliothèque, deux boulangeries, trois commerces, deux épiceries et un bureau de poste à proximité du logement. Le marché Rue Durocher a lieu tous les jeudis matin.
Elle est proposée à l'achat pour 302 264 €.
Prenez contact avec Anne DELOHEN ((Numéro supprimé)) pour toute information sur cette maison ou sur les modalités de vente.
Annonce proposée par un Agent Commercial Partenaire.
Logement susceptibles de vous intéresser
Nous vous proposons de découvrir aussi cette sélection de logements situés à moins de 10km de Voulx et qui seraient susceptibles de vous intéresser.
Lorrez-le-Bocage-Préaux
TERRAIN ET MAISONVENTE : maison T6 (89 m²) à Lorrez-le-Bocage-PréauxMAISON 6 PIÈCES NEUVE – PROCHE DE SENSÀ vendre à 31 km de Sens, Maisons France Confort Nemours vous propose cette maison de 6 pièces de 89 m² à Lorrez-le-Bocage-Préaux (77710).Il s’agit d’une maison de 2 niveaux. Son intérieur se divise en quatre chambres, une cuisine et une salle de bains. Cette maison est neuve.Le terrain de la propriété s’étend sur 300 m².Il y a l’École Élémentaire les Chenevières, l’École Maternelle les Chenevières et le Collège Jacques Prévert à moins de 10 minutes à pied. On trouve une bibliothèque, une boulangerie, un supermarché, un bureau de poste, une boucherie-charcuterie et deux épiceries à quelques minutes.Son prix de vente est de 218 000 €.Contactez Jerome RAOUX (tél : (Numéro supprimé)) pour tout renseignement sur la maison, sur les modalités de vente ou sur les démarches à suivre. Maisons France Confort Nemours est là pour vous accompagner dans tous vos projets immobiliers.Annonce proposée par un Agent Commercial Partenaire.
Blennes
TERRAIN ET MAISONBlennes : maison de 6 pièces (105 m²) à vendreMAISON 6 PIÈCES NEUVE À 22 km de Sens, venez découvrir en vente à Blennes (77940), cette maison de 6 pièces de 105 m².Cette maison comporte 2 niveaux. Son intérieur propose quatre chambres, une cuisine et deux salles de bains. Cette maison est neuve.Le terrain du bien est de 1 306 m².L’École Primaire Antoine de Saint-Exupéry est implantée à moins de 10 minutes à pied.Son prix de vente est de 255 377 €.Prenez contact avec notre agence (Anne DELOHEN : (Numéro supprimé)) pour toute information sur la maison. Maisons France Confort Nemours est là pour vous accompagner à toutes les étapes de votre projet.Annonce proposée par un Agent Commercial Partenaire.
Vallery
TERRAIN ET MAISONVENTE d’une maison F5 (90 m²) à ValleryMAISON 5 PIÈCES NEUVE À 20 km de Sens, laissez vous charmer par en vente à Vallery (89150), cette maison de 5 pièces de plain-pied de 90 m² et de 1 119 m² de terrain.Conçue de plain-pied, elle se divise en trois chambres, une cuisine et deux salles de bains. La maison est neuve.Une école élémentaire est implantée dans le quartier. Les autoroutes A19 et A5 sont accessibles à moins de 15 km.Elle est proposée à l’achat pour 249 271 €.Contactez notre agence (DELOHEN Anne : (Numéro supprimé)) pour obtenir de plus amples informations sur cette maison ou sur les modalités de vente. Maisons France Confort Nemours est là pour vous accompagner à toutes les étapes de votre projet.Annonce proposée par un Agent Commercial Partenaire.
Vallery
TERRAIN ET MAISONVENTE d’une maison de 6 pièces (106 m²) à ValleryMAISON 6 PIÈCES NEUVE En vente à quelques kilomètres de Sens, nous sommes ravis de vous présenter à Vallery (89150), cette maison de 6 pièces de plain-pied de 106 m² et de 1 119 m² de terrain.Son intérieur dispose de quatre chambres, d’une cuisine et de deux salles de bains. Cette maison est neuve.Il y a une école élémentaire dans le quartier. Les autoroutes A19 et A5 sont accessibles à moins de 15 km.Son prix de vente est de 281 559 €.Contactez Anne DELOHEN ((Numéro supprimé)) pour tout renseignement sur la maison ou sur les modalités de vente. Maisons France Confort Nemours vous accompagne dans tous vos projets immobiliers et dans toutes vos démarches.Annonce proposée par un Agent Commercial Partenaire.
Blennes
TERRAIN ET MAISONVENTE : maison F5 (90 m²) à BlennesMAISON 5 PIÈCES NEUVE En vente : à deux pas de Sens, à Blennes (77940), votre agence Maisons France Confort Nemours est ravie de vous proposer cette maison de 5 pièces de 90 m² et de 1 293 m² de terrain.Il s’agit d’une maison de 2 niveaux. Son intérieur offre quatre chambres, une cuisine et deux salles de bains. Cette maison est neuve.L’École Primaire Antoine de Saint-Exupéry est implantée à moins de 10 minutes à pied.Elle est proposée à l’achat pour 243 705 €.Contactez Anne DELOHEN (tél : (Numéro supprimé)) pour obtenir de plus amples renseignements sur cette maison ou sur les modalités de vente.Annonce proposée par un Agent Commercial Partenaire.
Voulx
TERRAIN ET MAISONVoulx : maison de 5 pièces (97 m²) à vendreMAISON 5 PIÈCES NEUVE En vente à deux pas de Sens, Maisons France Confort Nemours vous propose cette maison de 5 pièces de 97 m² à Voulx (77940). Elle propose quatre chambres, une cuisine et deux salles de bains.Le terrain du bien est de 954 m².C’est une maison de 2 niveaux. Elle est neuve.Il y a l’École Élémentaire Louis Gleizal et l’École Maternelle les Aulnes à moins de 10 minutes à pied. On trouve une bibliothèque, deux boulangeries, trois commerces, un bureau de poste et deux épiceries dans les environs. Enfin, le marché Rue Durocher anime le quartier tous les jeudis matin.Son prix de vente est de 344 000 €.Prenez contact avec notre agence (DELOHEN Anne : (Numéro supprimé)) pour toute question sur la maison.Annonce proposée par un Agent Commercial Partenaire.
Villemaréchal
TERRAIN ET MAISONVENTE : maison F4 (81 m²) à VillemaréchalMAISON 4 PIÈCES NEUVEEn vente : nous vous présentons cette maison de 4 pièces de plain-pied de 81 m² à Villemaréchal (77710).Conçue de plain-pied, elle propose trois chambres, une cuisine et une salle de bains. La maison est neuve.Le terrain du bien est de 764 m².Il y a une école élémentaire dans le quartier. On trouve un commerce et une épicerie à quelques minutes.Elle est à vendre pour la somme de 208 149 €.Contactez notre agence (Anne DELOHEN : (Numéro supprimé)) pour toute information sur la maison, sur les démarches à suivre ou sur les modalités de vente. Concrétisez vos projets immobiliers avec Maisons France Confort Nemours.Annonce proposée par un Agent Commercial Partenaire.
Voulx
TERRAIN ET MAISONMaison de 6 pièces (122 m²) en vente à VoulxMAISON 6 PIÈCES NEUVEÀ vendre à 27 km de Sens, nous sommes ravis de vous présenter cette maison de 6 pièces de 122 m² à Voulx (77940).Il s’agit d’une maison de 2 niveaux. Elle offre quatre chambres, une cuisine et deux salles de bains. Cette maison est neuve.Le terrain de la propriété est de 954 m².On trouve l’École Élémentaire Louis Gleizal et l’École Maternelle les Aulnes à moins de 10 minutes à pied. Il y a une bibliothèque, deux boulangeries, trois commerces, un bureau de poste et deux épiceries à quelques minutes de la maison. Enfin, le marché Rue Durocher anime le quartier tous les jeudis matin.Elle est à vendre pour la somme de 319 697 €.Prenez contact avec notre agence (Anne DELOHEN : (Numéro supprimé)) pour tout renseignement sur la maison. Maisons France Confort Nemours est là pour vous accompagner dans tous vos projets immobiliers.Annonce proposée par un Agent Commercial Partenaire.
Voulx
TERRAIN ET MAISONVENTE : maison T6 (115 m²) à VoulxMAISON 6 PIÈCES NEUVEÀ vendre : localisée à quelques kilomètres de Sens, à Voulx (77940), votre agence Maisons France Confort Nemours est ravie de vous proposer cette maison de 6 pièces de 115 m² et de 942 m² de terrain.Il s’agit d’une maison de 2 niveaux. Elle inclut quatre chambres, une cuisine et deux salles de bains. Cette maison est neuve.Il y a l’École Élémentaire Louis Gleizal et l’École Maternelle les Aulnes à moins de 10 minutes à pied. On trouve une bibliothèque, deux boulangeries, trois commerces, deux épiceries et un bureau de poste à proximité du logement. Le marché Rue Durocher a lieu tous les jeudis matin.Elle est proposée à l’achat pour 302 264 €.Prenez contact avec Anne DELOHEN ((Numéro supprimé)) pour toute information sur cette maison ou sur les modalités de vente.Annonce proposée par un Agent Commercial Partenaire.
L’actualité immobilière à Voulx
27/11/2023
02/11/2023
30/10/2023
20/10/2023
16/10/2023
16/10/2023