Maison à construire à Vulaines-sur-Seine (77870)
Images
Description
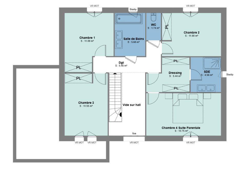
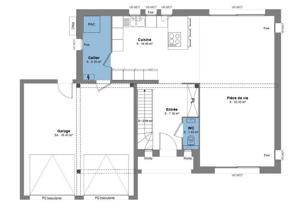
Vulaines-sur-Seine (77870) : Élégante Demeure de 136 m² à bâtir par Les Maisons Balency d'Ormoy sur un terrain VIABILISÉ de 378 m².
Nous vous proposons une maison de 4 chambres et de 2 salles-de-bains, sur deux niveaux, à bâtir sur une parcelle au sein d'un lotissement sécurisé, à 13 minutes de FONTAINEBLEAU.
Des écoles maternelles et élémentaires sont implantées à moins de 10 minutes à pied du terrain, toit comme l'École Élémentaire les Orangers.
Niveau transports en commun, on trouve la gare RER R de Vulaines-sur-Seine à quelques pas de la maison. On trouve une bibliothèque, une boulangerie, des commerces, deux épiceries et une boucherie-charcuterie à quelques minutes de la maison.
Le projet (terrain viabilisé + maison hors frais annexes), est estimé à 409 000 €.
Contactez nous au (Numéro supprimé) pour tout renseignement sur la maison et sur ses modalités de construction.
Annonce proposée par un Agent Commercial Partenaire.
Logement susceptibles de vous intéresser
Nous vous proposons de découvrir aussi cette sélection de logements situés à moins de 10km de Vulaines-sur-Seine et qui seraient susceptibles de vous intéresser.

Saint-Mammès
TERRAINTrès beau terrain clos de 500m² sur la commune de Saint Mammès.Les terrain est idéalement situé et plat.Pour plus de renseignements, contactez Arnaud des Maisons Balency de Veneux Les Sablons au (Numéro supprimé).Annonce proposée par un Agent Commercial Partenaire.

Saint-Mammès
TERRAIN ET MAISONPROJET TERRAIN + MAISON + NOTAIRE + VIABILISATION = 351 061€À vendre : à proximité du Transilien R (50 min de Paris), Maisons Balency Moret-Loing-et-Orvanne vous propose, bénéficiant d’un emplacement d’exception dans Saint-Mammès (77670), cette maison de 5 pièces de plain-pied de 100 m².Conçue de plain-pied, elle compte trois chambres, une cuisine et deux salles de bains. Cette maison est neuve.Le terrain de la propriété est de 500 m².Cette maison se situe dans un quartier convoité. On trouve quatre établissements scolaires à moins de 10 minutes à pied. Niveau transports, il y a la gare Saint-Mammès dans les environs. Il y a une bibliothèque, deux boulangeries, trois commerces, une épicerie, une boucherie-charcuterie et un bureau de poste à proximité de la maison. Le marché Quai de la Seine anime le quartier tous les dimanches matin.Elle est proposée à l’achat pour 351 061 €.N’hésitez pas à prendre contact avec notre agence (MOINE Arnaud : (Numéro supprimé)) pour tout renseignement sur la maison ou sur les modalités de vente. Faites de vos projets immobiliers une réalité avec Maisons Balency Moret-Loing-et-Orvanne.Annonce proposée par un Agent Commercial Partenaire.

Saint-Mammès
TERRAIN ET MAISONPROJET TERRAIN + MAISON + NOTAIRE + VIABILISATION = 484 995€Proche de la gare (Paris à 50 min avec le Transilien R), découvrez cette maison de 5 pièces de 114 m² bénéficiant d’un emplacement privilégié dans Saint-Mammès (77670). Son intérieur propose quatre chambres, une cuisine et une salle de bains.Le terrain de cette maison s’étend sur 500 m².Cette maison possède 2 niveaux. Elle est neuve.Cette maison se trouve dans un quartier attractif. Quatre établissements scolaires sont implantés à moins de 10 minutes à pied. Niveau transports en commun, il y a la gare Saint-Mammès à quelques pas du bien. On trouve une bibliothèque, deux boulangeries, trois commerces, une épicerie, un bureau de poste et une boucherie-charcuterie à quelques minutes à peine. Enfin, le marché Quai de la Seine a lieu tous les dimanches matin.Son prix de vente est de 484 995 €.Contactez Arnaud MOINE ((Numéro supprimé)) pour toute question sur la maison ou sur les modalités de vente. Maisons Balency Moret-Loing-et-Orvanne est là pour vous accompagner dans toutes vos démarches.Annonce proposée par un Agent Commercial Partenaire.

Vulaines-sur-Seine
TERRAIN ET MAISONContactez Stéphanie SEBAG de l’agence Maisons Evolution de Mareuil-lès-Meaux au (Numéro supprimé) pour avoir plus d’informations sur ce projet.Très jolie maison moderne de 118 m² habitables, aux dernières normes énergétiques, idéalement située sur la commune de VULAINES SUR SEINEElle est composée de 4 grandes chambres dont 2 suites parentales avec chacune sa salle d’eau, d’une troisième salle de bains, de deux WC séparés et d’un grand salon-séjour lumineux avec cuisine ouverte donnant sur un vaste cellier/buanderie. Il est possible d’y ajouter un garage ou un carport.Les plans sont entièrement modifiables selon vos souhaits, en agence ou visioconférence. Nous vous proposons un véritable accompagnement de qualité tout au long de votre projet.Dessinons ensemble votre future maison !Tel : (Numéro supprimé)Annonce proposée par un Agent Commercial Partenaire.

Vulaines-sur-Seine
TERRAIN ET MAISONContactez Stéphanie SEBAG de l’agence Maisons Evolution de Mareuil-lès-Meaux au (Numéro supprimé) pour avoir plus d’informations sur ce projet.Maison de plain-pied d’une superficie de 71 m² habitables avec garage accolé idéalement située sur la commune de VULAINES SUR SEINEElle est composée de 2 chambres, d’une grande salle de bains, et d’un grand salon-séjour lumineux avec cuisine ouverte, cellier et garage. Il est possible de prévoir des combles aménageables pour le futur (et récupérer ainsi jusqu’à 40 m²)Les plans sont modifiables selon vos souhaits, en agence ou visioconférence. Nous vous proposons un véritable accompagnement de qualité tout au long de votre projet.Dessinons ensemble votre future maison !Tel: (Numéro supprimé)Annonce proposée par un Agent Commercial Partenaire.

Vulaines-sur-Seine
TERRAIN ET MAISONContactez Stéphanie SEBAG de l’agence Maisons Evolution de Mareuil-lès-Meaux au (Numéro supprimé) pour avoir plus d’informations sur ce projet.Maison de plain-pied d’une superficie de 101 m² habitables avec garage accolé idéalement située sur la commune de VULAINES SUR SEINEElle est composée de 4 chambres, d’une ou deux salles de bains selon vos souhaits, et d’un grand salon-séjour lumineux avec cuisine ouverte, cellier et garage. Il est possible de prévoir des combles aménageables pour le futur (et récupérer ainsi jusqu’à 50 m²)Les plans sont modifiables selon vos souhaits, en agence ou visioconférence. Nous vous proposons un véritable accompagnement de qualité tout au long de votre projet.Dessinons ensemble votre future maison !Tel: (Numéro supprimé)Annonce proposée par un Agent Commercial Partenaire.

Vulaines-sur-Seine
TERRAINVotre agence Maisons Evolution de Mareuil-les-Meaux vous propose, grâce à ses partenaires fonciers, situé à 6 km de Fontainebleau et environ 65 km au sud-est de Paris secteur calme et pavillonnaire, un terrain constructible de 570 m² avec une façade de 10 m linéaire. Tous les raccordements sont disponibles y compris le tout à l’égout. Pour plus d’information contactez Stéphanie SEBAG au (Numéro supprimé).Dessinons ensemble votre future maison !Avec Maisons Évolution, marque du groupe Hexaôm, leader national de la construction de maisons individuelles, vous bénéficiez d’un accompagnement complet, de la conception des plans jusqu’à l’ouverture du chantier, dans le respect de vos envies, de votre budget et des exigences locales.Nous vous proposons une large gamme de modèles 100 % personnalisables, en construction traditionnelle ou à ossature bois, selon vos préférences esthétiques et votre mode de vie. Nos maisons allient qualité de finition, performance énergétique, confort et durabilité, tout en étant conformes à la réglementation environnementale en vigueur.Annonce proposée par un Agent Commercial Partenaire.

Vulaines-sur-Seine
TERRAINVotre agence Maisons Evolution de Mareuil-les-Meaux vous propose, grâce à ses partenaires fonciers, situé à 6 km de Fontainebleau et environ 65 km au sud-est de Paris secteur calme et pavillonnaire, un terrain constructible de 384 m² avec une façade de 13.90 m linéaire. Tous les raccordements sont disponibles y compris le tout à l’égout. Pour plus d’information contactez Stéphanie SEBAG au (Numéro supprimé).Dessinons ensemble votre future maison !Avec Maisons Évolution, marque du groupe Hexaôm, leader national de la construction de maisons individuelles, vous bénéficiez d’un accompagnement complet, de la conception des plans jusqu’à l’ouverture du chantier, dans le respect de vos envies, de votre budget et des exigences locales.Nous vous proposons une large gamme de modèles 100 % personnalisables, en construction traditionnelle ou à ossature bois, selon vos préférences esthétiques et votre mode de vie. Nos maisons allient qualité de finition, performance énergétique, confort et durabilité, tout en étant conformes à la réglementation environnementale en vigueur.Annonce proposée par un Agent Commercial Partenaire.

Vulaines-sur-Seine
TERRAIN ET MAISONContactez Stéphanie SEBAG de l’agence Maisons Evolution de Mareuil-lès-Meaux au (Numéro supprimé) pour avoir plus d’informations sur ce projet.Découvrez cette belle maison d’une superficie de 90 m² habitables avec garage intégré idéalement située sur la commune de VULAINE SUR SEINEElle est composée de 4 chambres, d’une salle de bains, de deux WC, et d’un grand salon-séjour lumineux avec cuisine ouverte, cellier et garage.Les plans sont modifiables selon vos souhaits, en agence ou visioconférence. Nous vous proposons un véritable accompagnement de qualité tout au long de votre projet.Dessinons ensemble votre future maison !Tel: (Numéro supprimé)Annonce proposée par un Agent Commercial Partenaire.
L’actualité immobilière à Vulaines-sur-Seine





