Maison à construire à Vulaines-sur-Seine (77870)
Images
Description
Contactez Stéphanie SEBAG de l'agence Maisons Evolution de Mareuil-lès-Meaux au (Numéro supprimé) pour avoir plus d'informations sur ce projet.
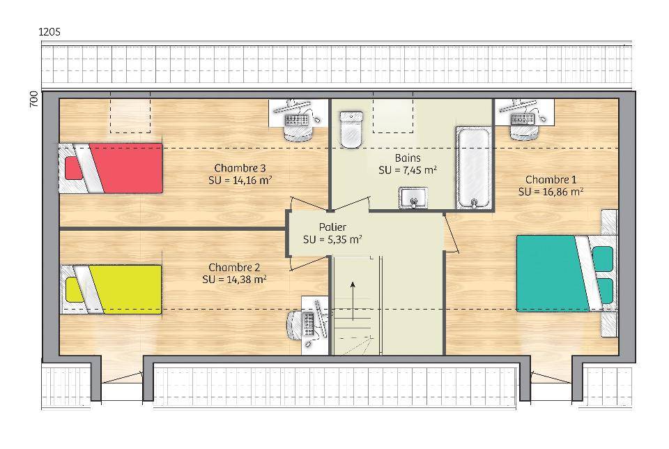
Jolie maison traditionnelle de 90 m² habitables avec garage intégré idéalement située sur la commune de VULAINES SUR SEINE
Elle est composée de 4 chambres dont une au rez-de-chaussée, d'une grande salle de bains, de deux WC et d'un salon-séjour lumineux avec cuisine ouverte donnant sur un cellier puis sur le garage.
Les plans sont modifiables selon vos souhaits, en agence ou visioconférence. Nous vous proposons un véritable accompagnement de qualité tout au long de votre projet.
Dessinons ensemble votre future maison !
Tel: (Numéro supprimé)
Annonce proposée par un Agent Commercial Partenaire.
Logement susceptibles de vous intéresser
Nous vous proposons de découvrir aussi cette sélection de logements situés à moins de 10km de Vulaines-sur-Seine et qui seraient susceptibles de vous intéresser.

Vulaines-sur-Seine
TERRAIN ET MAISONContactez Stéphanie SEBAG de l’agence Maisons Evolution de Mareuil-lès-Meaux au (Numéro supprimé) pour avoir plus d’informations sur ce projet.Très jolie maison moderne de 118 m² habitables, aux dernières normes énergétiques, idéalement située sur la commune de VULAINES SUR SEINEElle est composée de 4 grandes chambres dont 2 suites parentales avec chacune sa salle d’eau, d’une troisième salle de bains, de deux WC séparés et d’un grand salon-séjour lumineux avec cuisine ouverte donnant sur un vaste cellier/buanderie. Il est possible d’y ajouter un garage ou un carport.Les plans sont entièrement modifiables selon vos souhaits, en agence ou visioconférence. Nous vous proposons un véritable accompagnement de qualité tout au long de votre projet.Dessinons ensemble votre future maison !Tel : (Numéro supprimé)Annonce proposée par un Agent Commercial Partenaire.

Vulaines-sur-Seine
TERRAIN ET MAISONContactez Stéphanie SEBAG de l’agence Maisons Evolution de Mareuil-lès-Meaux au (Numéro supprimé) pour avoir plus d’informations sur ce projet.Maison de plain-pied d’une superficie de 71 m² habitables avec garage accolé idéalement située sur la commune de VULAINES SUR SEINEElle est composée de 2 chambres, d’une grande salle de bains, et d’un grand salon-séjour lumineux avec cuisine ouverte, cellier et garage. Il est possible de prévoir des combles aménageables pour le futur (et récupérer ainsi jusqu’à 40 m²)Les plans sont modifiables selon vos souhaits, en agence ou visioconférence. Nous vous proposons un véritable accompagnement de qualité tout au long de votre projet.Dessinons ensemble votre future maison !Tel: (Numéro supprimé)Annonce proposée par un Agent Commercial Partenaire.

Vulaines-sur-Seine
TERRAIN ET MAISONContactez Stéphanie SEBAG de l’agence Maisons Evolution de Mareuil-lès-Meaux au (Numéro supprimé) pour avoir plus d’informations sur ce projet.Maison de plain-pied d’une superficie de 101 m² habitables avec garage accolé idéalement située sur la commune de VULAINES SUR SEINEElle est composée de 4 chambres, d’une ou deux salles de bains selon vos souhaits, et d’un grand salon-séjour lumineux avec cuisine ouverte, cellier et garage. Il est possible de prévoir des combles aménageables pour le futur (et récupérer ainsi jusqu’à 50 m²)Les plans sont modifiables selon vos souhaits, en agence ou visioconférence. Nous vous proposons un véritable accompagnement de qualité tout au long de votre projet.Dessinons ensemble votre future maison !Tel: (Numéro supprimé)Annonce proposée par un Agent Commercial Partenaire.

Vulaines-sur-Seine
TERRAINVotre agence Maisons Evolution de Mareuil-les-Meaux vous propose, grâce à ses partenaires fonciers, situé à 6 km de Fontainebleau et environ 65 km au sud-est de Paris secteur calme et pavillonnaire, un terrain constructible de 570 m² avec une façade de 10 m linéaire. Tous les raccordements sont disponibles y compris le tout à l’égout. Pour plus d’information contactez Stéphanie SEBAG au (Numéro supprimé).Dessinons ensemble votre future maison !Avec Maisons Évolution, marque du groupe Hexaôm, leader national de la construction de maisons individuelles, vous bénéficiez d’un accompagnement complet, de la conception des plans jusqu’à l’ouverture du chantier, dans le respect de vos envies, de votre budget et des exigences locales.Nous vous proposons une large gamme de modèles 100 % personnalisables, en construction traditionnelle ou à ossature bois, selon vos préférences esthétiques et votre mode de vie. Nos maisons allient qualité de finition, performance énergétique, confort et durabilité, tout en étant conformes à la réglementation environnementale en vigueur.Annonce proposée par un Agent Commercial Partenaire.

Vulaines-sur-Seine
TERRAINVotre agence Maisons Evolution de Mareuil-les-Meaux vous propose, grâce à ses partenaires fonciers, situé à 6 km de Fontainebleau et environ 65 km au sud-est de Paris secteur calme et pavillonnaire, un terrain constructible de 384 m² avec une façade de 13.90 m linéaire. Tous les raccordements sont disponibles y compris le tout à l’égout. Pour plus d’information contactez Stéphanie SEBAG au (Numéro supprimé).Dessinons ensemble votre future maison !Avec Maisons Évolution, marque du groupe Hexaôm, leader national de la construction de maisons individuelles, vous bénéficiez d’un accompagnement complet, de la conception des plans jusqu’à l’ouverture du chantier, dans le respect de vos envies, de votre budget et des exigences locales.Nous vous proposons une large gamme de modèles 100 % personnalisables, en construction traditionnelle ou à ossature bois, selon vos préférences esthétiques et votre mode de vie. Nos maisons allient qualité de finition, performance énergétique, confort et durabilité, tout en étant conformes à la réglementation environnementale en vigueur.Annonce proposée par un Agent Commercial Partenaire.

Vulaines-sur-Seine
TERRAIN ET MAISONContactez Stéphanie SEBAG de l’agence Maisons Evolution de Mareuil-lès-Meaux au (Numéro supprimé) pour avoir plus d’informations sur ce projet.Découvrez cette belle maison d’une superficie de 90 m² habitables avec garage intégré idéalement située sur la commune de VULAINE SUR SEINEElle est composée de 4 chambres, d’une salle de bains, de deux WC, et d’un grand salon-séjour lumineux avec cuisine ouverte, cellier et garage.Les plans sont modifiables selon vos souhaits, en agence ou visioconférence. Nous vous proposons un véritable accompagnement de qualité tout au long de votre projet.Dessinons ensemble votre future maison !Tel: (Numéro supprimé)Annonce proposée par un Agent Commercial Partenaire.

Vulaines-sur-Seine
TERRAIN ET MAISONContactez Stéphanie SEBAG de l’agence Maisons Evolution de Mareuil-lès-Meaux au (Numéro supprimé) pour avoir plus d’informations sur ce projet.Venez découvrir cette belle et grande maison d’une superficie de 109 m² habitables avec garage intégré idéalement située sur la commune de VULAINE SUR SEINEElle est composée de 4 chambres (dont une suite parentale) de 2 salles de bains, de 2 WC, et d’un grand salon-séjour lumineux avec cuisine ouverte, cellier et garage.Les plans sont modifiables selon vos souhaits, en agence ou visioconférence. Nous vous proposons un véritable accompagnement de qualité tout au long de votre projet.Dessinons ensemble votre future maison !Tel: (Numéro supprimé)Annonce proposée par un Agent Commercial Partenaire.

Vulaines-sur-Seine
TERRAIN ET MAISONContactez Stéphanie SEBAG de l’agence Maisons Evolution de Mareuil-lès-Meaux au (Numéro supprimé) pour avoir plus d’informations sur ce projet.Jolie maison traditionnelle de 90 m² habitables avec garage intégré idéalement située sur la commune de VULAINES SUR SEINEElle est composée de 4 chambres dont une au rez-de-chaussée, d’une grande salle de bains, de deux WC et d’un salon-séjour lumineux avec cuisine ouverte donnant sur un cellier puis sur le garage.Les plans sont modifiables selon vos souhaits, en agence ou visioconférence. Nous vous proposons un véritable accompagnement de qualité tout au long de votre projet.Dessinons ensemble votre future maison !Tel: (Numéro supprimé)Annonce proposée par un Agent Commercial Partenaire.

Vulaines-sur-Seine
TERRAIN ET MAISONContactez Stéphanie SEBAG de l’agence Maisons Evolution de Mareuil-lès-Meaux au (Numéro supprimé) pour avoir plus d’informations sur ce projet.Belle maison à étage de 100 m² habitables avec garage intégré, idéalement située sur la commune de VULAINES SUR SEINEElle est composée de 4 chambres, d’une salle de bains, de deux WC séparés, et d’un grand salon-séjour lumineux avec cuisine ouverte, cellier et garage.Les plans sont modifiables selon vos souhaits, en agence ou visioconférence. Nous vous proposons un véritable accompagnement de qualité tout au long de votre projet.Dessinons ensemble votre future maison !Tel: (Numéro supprimé)Annonce proposée par un Agent Commercial Partenaire.
L’actualité immobilière à Vulaines-sur-Seine





