Maison à construire à Vulaines-sur-Seine (77870)
Images
Description
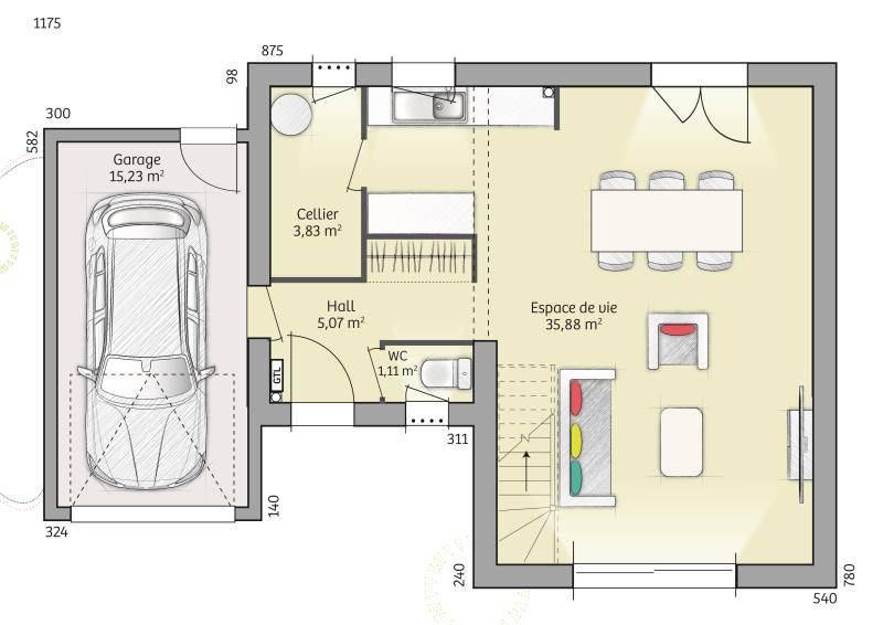
VENTE : maison T5 (90 m²) à Vulaines-sur-Seine
EMPLACEMENT PRIVILÉGIÉ - MAISON 5 PIÈCES NEUVE
À vendre : à deux pas de Corbeil-Essonnes, Maisons France Confort Nemours vous présente, bénéficiant d'un emplacement d'exception dans Vulaines-sur-Seine (77870), cette maison de 5 pièces de 90 m² et de 425 m² de terrain.
Il s'agit d'une maison de 2 niveaux. Elle compte trois chambres, une cuisine et une salle de bains. La maison est neuve.
Cette maison est située dans un quartier prisé. Des écoles maternelles et élémentaires sont implantées à moins de 10 minutes à pied, tout comme dont l'École Élémentaire les Orangers. Niveau transports, on trouve la gare Vulaines-sur-Seine-Samoreau juste à côté. Il y a une bibliothèque, une boulangerie, des commerces, deux épiceries et une boucherie-charcuterie dans les environs.
Son prix de vente est de 325 800 €.
N'hésitez pas à prendre contact avec notre agence (Anne DELOHEN : (Numéro supprimé)) pour toute information sur le bien ou sur les démarches à suivre. Concrétisez vos projets immobiliers avec Maisons France Confort Nemours.
Annonce proposée par un Agent Commercial Partenaire.
Logement susceptibles de vous intéresser
Nous vous proposons de découvrir aussi cette sélection de logements situés à moins de 10km de Vulaines-sur-Seine et qui seraient susceptibles de vous intéresser.
Moret-Loing-et-Orvanne
TERRAIN ET MAISONBeau terrain a voir école et commerces a proximité . Une conception en L pour cette maison de plain-pied permettant une distribution harmonieuse des espaces et une excellente circulation entre les pièces. Un séjour spacieux de 30 m² baigné de lumière naturelle, offrant une atmosphère chaleureuse et accueillante pour vos moments de détente et de convivialité, une cuisine ouverte avec cellier attenant. Trois chambres bien agencées offrant des espaces de repos confortables pour chaque membre de la famille, une salle de bains indépendante. Pour vous assurer un confort de vie et conformément à la RE2025, nous avons choisi un mode de chauffage par PAC + plancher chauffant, volets roulants électriques. Prix hors fourniture et pose : des appareils sanitaires (sauf système de chauffage et d'eau chaude sanitaire), du carrelage et de la faïence, des revêtements de sol dans les chambres. Hors décoration et aménagement intérieur et peinture. Hors raccordements, frais de notaire et dommage ouvrage. . // Réf. : 2516-213550-CHL. Prix terrain : 78 000 €, hors frais d'agence à la charge de l'acquéreur. Ce terrain vous est proposé, par nos partenaires fonciers, dans le cadre d'un projet de construction avec nous. Les informations sur les risques auxquels ce bien est exposé sont disponibles sur le site Géorisques (www.georisques.gouv.fr). Prix maison : 131 219 €.
Machault
TERRAIN ET MAISONMaison de 5 pièces (101 m²) en vente à MachaultMAISON 5 PIÈCES NEUVE À proximité du Transilien R (gare de Saint-Mammès, 50 min de Paris), en vente à Machault (77133), Maisons France Confort Nemours vous propose cette maison de 5 pièces de plain-pied de 101 m².Son intérieur dispose de quatre chambres, d’une cuisine et d’une salle de bains. Cette maison est neuve.Le terrain du bien s’étend sur 461 m².Des écoles du primaire et du secondaire sont implantées à moins de 10 minutes en voiture, tout comme sept crèches à moins de 10 minutes à pied. Côté transports, il y a 10 gares à moins de 10 minutes en voiture. On trouve des tennis, des bibliothèques, trois bassins de natation, des boulangeries, des commerces, des supermarchés, des boucheries-charcuteries et des bureaux de poste à quelques minutes du logement. Enfin, 3 marchés animent les environs.Elle est à vendre pour la somme de 295 825 €.Contactez Anne DELOHEN (tél : (Numéro supprimé)) pour toute question sur la maison ou sur les démarches à suivre. Maisons France Confort Nemours est là pour vous accompagner dans tous vos projets immobiliers.Annonce proposée par un Agent Commercial Partenaire.
Le Châtelet-en-Brie
TERRAIN ET MAISONVENTE : maison de 5 pièces (95 m²) au Châtelet-en-BrieMAISON 5 PIÈCES NEUVE – PROCHE D’ÉVRY-COURCOURONNESEn vente : à proximité de la gare de Bois-le-Roi (Paris à 35 min avec le Transilien R), Maisons France Confort Nemours vous propose au Châtelet-en-Brie (77820), cette maison de 5 pièces de plain-pied de 95 m².Son intérieur est composé de trois chambres, d’une cuisine et de deux salles de bains. Cette maison est neuve.Le terrain de la propriété est de 480 m².On trouve cinq établissements scolaires à moins de 10 minutes à pied, tout comme une structure d’accueil pour la petite enfance. Côté transports en commun, il y a six gares à moins de 10 minutes en voiture. Il y a une bibliothèque, des commerces, une boulangerie, une boucherie-charcuterie et un bureau de poste à proximité.Elle est proposée à l’achat pour 330 000 €.N’hésitez pas à prendre contact avec Jerome RAOUX ((Numéro supprimé)) pour plus de renseignements sur la maison ou sur les modalités de vente. Maisons France Confort Nemours est là pour vous accompagner dans toutes vos démarches.Annonce proposée par un Agent Commercial Partenaire.
Le Châtelet-en-Brie
TERRAIN ET MAISONVENTE : maison F5 (90 m²) au Châtelet-en-BriePROCHE D’ÉVRY-COURCOURONNES – MAISON 5 PIÈCES NEUVEÀ deux pas du Transilien R (gare de Bois-le-Roi, 35 min de Paris), Maisons France Confort Nemours vous présente cette maison de 5 pièces de 90 m² et de 400 m² de terrain au Châtelet-en-Brie (77820). Son intérieur offre trois chambres, une cuisine et une salle de bains.Cette maison compte 2 niveaux. Elle est neuve.Cinq établissements scolaires se trouvent à moins de 10 minutes à pied, tout comme une structure d’accueil pour la petite enfance. Niveau transports, il y a six gares à moins de 10 minutes en voiture. On trouve une bibliothèque, des commerces, une boulangerie, un bureau de poste et une boucherie-charcuterie à proximité.Elle est proposée à l’achat pour 330 000 €.Contactez Jerome RAOUX ((Numéro supprimé)) pour toute information sur cette maison. Donnez vie à vos projets immobiliers avec Maisons France Confort Nemours.Annonce proposée par un Agent Commercial Partenaire.
Saint-Mammès
TERRAIN ET MAISONSur ce terrain, nous vous proposons cette maison neuve : la Focus EVO City, conçue par Babeau-Seguin, constructeur offrant le meilleur rapport qualité/prix du marché. Découvrez l’innovant concept de la Focus EVO City, une maison qui combine les atouts d’une maison neuve clé en main avec la flexibilité et l’avantage tarifaire du prêt à finir ! Cette maison de 100 m², conçue pour évoluer, vous offre à sa livraison, une vaste pièce de vie lumineuse, 4 chambres et une salle de bain, avec des performances énergétiques exceptionnelles et un coût de construction abordable. Surtout, cette maison est conçue dès le départ pour évoluer.Une maison prête à s’adapterQue votre famille s’agrandisse ou que vous ayez besoin d’une chambre d’amis, la Focus EVO City se distingue en tant que première maison Babeau-Seguin prête à évoluer. Elle intègre une trémie pour accueillir un futur escalier, ainsi que des chevêtres de toit prévus pour les fenêtres de vos futurs combles aménagés. Notre plan détaillé vous guide dans l’aménagement de vos combles, faisant passer votre maison de 100 m² à une surface encore plus généreuse avec des espaces supplémentaires, transformant la Focus EVO City en véritable maison familiale !Une maison qui évoluera avec vos besoinsQue vous soyez un jeune couple désirant savourer la vie à deux avant l’arrivée d’un heureux événement, ou bien un célibataire passionné de bricolage souhaitant sa salle de projection privée, la Focus EVO City est la maison qui saura évoluer au rythme de votre vie et de vos aspirations !Idéale pour ce terrain et pour les petits budgets, cette Focus EVO City est aussi bien équipée que l’ensemble de nos modèles. Cette dernière est une maison neuve écologique répondant aux standards stricts de la RE2020. Économie à la construction, économie à la consommation !Les caractéristiques principales de cette maison incluent des combles aménageables, un excellent rapport qualité/prix, une conception évolutive et un cellier. Les options les
Le Châtelet-en-Brie
TERRAIN ET MAISONVENTE d’une maison de 6 pièces (89 m²) proche Châtelet-en-Brie – MAISON 6 PIÈCES NEUVEÀ côté du Transilien R (gare de Bois-le-Roi, 35 min de Paris), Maisons France Confort Nemours vous propose en vente proche Châtelet-en-Brie (77820), cette maison de 6 pièces de 89 m² et de 320 m² de terrain.Il s’agit d’une maison de 2 niveaux. Elle est composée de quatre chambres, d’une cuisine et d’une salle de bains. Cette maison est neuve.Il y a cinq établissements scolaires à moins de 10 minutes à pied, tout comme une structure d’accueil pour les tout-petits. Niveau transports, on trouve six gares à moins de 10 minutes en voiture. On trouve une bibliothèque, des commerces, une boulangerie, une boucherie-charcuterie et un bureau de poste à quelques minutes du logement.Elle est à vendre pour la somme de 285 000 €.Contactez notre agence (Jerome RAOUX : (Numéro supprimé)) pour toute information sur le bien. Faites de vos projets immobiliers une réalité avec Maisons France Confort Nemours.Annonce proposée par un Agent Commercial Partenaire.
Moret-Loing-et-Orvanne
TERRAIN ET MAISONBeau terrain a voir école et commerces a proximité . Idéal premier achat, cette maison de plain-pied fonctionnelle et lumineuse vous propose une vaste pièce de vie éclairée par sa grande baie vitrée avec cuisine ouverte, deux chambres avec rangement, salle de bains et cellier indépendant. Pour vous assurer un confort de vie et conformément à la RE2025, nous avons choisi un mode de chauffage par PAC + plancher chauffant, volets roulants électriques. Prix hors fourniture et pose : des appareils sanitaires (sauf système de chauffage et d'eau chaude sanitaire), du carrelage et de la faïence, des revêtements de sol dans les chambres. Hors décoration et aménagement intérieur et peinture. Hors raccordements, frais de notaire et dommage ouvrage. // Réf. : 1954-213550-CHL. Prix terrain : 78 000 €, hors frais d'agence à la charge de l'acquéreur. Ce terrain vous est proposé, par nos partenaires fonciers, dans le cadre d'un projet de construction avec nous. Les informations sur les risques auxquels ce bien est exposé sont disponibles sur le site Géorisques (www.georisques.gouv.fr). Prix maison : 106 019 €.
Le Châtelet-en-Brie
TERRAINVENTE d’un terrain de 400 m² au Châtelet-en-BriePROCHE D’ÉVRY-COURCOURONNESAu Châtelet-en-Brie (77820) à côté de la gare de Bois-le-Roi (Paris à 35 min par le Transilien R), donnez vie à la maison de vos rêves sur ce terrain de 400 m². Le terrain est proche des écoles et des commerces. Il y a cinq établissements scolaires à moins de 10 minutes à pied, tout comme une crèche. Niveau transports, on trouve six gares à moins de 10 minutes en voiture. On trouve une bibliothèque, des commerces, une boulangerie, une boucherie-charcuterie et un bureau de poste à proximité.Il est proposé à l’achat pour 123 000 €. Contactez Jerome RAOUX ((Numéro supprimé)) pour tout renseignement sur ce terrain ou sur les modalités de vente. Concrétisez vos projets immobiliers avec Maisons France Confort Nemours.Annonce proposée par un Agent Commercial Partenaire.
Moret-Loing-et-Orvanne
TERRAIN ET MAISONBeau terrain a voir école et commerces a proximité . Une maison élégante et bien pensée pour un quotidien confortable ! Avec ses espaces généreux et son agencement optimisé, cette maison est idéale pour une vie de famille harmonieuse. Au rez-de-chaussée, profitez d’un grand espace de vie ouvert, baigné de lumière, où le salon, la salle à manger et la cuisine se rejoignent en toute fluidité. Un cellier pratique, une salle d’eau et un WC indépendant viennent compléter cet espace. Une chambre au rez-de-chaussée offre une flexibilité précieuse. L’étage se compose de trois belles chambres, parfaites pour accueillir toute la famille. Une grande salle de bain, un second WC et un palier fonctionnel assurent un confort optimal. Une maison moderne, spacieuse et conçue pour répondre à toutes vos attentes !. Pour vous assurer un confort de vie optimal et en conformité avec la RE2025, nous avons opté pour un système de chauffage par pompe à chaleur (PAC) avec plancher chauffant au rez-de-chaussée et radiateurs à l’étage. Le logement est également équipé de volets roulants électriques. Prix hors fourniture et pose : des appareils sanitaires (sauf système de chauffage et d'eau chaude sanitaire), du carrelage et de la faïence, des revêtements de sol dans les chambres. Hors décoration et aménagement intérieur et peinture. Hors raccordements, frais de notaire et dommage ouvrage. // Réf. : 2507-213550-CHL. Prix terrain : 78 000 €, hors frais d'agence à la charge de l'acquéreur. Ce terrain vous est proposé, par nos partenaires fonciers, dans le cadre d'un projet de construction avec nous. Les informations sur les risques auxquels ce bien est exposé sont disponibles sur le site Géorisques (www.georisques.gouv.fr). Prix maison : 171 773 €.
L’actualité immobilière à Vulaines-sur-Seine
27/11/2023
02/11/2023
30/10/2023
20/10/2023
16/10/2023
16/10/2023