Maison à construire à Allouville-Bellefosse (76190)
Images
Description
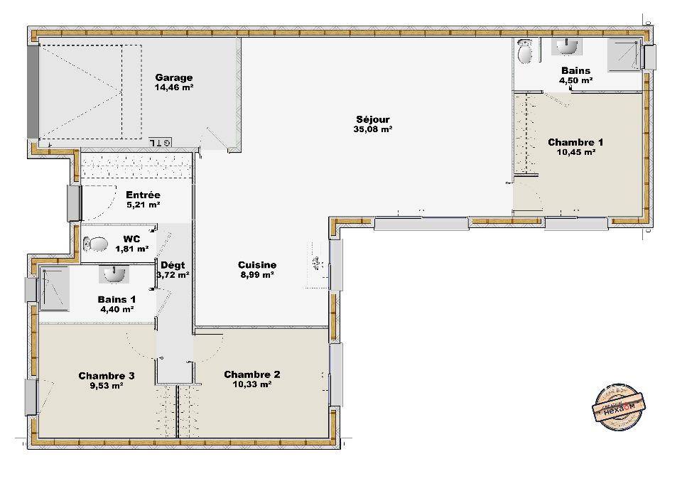
Allouville-Bellefosse : maison de 4 pièces (94 m²) à construire.
IDÉALEMENT SITUÉE - MAISON 4 PIÈCES NEUVE
À 24 km de la Manche, idéalement située dans Allouville-Bellefosse (76190), nous sommes ravis de vous présenter cette maison de 4 pièces de plain-pied de 94 m².
Conçue de plain-pied, elle inclut trois chambres, une cuisine et deux salles de bains. Cette maison est neuve.
Le terrain du bien est de 513 m².
Ce bien est situé dans un secteur recherché. Il y a l'École Primaire Nicolas Vanier à moins de 10 minutes à pied. Niveau transports en commun, on trouve deux gares (Foucart-Alvimare et Yvetot) à moins de 10 minutes en voiture. Les autoroutes A29 et A150 sont accessibles à moins de 10 km. Il y a un commerce, une boulangerie et une boucherie-charcuterie à proximité.
Son prix de vente est de 269 200 €.
N'hésitez pas à prendre contact avec notre agence (LENFANT Sébastien : (Numéro supprimé)) pour toute question sur la maison. Extraco construction rénovation Yvetot vous accompagne dans tous vos projets immobiliers et à toutes les étapes de votre projet.
Logement susceptibles de vous intéresser
Nous vous proposons de découvrir aussi cette sélection de logements situés à moins de 10km de Allouville-Bellefosse et qui seraient susceptibles de vous intéresser.
Valliquerville
TERRAINValliquerville : terrain de 400 m² à vendreIDÉALEMENT SITUÉÀ 26 km de la Manche à Valliquerville (76190), terrain de 400 m². Il se situe dans un quartier attractif. L’École Primaire Jehan le Povremoyne se trouve à moins de 10 minutes à pied. Côté transports en commun, il y a deux gares (Yvetot et Foucart-Alvimare) à moins de 10 minutes en voiture. Les autoroutes A29 et A150 sont accessibles à moins de 9 km. On trouve un tennis dans les environs.Ce terrain est proposé à l’achat pour 68 000 €. Contactez Sébastien LENFANT (tél : (Numéro supprimé)) pour obtenir de plus amples informations sur ce terrain, sur les démarches à suivre ou sur les modalités de vente. Extraco construction rénovation Yvetot vous accompagne à toutes les étapes de l’achat et dans tous vos projets immobiliers.
Valliquerville
TERRAIN ET MAISONA construire : maison de 3 pièces (65 m²) à ValliquervilleIDÉALEMENT SITUÉE – MAISON 3 PIÈCES NEUVESituée à 26 km de la Manche, nous vous présentons cette maison de 3 pièces de plain-pied de 65 m², idéalement située dans Valliquerville (76190). Conçue de plain-pied, elle comporte deux chambres, une cuisine et une salle de bains.Le terrain de cette maison est de 400 m².La maison est neuve.Ce bien se situe dans un secteur attractif. On trouve l’École Primaire Jehan le Povremoyne à moins de 10 minutes à pied. Côté transports, il y a deux gares (Yvetot et Foucart-Alvimare) à moins de 10 minutes en voiture. Les autoroutes A29 et A150 sont accessibles à moins de 9 km. On trouve un tennis à proximité.Il est à vendre pour la somme de 214 630 €.Contactez notre agence (LENFANT Sébastien : 06-66-42-5Extraco construction rénovation Yvetot est là pour vous accompagner dans tous vos projets immobiliers.
Valliquerville
TERRAIN ET MAISONValliquerville : maison de 4 pièces (71 m²) à construire.IDÉALEMENT SITUÉE – MAISON 4 PIÈCES NEUVELocalisée à 26 km de la Manche, nous sommes ravis de vous proposer cette maison de 4 pièces de plain-pied de 71 m² et de 400 m² de terrain idéalement située dans Valliquerville (76190).Son intérieur se divise en trois chambres, une cuisine et une salle de bains. Cette maison est neuve.Cette maison se trouve dans un quartier prisé. Il y a l’École Primaire Jehan le Povremoyne à moins de 10 minutes à pied. Niveau transports, on trouve les gares Yvetot et Foucart-Alvimare à moins de 10 minutes en voiture. Les autoroutes A29 et A150 sont accessibles à moins de 9 km. Il y a un tennis dans les environs.Son prix de vente est de 205 680 €.N’hésitez pas à prendre contact avec Sébastien LENFANT (tél : (Numéro supprimé)) pour obtenir de plus amples renseignements sur la maison ou sur les démarches à suivre.
Valliquerville
TERRAIN ET MAISONA construire: maison T4 (81 m²) à ValliquervilleIDÉALEMENT SITUÉE – MAISON 4 PIÈCES NEUVEÀ 26 km de la Manche, notre agence Extraco construction rénovation Yvetot est ravie de vous présenter en vente, idéalement située dans Valliquerville (76190), cette maison de 4 pièces de 81 m² et de 400 m² de terrain. Elle dispose de trois chambres, d’une cuisine et d’une salle de bains.Il s’agit d’une maison de 2 niveaux. Elle est neuve.Cette maison se situe dans un secteur convoité. L’École Primaire Jehan le Povremoyne se trouve à moins de 10 minutes à pied. Niveau transports en commun, il y a les gares Yvetot et Foucart-Alvimare à moins de 10 minutes en voiture. Les autoroutes A29 et A150 sont accessibles à moins de 9 km. On trouve un tennis à proximité.Elle est proposée à l’achat pour 231 780 €.Prenez contact avec Sébastien LENFANT (tél : (Numéro supprimé)) pour toute question sur la maison ou sur les modalités de vente.
Valliquerville
TERRAIN ET MAISONA construire: maison de 4 pièces (88 m²) à ValliquervilleIDÉALEMENT SITUÉE – MAISON 4 PIÈCES NEUVEÀ 26 km de la Manche, idéalement située dans Valliquerville (76190), votre agence Extraco construction rénovation Yvetot est ravie de vous présenter cette maison de 4 pièces de 88 m².C’est une maison de 2 niveaux. Elle offre trois chambres, une cuisine et une salle de bains. La maison est neuve.Le terrain du bien est de 400 m².Cette maison se situe dans un secteur attractif. L’École Primaire Jehan le Povremoyne est implantée à moins de 10 minutes à pied. Niveau transports en commun, il y a deux gares (Yvetot et Foucart-Alvimare) à moins de 10 minutes en voiture. Les autoroutes A29 et A150 sont accessibles à moins de 9 km. On trouve un tennis à proximité.Elle est à vendre pour la somme de 243 600 €.N’hésitez pas à prendre contact avec notre agence (Sébastien LENFANT : (Numéro supprimé)) pour plus de renseignements sur la propriété ou sur les démarches à suivre. Extraco construction rénovation Yvetot est là pour vous accompagner dans tous vos projets immobiliers.
Valliquerville
TERRAINÀ Valliquerville, terrain constructible à acheter. Sur la commune de Valliquerville, opportunité à saisir avec ce terrain.Vous pourrez exploiter une surface de 772m2 pour créer votre future maison.N’hésitez pas à contacter Justine LEROY ((Numéro supprimé)) des Maisons Extraco Les Essarts si vous avez des questions. Premiers échanges par SMS ou mail possible.
Bolleville
TERRAINÀ Bolleville, terrain constructible à acheter. Sur la commune de Bolleville, opportunité à saisir avec ce terrain.Vous pourrez exploiter une surface de 748m2 pour créer votre future maison.N’hésitez pas à contacter Justine LEROY ((Numéro supprimé)) des Maisons Extraco Les Essarts si vous avez des questions. Premiers échanges par SMS ou mail possible.
Saint-Arnoult
TERRAINÀ Saint-Arnoult, terrain constructible à acheter. Sur la commune de Saint-Arnoult, opportunité à saisir avec ce terrain.Vous pourrez exploiter une surface de 500m2 pour créer votre future maison.N’hésitez pas à contacter Justine LEROY ((Numéro supprimé)) des Maisons Extraco Les Essarts si vous avez des questions. Premiers échanges par SMS ou mail possible.
Yvetot
TERRAINÀ Yvetot, terrain constructible à acheter. Sur la commune de Yvetot, opportunité à saisir avec ce terrain.Vous pourrez exploiter une surface de 1066m2 pour créer votre future maison.N’hésitez pas à contacter Justine LEROY ((Numéro supprimé)) des Maisons Extraco Les Essarts si vous avez des questions. Premiers échanges par SMS ou mail possible.
L’actualité immobilière à Allouville-Bellefosse
27/11/2023
02/11/2023
30/10/2023
20/10/2023
16/10/2023
16/10/2023