Maison à construire à Bois-l'Évêque (76160)
Images
Description
Bois-l'Évêque : maison de 8 pièces (200 m²) en vente
MAISON 8 PIÈCES NEUVE - PROCHE DE ROUEN
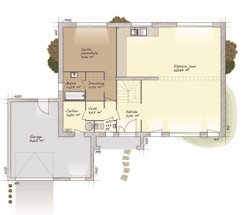
En vente : localisée à 12 km de Rouen, laissez vous charmer par cette maison de 8 pièces de 200 m² et de 600 m² de terrain à Bois-l'Évêque (76160). Son intérieur inclut cinq chambres, une cuisine et deux salles de bains.
Il s'agit d'une maison de 2 niveaux. Elle est neuve.
Il y a une école élémentaire dans le quartier. Niveau transports en commun, on trouve les gares Saint-Martin-du-Vivier et Morgny-la-Pommeraye à moins de 10 minutes en voiture. L'autoroute A28 et la nationale N28 sont accessibles à moins de 10 km. Il y a un commerce dans les environs.
Son prix de vente est de 448 000 €.
Contactez Sébastien MASSON (tél : (Numéro supprimé)) pour plus de renseignements sur cette maison, sur les démarches à suivre ou sur les modalités de vente.
Annonce proposée par un Agent Commercial Partenaire.
Logement susceptibles de vous intéresser
Nous vous proposons de découvrir aussi cette sélection de logements situés à moins de 10km de Bois-l'Évêque et qui seraient susceptibles de vous intéresser.
Fresne-le-Plan
TERRAIN ET MAISONMaison idéalement située à FRESNE LE PLAN sur un terrain de 650 m². À proximité, dans le bourg : école, boulangerie, parc pour enfants, bus vert. Cette maison contemporaine bénéficie d’un agencement agréable : – Salon/séjour avec cuisine ouverte de 45 m², avec une grande baie coulissante de 2,20 m en alu, – cellier, – 3 chambres avec placards, – suite parentale avec dressing et douche à l’italienne, – salle de bains avec baignoire et douche, – garage de 15 m². Isolation renforcée avec système de chauffage très économique par pompe à chaleur. Maison certifiée RE20. DPE : A / GSE : B.Venez nous rencontrer et visiter notre showroom : Maisons Extraco – 3 Rue de la Scierie – 76530 LES ESSARTS Personnalisée sur les secteurs de votre choix. Étude gratuite auprès de votre conseiller : Alexis RINGOT ((Numéro supprimé) / a.ringot at extraco.fr). (Premier échange par SMS possible)
Fresne-le-Plan
TERRAIN ET MAISONMaison idéalement située à FRESNE LE PLAN sur un terrain de 650 m². À proximité, dans le bourg : école, boulangerie, parc pour enfants, bus vert. Cette maison contemporaine bénéficie d’un agencement agréable : – Salon/séjour avec cuisine ouverte de 45 m², avec une grande baie coulissante de 2,20 m en alu, – cellier, – 3 chambres avec placards, – suite parentale avec dressing et douche à l’italienne, – salle de bains avec baignoire et douche, – garage de 15 m². Isolation renforcée avec système de chauffage très économique par pompe à chaleur. Maison certifiée RE20. DPE : A / GSE : B.Venez nous rencontrer et visiter notre showroom : Maisons Extraco – 3 Rue de la Scierie – 76530 LES ESSARTS Personnalisée sur les secteurs de votre choix. Étude gratuite auprès de votre conseiller : Alexis RINGOT ((Numéro supprimé) / a.ringot at extraco.fr). (Premier échange par SMS possible)
Fresne-le-Plan
TERRAINÀ FRESNE LE PLAN, terrain constructible à acheter.Sur la commune de FRESNE LE PLAN, opportunité à saisir avec ce terrain. Vous pourrez exploiter une surface de 600 m2 pour créer votre future maison. N’hésitez pas à contacter Alexis RINGOT ((Numéro supprimé)) des Maisons Extraco Les Essarts si vous avez des questions. Premiers échanges par SMS ou mail possible.RINGOT Alexis(Numéro supprimé)a.ringot at extraco.fr
Fresne-le-Plan
TERRAIN ET MAISONMaison idéalement située à FRESNE LE PLAN sur un terrain de 650 m². À proximité, dans le bourg : école, boulangerie, parc pour enfants, bus vert. Cette maison contemporaine bénéficie d’un agencement agréable : – Salon/séjour avec cuisine ouverte de 45 m², avec une grande baie coulissante de 2,20 m en alu, – cellier, – 3 chambres avec placards, – suite parentale avec dressing et douche à l’italienne, – salle de bains avec baignoire et douche, – garage de 15 m². Isolation renforcée avec système de chauffage très économique par pompe à chaleur. Maison certifiée RE20. DPE : A / GSE : B.Venez nous rencontrer et visiter notre showroom : Maisons Extraco – 3 Rue de la Scierie – 76530 LES ESSARTS Personnalisée sur les secteurs de votre choix. Étude gratuite auprès de votre conseiller : Alexis RINGOT ((Numéro supprimé) / a.ringot at extraco.fr). (Premier échange par SMS possible)
Fresne-le-Plan
TERRAIN ET MAISONMaison idéalement située à FRESNE LE PLAN sur un terrain de 650 m². À proximité, dans le bourg : école, boulangerie, parc pour enfants, bus vert. Cette maison contemporaine bénéficie d’un agencement agréable : – Salon/séjour avec cuisine ouverte de 45 m², avec une grande baie coulissante de 2,20 m en alu, – cellier, – 3 chambres avec placards, – suite parentale avec dressing et douche à l’italienne, – salle de bains avec baignoire et douche, – garage de 15 m². Isolation renforcée avec système de chauffage très économique par pompe à chaleur. Maison certifiée RE20. DPE : A / GSE : B.Venez nous rencontrer et visiter notre showroom : Maisons Extraco – 3 Rue de la Scierie – 76530 LES ESSARTS Personnalisée sur les secteurs de votre choix. Étude gratuite auprès de votre conseiller : Alexis RINGOT ((Numéro supprimé) / a.ringot at extraco.fr). (Premier échange par SMS possible)
Fresne-le-Plan
TERRAIN ET MAISONMaison idéalement située à FRESNE LE PLAN sur un terrain de 650 m². À proximité, dans le bourg : école, boulangerie, parc pour enfants, bus vert. Cette maison contemporaine bénéficie d’un agencement agréable : – Salon/séjour avec cuisine ouverte de 45 m², avec une grande baie coulissante de 2,20 m en alu, – cellier, – 3 chambres avec placards, – suite parentale avec dressing et douche à l’italienne, – salle de bains avec baignoire et douche, – garage de 15 m². Isolation renforcée avec système de chauffage très économique par pompe à chaleur. Maison certifiée RE20. DPE : A / GSE : B.Venez nous rencontrer et visiter notre showroom : Maisons Extraco – 3 Rue de la Scierie – 76530 LES ESSARTS Personnalisée sur les secteurs de votre choix. Étude gratuite auprès de votre conseiller : Alexis RINGOT ((Numéro supprimé) / a.ringot at extraco.fr). (Premier échange par SMS possible)
Fresne-le-Plan
TERRAIN ET MAISONMaison idéalement située à FRESNE LE PLAN sur un terrain de 650 m². À proximité, dans le bourg : école, boulangerie, parc pour enfants, bus vert. Cette maison contemporaine bénéficie d’un agencement agréable : – Salon/séjour avec cuisine ouverte de 45 m², avec une grande baie coulissante de 2,20 m en alu, – cellier, – 3 chambres avec placards, – suite parentale avec dressing et douche à l’italienne, – salle de bains avec baignoire et douche, – garage de 15 m². Isolation renforcée avec système de chauffage très économique par pompe à chaleur. Maison certifiée RE20. DPE : A / GSE : B.Venez nous rencontrer et visiter notre showroom : Maisons Extraco – 3 Rue de la Scierie – 76530 LES ESSARTS Personnalisée sur les secteurs de votre choix. Étude gratuite auprès de votre conseiller : Alexis RINGOT ((Numéro supprimé) / a.ringot at extraco.fr). (Premier échange par SMS possible)
Fresne-le-Plan
TERRAIN ET MAISONMaison idéalement située à FRESNE LE PLAN sur un terrain de 650 m². À proximité, dans le bourg : école, boulangerie, parc pour enfants, bus vert. Cette maison contemporaine bénéficie d’un agencement agréable : – Salon/séjour avec cuisine ouverte de 45 m², avec une grande baie coulissante de 2,20 m en alu, – cellier, – 3 chambres avec placards, – suite parentale avec dressing et douche à l’italienne, – salle de bains avec baignoire et douche, – garage de 15 m². Isolation renforcée avec système de chauffage très économique par pompe à chaleur. Maison certifiée RE20. DPE : A / GSE : B.Venez nous rencontrer et visiter notre showroom : Maisons Extraco – 3 Rue de la Scierie – 76530 LES ESSARTS Personnalisée sur les secteurs de votre choix. Étude gratuite auprès de votre conseiller : Alexis RINGOT ((Numéro supprimé) / a.ringot at extraco.fr). (Premier échange par SMS possible)
Fresne-le-Plan
TERRAIN ET MAISONMaison idéalement située à FRESNE LE PLAN sur un terrain de 650 m². À proximité, dans le bourg : école, boulangerie, parc pour enfants, bus vert. Cette maison contemporaine bénéficie d’un agencement agréable : – Salon/séjour avec cuisine ouverte de 45 m², avec une grande baie coulissante de 2,20 m en alu, – cellier, – 3 chambres avec placards, – suite parentale avec dressing et douche à l’italienne, – salle de bains avec baignoire et douche, – garage de 15 m². Isolation renforcée avec système de chauffage très économique par pompe à chaleur. Maison certifiée RE20. DPE : A / GSE : B.Venez nous rencontrer et visiter notre showroom : Maisons Extraco – 3 Rue de la Scierie – 76530 LES ESSARTS Personnalisée sur les secteurs de votre choix. Étude gratuite auprès de votre conseiller : Alexis RINGOT ((Numéro supprimé) / a.ringot at extraco.fr). (Premier échange par SMS possible)
L’actualité immobilière à Bois-l'Évêque
27/11/2023
02/11/2023
30/10/2023
20/10/2023
16/10/2023
16/10/2023