Maison à construire à Bolbec (76210)
Images
Description
Maison idéalement située à Bolbec sur un terrain de 600 m².
À proximité, dans le bourg : école, boulangerie, parc pour enfants, bus vert.
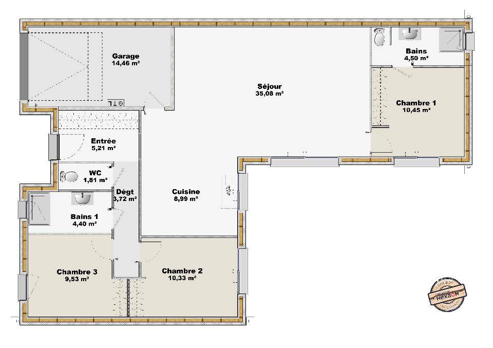
Cette maison contemporaine bénéficie d'un agencement agréable : - Salon/séjour avec cuisine ouverte de 45 m², avec une grande baie coulissante de 2,20 m en alu, - cellier, - 3 chambres avec placards, - suite parentale avec dressing et douche à l'italienne, - salle de bains avec baignoire et douche, - garage de 15 m².
Isolation renforcée avec système de chauffage très économique par pompe à chaleur. Maison certifiée RE20. DPE : A / GSE : B.
Venez nous rencontrer et visiter notre showroom : Maisons Extraco - 3 Rue de la Scierie - 76530 LES ESSARTS
Personnalisée sur les secteurs de votre choix. Étude gratuite auprès de votre conseillère : Justine LEROY ((Numéro supprimé) / j.leroy at extraco.fr).
(Premier échange par SMS possible)
Logement susceptibles de vous intéresser
Nous vous proposons de découvrir aussi cette sélection de logements situés à moins de 10km de Bolbec et qui seraient susceptibles de vous intéresser.
La Frénaye
TERRAINÀ La Frenaye, terrain constructible à acheter. Sur la commune de La Frenaye, opportunité à saisir avec ce terrain.Vous pourrez exploiter une surface de 461m2 pour créer votre future maison.N’hésitez pas à contacter Justine LEROY ((Numéro supprimé)) des Maisons Extraco Les Essarts si vous avez des questions. Premiers échanges par SMS ou mail possible.
Bolleville
TERRAINÀ Bolleville, terrain constructible à acheter. Sur la commune de Bolleville, opportunité à saisir avec ce terrain.Vous pourrez exploiter une surface de 748m2 pour créer votre future maison.N’hésitez pas à contacter Justine LEROY ((Numéro supprimé)) des Maisons Extraco Les Essarts si vous avez des questions. Premiers échanges par SMS ou mail possible.
La Frénaye
TERRAIN ET MAISONMaison idéalement située à La Frenaye sur un terrain de 461 m². À proximité, dans le bourg : école, boulangerie, parc pour enfants, bus vert.Cette maison contemporaine bénéficie d’un agencement agréable : – Salon/séjour avec cuisine ouverte de 45 m², avec une grande baie coulissante de 2,20 m en alu, – cellier, – 3 chambres avec placards, – suite parentale avec dressing et douche à l’italienne, – salle de bains avec baignoire et douche, – garage de 15 m².Isolation renforcée avec système de chauffage très économique par pompe à chaleur. Maison certifiée RE20. DPE : A / GSE : B.Venez nous rencontrer et visiter notre showroom : Maisons Extraco – 3 Rue de la Scierie – 76530 LES ESSARTSPersonnalisée sur les secteurs de votre choix. Étude gratuite auprès de votre conseillère : Justine LEROY ((Numéro supprimé) / j.leroy at extraco.fr).(Premier échange par SMS possible)
La Frénaye
TERRAIN ET MAISONMaison idéalement située à La Frenaye sur un terrain de 461 m². À proximité, dans le bourg : école, boulangerie, parc pour enfants, bus vert.Cette maison contemporaine bénéficie d’un agencement agréable : – Salon/séjour avec cuisine ouverte de 45 m², avec une grande baie coulissante de 2,20 m en alu, – cellier, – 3 chambres avec placards, – suite parentale avec dressing et douche à l’italienne, – salle de bains avec baignoire et douche, – garage de 15 m².Isolation renforcée avec système de chauffage très économique par pompe à chaleur. Maison certifiée RE20. DPE : A / GSE : B.Venez nous rencontrer et visiter notre showroom : Maisons Extraco – 3 Rue de la Scierie – 76530 LES ESSARTSPersonnalisée sur les secteurs de votre choix. Étude gratuite auprès de votre conseillère : Justine LEROY ((Numéro supprimé) / j.leroy at extraco.fr).(Premier échange par SMS possible)
La Frénaye
TERRAIN ET MAISONMaison idéalement située à La Frenaye sur un terrain de 461 m². À proximité, dans le bourg : école, boulangerie, parc pour enfants, bus vert.Cette maison contemporaine bénéficie d’un agencement agréable : – Salon/séjour avec cuisine ouverte de 45 m², avec une grande baie coulissante de 2,20 m en alu, – cellier, – 3 chambres avec placards, – suite parentale avec dressing et douche à l’italienne, – salle de bains avec baignoire et douche, – garage de 15 m².Isolation renforcée avec système de chauffage très économique par pompe à chaleur. Maison certifiée RE20. DPE : A / GSE : B.Venez nous rencontrer et visiter notre showroom : Maisons Extraco – 3 Rue de la Scierie – 76530 LES ESSARTSPersonnalisée sur les secteurs de votre choix. Étude gratuite auprès de votre conseillère : Justine LEROY ((Numéro supprimé) / j.leroy at extraco.fr).(Premier échange par SMS possible)
La Frénaye
TERRAIN ET MAISONMaison idéalement située à La Frenaye sur un terrain de 461 m². À proximité, dans le bourg : école, boulangerie, parc pour enfants, bus vert.Cette maison contemporaine bénéficie d’un agencement agréable : – Salon/séjour avec cuisine ouverte de 45 m², avec une grande baie coulissante de 2,20 m en alu, – cellier, – 3 chambres avec placards, – suite parentale avec dressing et douche à l’italienne, – salle de bains avec baignoire et douche, – garage de 15 m².Isolation renforcée avec système de chauffage très économique par pompe à chaleur. Maison certifiée RE20. DPE : A / GSE : B.Venez nous rencontrer et visiter notre showroom : Maisons Extraco – 3 Rue de la Scierie – 76530 LES ESSARTSPersonnalisée sur les secteurs de votre choix. Étude gratuite auprès de votre conseillère : Justine LEROY ((Numéro supprimé) / j.leroy at extraco.fr).(Premier échange par SMS possible)
Bolleville
TERRAIN ET MAISONMaison idéalement située à Bolleville sur un terrain de 748 m². À proximité, dans le bourg : école, boulangerie, parc pour enfants, bus vert.Cette maison contemporaine bénéficie d’un agencement agréable : – Salon/séjour avec cuisine ouverte de 45 m², avec une grande baie coulissante de 2,20 m en alu, – cellier, – 3 chambres avec placards, – suite parentale avec dressing et douche à l’italienne, – salle de bains avec baignoire et douche, – garage de 15 m².Isolation renforcée avec système de chauffage très économique par pompe à chaleur. Maison certifiée RE20. DPE : A / GSE : B.Venez nous rencontrer et visiter notre showroom : Maisons Extraco – 3 Rue de la Scierie – 76530 LES ESSARTSPersonnalisée sur les secteurs de votre choix. Étude gratuite auprès de votre conseillère : Justine LEROY ((Numéro supprimé) / j.leroy at extraco.fr).(Premier échange par SMS possible)
Bolleville
TERRAIN ET MAISONMaison idéalement située à Bolleville sur un terrain de 748 m². À proximité, dans le bourg : école, boulangerie, parc pour enfants, bus vert.Cette maison contemporaine bénéficie d’un agencement agréable : – Salon/séjour avec cuisine ouverte de 45 m², avec une grande baie coulissante de 2,20 m en alu, – cellier, – 3 chambres avec placards, – suite parentale avec dressing et douche à l’italienne, – salle de bains avec baignoire et douche, – garage de 15 m².Isolation renforcée avec système de chauffage très économique par pompe à chaleur. Maison certifiée RE20. DPE : A / GSE : B.Venez nous rencontrer et visiter notre showroom : Maisons Extraco – 3 Rue de la Scierie – 76530 LES ESSARTSPersonnalisée sur les secteurs de votre choix. Étude gratuite auprès de votre conseillère : Justine LEROY ((Numéro supprimé) / j.leroy at extraco.fr).(Premier échange par SMS possible)
Bolleville
TERRAIN ET MAISONMaison idéalement située à Bolleville sur un terrain de 748 m². À proximité, dans le bourg : école, boulangerie, parc pour enfants, bus vert.Cette maison contemporaine bénéficie d’un agencement agréable : – Salon/séjour avec cuisine ouverte de 45 m², avec une grande baie coulissante de 2,20 m en alu, – cellier, – 3 chambres avec placards, – suite parentale avec dressing et douche à l’italienne, – salle de bains avec baignoire et douche, – garage de 15 m².Isolation renforcée avec système de chauffage très économique par pompe à chaleur. Maison certifiée RE20. DPE : A / GSE : B.Venez nous rencontrer et visiter notre showroom : Maisons Extraco – 3 Rue de la Scierie – 76530 LES ESSARTSPersonnalisée sur les secteurs de votre choix. Étude gratuite auprès de votre conseillère : Justine LEROY ((Numéro supprimé) / j.leroy at extraco.fr).(Premier échange par SMS possible)
L’actualité immobilière à Bolbec
27/11/2023
02/11/2023
30/10/2023
20/10/2023
16/10/2023
16/10/2023