Images
Description
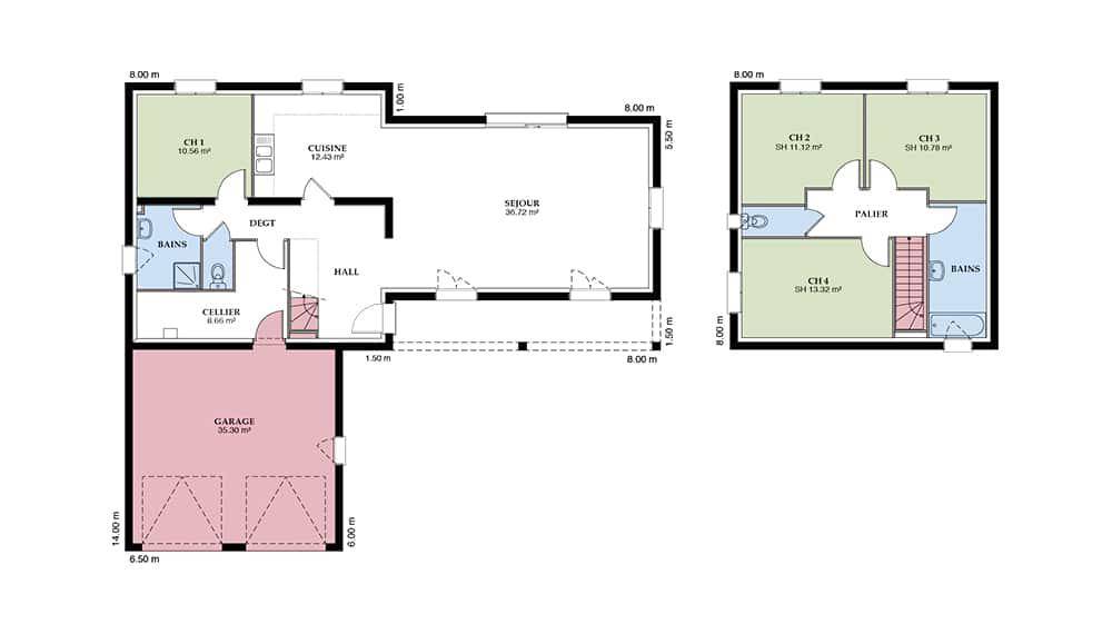
Nous vous proposons cette maison neuve, baptisée ""Barentine"", un modèle de résidence qui allie élégance et fonctionnalité, conçu pour répondre aux attentes des familles modernes. Avec une surface généreuse de 135 m², cette maison offre un espace de vie confortable et bien pensé, réparti en 4 chambres et 4 pièces principales, idéal pour accueillir une famille désireuse de confort et de bien-être.
La Barentine se distingue par son plan en L, optimisant l'espace et offrant une séparation naturelle entre les espaces de vie et l'espace nuit, pour un quotidien harmonieux. La présence d'une tour centrale ajoute un cachet inimitable à l'ensemble, faisant de cette maison un lieu unique où il fait bon vivre.
L'intégration d'un garage offre non seulement un espace de stationnement sécurisé mais aussi un espace de rangement supplémentaire, essentiel pour une vie de famille organisée. De plus, la maison dispose d'une deuxième salle de bains, garantissant confort et intimité pour tous les membres de la famille.
Conforme à la norme RE2020, la Barentine est une maison basse consommation, conçue avec une attention particulière portée à l'efficacité énergétique et à l'impact environnemental. Ce modèle intègre des options très demandées telles que des menuiseries en aluminium et un système de domotique avancé, offrant ainsi un confort de vie inégalé tout en maîtrisant votre consommation d'énergie.
L'extérieur de la maison peut être personnalisé avec un enduit bicolore, ajoutant une touche d'élégance et de personnalité à votre façade. La toiture, disponible en 2 ou 4 pans, complète le design provençal de cette demeure, faisant de la Barentine une maison prestigieuse et attachante qui saura vous séduire.
Choisir la Barentine, c'est opter pour une maison neuve, moderne et écologique, prête à accueillir votre famille dans les meilleures conditions. Ne manquez pas l'opportunité de construire la maison de vos rêves, une maison qui allie beauté architecturale, confort de vie et respec
Logement susceptibles de vous intéresser
Nous vous proposons de découvrir aussi cette sélection de logements situés à moins de 10km de Bornambusc et qui seraient susceptibles de vous intéresser.
Bornambusc
TERRAINVENTE : terrain de 660 m² à BornambuscIDÉALEMENT SITUÉ – PROCHE DU HAVREÀ Bornambusc (76110) en vente à 14 km de la Manche et à deux pas du Havre, découvrez ce terrain de 660 m². Ce terrain, avec vue sur espace vert, est orienté au sud-ouest. Dans un secteur prisé, ce terrain idéalement situé est proche des écoles et des commerces. Côté transports en commun, on trouve les gares Virville-Manneville, Bréauté-Beuzeville et Étainhus-Saint-Romain à moins de 10 minutes en voiture. L’autoroute A29 est accessible à 8 km. Il y a une bibliothèque à quelques minutes à peine.Ce terrain est à vendre pour la somme de 72 500 €. Prenez contact avec notre agence (Lindsay COLLAY : (Numéro supprimé)) pour tout renseignement sur le terrain, sur les démarches à suivre ou sur les modalités de vente.
Bornambusc
TERRAIN ET MAISONA construire une maison T5 (91 m²) à BornambuscIDÉALEMENT SITUÉE – MAISON 5 PIÈCES NEUVEA construire : localisée à 14 km de la Manche et à 21 km du Havre, idéalement située dans Bornambusc (76110), nous vous proposons cette maison de 5 pièces de 91 m².Cette maison comporte 2 niveaux. Son intérieur inclut quatre chambres, une cuisine et une salle de bains. Cette maison est neuve.Le terrain du bien est de 660 m².La maison se trouve dans un quartier convoité. Côté transports en commun, il y a les gares Virville-Manneville, Bréauté-Beuzeville et Étainhus-Saint-Romain à moins de 10 minutes en voiture. Il y a un accès à l’autoroute A29 à 8 km. On trouve une bibliothèque à proximité du logement.Son prix de vente est de 221 277 €.Prenez contact avec notre agence (COLLAY Lindsay : (Numéro supprimé)) pour toute question sur la maison ou sur les démarches à suivre.
Beuzeville-la-Grenier
TERRAINBeuzeville-la-Grenier : terrain de 549 m² à vendrePROCHE DU HAVREÀ Beuzeville-la-Grenier (76210) à 13 km de la Manche et à quelques kilomètres du Havre, venez découvrir ce terrain de 549 m². L’École Élémentaire Lucienne Julien et l’École Maternelle Pierre Julien sont implantées à moins de 10 minutes à pied. Niveau transports, il y a quatre gares à moins de 10 minutes en voiture. On trouve un accès à l’autoroute A29 à 2 km. On trouve un tennis, une boulangerie et deux boucheries-charcuteries à proximité.Il est à vendre pour la somme de 69 000 €. Prenez contact avec Barbara PELLETER ((Numéro supprimé)) pour toute question sur ce terrain.
Beuzeville-la-Grenier
TERRAINVENTE : terrain de 571 m² à Beuzeville-la-GrenierPROCHE DU HAVREGrand terrain en vente à 13 km de la Manche et à quelques kilomètres du Havre. De 571 m², ce terrain se situe dans Beuzeville-la-Grenier (76210). Il y a l’École Élémentaire Lucienne Julien et l’École Maternelle Pierre Julien à moins de 10 minutes à pied. Niveau transports, on trouve quatre gares à moins de 10 minutes en voiture. L’autoroute A29 est accessible à 2 km. Il y a un tennis, une boulangerie et deux boucheries-charcuteries dans les environs.Il est à vendre pour la somme de 74 000 €. N’hésitez pas à prendre contact avec Barbara PELLETER (tél : (Numéro supprimé)) pour toute question sur ce terrain.
Beuzeville-la-Grenier
TERRAIN ET MAISONVENTE d’une maison de 4 pièces (82 m²) à Beuzeville-la-GrenierMAISON 4 PIÈCES NEUVE – PROCHE DU HAVREÀ vendre à 13 km de la Manche et à quelques kilomètres du Havre, nous vous présentons cette maison de 4 pièces de plain-pied de 82 m² à Beuzeville-la-Grenier (76210).Son intérieur dispose de trois chambres, d’une cuisine et d’une salle de bains. La maison est neuve.Le terrain de la propriété est de 549 m².Il y a l’École Élémentaire Lucienne Julien et l’École Maternelle Pierre Julien à moins de 10 minutes à pied. Côté transports en commun, on trouve quatre gares à moins de 10 minutes en voiture. L’autoroute A29 est accessible à 2 km. Il y a un tennis, une boulangerie et deux boucheries-charcuteries dans les environs.Son prix de vente est de 242 000 €.Contactez notre agence (PELLETER Barbara : (Numéro supprimé)) pour toute question sur cette maison ou sur les démarches à suivre. Faites de vos projets immobiliers une réalité avec Les Maisons Extraco Le Havre.
Beuzeville-la-Grenier
TERRAIN ET MAISONVENTE : maison de 4 pièces (81 m²) à Beuzeville-la-GrenierPROCHE DU HAVRE – MAISON 4 PIÈCES NEUVEÀ vendre à 13 km de la Manche et à quelques kilomètres du Havre, Les Maisons Extraco Le Havre vous présente cette maison de 4 pièces de 81 m² à Beuzeville-la-Grenier (76210).Cette maison compte 2 niveaux. Son intérieur propose deux chambres, une cuisine et une salle de bains. Cette maison est neuve.Le terrain de la propriété s’étend sur 549 m².Il y a l’École Élémentaire Lucienne Julien et l’École Maternelle Pierre Julien à moins de 10 minutes à pied. Niveau transports en commun, on trouve quatre gares à moins de 10 minutes en voiture. Il y a un accès à l’autoroute A29 à 2 km. Il y a un tennis, une boulangerie et deux boucheries-charcuteries à proximité de la maison.Elle est à vendre pour la somme de 241 500 €.Prenez contact avec Barbara PELLETER ((Numéro supprimé)) pour plus de renseignements sur la maison, sur les modalités de vente ou sur les démarches à suivre. Donnez vie à vos projets immobiliers avec Les Maisons Extraco Le Havre.
Beuzeville-la-Grenier
TERRAIN ET MAISONMaison T4 (84 m²) en vente à Beuzeville-la-GrenierPROCHE DU HAVRE – MAISON 4 PIÈCES NEUVEEn vente à 13 km de la Manche et à deux pas du Havre, venez découvrir cette maison de 4 pièces de plain-pied de 84 m² et de 549 m² de terrain à Beuzeville-la-Grenier (76210).Son intérieur dispose de trois chambres, d’une cuisine et d’une salle de bains. La maison est neuve.On trouve l’École Élémentaire Lucienne Julien et l’École Maternelle Pierre Julien à moins de 10 minutes à pied. Niveau transports, il y a quatre gares à moins de 10 minutes en voiture. L’autoroute A29 est accessible à 2 km. On trouve un tennis, une boulangerie et deux boucheries-charcuteries à quelques minutes de la maison.Son prix de vente est de 242 500 €.Contactez Barbara PELLETER (tél : (Numéro supprimé)) pour toute information sur cette maison ou sur les modalités de vente.
Beuzeville-la-Grenier
TERRAIN ET MAISONVENTE d’une maison de 4 pièces (75 m²) à Beuzeville-la-GrenierMAISON 4 PIÈCES NEUVE – PROCHE DU HAVREEn vente à 13 km de la Manche et à 23 km du Havre, votre agence Les Maisons Extraco Le Havre est heureuse de vous proposer cette maison de 4 pièces de plain-pied de 75 m² à Beuzeville-la-Grenier (76210).Son intérieur compte trois chambres, une cuisine et une salle de bains. Cette maison est neuve.Le terrain de la propriété s’étend sur 549 m².Il y a l’École Élémentaire Lucienne Julien et l’École Maternelle Pierre Julien à moins de 10 minutes à pied. Niveau transports en commun, on trouve quatre gares à moins de 10 minutes en voiture. On trouve un accès à l’autoroute A29 à 2 km. Il y a un tennis, une boulangerie et deux boucheries-charcuteries dans les environs.Elle est proposée à l’achat pour 239 500 €.Contactez Barbara PELLETER ((Numéro supprimé)) pour plus de renseignements sur la maison ou sur les modalités de vente. Donnez vie à vos projets immobiliers avec Les Maisons Extraco Le Havre.
Beuzeville-la-Grenier
TERRAIN ET MAISONVENTE : maison T5 (105 m²) à Beuzeville-la-GrenierPROCHE DU HAVRE – MAISON 5 PIÈCES NEUVEÀ 13 km de la Manche et à 23 km du Havre, nous vous proposons cette maison de 5 pièces de 105 m² et de 571 m² de terrain à vendre à Beuzeville-la-Grenier (76210).Il s’agit d’une maison de 2 niveaux. Son intérieur dispose de quatre chambres, d’une cuisine et de deux salles de bains. Cette maison est neuve.Il y a l’École Élémentaire Lucienne Julien et l’École Maternelle Pierre Julien à moins de 10 minutes à pied. Côté transports en commun, on trouve quatre gares à moins de 10 minutes en voiture. Il y a un accès à l’autoroute A29 à 2 km. Il y a un tennis, une boulangerie et deux boucheries-charcuteries à proximité.Son prix de vente est de 245 500 €.Prenez contact avec notre agence (PELLETER Barbara : (Numéro supprimé)) pour obtenir de plus amples informations sur la maison, sur les modalités de vente ou sur les démarches à suivre.
L’actualité immobilière à Bornambusc
27/11/2023
02/11/2023
30/10/2023
20/10/2023
16/10/2023
16/10/2023