Maison à construire à Bosc-le-Hard (76850)
Images
Description
Maison idéalement située à BOSC-LE-HARD sur un terrain de 537 m².
À proximité, dans le bourg : école, boulangerie, parc pour enfants, bus vert.
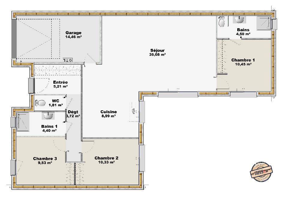
Cette maison contemporaine bénéficie d'un agencement agréable : - Salon/séjour avec cuisine ouverte de 50 m², avec une grande baie coulissante de 2,80 m en alu, - cellier, - 3 chambres avec placards, - suite parentale avec dressing et douche à l'italienne, - salle de bains avec baignoire et douche, - garage de 20m².
Isolation renforcée avec système de chauffage très économique par pompe à chaleur. Maison certifiée RE20. DPE : A / GSE : B.
Venez nous rencontrer et visiter notre showroom : Maisons EXTRACO - 11 Rue Jacques Monod, 76130 Mont-Saint-Aignan
Étude gratuite auprès de votre conseiller : Floriane LEBOUCHER ((Numéro supprimé))
(Premier échange par SMS possible)
Logement susceptibles de vous intéresser
Nous vous proposons de découvrir aussi cette sélection de logements situés à moins de 10km de Bosc-le-Hard et qui seraient susceptibles de vous intéresser.
Critot
TERRAINVENTE d’un terrain de 1 384 m² à CritotIDÉALEMENT SITUÉ – PROCHE DE ROUENÀ 40 km de la Manche et à 22 km de Rouen à Critot (76680), grand terrain. Il donne sur un espace vert et est orienté au sud-ouest. Dans un secteur convoité, ce terrain idéalement situé est proche des écoles et des commerces. On trouve une école maternelle dans le quartier. Niveau transports, il y a trois gares (Montérolier-Buchy, Longuerue-Vieux-Manoir et Morgny-la-Pommeraye) à moins de 10 minutes en voiture. Les autoroutes A28 et A29 sont accessibles à moins de 5 km. On trouve un tennis et une bibliothèque à proximité du bien.Ce terrain est à vendre pour la somme de 65 000 €. Contactez notre agence (Lindsay COLLAY : (Numéro supprimé)) pour toute question sur le terrain ou sur les modalités de vente. Donnez vie à vos projets immobiliers avec Maisons France Confort Sainte-Marie-des-Champs.
Critot
TERRAIN ET MAISONCritot : maison de 5 pièces (85 m²) à construireIDÉALEMENT SITUÉE – MAISON 5 PIÈCES NEUVEÀ 40 km de la Manche et à 22 km de Rouen, venez découvrir cette maison de 5 pièces de plain-pied de 85 m² idéalement située dans Critot (76680).Conçue de plain-pied, elle inclut trois chambres, une cuisine et une salle de bains. La maison est neuve.Le terrain de la propriété s’étend sur 1 384 m².Cette maison se trouve dans un quartier convoité. Une école maternelle y est implantée. Niveau transports en commun, il y a les gares Montérolier-Buchy, Longuerue-Vieux-Manoir et Morgny-la-Pommeraye à moins de 10 minutes en voiture. Les autoroutes A28 et A29 sont accessibles à moins de 5 km. On trouve un tennis et une bibliothèque à quelques minutes.Son prix de vente est de 227 619 €.Contactez Lindsay COLLAY ((Numéro supprimé)) pour plus de renseignements sur la maison, sur les démarches à suivre ou sur les modalités de vente. Faites de vos projets immobiliers une réalité avec Maisons France Confort Sainte-Marie-des-Champs.
Critot
TERRAIN ET MAISONVente d’une maison à construire de 4 pièces (81 m²) à CritotIDÉALEMENT SITUÉE – MAISON 4 PIÈCES NEUVEÀ construire : située à 40 km de la Manche et à quelques kilomètres de Rouen, nous vous proposons cette maison de 4 pièces de plain-pied de 81 m² et de 1 384 m² de terrain idéalement située dans Critot (76680).Son intérieur compte trois chambres, une cuisine et une salle de bains. La maison est neuve.La maison se situe dans un quartier recherché. On y trouve une école maternelle. Niveau transports en commun, il y a trois gares (Montérolier-Buchy, Longuerue-Vieux-Manoir et Morgny-la-Pommeraye) à moins de 10 minutes en voiture. Les autoroutes A28 et A29 sont accessibles à moins de 5 km. On trouve un tennis et une bibliothèque à proximité du logement.Son prix de vente est de 190 478 €.Contactez Lindsay COLLAY (tél : (Numéro supprimé)) pour toute question sur la propriété, sur les démarches à suivre ou sur les modalités de vente. Maisons France Confort Sainte-Marie-des-Champs est là pour vous accompagner à toutes les étapes de votre projet.
Critot
TERRAIN ET MAISONVENTE d’une maison à construireF5 (89 m²) à CritotIDÉALEMENT SITUÉE – MAISON 5 PIÈCES NEUVEEn construire : à 40 km de la Manche et à deux pas de Rouen, Maisons France Confort Sainte-Marie-des-Champs vous propose, idéalement située dans Critot (76680), cette maison de 5 pièces de 89 m². Elle est composée de quatre chambres, d’une cuisine et d’une salle de bains.Le terrain du bien s’étend sur 1 384 m².Cette maison compte 2 niveaux. Elle est neuve.La maison se situe dans un quartier attractif. Une école maternelle y est implantée. Niveau transports, il y a trois gares (Montérolier-Buchy, Longuerue-Vieux-Manoir et Morgny-la-Pommeraye) à moins de 10 minutes en voiture. Les autoroutes A28 et A29 sont accessibles à moins de 5 km. On trouve un tennis et une bibliothèque à quelques minutes de la maison.Elle est à vendre pour la somme de 211 520 €.Contactez Lindsay COLLAY ((Numéro supprimé)) pour obtenir de plus amples renseignements sur la maison. Maisons France Confort Sainte-Marie-des-Champs vous accompagne à toutes les étapes de votre projet et dans tous vos projets immobiliers.
La Rue-Saint-Pierre
TERRAINLa Rue-Saint-Pierre : terrain de 461 m² à vendreIDÉALEMENT SITUÉ – PROCHE DE ROUENÀ La Rue-Saint-Pierre (76690) à 45 km de la Manche et à deux pas de Rouen, découvrez ce terrain de 461 m². Ce terrain, exposé au sud-ouest, donne sur un espace vert. Dans un secteur prisé, ce terrain idéalement situé est proche des écoles et des commerces. Une école élémentaire est implantée dans le quartier. Niveau transports, il y a les gares Longuerue-Vieux-Manoir, Morgny-la-Pommeraye et Montérolier-Buchy à moins de 10 minutes en voiture. Les autoroutes A28 et A29 sont accessibles à moins de 10 km. On trouve un tennis et deux commerces dans les environs.Ce terrain est à vendre pour la somme de 73 000 €. Contactez notre agence (Lindsay COLLAY : (Numéro supprimé)) pour toute question sur le terrain ou sur les modalités de vente. Concrétisez vos projets immobiliers avec Maisons France Confort Sainte-Marie-des-Champs.
La Rue-Saint-Pierre
TERRAIN ET MAISONLa Rue-Saint-Pierre : maison F5 (89 m²) à construireIDÉALEMENT SITUÉE – MAISON 5 PIÈCES NEUVEÀ 45 km de la Manche et à 18 km de Rouen, à vendre idéalement située dans La Rue-Saint-Pierre (76690), ayez le coup de coeur pour cette maison de 5 pièces de 89 m² et de 461 m² de terrain. Elle offre quatre chambres, une cuisine et une salle de bains.C’est une maison de 2 niveaux. Elle est neuve.Le bien se situe dans un secteur attractif. On y trouve une école élémentaire. Niveau transports, on trouve les gares Longuerue-Vieux-Manoir, Morgny-la-Pommeraye et Montérolier-Buchy à moins de 10 minutes en voiture. Les autoroutes A28 et A29 sont accessibles à moins de 10 km. Il y a un tennis et deux commerces à proximité.Il est à vendre pour la somme de 219 520 €.Contactez Lindsay COLLAY (tél : (Numéro supprimé)) pour toute information sur la maison. Donnez vie à vos projets immobiliers avec Maisons France Confort Sainte-Marie-des-Champs.
La Rue-Saint-Pierre
TERRAIN ET MAISONA construire : maison T5 (85 m²) à La Rue-Saint-PierreIDÉALEMENT SITUÉE – MAISON 5 PIÈCES NEUVEA construire à 45 km de la Manche et à 18 km de Rouen, Maisons France Confort Sainte-Marie-des-Champs vous présente cette maison de 5 pièces de plain-pied de 85 m² et de 461 m² de terrain idéalement située dans La Rue-Saint-Pierre (76690). Elle compte trois chambres, une cuisine et une salle de bains.La maison est neuve.Cette maison se trouve dans un quartier convoité. Une école élémentaire y est implantée. Côté transports, il y a trois gares (Longuerue-Vieux-Manoir, Morgny-la-Pommeraye et Montérolier-Buchy) à moins de 10 minutes en voiture. Les autoroutes A28 et A29 sont accessibles à moins de 10 km. On trouve un tennis et deux commerces à quelques minutes du logement.Elle est à vendre pour la somme de 235 619 €.Prenez contact avec Lindsay COLLAY ((Numéro supprimé)) pour toute information sur le bien, sur les démarches à suivre ou sur les modalités de vente. Maisons France Confort Sainte-Marie-des-Champs est là pour vous accompagner à toutes les étapes de l’achat.
La Rue-Saint-Pierre
TERRAIN ET MAISONA construire : maison T4 (81 m²) à La Rue-Saint-PierreIDÉALEMENT SITUÉE – MAISON 4 PIÈCES NEUVEÀ construire à 45 km de la Manche et à 18 km de Rouen, Maisons France Confort Sainte-Marie-des-Champs vous propose cette maison de 4 pièces de plain-pied de 81 m², idéalement située dans La Rue-Saint-Pierre (76690). Conçue de plain-pied, elle se divise en trois chambres, une cuisine et une salle de bains.Le terrain du bien est de 461 m².Cette maison est neuve.La maison est située dans un quartier convoité. On y trouve une école élémentaire. Niveau transports en commun, on trouve les gares Longuerue-Vieux-Manoir, Morgny-la-Pommeraye et Montérolier-Buchy à moins de 10 minutes en voiture. Les autoroutes A28 et A29 sont accessibles à moins de 10 km. Il y a un tennis et deux commerces dans les environs.Elle est à vendre pour la somme de 198 478 €.Contactez Lindsay COLLAY ((Numéro supprimé)) pour toute question sur la propriété et sur les démarches à suivre.
Bosc-le-Hard
TERRAINÀ BOSC-LE-HARD, terrain constructible à acheter.Sur la commune de BOSC-LE-HARD, opportunité à saisir avec ce terrain. Vous pourrez exploiter une surface de 537 m2 pour créer votre future maison. N’hésitez pas à contacter Floriane LEBOUCHER ((Numéro supprimé)) des Maisons EXTRACO Mont-Saint-Aignan si vous avez des questions. Premiers échanges par SMS ou mail possible.LEBOUCHER Floriane(Numéro supprimé)
L’actualité immobilière à Bosc-le-Hard
27/11/2023
02/11/2023
30/10/2023
20/10/2023
16/10/2023
16/10/2023