Maison à construire à Buchy (76750)
Images
Description
VENTE : maison T8 (145 m²) à Buchy
EMPLACEMENT PRIVILÉGIÉ - MAISON 8 PIÈCES NEUVE A CONSTRUIRE
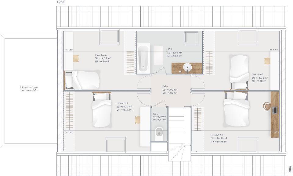
À vendre : à 46 km de la Manche et à quelques kilomètres de Rouen, votre agence Maisons France Confort Sainte-Marie-des-Champs est heureuse de vous présenter cette maison de 8 pièces de 145 m² et de 517 m² de terrain bénéficiant d'un emplacement privilégié dans Buchy (76750). Elle propose six chambres, une cuisine et deux salles de bains.
C'est une maison de 2 niveaux. Elle est neuve.
Cette maison se situe dans un quartier attractif. On trouve l'École Primaire Bernard Lemaistre et le Collège Francis Yard à moins de 10 minutes à pied. Niveau transports, il y a les gares Montérolier-Buchy, Longuerue-Vieux-Manoir et Sommery à moins de 10 minutes en voiture. L'autoroute A28 est accessible à 6 km. On trouve un tennis, des commerces, trois boulangeries, un supermarché, un bureau de poste et deux épiceries dans les environs.
Elle est proposée à l'achat pour 311 708 €.
N'hésitez pas à prendre contact avec notre agence (DEMEILLERS Noemie : (Numéro supprimé)) pour plus d'informations sur le bien, sur les modalités de vente ou sur les démarches à suivre. Maisons France Confort Sainte-Marie-des-Champs est là pour vous accompagner dans tous vos projets immobiliers.
Logement susceptibles de vous intéresser
Nous vous proposons de découvrir aussi cette sélection de logements situés à moins de 10km de Buchy et qui seraient susceptibles de vous intéresser.
Buchy
TERRAINÀ BUCHY, terrain constructible à acheter.Sur la commune de BUCHY, opportunité à saisir avec ce terrain. Vous pourrez exploiter une surface de 771 m2 pour créer votre future maison. N’hésitez pas à contacter Alexis RINGOT ((Numéro supprimé)) des Maisons Extraco Les Essarts si vous avez des questions. Premiers échanges par SMS ou mail possible.RINGOT Alexis(Numéro supprimé)a.ringot at extraco.fr
Buchy
TERRAIN ET MAISONÀ BUCHY, terrain constructible à acheter.Sur la commune de BUCHY, opportunité à saisir avec ce terrain. Vous pourrez exploiter une surface de 771 m2 pour créer votre future maison. N’hésitez pas à contacter Alexis RINGOT ((Numéro supprimé)) des Maisons Extraco Les Essarts si vous avez des questions. Premiers échanges par SMS ou mail possible.RINGOT Alexis(Numéro supprimé)a.ringot at extraco.fr
Buchy
TERRAIN ET MAISONÀ BUCHY, terrain constructible à acheter.Sur la commune de BUCHY, opportunité à saisir avec ce terrain. Vous pourrez exploiter une surface de 771 m2 pour créer votre future maison. N’hésitez pas à contacter Alexis RINGOT ((Numéro supprimé)) des Maisons Extraco Les Essarts si vous avez des questions. Premiers échanges par SMS ou mail possible.RINGOT Alexis(Numéro supprimé)a.ringot at extraco.fr
Buchy
TERRAIN ET MAISONÀ BUCHY, terrain constructible à acheter.Sur la commune de BUCHY, opportunité à saisir avec ce terrain. Vous pourrez exploiter une surface de 771 m2 pour créer votre future maison. N’hésitez pas à contacter Alexis RINGOT ((Numéro supprimé)) des Maisons Extraco Les Essarts si vous avez des questions. Premiers échanges par SMS ou mail possible.RINGOT Alexis(Numéro supprimé)a.ringot at extraco.fr
Buchy
TERRAIN ET MAISONÀ BUCHY, terrain constructible à acheter.Sur la commune de BUCHY, opportunité à saisir avec ce terrain. Vous pourrez exploiter une surface de 771 m2 pour créer votre future maison. N’hésitez pas à contacter Alexis RINGOT ((Numéro supprimé)) des Maisons Extraco Les Essarts si vous avez des questions. Premiers échanges par SMS ou mail possible.RINGOT Alexis(Numéro supprimé)a.ringot at extraco.fr
Buchy
TERRAIN ET MAISONÀ BUCHY, terrain constructible à acheter.Sur la commune de BUCHY, opportunité à saisir avec ce terrain. Vous pourrez exploiter une surface de 771 m2 pour créer votre future maison. N’hésitez pas à contacter Alexis RINGOT ((Numéro supprimé)) des Maisons Extraco Les Essarts si vous avez des questions. Premiers échanges par SMS ou mail possible.RINGOT Alexis(Numéro supprimé)a.ringot at extraco.fr
Buchy
TERRAIN ET MAISONÀ BUCHY, terrain constructible à acheter.Sur la commune de BUCHY, opportunité à saisir avec ce terrain. Vous pourrez exploiter une surface de 771 m2 pour créer votre future maison. N’hésitez pas à contacter Alexis RINGOT ((Numéro supprimé)) des Maisons Extraco Les Essarts si vous avez des questions. Premiers échanges par SMS ou mail possible.RINGOT Alexis(Numéro supprimé)a.ringot at extraco.fr
Buchy
TERRAIN ET MAISONÀ BUCHY, terrain constructible à acheter.Sur la commune de BUCHY, opportunité à saisir avec ce terrain. Vous pourrez exploiter une surface de 771 m2 pour créer votre future maison. N’hésitez pas à contacter Alexis RINGOT ((Numéro supprimé)) des Maisons Extraco Les Essarts si vous avez des questions. Premiers échanges par SMS ou mail possible.RINGOT Alexis(Numéro supprimé)a.ringot at extraco.fr
Buchy
TERRAIN ET MAISONÀ BUCHY, terrain constructible à acheter.Sur la commune de BUCHY, opportunité à saisir avec ce terrain. Vous pourrez exploiter une surface de 771 m2 pour créer votre future maison. N’hésitez pas à contacter Alexis RINGOT ((Numéro supprimé)) des Maisons Extraco Les Essarts si vous avez des questions. Premiers échanges par SMS ou mail possible.RINGOT Alexis(Numéro supprimé)a.ringot at extraco.fr
L’actualité immobilière à Buchy
27/11/2023
02/11/2023
30/10/2023
20/10/2023
16/10/2023
16/10/2023