Maison à construire à Buchy (76750)
Images
Description
Maison idéalement située à BUCHY sur un terrain de 1280 m².
À proximité, dans le bourg : école, boulangerie, parc pour enfants, bus vert.
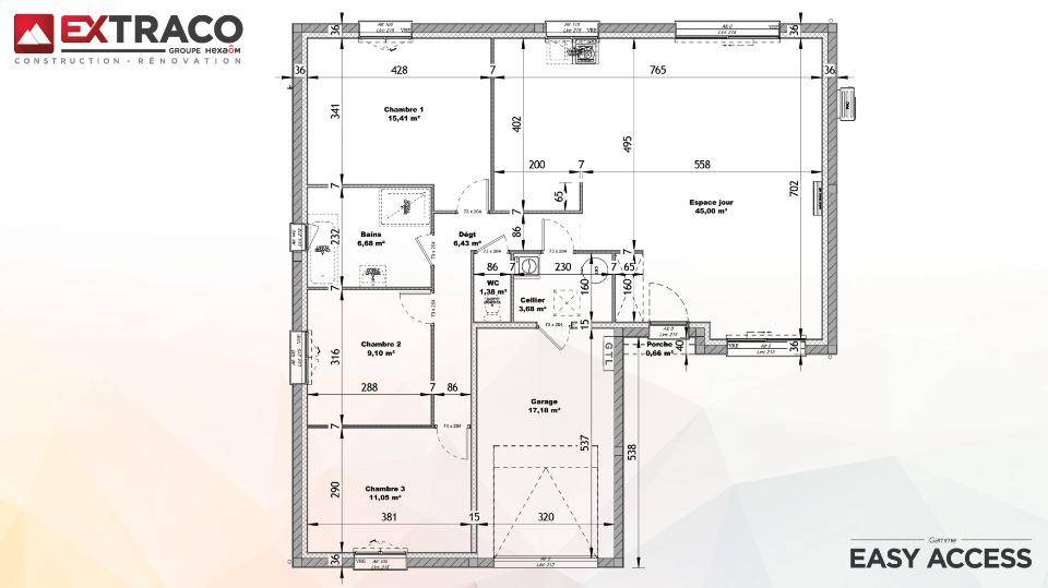
Cette maison contemporaine bénéficie d'un agencement agréable : - Salon/séjour avec cuisine ouverte de 50 m², avec une grande baie coulissante de 2,80 m en alu, - cellier, - 3 chambres avec placards, - suite parentale avec dressing et douche à l'italienne, - salle de bains avec baignoire et douche, - garage de 20m².
Isolation renforcée avec système de chauffage très économique par pompe à chaleur. Maison certifiée RE20. DPE : A / GSE : B.
Venez nous rencontrer et visiter notre showroom : Maisons EXTRACO - 11 Rue Jacques Monod, 76130 Mont-Saint-Aignan
Étude gratuite auprès de votre conseiller : Floriane LEBOUCHER ((Numéro supprimé))
(Premier échange par SMS possible)
Logement susceptibles de vous intéresser
Nous vous proposons de découvrir aussi cette sélection de logements situés à moins de 10km de Buchy et qui seraient susceptibles de vous intéresser.
Buchy
TERRAINÀ BUCHY, terrain constructible à acheter.Sur la commune de BUCHY, opportunité à saisir avec ce terrain. Vous pourrez exploiter une surface de 771 m2 pour créer votre future maison. N’hésitez pas à contacter Alexis RINGOT ((Numéro supprimé)) des Maisons Extraco Les Essarts si vous avez des questions. Premiers échanges par SMS ou mail possible.RINGOT Alexis(Numéro supprimé)a.ringot at extraco.fr
Buchy
TERRAIN ET MAISONÀ BUCHY, terrain constructible à acheter.Sur la commune de BUCHY, opportunité à saisir avec ce terrain. Vous pourrez exploiter une surface de 771 m2 pour créer votre future maison. N’hésitez pas à contacter Alexis RINGOT ((Numéro supprimé)) des Maisons Extraco Les Essarts si vous avez des questions. Premiers échanges par SMS ou mail possible.RINGOT Alexis(Numéro supprimé)a.ringot at extraco.fr
Buchy
TERRAIN ET MAISONÀ BUCHY, terrain constructible à acheter.Sur la commune de BUCHY, opportunité à saisir avec ce terrain. Vous pourrez exploiter une surface de 771 m2 pour créer votre future maison. N’hésitez pas à contacter Alexis RINGOT ((Numéro supprimé)) des Maisons Extraco Les Essarts si vous avez des questions. Premiers échanges par SMS ou mail possible.RINGOT Alexis(Numéro supprimé)a.ringot at extraco.fr
Buchy
TERRAIN ET MAISONÀ BUCHY, terrain constructible à acheter.Sur la commune de BUCHY, opportunité à saisir avec ce terrain. Vous pourrez exploiter une surface de 771 m2 pour créer votre future maison. N’hésitez pas à contacter Alexis RINGOT ((Numéro supprimé)) des Maisons Extraco Les Essarts si vous avez des questions. Premiers échanges par SMS ou mail possible.RINGOT Alexis(Numéro supprimé)a.ringot at extraco.fr
Buchy
TERRAIN ET MAISONÀ BUCHY, terrain constructible à acheter.Sur la commune de BUCHY, opportunité à saisir avec ce terrain. Vous pourrez exploiter une surface de 771 m2 pour créer votre future maison. N’hésitez pas à contacter Alexis RINGOT ((Numéro supprimé)) des Maisons Extraco Les Essarts si vous avez des questions. Premiers échanges par SMS ou mail possible.RINGOT Alexis(Numéro supprimé)a.ringot at extraco.fr
Buchy
TERRAIN ET MAISONÀ BUCHY, terrain constructible à acheter.Sur la commune de BUCHY, opportunité à saisir avec ce terrain. Vous pourrez exploiter une surface de 771 m2 pour créer votre future maison. N’hésitez pas à contacter Alexis RINGOT ((Numéro supprimé)) des Maisons Extraco Les Essarts si vous avez des questions. Premiers échanges par SMS ou mail possible.RINGOT Alexis(Numéro supprimé)a.ringot at extraco.fr
Buchy
TERRAIN ET MAISONÀ BUCHY, terrain constructible à acheter.Sur la commune de BUCHY, opportunité à saisir avec ce terrain. Vous pourrez exploiter une surface de 771 m2 pour créer votre future maison. N’hésitez pas à contacter Alexis RINGOT ((Numéro supprimé)) des Maisons Extraco Les Essarts si vous avez des questions. Premiers échanges par SMS ou mail possible.RINGOT Alexis(Numéro supprimé)a.ringot at extraco.fr
Buchy
TERRAIN ET MAISONÀ BUCHY, terrain constructible à acheter.Sur la commune de BUCHY, opportunité à saisir avec ce terrain. Vous pourrez exploiter une surface de 771 m2 pour créer votre future maison. N’hésitez pas à contacter Alexis RINGOT ((Numéro supprimé)) des Maisons Extraco Les Essarts si vous avez des questions. Premiers échanges par SMS ou mail possible.RINGOT Alexis(Numéro supprimé)a.ringot at extraco.fr
Buchy
TERRAIN ET MAISONÀ BUCHY, terrain constructible à acheter.Sur la commune de BUCHY, opportunité à saisir avec ce terrain. Vous pourrez exploiter une surface de 771 m2 pour créer votre future maison. N’hésitez pas à contacter Alexis RINGOT ((Numéro supprimé)) des Maisons Extraco Les Essarts si vous avez des questions. Premiers échanges par SMS ou mail possible.RINGOT Alexis(Numéro supprimé)a.ringot at extraco.fr
L’actualité immobilière à Buchy
27/11/2023
02/11/2023
30/10/2023
20/10/2023
16/10/2023
16/10/2023