Images
Description
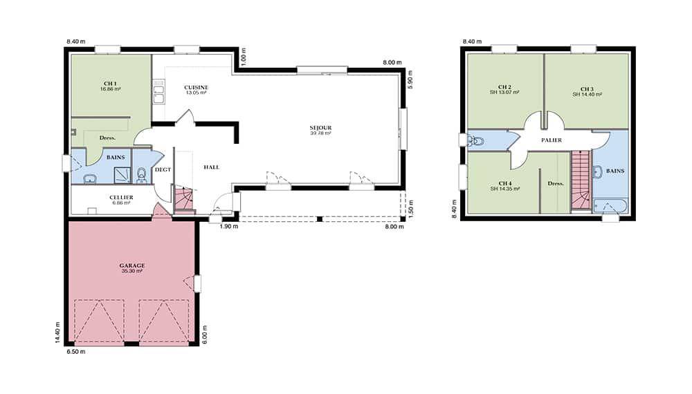
Nous vous proposons cette maison neuve, baptisée ""Barentine"", un modèle de résidence qui allie élégance et fonctionnalité, conçu pour répondre aux attentes des familles modernes. Avec une surface habitable de 115 m², cette maison se distingue par son plan en L, offrant une disposition originale et pratique des espaces de vie.
La ""Barentine"" comprend 3 chambres spacieuses, garantissant confort et intimité à chaque membre de la famille. Au total, la maison se compose de 4 pièces, pensées pour maximiser l'espace et la luminosité. L'une des caractéristiques remarquables de ce modèle est son garage intégré, assurant une transition fluide entre l'espace de vie et l'espace de stationnement, tout en offrant un espace de rangement supplémentaire très pratique.
La maison dispose également d'une deuxième salle de bains, offrant ainsi une commodité supplémentaire et évitant les embouteillages matinaux. Conforme à la norme RE2020, la ""Barentine"" est une maison basse consommation, conçue avec une attention particulière portée à l'efficacité énergétique et à l'impact environnemental. Cela signifie des factures d'énergie réduites et un confort accru toute l'année pour ses habitants.
Les options les plus plébiscitées par nos clients, telles que les menuiseries en aluminium et la domotique, sont disponibles pour personnaliser votre maison selon vos goûts et vos besoins. Ces améliorations non seulement renforcent l'esthétique moderne de la maison, mais améliorent également son efficacité et sa fonctionnalité, rendant la vie quotidienne plus pratique et agréable.
Inspirée du charme provençal, la ""Barentine"" présente une architecture cohérente et attrayante. Son design extérieur peut être personnalisé avec un enduit bicolore, ajoutant une touche d'élégance et de distinction. Que vous optiez pour une toiture à 2 ou 4 pans, cette maison vous propose raffinement et confort.
Découvrez le plaisir de vivre dans une maison qui allie beauté, confort et durabilité.
Logement susceptibles de vous intéresser
Nous vous proposons de découvrir aussi cette sélection de logements situés à moins de 10km de Cailleville et qui seraient susceptibles de vous intéresser.
Autigny
TERRAINVENTE d’un terrain de 1 128 m² à AutignyPROCHE DE DIEPPEÀ Autigny (76740) à 18 km de la Manche et à 21 km de Dieppe, projetez la maison de vos rêves sur ce terrain de 1 128 m². Plusieurs écoles (maternelle, élémentaire, primaire et collège) sont implantées à moins de 10 minutes en voiture. Il y a des bibliothèques, quatre tennis, des commerces, des boulangeries, quatre supermarchés, des boucheries-charcuteries et quatre bureaux de poste à proximité. 2 marchés animent le quartier.Son prix de vente est de 49 000 €. Contactez notre agence (LECLERC Natacha : (Numéro supprimé)) pour toute question sur le terrain, sur les modalités de vente ou sur les démarches à suivre.
Autigny
TERRAIN ET MAISONVENTE : maison F6 (125 m²) à AutignyPROCHE DE DIEPPE – MAISON 6 PIÈCES NEUVEÀ 18 km de la Manche et à deux pas de Dieppe, nous vous proposons à vendre à Autigny (76740), cette maison de 6 pièces de 125 m² et de 1 128 m² de terrain. Son intérieur offre quatre chambres, une cuisine et deux salles de bains.Cette maison compte 2 niveaux. Elle est neuve.Il y a plusieurs écoles (maternelle, élémentaire, primaire et collège) à moins de 10 minutes en voiture. On trouve des bibliothèques, quatre tennis, des commerces, des boulangeries, quatre supermarchés, des boucheries-charcuteries et des épiceries à quelques minutes à peine. 2 marchés animent le quartier.Elle est proposée à l’achat pour 299 900 €.N’hésitez pas à prendre contact avec notre agence (LECLERC Natacha : (Numéro supprimé)) pour tout renseignement sur la maison, sur les modalités de vente ou sur les démarches à suivre. Les Maisons Extraco Dieppe vous accompagne dans tous vos projets immobiliers et à toutes les étapes de l’achat.
Autigny
TERRAIN ET MAISONVENTE : maison T4 (106 m²) à AutignyPROCHE DE DIEPPE – MAISON 4 PIÈCES NEUVEÀ 18 km de la Manche et à 21 km de Dieppe, Les Maisons Extraco Dieppe vous propose à vendre à Autigny (76740), cette maison de 4 pièces de plain-pied de 106 m².Conçue de plain-pied, elle offre trois chambres, une cuisine et une salle de bains. Cette maison est neuve.Le terrain du bien s’étend sur 1 128 m².Il y a plusieurs écoles (maternelle, élémentaire, primaire et collège) à moins de 10 minutes en voiture. On trouve des bibliothèques, quatre tennis, des commerces, des boulangeries, quatre supermarchés, une poissonnerie et des épiceries dans les environs. Enfin, 2 marchés animent les environs.Elle est à vendre pour la somme de 209 000 €.N’hésitez pas à prendre contact avec Natacha LECLERC (tél : (Numéro supprimé)) pour obtenir de plus amples informations sur la maison. Concrétisez vos projets immobiliers avec Les Maisons Extraco Dieppe.
Autigny
TERRAIN ET MAISONAutigny : maison T5 (137 m²) à vendreMAISON 5 PIÈCES NEUVE – PROCHE DE DIEPPEÀ 18 km de la Manche et à 21 km de Dieppe, à vendre à Autigny (76740), laissez vous charmer par cette maison de 5 pièces de 137 m². Son intérieur comporte quatre chambres, une cuisine et une salle de bains.Le terrain de la propriété s’étend sur 1 128 m².C’est une maison de 2 niveaux. Elle est neuve.Il y a plusieurs établissements scolaires (maternelle, élémentaire, primaire et collège) à moins de 10 minutes en voiture. On trouve des bibliothèques, quatre tennis, des commerces, des boulangeries, quatre supermarchés, des boucheries-charcuteries et des épiceries à proximité de la maison. Enfin, 2 marchés animent les environs.Elle est à vendre pour la somme de 319 680 €.N’hésitez pas à prendre contact avec Natacha LECLERC ((Numéro supprimé)) pour plus d’informations sur la maison.
Ingouville
TERRAINVENTE : terrain de 1 145 m² à IngouvilleIDÉALEMENT SITUÉ – PROCHE DE DIEPPEÀ Ingouville (76460) à vendre à 3 km de la Manche et à deux pas de Dieppe, donnez vie à votre projet de construction sur ce terrain de 1 145 m². Ce terrain, exposé sud-ouest, donne sur un espace vert. Dans un secteur prisé, le terrain idéalement situé est proche des commerces et des écoles. Des établissements scolaires de tous niveaux sont implantés à moins de 10 minutes en voiture, tout comme une structure d’accueil pour les tout-petits à moins de 10 minutes à pied. On trouve des tennis, des bibliothèques, deux bassins de natation, un bowling, des commerces, trois supermarchés, des boulangeries, deux supérettes et trois bureaux de poste à proximité de la propriété.Ce terrain est proposé à l’achat pour 55 000 €. Contactez notre agence (COLLAY Lindsay : (Numéro supprimé)) pour plus de renseignements sur le terrain, sur les démarches à suivre ou sur les modalités de vente. Maisons France Confort Sainte-Marie-des-Champs vous accompagne dans tous vos projets immobiliers et dans toutes vos démarches.
Ingouville
TERRAIN ET MAISONMaison de 5 pièces (120 m²) à construire à IngouvilleIDÉALEMENT SITUÉE – MAISON 5 PIÈCES NEUVEÀ construire : à 3 km de la Manche et à quelques kilomètres de Dieppe, nous sommes heureux de vous proposer cette maison de 5 pièces de plain-pied de 120 m², idéalement située dans Ingouville (76460).Elle dispose de quatre chambres, d’une cuisine et de deux salles de bains. Cette maison est neuve.Le terrain de la propriété est de 1 145 m².Cette maison se trouve dans un quartier prisé. Il y a des établissements scolaires du primaire et du secondaire à moins de 10 minutes en voiture, tout comme une crèche à moins de 10 minutes à pied. On trouve des tennis, des bibliothèques, deux bassins de natation, un bowling, des commerces, trois supermarchés, des boulangeries, deux supérettes et des boucheries-charcuteries dans les environs.Elle est à vendre pour la somme de 263 973 €.N’hésitez pas à prendre contact avec Lindsay COLLAY ((Numéro supprimé)) pour toute question sur la maison, sur les modalités de vente ou sur les démarches à suivre. Maisons France Confort Sainte-Marie-des-Champs est là pour vous accompagner à toutes les étapes de l’achat.
Ingouville
TERRAIN ET MAISONA construire : maison de 6 pièces (100 m²) à IngouvilleIDÉALEMENT SITUÉE – MAISON 6 PIÈCES NEUVEÀ 3 km de la Manche et à deux pas de Dieppe, à vendre idéalement située dans Ingouville (76460), nous sommes ravis de vous proposer cette maison de 6 pièces de 100 m². Elle offre quatre chambres, une cuisine et une salle de bains.Le terrain de la propriété s’étend sur 1 145 m².C’est une maison de 2 niveaux. Elle est neuve.Cette maison se trouve dans un quartier prisé. Des écoles de tous niveaux (de la maternelle au lycée) sont implantées à moins de 10 minutes en voiture, tout comme une structure d’accueil pour les enfants en bas âge à moins de 10 minutes à pied. Il y a des tennis, des bibliothèques, deux bassins de natation, un bowling, des commerces, trois supermarchés, des boulangeries, des épiceries et deux supérettes dans les environs.Elle est à vendre pour la somme de 246 758 €.Prenez contact avec notre agence (COLLAY Lindsay : (Numéro supprimé)) pour toute information sur la maison et sur les démarches à suivre.
Cailleville
TERRAIN ET MAISONNous vous proposons cette maison neuve, baptisée « »Barentine » », un modèle de résidence qui allie élégance et fonctionnalité, conçu pour répondre aux attentes des familles modernes. Avec une surface habitable de 115 m², cette maison se distingue par son plan en L, offrant une disposition originale et pratique des espaces de vie.La « »Barentine » » comprend 3 chambres spacieuses, garantissant confort et intimité à chaque membre de la famille. Au total, la maison se compose de 4 pièces, pensées pour maximiser l’espace et la luminosité. L’une des caractéristiques remarquables de ce modèle est son garage intégré, assurant une transition fluide entre l’espace de vie et l’espace de stationnement, tout en offrant un espace de rangement supplémentaire très pratique.La maison dispose également d’une deuxième salle de bains, offrant ainsi une commodité supplémentaire et évitant les embouteillages matinaux. Conforme à la norme RE2020, la « »Barentine » » est une maison basse consommation, conçue avec une attention particulière portée à l’efficacité énergétique et à l’impact environnemental. Cela signifie des factures d’énergie réduites et un confort accru toute l’année pour ses habitants.Les options les plus plébiscitées par nos clients, telles que les menuiseries en aluminium et la domotique, sont disponibles pour personnaliser votre maison selon vos goûts et vos besoins. Ces améliorations non seulement renforcent l’esthétique moderne de la maison, mais améliorent également son efficacité et sa fonctionnalité, rendant la vie quotidienne plus pratique et agréable.Inspirée du charme provençal, la « »Barentine » » présente une architecture cohérente et attrayante. Son design extérieur peut être personnalisé avec un enduit bicolore, ajoutant une touche d’élégance et de distinction. Que vous optiez pour une toiture à 2 ou 4 pans, cette maison vous propose raffinement et confort.Découvrez le plaisir de vivre dans une maison qui allie beauté, confort et durabilité.
Cailleville
TERRAINNous vous présentons une occasion rare d’acquérir un terrain de 738 m², situé au cœur de la paisible commune de Cailleville, en Seine-Maritime. Ce terrain plat, qui n’est pas encore viabilisé, représente une toile vierge parfaite pour la construction de votre maison de rêve. Avec son environnement calme et serein, ce terrain est l’idéal pour ceux qui recherchent un projet de construction personnel dans un cadre apaisant. Cailleville, une charmante localité de Normandie, offre un cadre de vie agréable et proche des commodités essentielles. Profitez de la tranquillité tout en étant à proximité des attractions locales qui font le charme de cette région, comme des espaces verts invitant à la détente et aux activités en plein air. De plus, la commune est bien desservie, facilitant l’accès aux services et commerces nécessaires au quotidien. Cette localisation allie le calme de la nature avec la praticité de la vie moderne, promettant un cadre de vie harmonieux et équilibré. Ne manquez pas cette excellente opportunité d’investissement et d’édification dans un cadre enchanteur. Ce terrain vous offre les moyens de concrétiser votre projet immobilier dans un environnement de choix. À noter qu’en tant que constructeur, nous ne sommes pas mandatés pour réaliser la vente de ce terrain.
L’actualité immobilière à Cailleville
27/11/2023
02/11/2023
30/10/2023
20/10/2023
16/10/2023
16/10/2023