Maison à construire à Cany-Barville (76450)
Images
Description
Maison T5 (76 m²) en vente à Cany-Barville
MAISON 5 PIÈCES NEUVE
À vendre : située à 9 km de la Manche, notre agence Maisons France Confort Boos est ravie de vous présenter cette maison de 5 pièces de 76 m² à Cany-Barville (76450).
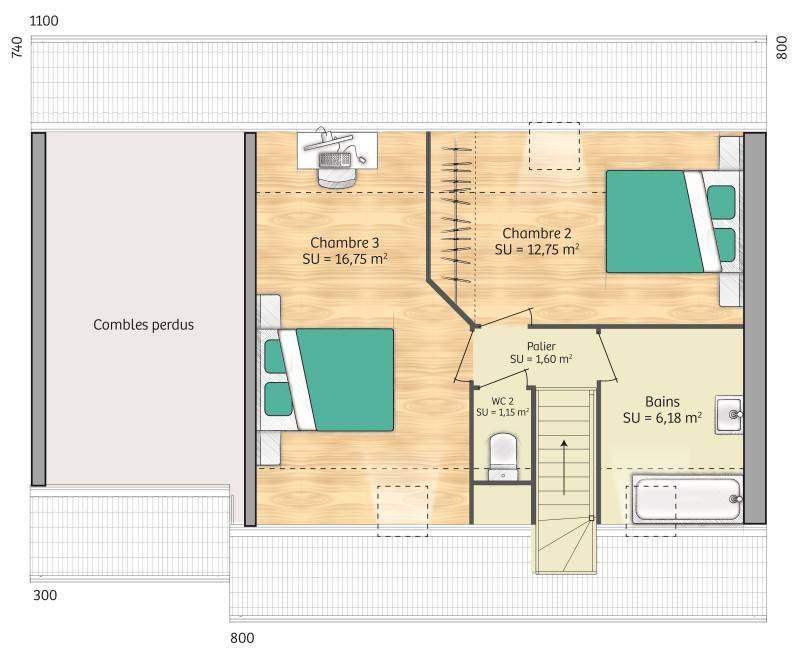
Il s'agit d'une maison de 2 niveaux. Son intérieur compte trois chambres, une cuisine et une salle de bains. La maison est neuve.
Le terrain de la propriété est de 1 000 m².
L'École Primaire Privée Sainte Jeanne d'Arc, l'École Maternelle les Lutins, l'École Élémentaire Louis Pergaud et le Collège Louis Bouilhet sont implantés à moins de 10 minutes à pied. Il y a un accès à l'autoroute A29 à 18 km. On trouve un tennis, un bassin de natation, des commerces, quatre boulangeries, un supermarché, deux poissonneries et un bureau de poste à proximité.
Son prix de vente est de 210 800 €.
Prenez contact avec Maisons France Confort Boos (Numéro supprimé) / (Numéro supprimé) pour tout renseignement sur ce bien, sur les démarches à suivre ou sur les modalités de vente.
Annonce proposée par un Agent Commercial Partenaire.
Logement susceptibles de vous intéresser
Nous vous proposons de découvrir aussi cette sélection de logements situés à moins de 10km de Cany-Barville et qui seraient susceptibles de vous intéresser.
Butot-Vénesville
TERRAINButot-Vénesville : terrain de 800 m² à vendreQUARTIER RECHERCHÉÀ Butot-Vénesville (76450) à vendre à 4 km de la Manche, donnez vie à la maison de vos rêves sur ce terrain de 800 m². Il est situé dans un secteur recherché. On y trouve une école élémentaire. On trouve un tennis à proximité.Il est à vendre pour la somme de 41 000 €. Contactez notre agence (Sébastien LENFANT : (Numéro supprimé)) pour plus de renseignements sur ce terrain ou sur les modalités de vente. Concrétisez vos projets immobiliers avec Les Maisons Extraco Yvetot .
Butot-Vénesville
TERRAIN ET MAISONButot-Vénesville : maison F4 (74 m²) à construire.QUARTIER RECHERCHÉ – MAISON 4 PIÈCES NEUVEÀ 4 km de la Manche, Les Maisons Extraco Yvetot vous présente cette maison de 4 pièces de plain-pied de 74 m² et de 800 m² de terrain en vente, située dans un quartier convoité de Butot-Vénesville (76450). Conçue de plain-pied, elle inclut trois chambres, une cuisine et une salle de bains.La maison est neuve.La maison se situe dans un secteur recherché. Une école élémentaire y est implantée. On trouve un tennis à quelques minutes.Elle est à vendre pour la somme de 195 360 €.Contactez Sébastien LENFANT (tél : (Numéro supprimé)) pour toute question sur la maison. Les Maisons Extraco Yvetot est là pour vous accompagner dans toutes vos démarches.
Butot-Vénesville
TERRAIN ET MAISONA construire: maison de 5 pièces (86 m²) à Butot-VénesvilleQUARTIER RECHERCHÉ – MAISON 5 PIÈCES NEUVELocalisée à 4 km de la Manche, nous sommes heureux de vous présenter cette maison de 5 pièces de 86 m² et de 800 m² de terrain dans un secteur attractif de Butot-Vénesville (76450). Elle comporte quatre chambres, une cuisine et deux salles de bains.Il s’agit d’une maison de 2 niveaux. Elle est neuve.Cette maison se situe dans un quartier prisé. Une école élémentaire y est implantée. Il y a un tennis à quelques minutes à peine.Elle est à vendre pour la somme de 206 530 €.Contactez notre agence (LENFANT Sébastien : (Numéro supprimé)) pour toute question sur la maison, sur les modalités de vente ou sur les démarches à suivre. Extraco construction rénovation Yvetot vous accompagne dans tous vos projets immobiliers et à toutes les étapes de l’achat.
Butot-Vénesville
TERRAIN ET MAISONButot-Vénesville : maison de 4 pièces (93 m²) à construire.QUARTIER RECHERCHÉ – MAISON 4 PIÈCES NEUVEEn vente à 4 km de la Manche, votre agence Extraco construction rénovation Yvetot est ravie de vous présenter cette maison de 4 pièces de plain-pied de 93 m² et de 800 m² de terrain, située dans un secteur prisé de Butot-Vénesville (76450). Elle propose trois chambres, une cuisine et une salle de bains.La maison est neuve.Cette maison se situe dans un quartier convoité. Une école élémentaire y est implantée. On trouve un tennis à quelques minutes de la maison.Elle est proposée à l’achat pour 201 360 €.Contactez notre agence (Sébastien LENFANT : (Numéro supprimé)) pour plus de renseignements sur la maison. Donnez vie à vos projets immobiliers avec Extraco construction rénovation Yvetot.
Butot-Vénesville
TERRAIN ET MAISONA construire : maison de 5 pièces (92 m²) à Butot-VénesvilleQUARTIER RECHERCHÉ – MAISON 5 PIÈCES NEUVESituée à 4 km de la Manche, nous sommes heureux de vous présenter, située dans un secteur recherché de Butot-Vénesville (76450), cette maison de 5 pièces de plain-pied de 92 m² et de 800 m² de terrain.Conçue de plain-pied, elle inclut quatre chambres, une cuisine et une salle de bains. Cette maison est neuve.La maison se situe dans un quartier prisé. Une école élémentaire y est implantée. Il y a un tennis à quelques minutes.Elle est à vendre pour la somme de 212 630 €.N’hésitez pas à prendre contact avec notre agence (Sébastien LENFANT : (Numéro supprimé)) pour toute question sur la maison, sur les démarches à suivre ou sur les modalités de vente. Extraco construction rénovation Yvetot vous accompagne dans tous vos projets immobiliers et dans toutes vos démarches.
Grainville-la-Teinturière
TERRAINTerrain de 650 m² en vente à Grainville-la-TeinturièreIDÉALEMENT SITUÉÀ 13 km de la Manche à Grainville-la-Teinturière (76450), grand terrain. Il est prêt à accueillir la maison de vos rêves pour toute la famille. Il se situe dans un quartier recherché. L’École Primaire Charles de Gaulle est implantée à moins de 10 minutes à pied. Les autoroutes A29 et A150 sont accessibles à moins de 18 km. Il y a une boulangerie et une boucherie-charcuterie à quelques minutes à peine.Son prix de vente est de 45 000 €. Contactez notre agence (LENFANT Sébastien : (Numéro supprimé)) pour toute information sur le terrain ou sur les démarches à suivre.
Grainville-la-Teinturière
TERRAIN ET MAISONMaison F3 (65 m²) à construire à Grainville-la-TeinturièreIDÉALEMENT SITUÉE – MAISON 3 PIÈCES NEUVEÀ 13 km de la Manche, idéalement située dans Grainville-la-Teinturière (76450), nous sommes ravis de vous proposer cette maison de 3 pièces de plain-pied de 65 m² et de 650 m² de terrain. Elle offre deux chambres, une cuisine et une salle de bains.La maison est neuve.Cette propriété se situe dans un secteur prisé. L’École Primaire Charles de Gaulle se trouve à moins de 10 minutes à pied. Les autoroutes A29 et A150 sont accessibles à moins de 18 km. Il y a une boulangerie et une boucherie-charcuterie à quelques minutes du bien.Elle est proposée à l’achat pour 192 300 €.Contactez Sébastien LENFANT (tél : (Numéro supprimé)) pour toute information sur la maison ou sur les modalités de vente. Extraco construction rénovation Yvetot est là pour vous accompagner à toutes les étapes de l’achat.
Grainville-la-Teinturière
TERRAIN ET MAISONA construire: maison de 4 pièces (81 m²) à Grainville-la-TeinturièreIDÉALEMENT SITUÉE – MAISON 4 PIÈCES NEUVEÀ 13 km de la Manche, nous sommes heureux de vous présenter, idéalement située dans Grainville-la-Teinturière (76450), cette maison de 4 pièces de 81 m² et de 650 m² de terrain.Cette maison possède 2 niveaux. Son intérieur se divise en trois chambres, une cuisine et une salle de bains. La maison est neuve.La maison est située dans un quartier attractif. On trouve l’École Primaire Charles de Gaulle à moins de 10 minutes à pied. Les autoroutes A29 et A150 sont accessibles à moins de 18 km. Il y a une boulangerie et une boucherie-charcuterie à proximité.Elle est proposée à l’achat pour 208 650 €.N’hésitez pas à prendre contact avec Sébastien LENFANT (tél : (Numéro supprimé)) pour obtenir de plus amples renseignements sur le bien ou sur les modalités de vente. Extraco construction rénovation Yvetot est là pour vous accompagner dans toutes vos démarches.
Grainville-la-Teinturière
TERRAIN ET MAISONA construire: maison de 4 pièces (74 m²) à Grainville-la-TeinturièreIDÉALEMENT SITUÉE – MAISON 4 PIÈCES NEUVEA 13 km de la Manche, nous sommes heureux de vous présenter cette maison de 4 pièces de plain-pied de 74 m² et de 650 m² de terrain, idéalement située dans Grainville-la-Teinturière (76450).Conçue de plain-pied, elle est composée de trois chambres, d’une cuisine et d’une salle de bains. La maison est neuve.La maison est située dans un quartier recherché. On trouve l’École Primaire Charles de Gaulle à moins de 10 minutes à pied. Les autoroutes A29 et A150 sont accessibles à moins de 18 km. Il y a une boulangerie et une boucherie-charcuterie dans les environs.Elle est à vendre pour la somme de 198 520 €.Contactez notre agence (Sébastien LENFANT : (Numéro supprimé)) pour toute information sur la propriété. Faites de vos projets immobiliers une réalité avec Extraco construction rénovation Yvetot.
L’actualité immobilière à Cany-Barville
27/11/2023
02/11/2023
30/10/2023
20/10/2023
16/10/2023
16/10/2023