Images
Description
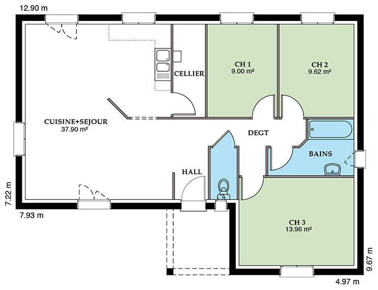
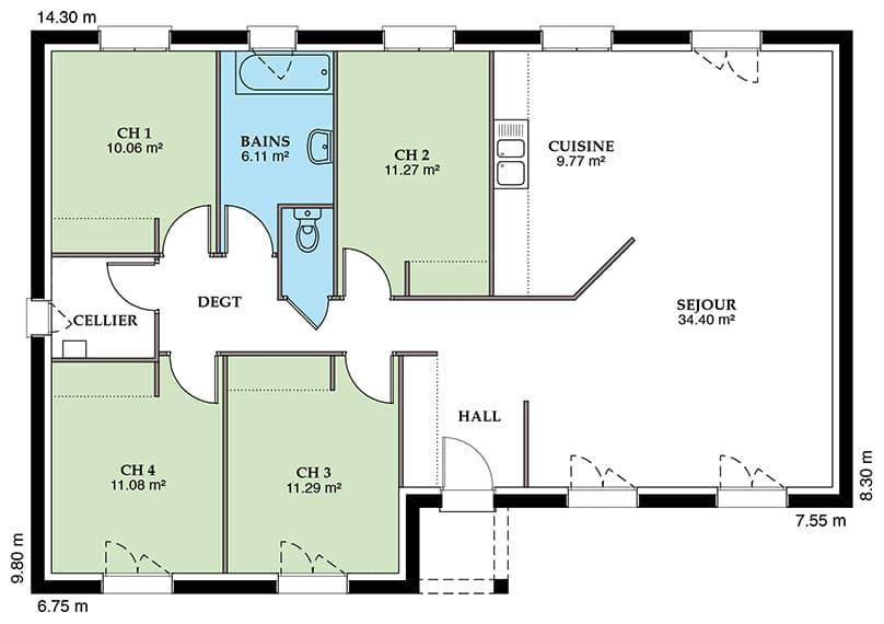
Nous vous proposons cette maison neuve, modèle Montivilliere, une habitation qui allie élégance, fonctionnalité et respect de l'environnement. Conçue pour répondre aux attentes des plus exigeants, cette maison de 79 m² offre un cadre de vie idéal pour une petite famille ou un couple, avec ses 2 chambres et ses 3 pièces réparties dans un plan en T optimisant chaque espace.
Le porche accueillant vous invite à découvrir un intérieur pensé pour votre confort et votre bien-être, où la lumière naturelle est mise à l'honneur grâce à des menuiseries en aluminium, option plébiscitée pour son esthétique et sa durabilité. La possibilité d'ajouter un garage accolé offre une solution pratique pour votre véhicule ou pour un espace de rangement supplémentaire, répondant ainsi à toutes vos attentes en matière d'aménagement.
La Montivilliere se distingue par son excellent rapport qualité/prix, vous garantissant de faire le meilleur investissement pour votre avenir. De plus, cette maison est conçue pour être basse consommation et est entièrement conforme à la réglementation environnementale RE2020, vous assurant ainsi des économies d'énergie significatives et un respect total de l'environnement.
Avec sept versions différentes disponibles, allant de deux à quatre chambres, et une multitude d'options de personnalisation, la Montivilliere est la promesse d'une maison qui s'adapte parfaitement à vos besoins et à votre style de vie. Que vous rêviez d'une demeure cosy de 72 m² ou d'un espace plus vaste de 127 m², ce modèle offre une flexibilité inégalée pour créer le foyer de vos rêves.
Ne manquez pas l'opportunité de vous offrir cette maison neuve, symbole d'un mode de vie moderne, confortable et responsable. La Montivilliere vous attend pour commencer un nouveau chapitre de votre vie dans un cadre exceptionnel. Contactez-nous dès maintenant pour plus d'informations et laissez-vous séduire par le charme et les avantages de cette magnifique propriété.
Logement susceptibles de vous intéresser
Nous vous proposons de découvrir aussi cette sélection de logements situés à moins de 10km de Clères et qui seraient susceptibles de vous intéresser.
Fresquiennes
TERRAINVENTE d’un terrain de 600 m² à FresquiennesIDÉALEMENT SITUÉ – PROCHE DE ROUENÀ vendre à 41 km de la Manche et à 15 km de Rouen à Fresquiennes (76570), grand terrain. Ce terrain, orienté plein sud-ouest, donne sur un espace vert. Dans un secteur convoité, le terrain idéalement situé est proche des commerces et des écoles. On trouve l’École Primaire des Marronniers à moins de 10 minutes à pied. Niveau transports, il y a six gares à moins de 10 minutes en voiture. Les autoroutes A151, A150 et A29 et la nationale N27 sont accessibles à moins de 10 km. On trouve une boulangerie dans les environs.Ce terrain est proposé à l’achat pour 90 000 €. Contactez notre agence (Lindsay COLLAY : (Numéro supprimé)) pour tout renseignement sur le terrain ou sur les modalités de vente. Maisons France Confort Sainte-Marie-des-Champs vous accompagne dans toutes vos démarches et à toutes les étapes de l’achat.
Fresquiennes
TERRAIN ET MAISONMaison de 5 pièces (91 m²) à construire à Fresquiennes DERNIER TERRAIN !!IDÉALEMENT SITUÉE – MAISON 5 PIÈCES NEUVEÀ construire à 41 km de la Manche et à deux pas de Rouen, nous sommes ravis de vous présenter cette maison de 5 pièces de 91 m² et de 600 m² de terrain idéalement située dans Fresquiennes (76570).C’est une maison de 2 niveaux. Elle se divise en quatre chambres, une cuisine et une salle de bains. La maison est neuve.La maison se trouve dans un quartier recherché. L’École Primaire des Marronniers est implantée à moins de 10 minutes à pied. Niveau transports, on trouve six gares à moins de 10 minutes en voiture. Les autoroutes A151, A150 et A29 et la nationale N27 sont accessibles à moins de 10 km. Il y a une boulangerie à proximité du bien.Elle est à vendre pour la somme de 238 777 €.Prenez contact avec notre agence (COLLAY Lindsay : (Numéro supprimé)) pour toute question sur la propriété, sur les modalités de vente ou sur les démarches à suivre.
Fresquiennes
TERRAIN ET MAISONA construire : maison F4 (60 m²) à Fresquiennes SPECIAL INVESTISSEURIDÉALEMENT SITUÉE – MAISON 4 PIÈCES NEUVEEn vente à 41 km de la Manche et à deux pas de Rouen, idéalement située dans Fresquiennes (76570), Maisons France Confort Sainte-Marie-des-Champs vous présente cette maison de 4 pièces de plain-pied de 60 m² et de 600 m² de terrain. Elle comporte deux chambres, une cuisine et une salle de bains.Cette maison est neuve.La maison se situe dans un secteur prisé. Il y a l’École Primaire des Marronniers à moins de 10 minutes à pied. Côté transports, on trouve six gares à moins de 10 minutes en voiture. Les autoroutes A151, A150 et A29 et la nationale N27 sont accessibles à moins de 10 km. Il y a une boulangerie à quelques minutes.Son prix de vente est de 194 315 €.Prenez contact avec Lindsay COLLAY (tél : (Numéro supprimé)) pour tout renseignement sur la maison ou sur les démarches à suivre. Maisons France Confort Sainte-Marie-des-Champs vous accompagne à toutes les étapes de l’achat et dans tous vos projets immobiliers.
Eslettes
TERRAINÀ ESLETTES, terrain constructible à acheter.Sur la commune de ESLETTES, opportunité à saisir avec ce terrain. Vous pourrez exploiter une surface de 600 m2 pour créer votre future maison. N’hésitez pas à contacter Alexis RINGOT ((Numéro supprimé)) Maisons Extraco Les Essarts si vous avez des questions. Premiers échanges par SMS ou mail possible.RINGOT Alexis(Numéro supprimé)a.ringot at extraco.fr
Eslettes
TERRAIN ET MAISONMaison idéalement située à ESLTTES sur un terrain de 600 m². À proximité, dans le bourg : école, boulangerie, parc pour enfants, bus vert. Cette maison contemporaine bénéficie d’un agencement agréable : – Salon/séjour avec cuisine ouverte de 45 m², avec une grande baie coulissante de 2,20 m en alu, – cellier, – 3 chambres avec placards, – suite parentale avec dressing et douche à l’italienne, – salle de bains avec baignoire et douche, – garage de 15 m². Isolation renforcée avec système de chauffage très économique par pompe à chaleur. Maison certifiée RE20. DPE : A / GSE : B.Venez nous rencontrer et visiter notre showroom : Maisons Extraco – 3 Rue de la Scierie – 76530 LES ESSARTS Personnalisée sur les secteurs de votre choix. Étude gratuite auprès de votre conseiller : Alexis RINGOT ((Numéro supprimé) / a.ringot at extraco.fr). (Premier échange par SMS possible)
Eslettes
TERRAIN ET MAISONMaison idéalement située à ESLTTES sur un terrain de 600 m². À proximité, dans le bourg : école, boulangerie, parc pour enfants, bus vert. Cette maison contemporaine bénéficie d’un agencement agréable : – Salon/séjour avec cuisine ouverte de 45 m², avec une grande baie coulissante de 2,20 m en alu, – cellier, – 3 chambres avec placards, – suite parentale avec dressing et douche à l’italienne, – salle de bains avec baignoire et douche, – garage de 15 m². Isolation renforcée avec système de chauffage très économique par pompe à chaleur. Maison certifiée RE20. DPE : A / GSE : B.Venez nous rencontrer et visiter notre showroom : Maisons Extraco – 3 Rue de la Scierie – 76530 LES ESSARTS Personnalisée sur les secteurs de votre choix. Étude gratuite auprès de votre conseiller : Alexis RINGOT ((Numéro supprimé) / a.ringot at extraco.fr). (Premier échange par SMS possible)
Eslettes
TERRAIN ET MAISONMaison idéalement située à ESLTTES sur un terrain de 600 m². À proximité, dans le bourg : école, boulangerie, parc pour enfants, bus vert. Cette maison contemporaine bénéficie d’un agencement agréable : – Salon/séjour avec cuisine ouverte de 45 m², avec une grande baie coulissante de 2,20 m en alu, – cellier, – 3 chambres avec placards, – suite parentale avec dressing et douche à l’italienne, – salle de bains avec baignoire et douche, – garage de 15 m². Isolation renforcée avec système de chauffage très économique par pompe à chaleur. Maison certifiée RE20. DPE : A / GSE : B.Venez nous rencontrer et visiter notre showroom : Maisons Extraco – 3 Rue de la Scierie – 76530 LES ESSARTS Personnalisée sur les secteurs de votre choix. Étude gratuite auprès de votre conseiller : Alexis RINGOT ((Numéro supprimé) / a.ringot at extraco.fr). (Premier échange par SMS possible)
Eslettes
TERRAIN ET MAISONMaison idéalement située à ESLTTES sur un terrain de 600 m². À proximité, dans le bourg : école, boulangerie, parc pour enfants, bus vert. Cette maison contemporaine bénéficie d’un agencement agréable : – Salon/séjour avec cuisine ouverte de 45 m², avec une grande baie coulissante de 2,20 m en alu, – cellier, – 3 chambres avec placards, – suite parentale avec dressing et douche à l’italienne, – salle de bains avec baignoire et douche, – garage de 15 m². Isolation renforcée avec système de chauffage très économique par pompe à chaleur. Maison certifiée RE20. DPE : A / GSE : B.Venez nous rencontrer et visiter notre showroom : Maisons Extraco – 3 Rue de la Scierie – 76530 LES ESSARTS Personnalisée sur les secteurs de votre choix. Étude gratuite auprès de votre conseiller : Alexis RINGOT ((Numéro supprimé) / a.ringot at extraco.fr). (Premier échange par SMS possible)
Eslettes
TERRAIN ET MAISONMaison idéalement située à ESLTTES sur un terrain de 600 m². À proximité, dans le bourg : école, boulangerie, parc pour enfants, bus vert. Cette maison contemporaine bénéficie d’un agencement agréable : – Salon/séjour avec cuisine ouverte de 45 m², avec une grande baie coulissante de 2,20 m en alu, – cellier, – 3 chambres avec placards, – suite parentale avec dressing et douche à l’italienne, – salle de bains avec baignoire et douche, – garage de 15 m². Isolation renforcée avec système de chauffage très économique par pompe à chaleur. Maison certifiée RE20. DPE : A / GSE : B.Venez nous rencontrer et visiter notre showroom : Maisons Extraco – 3 Rue de la Scierie – 76530 LES ESSARTS Personnalisée sur les secteurs de votre choix. Étude gratuite auprès de votre conseiller : Alexis RINGOT ((Numéro supprimé) / a.ringot at extraco.fr). (Premier échange par SMS possible)
L’actualité immobilière à Clères
27/11/2023
02/11/2023
30/10/2023
20/10/2023
16/10/2023
16/10/2023