Maison à construire à Criquetot-sur-Ouville (76760)
Images
Description
Maison idéalement située à Criquetot-sur-Ouville sur un terrain de 680 m².
À proximité, dans le bourg : école, boulangerie, parc pour enfants, bus vert.
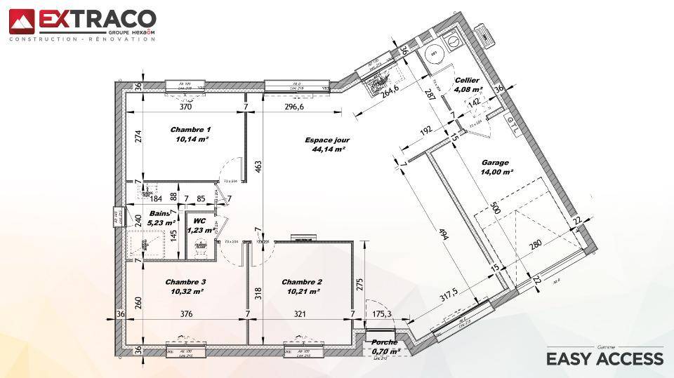
Cette maison contemporaine bénéficie d'un agencement agréable : - Salon/séjour avec cuisine ouverte de 45 m², avec une grande baie coulissante de 2,20 m en alu, - cellier, - 3 chambres avec placards, - suite parentale avec dressing et douche à l'italienne, - salle de bains avec baignoire et douche, - garage de 15 m².
Isolation renforcée avec système de chauffage très économique par pompe à chaleur. Maison certifiée RE20. DPE : A / GSE : B.
Venez nous rencontrer et visiter notre showroom : Maisons Extraco - 3 Rue de la Scierie - 76530 LES ESSARTS
Personnalisée sur les secteurs de votre choix. Étude gratuite auprès de votre conseillère : Justine LEROY ((Numéro supprimé) / j.leroy at extraco.fr).
(Premier échange par SMS possible)
Logement susceptibles de vous intéresser
Nous vous proposons de découvrir aussi cette sélection de logements situés à moins de 10km de Criquetot-sur-Ouville et qui seraient susceptibles de vous intéresser.
Émanville
TERRAINVENTE : terrain de 798 m² à ÉmanvilleIDÉALEMENT SITUÉ – PROCHE DE ROUENÀ 36 km de la Manche et à quelques kilomètres de Rouen à Émanville (76570), grand terrain. Réalisez-y la maison de vos rêves. Il donne sur un espace vert. Dans un secteur attractif, le terrain idéalement situé est proche des commerces et des écoles. L’École Primaire des Bleuets est implantée à moins de 10 minutes à pied, tout comme une crèche. Niveau transports, il y a trois gares (Pavilly, Barentin et Motteville) à moins de 10 minutes en voiture. Les autoroutes A151 et A29 et la nationale N27 sont accessibles à moins de 7 km. On trouve un supermarché à proximité du terrain.Ce terrain est à vendre pour la somme de 63 000 €. Contactez notre agence (Lindsay COLLAY : (Numéro supprimé)) pour toute question sur le terrain. Concrétisez vos projets immobiliers avec Maisons France Confort Sainte-Marie-des-Champs.
Émanville
TERRAIN ET MAISONA construire: maison de 5 pièces (101 m²) à ÉmanvilleIDÉALEMENT SITUÉE – MAISON 5 PIÈCES NEUVEÀ 36 km de la Manche et à 22 km de Rouen, notre agence Maisons France Confort Sainte-Marie-des-Champs est heureuse de vous présenter en vente, idéalement située dans Émanville (76570), cette maison de 5 pièces de plain-pied de 101 m². Conçue de plain-pied, elle comporte quatre chambres, une cuisine et une salle de bains.Le terrain de la maison s’étend sur 798 m².Cette maison est neuve.Cette maison se trouve dans un secteur recherché. Il y a l’École Primaire des Bleuets à moins de 10 minutes à pied et une crèche. Niveau transports, on trouve les gares Pavilly, Barentin et Motteville à moins de 10 minutes en voiture. Les autoroutes A151 et A29 et la nationale N27 sont accessibles à moins de 7 km. Il y a un supermarché dans les environs.Son prix de vente est de 199 912 €.Contactez notre agence (COLLAY Lindsay : (Numéro supprimé)) pour tout renseignement sur le bien, sur les démarches à suivre ou sur les modalités de vente. Concrétisez vos projets immobiliers avec Maisons France Confort Sainte-Marie-des-Champs.
Émanville
TERRAIN ET MAISONA construire : maison de 5 pièces (98 m²) à ÉmanvilleIDÉALEMENT SITUÉE – MAISON 5 PIÈCES NEUVEÀ 36 km de la Manche et à 22 km de Rouen, à construire idéalement située dans Émanville (76570), notre agence Maisons France Confort Sainte-Marie-des-Champs est heureuse de vous présenter cette maison de 5 pièces de 98 m².C’est une maison de 2 niveaux. Son intérieur est composé de quatre chambres, d’une cuisine et d’une salle de bains. La maison est neuve.Le terrain de la propriété est de 798 m².Cette maison se situe dans un secteur convoité. On trouve l’École Primaire des Bleuets à moins de 10 minutes à pied et une crèche. Niveau transports, il y a trois gares (Pavilly, Barentin et Motteville) à moins de 10 minutes en voiture. Les autoroutes A151 et A29 et la nationale N27 sont accessibles à moins de 7 km. On trouve un supermarché dans les environs.Elle est proposée à l’achat pour 211 777 €.Contactez Lindsay COLLAY (tél : (Numéro supprimé)) pour toute question sur la maison ou sur les démarches à suivre.
Étalleville
TERRAINTerrain de 1 700 m² en vente à ÉtallevilleIDÉALEMENT SITUÉ – PROCHE DE DIEPPEEn vente à 20 km de la Manche et à 28 km de Dieppe à Étalleville (76560), grand terrain. Il est prêt à accueillir votre projet immobilier pour toute la famille. Il est situé dans un quartier attractif. Une école élémentaire y est implantée. L’autoroute A29 est accessible à 10 km.Ce terrain est proposé à l’achat pour 45 000 €. N’hésitez pas à prendre contact avec notre agence (Sébastien LENFANT : (Numéro supprimé)) pour tout renseignement sur le terrain ou sur les modalités de vente.
Étalleville
TERRAINÉtalleville : terrain de 1 300 m² en ventePROCHE DE DIEPPEEn vente à 20 km de la Manche et à 28 km de Dieppe à Étalleville (76560), grand terrain. Réalisez-y votre projet immobilier. Il y a une école élémentaire dans le quartier. L’autoroute A29 est accessible à 10 km.Il est proposé à l’achat pour 45 000 €. Prenez contact avec Sébastien LENFANT (tél : (Numéro supprimé)) pour toute question sur ce terrain.
Limésy
TERRAINTerrain de 714 m² à construire à LimésyCENTRE-VILLE – PROCHE DE ROUENÀ Limésy (76570) à vendre à 38 km de la Manche et à deux pas de Rouen, donnez vie à votre projet de construction sur ce terrain de 714 m². Il se situe en centre-ville. L’École Primaire Albert Mallet et l’École Primaire Privée Sainte Isabelle sont implantées à moins de 10 minutes à pied. Côté transports en commun, on trouve les gares Pavilly, Motteville et Barentin à moins de 10 minutes en voiture. Les autoroutes A150, A29 et A151 et la nationale N27 sont accessibles à moins de 10 km. Il y a une bibliothèque, un tennis, une boulangerie, une boucherie-charcuterie et une épicerie à quelques minutes à peine.Il est proposé à l’achat pour 78 000 €. Prenez contact avec notre agence (Sébastien LENFANT : (Numéro supprimé)) pour toute information sur ce terrain, sur les démarches à suivre et sur les modalités de vente. Faites de vos projets immobiliers une réalité avec Extraco construction rénovation Yvetot.
Étalleville
TERRAIN ET MAISONÉtalleville : maison T4 (93 m²) à construire.IDÉALEMENT SITUÉE – MAISON 4 PIÈCES NEUVEA deux pas de Dieppe, Extraco construction rénovation Yvetot vous présente cette maison de 4 pièces de plain-pied de 93 m², idéalement située dans Étalleville (76560). Elle offre trois chambres, une cuisine et une salle de bains.Le terrain de la propriété s’étend sur 1 700 m².Cette maison est neuve.Cette maison se trouve dans un secteur attractif. On y trouve une école élémentaire. L’autoroute A29 est accessible à 10 km.Son prix de vente est de 205 690 €.Prenez contact avec notre agence (Sébastien LENFANT : (Numéro supprimé)) pour toute question sur la maison, sur les démarches à suivre ou sur les modalités de vente. Concrétisez vos projets immobiliers avec Extraco construction rénovation Yvetot.
Étalleville
TERRAIN ET MAISONMaison de 3 pièces (99 m²) à construire à ÉtallevilleIDÉALEMENT SITUÉE – MAISON 3 PIÈCES NEUVEA 28 km de Dieppe, nous vous proposons, idéalement située dans Étalleville (76560), cette maison de 3 pièces de plain-pied de 99 m² et de 1 700 m² de terrain.Elle propose trois chambres, une cuisine et deux salles de bains. La maison est neuve.Cette maison se trouve dans un quartier convoité. Une école élémentaire y est implantée. L’autoroute A29 est accessible à 10 km.Son prix de vente est de 237 780 €.Prenez contact avec Sébastien LENFANT (tél : (Numéro supprimé)) pour toute question sur la maison ou sur les démarches à suivre. Extraco construction rénovation Yvetot est là pour vous accompagner à toutes les étapes de votre projet.
Étalleville
TERRAIN ET MAISONMaison de 4 pièces (112 m²) à construire à ÉtallevilleIDÉALEMENT SITUÉE – MAISON 4 PIÈCES NEUVEÀ 20 km de la Manche et à deux pas de Dieppe, en vente idéalement située dans Étalleville (76560), venez découvrir cette maison de 4 pièces de 112 m² et de 1 700 m² de terrain. Elle inclut quatre chambres, une cuisine et deux salles de bains.C’est une maison de 2 niveaux. Elle est neuve.Ce bien se trouve dans un secteur prisé. Une école élémentaire y est implantée. On trouve un accès à l’autoroute A29 à 10 km.Son prix de vente est de 243 250 €.N’hésitez pas à prendre contact avec notre agence (LENFANT Sébastien : (Numéro supprimé)) pour tout renseignement sur la maison ou sur les démarches à suivre.
L’actualité immobilière à Criquetot-sur-Ouville
27/11/2023
02/11/2023
30/10/2023
20/10/2023
16/10/2023
16/10/2023