Maison à construire à Dancourt (76340)
Images
Description
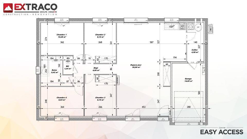
Maison de 5 pièces (92 m²) à vendre à Dancourt
MAISON 5 PIÈCES NEUVE
En vente : localisée à 26 km de la Manche, notre agence Les Maisons Extraco Eu est ravie de vous proposer cette maison de 5 pièces de plain-pied de 92 m² à Dancourt (76340). Conçue de plain-pied, elle comporte quatre chambres, une cuisine et une salle de bains.
Le terrain du bien s'étend sur 1 000 m².
La maison est neuve.
Niveau transports en commun, il y a deux gares (Blangy-sur-Bresle et Longroy-Gamaches) à moins de 10 minutes en voiture. L'autoroute A28 est accessible à 8 km. On trouve un tennis à proximité.
Elle est à vendre pour la somme de 172 000 €.
Contactez notre constructeur (DERULLES Delphine : (Numéro supprimé)) pour tout renseignement sur cette maison, sur les démarches à suivre ou sur les modalités de vente. Les Maisons Extraco Eu est là pour vous accompagner dans tous vos projets immobiliers.
Logement susceptibles de vous intéresser
Nous vous proposons de découvrir aussi cette sélection de logements situés à moins de 10km de Dancourt et qui seraient susceptibles de vous intéresser.
Melleville
TERRAIN ET MAISONVENTE : maison de 5 pièces (95 m²) à MellevilleMAISON 5 PIÈCES NEUVE – PROCHE DE DIEPPEÀ vendre à 16 km de la Manche et à deux pas de Dieppe, nous vous proposons cette maison de 5 pièces de plain-pied de 95 m² et de 900 m² de terrain à Melleville (76260). Conçue de plain-pied, elle se divise en quatre chambres, une cuisine et une salle de bains.Cette maison est neuve.Il y a une école élémentaire dans le quartier. Niveau transports en commun, on trouve la gare Longroy-Gamaches à moins de 10 minutes en voiture. L’autoroute A28 est accessible à 13 km.Elle est à vendre pour la somme de 163 500 €.N’hésitez pas à prendre contact avec Delphine DERULLES ((Numéro supprimé)) pour obtenir de plus amples renseignements sur cette maison ou sur les démarches à suivre. Les Maisons Extraco Eu est là pour vous accompagner dans tous vos projets immobiliers.
Bouillancourt-en-Séry
TERRAIN ET MAISONVENTE : maison de 5 pièces (95 m²) à Bouillancourt-en-SéryMAISON 5 PIÈCES NEUVEEn vente à 26 km de la Manche, Les Maisons Extraco Eu vous propose cette maison de 5 pièces de plain-pied de 95 m² à Bouillancourt-en-Séry (80220).Elle compte quatre chambres, une cuisine et une salle de bains. La maison est neuve.Le terrain de la propriété s’étend sur 828 m².Il y a une école primaire dans le quartier. Niveau transports, on trouve deux gares (Blangy-sur-Bresle et Longroy-Gamaches) à moins de 10 minutes en voiture. On trouve un accès à l’autoroute A28 à 4 km.Elle est à vendre pour la somme de 167 700 €.N’hésitez pas à prendre contact avec Delphine DERULLES ((Numéro supprimé)) pour plus de renseignements sur cette propriété.
Melleville
TERRAINVENTE d’un terrain de 900 m² à MellevillePROCHE DE DIEPPEÀ vendre à 16 km de la Manche et à 28 km de Dieppe à Melleville (76260), grand terrain. Réalisez-y votre résidence principale ou secondaire. Une école élémentaire est implantée dans le quartier. Côté transports en commun, il y a la gare Longroy-Gamaches à moins de 10 minutes en voiture. L’autoroute A28 est accessible à 13 km.Il est proposé à l’achat pour 25 000 €. N’hésitez pas à prendre contact avec notre agence (Delphine DERULLES : (Numéro supprimé)) pour toute information sur le terrain, sur les démarches à suivre ou sur les modalités de vente.
Melleville
TERRAIN ET MAISONMelleville : maison T5 (92 m²) à vendrePROCHE DE DIEPPE – MAISON 5 PIÈCES NEUVEÀ vendre : localisée à 16 km de la Manche et à 28 km de Dieppe, notre agence Les Maisons Extraco Eu est heureuse de vous proposer cette maison de 5 pièces de plain-pied de 92 m² à Melleville (76260).Son intérieur dispose de quatre chambres, d’une cuisine et d’une salle de bains. La maison est neuve.Le terrain de la propriété s’étend sur 900 m².Une école élémentaire est implantée dans le quartier. Côté transports, on trouve la gare Longroy-Gamaches à moins de 10 minutes en voiture. L’autoroute A28 est accessible à 13 km.Son prix de vente est de 173 500 €.Prenez contact avec Delphine DERULLES (tél : (Numéro supprimé)) pour tout renseignement sur cette maison, sur les modalités de vente ou sur les démarches à suivre. Les Maisons Extraco Eu est là pour vous accompagner à toutes les étapes de votre projet.
Bouttencourt
TERRAINVENTE d’un terrain de 448 m² à BouttencourtÀ vendre à 28 km de la Manche à Bouttencourt (80220), terrain de 448 m². Il est prêt à accueillir votre projet immobilier pour toute la famille. Une école primaire est implantée dans le quartier. Côté transports en commun, il y a la gare Blangy-sur-Bresle à moins de 10 minutes à pied. L’autoroute A28 est accessible à 2 km. On trouve deux tennis, un supermarché, des commerces, deux boulangeries, deux boucheries-charcuteries et deux épiceries à quelques minutes du terrain. Le marché Centre-Ville anime les environs tous les dimanches matin.Ce terrain est à vendre pour la somme de 22 400 €. N’hésitez pas à prendre contact avec Delphine DERULLES ((Numéro supprimé)) pour tout renseignement sur le terrain. Les Maisons Extraco Eu est là pour vous accompagner dans tous vos projets immobiliers.
Bouttencourt
TERRAIN ET MAISONBouttencourt : maison de 4 pièces (81 m²) en venteMAISON 4 PIÈCES NEUVEÀ vendre à 28 km de la Manche, découvrez cette maison de 4 pièces de 81 m² et de 448 m² de terrain à Bouttencourt (80220). Son intérieur dispose de deux chambres, d’une cuisine et d’une salle de bains.Il s’agit d’une maison de 2 niveaux. Elle est neuve.Une école primaire est implantée dans le quartier. Côté transports en commun, il y a la gare Blangy-sur-Bresle à moins de 10 minutes à pied. L’autoroute A28 est accessible à 2 km. On trouve deux tennis, un supermarché, des commerces, deux boulangeries, deux boucheries-charcuteries et un bureau de poste à proximité. Enfin, le marché Centre-Ville a lieu tous les dimanches matin.Elle est proposée à l’achat pour 164 000 €.Contactez notre agence (Delphine DERULLES : (Numéro supprimé)) pour toute information sur la maison, sur les modalités de vente ou sur les démarches à suivre.
Bouillancourt-en-Séry
TERRAIN ET MAISONVENTE : maison T5 (92 m²) à Bouillancourt-en-SéryMAISON 5 PIÈCES NEUVEÀ vendre : à 26 km de la Manche, Les Maisons Extraco Eu vous présente cette maison de 5 pièces de plain-pied de 92 m² et de 828 m² de terrain à Bouillancourt-en-Séry (80220). Conçue de plain-pied, elle se divise en quatre chambres, une cuisine et une salle de bains.Cette maison est neuve.Une école primaire est implantée dans le quartier. Côté transports en commun, il y a les gares Blangy-sur-Bresle et Longroy-Gamaches à moins de 10 minutes en voiture. Il y a un accès à l’autoroute A28 à 4 km.Elle est à vendre pour la somme de 177 700 €.N’hésitez pas à prendre contact avec notre agence (Delphine DERULLES : (Numéro supprimé)) pour obtenir de plus amples informations sur la maison.
Bouttencourt
TERRAIN ET MAISONVENTE : maison F5 (92 m²) à BouttencourtMAISON 5 PIÈCES NEUVEÀ 28 km de la Manche, découvrez cette maison de 5 pièces de plain-pied de 92 m² et de 448 m² de terrain à Bouttencourt (80220). Conçue de plain-pied, elle comporte quatre chambres, une cuisine et une salle de bains.La maison est neuve.Il y a une école primaire dans le quartier. Côté transports en commun, on trouve la gare Blangy-sur-Bresle à moins de 10 minutes à pied. L’autoroute A28 est accessible à 2 km. Il y a deux tennis, un supermarché, des commerces, deux boulangeries, deux épiceries et une poissonnerie dans les environs. Ne manquez pas le marché Centre-Ville tous les dimanches matin.Elle est proposée à l’achat pour 171 000 €.Contactez Delphine DERULLES (tél : (Numéro supprimé)) pour obtenir de plus amples renseignements sur cette maison, sur les démarches à suivre ou sur les modalités de vente.
Bouillancourt-en-Séry
TERRAIN ET MAISONVENTE d’une maison de 4 pièces (81 m²) à Bouillancourt-en-SéryMAISON 4 PIÈCES NEUVEEn vente à 26 km de la Manche, Les Maisons Extraco Eu vous présente cette maison de 4 pièces de 81 m² à Bouillancourt-en-Séry (80220).C’est une maison de 2 niveaux. Son intérieur dispose de deux chambres, d’une cuisine et d’une salle de bains. Cette maison est neuve.Le terrain de la propriété est de 828 m².Il y a une école primaire dans le quartier. Niveau transports, on trouve les gares Blangy-sur-Bresle et Longroy-Gamaches à moins de 10 minutes en voiture. L’autoroute A28 est accessible à 4 km.Elle est proposée à l’achat pour 170 700 €.Prenez contact avec Delphine DERULLES (tél : (Numéro supprimé)) pour toute information sur la maison, sur les démarches à suivre ou sur les modalités de vente. Concrétisez vos projets immobiliers avec Les Maisons Extraco Eu.
L’actualité immobilière à Dancourt
27/11/2023
02/11/2023
30/10/2023
20/10/2023
16/10/2023
16/10/2023