Images
Description
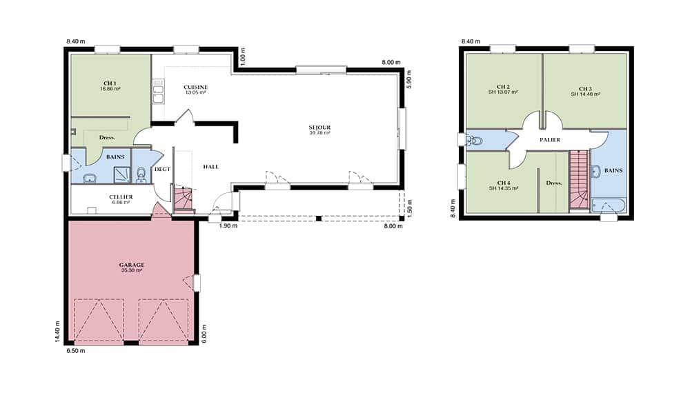
Nous vous proposons cette maison neuve, baptisée ""Barentine"", un modèle de résidence qui allie élégance et fonctionnalité, conçu pour répondre aux attentes des familles modernes. Avec une surface habitable de 115 m², cette maison se distingue par son plan en L, offrant une disposition originale et pratique des espaces de vie.
La ""Barentine"" comprend 3 chambres spacieuses, garantissant confort et intimité à chaque membre de la famille. Au total, la maison se compose de 4 pièces, pensées pour maximiser l'espace et la luminosité. L'une des caractéristiques remarquables de ce modèle est son garage intégré, assurant une transition fluide entre l'espace de vie et l'espace de stationnement, tout en offrant un espace de rangement supplémentaire très pratique.
La maison dispose également d'une deuxième salle de bains, offrant ainsi une commodité supplémentaire et évitant les embouteillages matinaux. Conforme à la norme RE2020, la ""Barentine"" est une maison basse consommation, conçue avec une attention particulière portée à l'efficacité énergétique et à l'impact environnemental. Cela signifie des factures d'énergie réduites et un confort accru toute l'année pour ses habitants.
Les options les plus plébiscitées par nos clients, telles que les menuiseries en aluminium et la domotique, sont disponibles pour personnaliser votre maison selon vos goûts et vos besoins. Ces améliorations non seulement renforcent l'esthétique moderne de la maison, mais améliorent également son efficacité et sa fonctionnalité, rendant la vie quotidienne plus pratique et agréable.
Inspirée du charme provençal, la ""Barentine"" présente une architecture cohérente et attrayante. Son design extérieur peut être personnalisé avec un enduit bicolore, ajoutant une touche d'élégance et de distinction. Que vous optiez pour une toiture à 2 ou 4 pans, cette maison vous propose raffinement et confort.
Découvrez le plaisir de vivre dans une maison qui allie beauté, confort et durabilité.
Logement susceptibles de vous intéresser
Nous vous proposons de découvrir aussi cette sélection de logements situés à moins de 10km de Darnétal et qui seraient susceptibles de vous intéresser.
Bois-Guillaume
TERRAIN ET MAISONNous vous proposons cette maison neuve, baptisée Barentine City, une demeure qui allie avec brio charme et élégance, s’inspirant de la magnifique architecture du sud de la France. Ce modèle, qui fait partie de nos propositions les plus prisées dans notre gamme traditionnelle, a été spécialement repensé pour s’adapter parfaitement aux exigences des environnements urbains, tout en conservant l’essence et la qualité qui ont fait la renommée de la Barentine originale.La Barentine City, d’une surface de 83 m², est conçue pour maximiser l’espace et la fonctionnalité sur un terrain étroit, sans jamais compromettre le style ou le confort. Elle dispose de trois chambres accueillantes et d’un total de quatre pièces, offrant ainsi un cadre de vie idéal pour une famille ou comme résidence secondaire. Son garage intégré assure une commodité supplémentaire, tandis que la galerie ajoute une touche d’élégance et d’ouverture vers l’extérieur.Parmi les caractéristiques qui distinguent la Barentine City, vous trouverez de série ou en option des menuiseries en aluminium, une terrasse bétonnée et un enduit bi-ton. Ces éléments s’associent harmonieusement pour créer une maison à la fois belle et fonctionnelle.Conscients de l’importance de la durabilité et de l’efficacité énergétique, nous avons conçu la Barentine City pour être une maison basse consommation, pleinement conforme à la réglementation environnementale RE2020. Cela signifie que vous bénéficierez non seulement d’un confort optimal tout au long de l’année, mais aussi d’une réduction significative de vos factures énergétiques.La Barentine City est plus qu’une maison ; c’est un lieu de vie pensé pour ceux qui cherchent à allier le charme traditionnel à des exigences modernes d’efficacité et de respect de l’environnement. Venez découvrir pourquoi ce modèle est tant apprécié et laissez-vous séduire par la possibilité de faire de la Barentine City votre nouveau chez-vous.
Bois-Guillaume
TERRAINDécouvrez ce magnifique terrain à vendre sur la commune prisée de Bois-Guillaume, dans le département de la Seine-Maritime. D’une surface généreuse de 368 m², ce terrain viabilisé offre une opportunité exceptionnelle pour la construction de votre future maison. Niché dans un quartier privilégié, il bénéficie d’une situation idéale, ensoleillée et arborée, garantissant une qualité de vie inégalée. Vous apprécierez la vue dégagée ainsi que le calme qui règne dans ce secteur recherché. Bois-Guillaume est une ville dynamique de Normandie, offrant un cadre de vie agréable à proximité de toutes les commodités nécessaires. Avec ses commerces de proximité, ses écoles et établissements secondaires, ainsi que l’accès facile aux transports en commun, vous serez au cœur de l’effervescence tout en profitant d’un environnement paisible. Les accès routiers à proximité vous permettront de rejoindre rapidement les grands axes et d’explorer la région. Ce terrain représente une opportunité rare, à saisir rapidement pour concrétiser votre projet immobilier. Ne manquez pas cette chance unique d’investir dans un terrain au fort potentiel, idéal pour bâtir la maison de vos rêves. Contactez-nous dès aujourd’hui pour plus d’informations! À noter qu’en tant que constructeur, nous ne sommes pas mandatés pour réaliser la vente de ce terrain.
Bois-Guillaume
TERRAIN ET MAISONNous vous proposons cette maison neuve, baptisée « »Barentine » », un modèle de résidence qui allie élégance et fonctionnalité, conçu pour répondre aux attentes des familles modernes. Avec une surface généreuse de 135 m², cette maison offre un espace de vie confortable et bien pensé, réparti en 4 chambres et 4 pièces principales, idéal pour accueillir une famille désireuse de confort et de bien-être.La Barentine se distingue par son plan en L, optimisant l’espace et offrant une séparation naturelle entre les espaces de vie et l’espace nuit, pour un quotidien harmonieux. La présence d’une tour centrale ajoute un cachet inimitable à l’ensemble, faisant de cette maison un lieu unique où il fait bon vivre.L’intégration d’un garage offre non seulement un espace de stationnement sécurisé mais aussi un espace de rangement supplémentaire, essentiel pour une vie de famille organisée. De plus, la maison dispose d’une deuxième salle de bains, garantissant confort et intimité pour tous les membres de la famille.Conforme à la norme RE2020, la Barentine est une maison basse consommation, conçue avec une attention particulière portée à l’efficacité énergétique et à l’impact environnemental. Ce modèle intègre des options très demandées telles que des menuiseries en aluminium et un système de domotique avancé, offrant ainsi un confort de vie inégalé tout en maîtrisant votre consommation d’énergie.L’extérieur de la maison peut être personnalisé avec un enduit bicolore, ajoutant une touche d’élégance et de personnalité à votre façade. La toiture, disponible en 2 ou 4 pans, complète le design provençal de cette demeure, faisant de la Barentine une maison prestigieuse et attachante qui saura vous séduire.Choisir la Barentine, c’est opter pour une maison neuve, moderne et écologique, prête à accueillir votre famille dans les meilleures conditions. Ne manquez pas l’opportunité de construire la maison de vos rêves, une maison qui allie beauté architecturale, confort de vie et respec
Bois-Guillaume
TERRAINIdéalement situé dans le charmant lotissement de Bois-Guillaume, ce terrain viabilisé de 791 mètres carrés offre une opportunité rare pour concrétiser votre projet de construction de maison. Grâce à ses caractéristiques uniques, cet espace est parfait pour ceux qui souhaitent bâtir une résidence à leur image, tout en bénéficiant d’un cadre de vie agréable et d’un environnement serein. La luminosité naturelle et la vue dégagée ajoutent un attrait indéniable à ce terrain de qualité. Bois-Guillaume, commune prisée de la Seine-Maritime en Normandie, se distingue par sa qualité de vie et son cadre verdoyant. À proximité des commerces et des commodités, vous trouverez également des écoles, un collège et un lycée, ce qui en fait un emplacement idéal pour les familles. Les transports en commun, ainsi que les accès autoroutiers, facilitent les déplacements vers les villes voisines. Le quartier, recherché pour son calme et ses espaces arborés, doit être visité pour apprécier pleinement son potentiel et ses atouts. Ne laissez pas passer cette occasion exceptionnelle d’acquérir un terrain au cœur d’une commune dynamique. Réalisez votre rêve de construction dans un cadre privilégié, à saisir rapidement. À noter qu’en tant que constructeur, nous ne sommes pas mandatés pour réaliser la vente de ce terrain.
Servaville-Salmonville
TERRAINVENTE : terrain de 616 m² à Servaville-SalmonvilleIDÉALEMENT SITUÉ – PROCHE DE ROUENÀ Servaville-Salmonville (76116) à vendre à deux pas de Rouen, venez découvrir ce terrain de 616 m². Il donne sur un espace vert et bénéficie d’une exposition sud-ouest. Dans un quartier recherché, ce terrain idéalement situé est proche des commerces et des écoles. L’École Maternelle Joseph Bara est implantée dans la commune. Niveau transports, il y a les gares Morgny-la-Pommeraye, Saint-Martin-du-Vivier et Longuerue-Vieux-Manoir à moins de 10 minutes en voiture. L’autoroute A28 et la nationale N28 sont accessibles à moins de 10 km. On trouve une bibliothèque, un tennis, un commerce et une boulangerie à quelques minutes à peine.Ce terrain est proposé à l’achat pour 75 000 €. N’hésitez pas à prendre contact avec notre agence (COLLAY Lindsay : (Numéro supprimé)) pour obtenir de plus amples informations sur le terrain ou sur les démarches à suivre. Maisons France Confort Sainte-Marie-des-Champs est là pour vous accompagner à toutes les étapes de votre projet.
Servaville-Salmonville
TERRAIN ET MAISONMaison de 5 pièces (85 m²) à construire à Servaville-SalmonvilleIDÉALEMENT SITUÉE – MAISON 5 PIÈCES NEUVEÀ quelques kilomètres de Rouen, en vente idéalement située dans Servaville-Salmonville (76116), Maisons France Confort Sainte-Marie-des-Champs vous propose cette maison de 5 pièces de plain-pied de 85 m². Son intérieur se divise en trois chambres, une cuisine et une salle de bains.Le terrain de la propriété est de 616 m².Cette maison est neuve.Le bien se situe dans un secteur attractif. On y trouve l’École Maternelle Joseph Bara. Côté transports en commun, il y a les gares Morgny-la-Pommeraye, Saint-Martin-du-Vivier et Longuerue-Vieux-Manoir à moins de 10 minutes en voiture. L’autoroute A28 et la nationale N28 sont accessibles à moins de 10 km. On trouve une bibliothèque, un tennis, un commerce et une boulangerie dans les environs.Il est à vendre pour la somme de 237 619 €.Contactez Lindsay COLLAY ((Numéro supprimé)) pour tout renseignement sur la maison, sur les démarches à suivre ou sur les modalités de vente. Maisons France Confort Sainte-Marie-des-Champs vous accompagne dans tous vos projets immobiliers et à toutes les étapes de votre projet.
Amfreville-la-Mi-Voie
TERRAINVENTE en VEFA: Magnifique maison prête à livrer sur un terrain de 550 m² à Amfreville-la-Mi-Voie. (prix du terrain à titre indicatif)Proche de Rouen – Maison dernière génération prête à livrer à Amfreville-la-Mi-Voie (76920) au prix de 419 000€À proximité : gares, écoles, bibliothèque, tennis, boulangeries, commerces, épicerie, boucherie-charcuterie et bureau de poste. Accès autoroutes et nationales à 10 km.Son prix de vente est de 149 000 €. Contactez Julien THOMAS ((Numéro supprimé)) pour obtenir de plus amples renseignements sur le terrain. Donnez vie à vos projets immobiliers avec Les Maisons Extraco Pont-de-l’Arche.
Amfreville-la-Mi-Voie
TERRAINVENTE en VEFA: Maison prête à livrer sur un terrain de 500 m² à Amfreville-la-Mi-Voie. (prix terrain à titre indicatif)Proche de Rouen – À Amfreville-la-Mi-Voie (76920) : Faites l’acquisition de cette maison dernière génération, prête à livrer au prix de 469 000€.À dix minutes : gares, écoles, bibliothèque, tennis, boulangeries, commerces, boucherie-charcuterie, bureau de poste et épicerie. Autoroutes et nationales accessibles à 10 km.Il est à vendre pour la somme de 129 000 €. Contactez Julien THOMAS (tél : (Numéro supprimé)) pour toute information sur le terrain. Les Maisons Extraco Pont-de-l’Arche vous accompagne dans toutes vos démarches et à toutes les étapes de l’achat.
Amfreville-la-Mi-Voie
TERRAINVENTE en VEFA: Magnifique maison contemporaine sur un terrain de 725 m² à Amfreville-la-Mi-Voie. (prix terrain à titre indicatif)Proche de Rouen – Réalisez votre rêve avec cette magnifique maison dernière génération, prête à livrer à Amfreville-la-Mi-Voie (76920) au prix de 499 000€À proximité : gares, écoles, bibliothèque, tennis, boulangeries, commerces, bureau de poste, boucherie-charcuterie et épicerie. Autoroutes et nationales à 10 km.Il est proposé à l’achat pour 131 000 €. Prenez contact avec Julien THOMAS ((Numéro supprimé)) pour obtenir de plus amples informations sur le terrain, sur les démarches à suivre et sur les modalités de vente. Donnez vie à vos projets immobiliers avec Les Maisons Extraco Pont-de-l’Arche.
L’actualité immobilière à Darnétal
27/11/2023
02/11/2023
30/10/2023
20/10/2023
16/10/2023
16/10/2023