Maison à construire à Émanville (76570)
Images
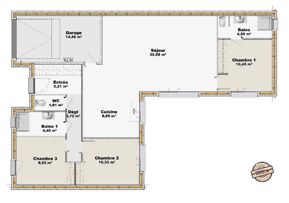
Description
Maison idéalement située à Emanville sur un terrain de 1521 m².
À proximité, dans le bourg : école, boulangerie, parc pour enfants, bus vert.
Cette maison contemporaine bénéficie d'un agencement agréable : - Salon/séjour avec cuisine ouverte de 45 m², avec une grande baie coulissante de 2,20 m en alu, - cellier, - 3 chambres avec placards, - suite parentale avec dressing et douche à l'italienne, - salle de bains avec baignoire et douche, - garage de 15 m².
Isolation renforcée avec système de chauffage très économique par pompe à chaleur. Maison certifiée RE20. DPE : A / GSE : B.
Venez nous rencontrer et visiter notre showroom : Maisons Extraco - 3 Rue de la Scierie - 76530 LES ESSARTS
Personnalisée sur les secteurs de votre choix. Étude gratuite auprès de votre conseillère : Justine LEROY ((Numéro supprimé) / j.leroy at extraco.fr).
(Premier échange par SMS possible)
Logement susceptibles de vous intéresser
Nous vous proposons de découvrir aussi cette sélection de logements situés à moins de 10km de Émanville et qui seraient susceptibles de vous intéresser.
Fresquiennes
TERRAINVENTE d’un terrain de 600 m² à FresquiennesIDÉALEMENT SITUÉ – PROCHE DE ROUENÀ vendre à 41 km de la Manche et à 15 km de Rouen à Fresquiennes (76570), grand terrain. Ce terrain, orienté plein sud-ouest, donne sur un espace vert. Dans un secteur convoité, le terrain idéalement situé est proche des commerces et des écoles. On trouve l’École Primaire des Marronniers à moins de 10 minutes à pied. Niveau transports, il y a six gares à moins de 10 minutes en voiture. Les autoroutes A151, A150 et A29 et la nationale N27 sont accessibles à moins de 10 km. On trouve une boulangerie dans les environs.Ce terrain est proposé à l’achat pour 90 000 €. Contactez notre agence (Lindsay COLLAY : (Numéro supprimé)) pour tout renseignement sur le terrain ou sur les modalités de vente. Maisons France Confort Sainte-Marie-des-Champs vous accompagne dans toutes vos démarches et à toutes les étapes de l’achat.
Fresquiennes
TERRAIN ET MAISONMaison de 5 pièces (91 m²) à construire à Fresquiennes DERNIER TERRAIN !!IDÉALEMENT SITUÉE – MAISON 5 PIÈCES NEUVEÀ construire à 41 km de la Manche et à deux pas de Rouen, nous sommes ravis de vous présenter cette maison de 5 pièces de 91 m² et de 600 m² de terrain idéalement située dans Fresquiennes (76570).C’est une maison de 2 niveaux. Elle se divise en quatre chambres, une cuisine et une salle de bains. La maison est neuve.La maison se trouve dans un quartier recherché. L’École Primaire des Marronniers est implantée à moins de 10 minutes à pied. Niveau transports, on trouve six gares à moins de 10 minutes en voiture. Les autoroutes A151, A150 et A29 et la nationale N27 sont accessibles à moins de 10 km. Il y a une boulangerie à proximité du bien.Elle est à vendre pour la somme de 238 777 €.Prenez contact avec notre agence (COLLAY Lindsay : (Numéro supprimé)) pour toute question sur la propriété, sur les modalités de vente ou sur les démarches à suivre.
Fresquiennes
TERRAIN ET MAISONA construire : maison F4 (60 m²) à Fresquiennes SPECIAL INVESTISSEURIDÉALEMENT SITUÉE – MAISON 4 PIÈCES NEUVEEn vente à 41 km de la Manche et à deux pas de Rouen, idéalement située dans Fresquiennes (76570), Maisons France Confort Sainte-Marie-des-Champs vous présente cette maison de 4 pièces de plain-pied de 60 m² et de 600 m² de terrain. Elle comporte deux chambres, une cuisine et une salle de bains.Cette maison est neuve.La maison se situe dans un secteur prisé. Il y a l’École Primaire des Marronniers à moins de 10 minutes à pied. Côté transports, on trouve six gares à moins de 10 minutes en voiture. Les autoroutes A151, A150 et A29 et la nationale N27 sont accessibles à moins de 10 km. Il y a une boulangerie à quelques minutes.Son prix de vente est de 194 315 €.Prenez contact avec Lindsay COLLAY (tél : (Numéro supprimé)) pour tout renseignement sur la maison ou sur les démarches à suivre. Maisons France Confort Sainte-Marie-des-Champs vous accompagne à toutes les étapes de l’achat et dans tous vos projets immobiliers.
Émanville
TERRAINVENTE : terrain de 798 m² à ÉmanvilleIDÉALEMENT SITUÉ – PROCHE DE ROUENÀ 36 km de la Manche et à quelques kilomètres de Rouen à Émanville (76570), grand terrain. Réalisez-y la maison de vos rêves. Il donne sur un espace vert. Dans un secteur attractif, le terrain idéalement situé est proche des commerces et des écoles. L’École Primaire des Bleuets est implantée à moins de 10 minutes à pied, tout comme une crèche. Niveau transports, il y a trois gares (Pavilly, Barentin et Motteville) à moins de 10 minutes en voiture. Les autoroutes A151 et A29 et la nationale N27 sont accessibles à moins de 7 km. On trouve un supermarché à proximité du terrain.Ce terrain est à vendre pour la somme de 63 000 €. Contactez notre agence (Lindsay COLLAY : (Numéro supprimé)) pour toute question sur le terrain. Concrétisez vos projets immobiliers avec Maisons France Confort Sainte-Marie-des-Champs.
Émanville
TERRAIN ET MAISONA construire: maison de 5 pièces (101 m²) à ÉmanvilleIDÉALEMENT SITUÉE – MAISON 5 PIÈCES NEUVEÀ 36 km de la Manche et à 22 km de Rouen, notre agence Maisons France Confort Sainte-Marie-des-Champs est heureuse de vous présenter en vente, idéalement située dans Émanville (76570), cette maison de 5 pièces de plain-pied de 101 m². Conçue de plain-pied, elle comporte quatre chambres, une cuisine et une salle de bains.Le terrain de la maison s’étend sur 798 m².Cette maison est neuve.Cette maison se trouve dans un secteur recherché. Il y a l’École Primaire des Bleuets à moins de 10 minutes à pied et une crèche. Niveau transports, on trouve les gares Pavilly, Barentin et Motteville à moins de 10 minutes en voiture. Les autoroutes A151 et A29 et la nationale N27 sont accessibles à moins de 7 km. Il y a un supermarché dans les environs.Son prix de vente est de 199 912 €.Contactez notre agence (COLLAY Lindsay : (Numéro supprimé)) pour tout renseignement sur le bien, sur les démarches à suivre ou sur les modalités de vente. Concrétisez vos projets immobiliers avec Maisons France Confort Sainte-Marie-des-Champs.
Émanville
TERRAIN ET MAISONA construire : maison de 5 pièces (98 m²) à ÉmanvilleIDÉALEMENT SITUÉE – MAISON 5 PIÈCES NEUVEÀ 36 km de la Manche et à 22 km de Rouen, à construire idéalement située dans Émanville (76570), notre agence Maisons France Confort Sainte-Marie-des-Champs est heureuse de vous présenter cette maison de 5 pièces de 98 m².C’est une maison de 2 niveaux. Son intérieur est composé de quatre chambres, d’une cuisine et d’une salle de bains. La maison est neuve.Le terrain de la propriété est de 798 m².Cette maison se situe dans un secteur convoité. On trouve l’École Primaire des Bleuets à moins de 10 minutes à pied et une crèche. Niveau transports, il y a trois gares (Pavilly, Barentin et Motteville) à moins de 10 minutes en voiture. Les autoroutes A151 et A29 et la nationale N27 sont accessibles à moins de 7 km. On trouve un supermarché dans les environs.Elle est proposée à l’achat pour 211 777 €.Contactez Lindsay COLLAY (tél : (Numéro supprimé)) pour toute question sur la maison ou sur les démarches à suivre.
Limésy
TERRAINTerrain de 714 m² à construire à LimésyCENTRE-VILLE – PROCHE DE ROUENÀ Limésy (76570) à vendre à 38 km de la Manche et à deux pas de Rouen, donnez vie à votre projet de construction sur ce terrain de 714 m². Il se situe en centre-ville. L’École Primaire Albert Mallet et l’École Primaire Privée Sainte Isabelle sont implantées à moins de 10 minutes à pied. Côté transports en commun, on trouve les gares Pavilly, Motteville et Barentin à moins de 10 minutes en voiture. Les autoroutes A150, A29 et A151 et la nationale N27 sont accessibles à moins de 10 km. Il y a une bibliothèque, un tennis, une boulangerie, une boucherie-charcuterie et une épicerie à quelques minutes à peine.Il est proposé à l’achat pour 78 000 €. Prenez contact avec notre agence (Sébastien LENFANT : (Numéro supprimé)) pour toute information sur ce terrain, sur les démarches à suivre et sur les modalités de vente. Faites de vos projets immobiliers une réalité avec Extraco construction rénovation Yvetot.
Limésy
TERRAIN ET MAISONA construire: maison de 3 pièces (99 m²) à LimésyCENTRE-VILLE – MAISON 3 PIÈCES NEUVEA quelques kilomètres de Rouen, notre agence Extraco construction rénovation Yvetot est ravie de vous présenter, dans le centre-ville de Limésy (76570), cette maison de 3 pièces de plain-pied de 99 m² et de 714 m² de terrain.Son intérieur propose trois chambres, une cuisine et deux salles de bains. La maison est neuve.L’École Primaire Albert Mallet et l’École Primaire Privée Sainte Isabelle sont implantées à moins de 10 minutes à pied. Niveau transports, on trouve trois gares (Pavilly, Motteville et Barentin) à moins de 10 minutes en voiture. Les autoroutes A150, A29 et A151 et la nationale N27 sont accessibles à moins de 10 km. Il y a une bibliothèque, un tennis, une boulangerie, une épicerie et une boucherie-charcuterie à proximité.Son prix de vente est de 264 320 €.N’hésitez pas à prendre contact avec Sébastien LENFANT ((Numéro supprimé)) pour toute question sur la maison, sur les démarches à suivre ou sur les modalités de vente. Concrétisez vos projets immobiliers avec Extraco construction rénovation Yvetot.
Limésy
TERRAIN ET MAISONA construire: maison T5 (100 m²) à LimésyCENTRE-VILLE – MAISON 5 PIÈCES NEUVEÀ 22 km de Rouen, venez découvrir cette maison de 5 pièces de 100 m² au coeur de Limésy (76570). Son intérieur dispose de quatre chambres, d’une cuisine et d’une salle de bains.Le terrain de la propriété s’étend sur 714 m².C’est une maison de 2 niveaux. Elle est neuve.Il y a l’École Primaire Albert Mallet et l’École Primaire Privée Sainte Isabelle à moins de 10 minutes à pied. Niveau transports en commun, on trouve trois gares (Pavilly, Motteville et Barentin) à moins de 10 minutes en voiture. Les autoroutes A150, A29 et A151 et la nationale N27 sont accessibles à moins de 10 km. Il y a une bibliothèque, un tennis, une boulangerie, une boucherie-charcuterie et une épicerie à proximité du bien.Elle est à vendre pour la somme de 259 630 €.N’hésitez pas à prendre contact avec notre agence (LENFANT Sébastien : (Numéro supprimé)) pour obtenir de plus amples renseignements sur la maison. Extraco construction rénovation Yvetot est là pour vous accompagner dans toutes vos démarches.
L’actualité immobilière à Émanville
27/11/2023
02/11/2023
30/10/2023
20/10/2023
16/10/2023
16/10/2023