Maison à construire à Étaimpuis (76850)
Images
Description
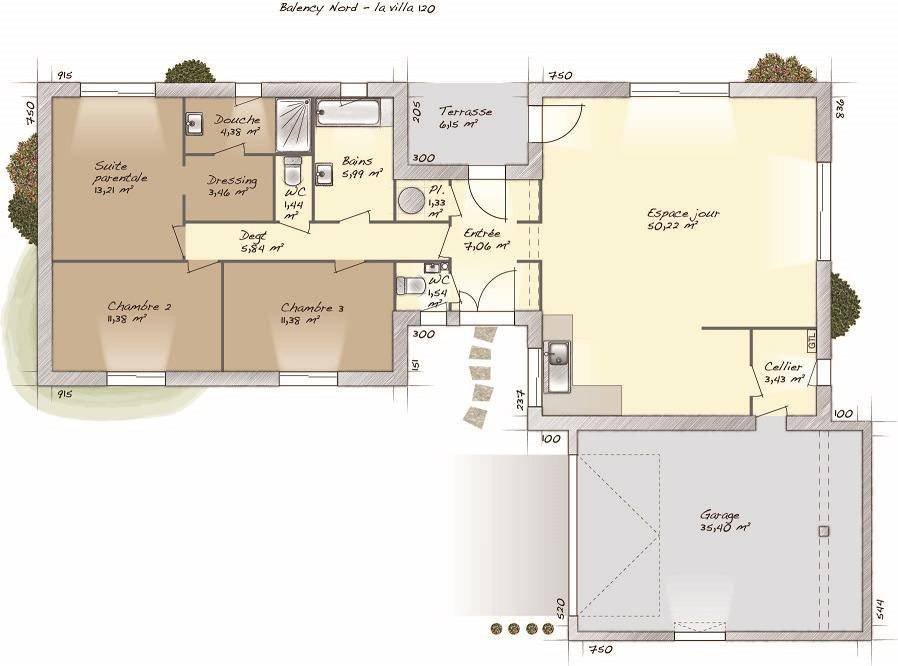
A construire : maison F5 (120 m²) à Étaimpuis
IDÉALEMENT SITUÉE - MAISON 5 PIÈCES NEUVE
En vente à 32 km de la Manche et à quelques kilomètres de Rouen, idéalement située dans Étaimpuis (76850), découvrez cette maison de 5 pièces de plain-pied de 120 m². Conçue de plain-pied, elle dispose de trois chambres, d'une cuisine et de deux salles de bains.
Le terrain de la propriété est de 1 100 m².
Cette maison est neuve.
Cette maison est située dans un secteur convoité. Trois établissements scolaires sont implantés à moins de 10 minutes en voiture, dont le Collège Jean Delacour et le Collège René Coty, tout comme une structure d'accueil pour les tout-petits à moins de 10 minutes à pied. Côté transports, il y a trois gares (Saint-Victor-l'Abbaye, Clères et Auffay) à moins de 10 minutes en voiture. Les autoroutes A151, A29 et A28 et la nationale N27 sont accessibles à moins de 9 km. On trouve des bibliothèques, des tennis, des commerces, des supermarchés, des boulangeries, quatre bureaux de poste et une supérette dans les environs. Enfin, 2 marchés animent le quartier.
Elle est proposée à l'achat pour 325 855 €.
Prenez contact avec Célia RENIER (tél : (Numéro supprimé)) pour toute question sur la maison. Donnez vie à vos projets immobiliers avec Maisons Balency Boos.
Annonce proposée par un Agent Commercial Partenaire.
Logement susceptibles de vous intéresser
Nous vous proposons de découvrir aussi cette sélection de logements situés à moins de 10km de Étaimpuis et qui seraient susceptibles de vous intéresser.
Fontaine-le-Bourg
TERRAIN ET MAISONMaison idéalement située à FONTAINE-LE-BOURG sur un terrain de 800 m². À proximité, dans le bourg : école, boulangerie, parc pour enfants, bus vert. Cette maison contemporaine bénéficie d’un agencement agréable : – Salon/séjour avec cuisine ouverte de 50 m², avec une grande baie coulissante de 2,80 m en alu, – cellier, – 3 chambres avec placards, – suite parentale avec dressing et douche à l’italienne, – salle de bains avec baignoire et douche, – garage de 20m². Isolation renforcée avec système de chauffage très économique par pompe à chaleur. Maison certifiée RE20. DPE : A / GSE : B.Venez nous rencontrer et visiter notre showroom : Maisons EXTRACO – 11 Rue Jacques Monod, 76130 Mont-Saint-AignanÉtude gratuite auprès de votre conseiller : Floriane LEBOUCHER ((Numéro supprimé))(Premier échange par SMS possible)
Le Bocasse
TERRAINÀ LE BOCASSE, terrain constructible à acheter.Sur la commune de LE BOCASSE, opportunité à saisir avec ce terrain. Vous pourrez exploiter une surface de 728 m2 pour créer votre future maison. N’hésitez pas à contacter Floriane LEBOUCHER ((Numéro supprimé)) des Maisons EXTRACO Mont-Saint-Aignan si vous avez des questions. Premiers échanges par SMS ou mail possible.LEBOUCHER Floriane(Numéro supprimé)
Clères
TERRAIN ET MAISONVENTE d’une maison T7 (150 m²) au BocasseEMPLACEMENT PRIVILÉGIÉ – MAISON 7 PIÈCES NEUVE A CONSTRUIREÀ 36 km de la Manche et à deux pas de Rouen, votre agence Maisons France Confort Sainte-Marie-des-Champs est ravie de vous proposer cette maison de 7 pièces de 150 m² à vendre bénéficiant d’un emplacement privilégié dans Le Bocasse (76690). Elle offre cinq chambres, une cuisine et deux salles de bains.Le terrain de la propriété s’étend sur 707 m².C’est une maison de 2 niveaux. Elle est neuve.La maison se situe dans un quartier recherché. L’École Primaire Fertel est implantée à moins de 10 minutes à pied. Niveau transports, on trouve les gares Clères, Montville et Saint-Victor-l’Abbaye à moins de 10 minutes en voiture. Les autoroutes A151 et A29 et la nationale N27 sont accessibles à moins de 6 km.Elle est à vendre pour la somme de 310 075 €.N’hésitez pas à prendre contact avec Noemie DEMEILLERS ((Numéro supprimé)) pour tout renseignement sur le bien ou sur les démarches à suivre.
Fontaine-le-Bourg
TERRAINÀ FONTAINE-LE-BOURG, terrain constructible à acheter.Sur la commune de FONTAINE-LE-BOURG, opportunité à saisir avec ce terrain. Vous pourrez exploiter une surface de 800 m2 pour créer votre future maison. N’hésitez pas à contacter Floriane LEBOUCHER ((Numéro supprimé)) des Maisons EXTRACO Mont-Saint-Aignan si vous avez des questions. Premiers échanges par SMS ou mail possible.LEBOUCHER Floriane(Numéro supprimé)
Le Bocasse
TERRAIN ET MAISONMaison idéalement située à LE BOCASSE sur un terrain de 728 m². À proximité, dans le bourg : école, boulangerie, parc pour enfants, bus vert. Cette maison contemporaine bénéficie d’un agencement agréable : – Salon/séjour avec cuisine ouverte de 50 m², avec une grande baie coulissante de 2,80 m en alu, – cellier, – 3 chambres avec placards, – suite parentale avec dressing et douche à l’italienne, – salle de bains avec baignoire et douche, – garage de 20m². Isolation renforcée avec système de chauffage très économique par pompe à chaleur. Maison certifiée RE20. DPE : A / GSE : B.Venez nous rencontrer et visiter notre showroom : Maisons EXTRACO – 11 Rue Jacques Monod, 76130 Mont-Saint-AignanÉtude gratuite auprès de votre conseiller : Floriane LEBOUCHER ((Numéro supprimé))(Premier échange par SMS possible)
Le Bocasse
TERRAIN ET MAISONMaison idéalement située à LE BOCASSE sur un terrain de 728 m². À proximité, dans le bourg : école, boulangerie, parc pour enfants, bus vert. Cette maison contemporaine bénéficie d’un agencement agréable : – Salon/séjour avec cuisine ouverte de 50 m², avec une grande baie coulissante de 2,80 m en alu, – cellier, – 3 chambres avec placards, – suite parentale avec dressing et douche à l’italienne, – salle de bains avec baignoire et douche, – garage de 20m². Isolation renforcée avec système de chauffage très économique par pompe à chaleur. Maison certifiée RE20. DPE : A / GSE : B.Venez nous rencontrer et visiter notre showroom : Maisons EXTRACO – 11 Rue Jacques Monod, 76130 Mont-Saint-AignanÉtude gratuite auprès de votre conseiller : Floriane LEBOUCHER ((Numéro supprimé))(Premier échange par SMS possible)
Fontaine-le-Bourg
TERRAIN ET MAISONMaison idéalement située à FONTAINE-LE-BOURG sur un terrain de 800 m². À proximité, dans le bourg : école, boulangerie, parc pour enfants, bus vert. Cette maison contemporaine bénéficie d’un agencement agréable : – Salon/séjour avec cuisine ouverte de 50 m², avec une grande baie coulissante de 2,80 m en alu, – cellier, – 3 chambres avec placards, – suite parentale avec dressing et douche à l’italienne, – salle de bains avec baignoire et douche, – garage de 20m². Isolation renforcée avec système de chauffage très économique par pompe à chaleur. Maison certifiée RE20. DPE : A / GSE : B.Venez nous rencontrer et visiter notre showroom : Maisons EXTRACO – 11 Rue Jacques Monod, 76130 Mont-Saint-AignanÉtude gratuite auprès de votre conseiller : Floriane LEBOUCHER ((Numéro supprimé))(Premier échange par SMS possible)
Frichemesnil
TERRAIN ET MAISONMaison idéalement située à FRICHEMESNIL sur un terrain de 677 m². À proximité, dans le bourg : école, boulangerie, parc pour enfants, bus vert. Cette maison contemporaine bénéficie d’un agencement agréable : – Salon/séjour avec cuisine ouverte de 50 m², avec une grande baie coulissante de 2,80 m en alu, – cellier, – 3 chambres avec placards, – suite parentale avec dressing et douche à l’italienne, – salle de bains avec baignoire et douche, – garage de 20m². Isolation renforcée avec système de chauffage très économique par pompe à chaleur. Maison certifiée RE20. DPE : A / GSE : B.Venez nous rencontrer et visiter notre showroom : Maisons EXTRACO – 11 Rue Jacques Monod, 76130 Mont-Saint-AignanÉtude gratuite auprès de votre conseiller : Floriane LEBOUCHER ((Numéro supprimé))(Premier échange par SMS possible)
Le Bocasse
TERRAIN ET MAISONMaison idéalement située à LE BOCASSE sur un terrain de 728 m². À proximité, dans le bourg : école, boulangerie, parc pour enfants, bus vert. Cette maison contemporaine bénéficie d’un agencement agréable : – Salon/séjour avec cuisine ouverte de 50 m², avec une grande baie coulissante de 2,80 m en alu, – cellier, – 3 chambres avec placards, – suite parentale avec dressing et douche à l’italienne, – salle de bains avec baignoire et douche, – garage de 20m². Isolation renforcée avec système de chauffage très économique par pompe à chaleur. Maison certifiée RE20. DPE : A / GSE : B.Venez nous rencontrer et visiter notre showroom : Maisons EXTRACO – 11 Rue Jacques Monod, 76130 Mont-Saint-AignanÉtude gratuite auprès de votre conseiller : Floriane LEBOUCHER ((Numéro supprimé))(Premier échange par SMS possible)
L’actualité immobilière à Étaimpuis
27/11/2023
02/11/2023
30/10/2023
20/10/2023
16/10/2023
16/10/2023